Sometimes, size doesn't matter. In a world where the size of a home often seems to correlate with success, a growing movement believes bigger isn't always better.
The average size of a single-family home in the US may hover around a sprawling 2,522 sq ft, but for many, the appeal of efficient living is rewriting the rules of what a dream home can be.
Sometimes, it's not about the square footage. This can be about the essence of a home. Whether fueled by financial concerns or the desire to build a space that mirrors a simpler lifestyle, there's a magnetic pull towards smaller homes.
Picture a life where every square foot is intentional, where the emphasis is not on excess but on the essentials. This is the allure of efficient living - where comfort and functionality take center stage, unburdened by unnecessary glam.
Enter the barndominium. Known for its versatile design and rustic charm, the barndo has become a go-to choice for those seeking a departure from the traditional home. While barndos often grace the landscape with their generous proportions, their adaptability allows for smaller, more intimate dwellings that cater to the needs of a diverse array of homeowners.
Curious about what these smaller barndos have to offer? This guide brings you a collection of barndominium floor plans under 2000 sq ft. From clever space utilization to cozy corners that exude warmth, these floor plans prove that size is not a limitation when it comes to crafting your dream barndo.
Discover the essentials of efficient living and dive into barndominiums. Here we go!
Barndominium Floor Plans Under 2000 Sq Ft - Things to Consider
Millennials now prefer buying smaller and more efficient homes. Student debt, delaying marriage, and generally preferring fewer children all contribute to this.
But when it comes to designing your dream barndominium, size doesn't dictate style or comfort. There's an art to maximizing space, and with barndominium floor plans under 2000 sq ft, you have the canvas to create a practical and charming home with no compromises.
Before you dive into the floor plans we offer, let's explore key considerations that will shape your ideal floor plan.
- Lifestyle: Consider your family size, home-based work needs, and any specific spaces like a workshop or gym. Tailor your floor plan to accommodate the rhythm of your daily life.
- Land Consideration: The land you build on is your backdrop. Whether it's a mountain view or a lakeside setting, your floor plan should maximize the natural beauty around you. Think about where you want windows for sunset views or morning sunshine.
- Traffic Flow: Good interior design calls for proper “flow” inside the home. Think about the path from the garage to the kitchen when carrying groceries or the proximity of the laundry area to the main living space. Optimize traffic flow for convenience.
- Closets and Storage: From seasonal items to linens and luggage, be sure to assess your storage needs. Ensure your floor plan includes ample closet space, and consider adding extra storage for items that enhance daily life.
- Flexibility: Life is dynamic, and your home should adapt. Choose a floor plan that allows for flexibility in room usage. A space that serves as an office today might become a nursery tomorrow. Flexibility ensures your home evolves with your changing needs.
- Outdoor Living Spaces: Extend your living space beyond four walls. Consider incorporating outdoor areas like a porch or patio into your floor plan. These spaces not only enhance the aesthetics but also provide a retreat for relaxation or entertainment.
- Energy Efficiency: Small doesn't mean sacrificing efficiency. Embrace energy-efficient design elements in your floor plan – from well-placed windows for natural light to strategic insulation. This not only reduces your environmental footprint but also saves on utility bills.
- Future Expansion: Anticipate the future. While you might be focusing on a smaller floor plan now, think about potential expansions. Consider options that allow for easy additions or conversions as your needs evolve.
Crafting your space is not just about the blueprint. You should create a home that resonates with your lifestyle and aspirations.
Barndominium Floor Plans Under 2000 Sq Ft with Pictures - Get Inspired with These Floor Plan Ideas
Now that you know what to consider when choosing barndominium floor plans, it's time to get inspired. From clever layouts to seamless indoor-outdoor designs, let these floor plans inspire your vision for efficient living.
Barndominium Floor Plan For a Starter Family
Introducing the PL-3204 Atticus Barndominium House Plan, a perfect choice for first-time homeowners. With two bedrooms, two bathrooms, and 1,253 heated sq ft, this open-concept barndominium floor plan creates a spacious feel for cozy living.
The kitchen, adorned with a sizable island, becomes the heart of the home – ideal for both busy mornings and entertaining. The master bedroom offers a private retreat with a luxurious ensuite bathroom featuring double vanities, a standalone tub, and a separate shower.
Convenience is key, with a walk-in closet adjacent to the bathroom. The secondary bedroom is flexible for guests, an office, or a growing family's needs.
BUY PL-3204 NOW!
Barndominium Floor Plan with Compact Storage Solutions
Meet the PL-60001 Coral Barndominium House Plan. This 1,233 sq ft gem offers two bedrooms and two bathrooms, just like the Atticus barndominium. Open-concept barndominium floor plans such as these create an inviting atmosphere for versatile use.
Standout feature? Ample storage solutions. Compact homes benefit greatly from smart storage, and this plan delivers. A spacious corner pantry by the kitchen ensures practicality without compromising space. Both bedrooms boast larger-than-average closets, with a walk-in closet for the master's bedroom, emphasizing the importance of thoughtful storage in smaller living spaces.
BUY PL-60001 NOW!
Barndominium Floor Plan with a Shop
Presenting the CDD-1005 Chaston Barndominium House Plan that is tailored for those desiring a smaller home with a spacious shop.
With 1,493 heated sq ft, one bedroom, one full bathroom, and two half bathrooms, the Chaston barndominium stands out for its impressive 2,705 sq ft attached shop/garage. A shop is a versatile space, perfect for hobbies, storage, or even a small business.
This home's main areas feature large windows to invite plenty of natural light, and a spacious owner's suite offers relaxation after a day in the garage. The open-concept design allows for easy entertaining, ensuring a seamless flow between living, dining, and kitchen spaces.
BUY CDD-1005 NOW!
Barndominium Floor Plan with 3 Bedrooms
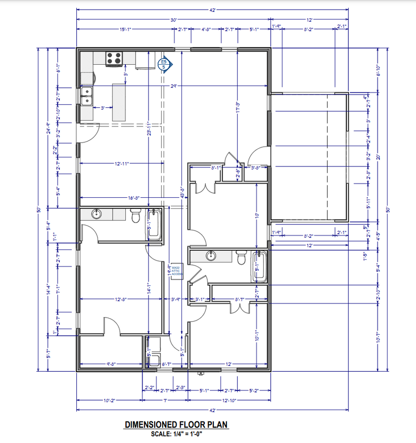
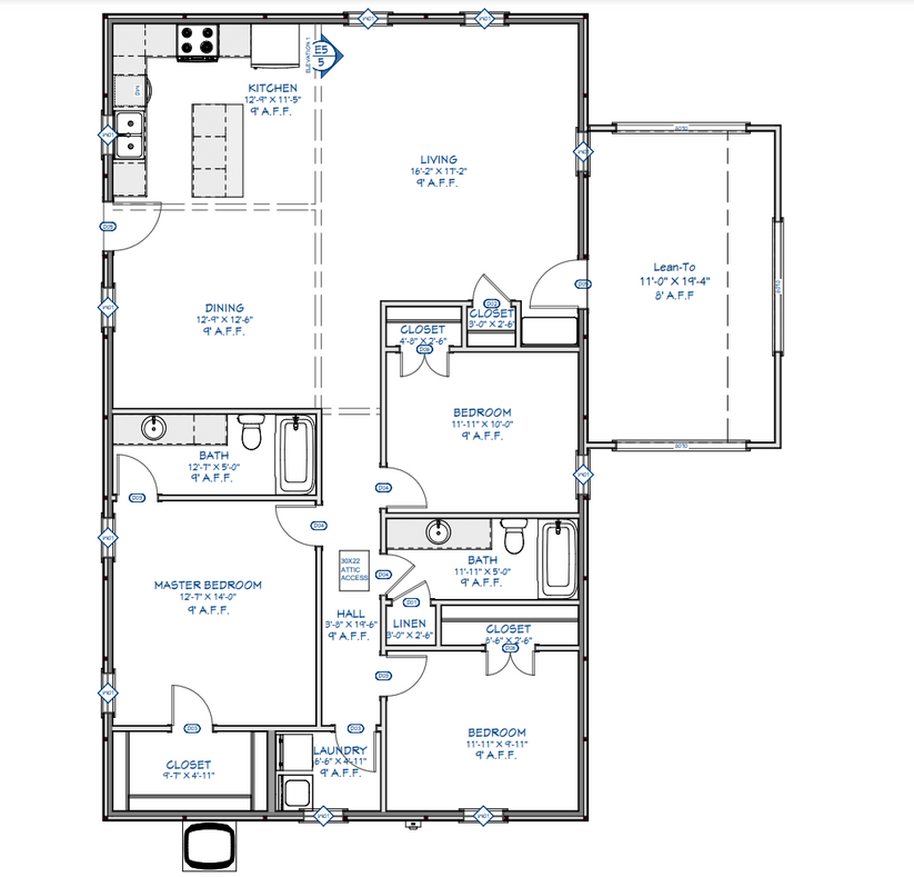
Here's the PL-62003 Duke Barndominium House Plan, a 1,500 sq ft design featuring three bedrooms and two bathrooms. This makes the home ideal for larger families.
The exterior's lean-to roof adds depth, leading to a covered porch. A spacious open-concept living area awaits you inside, perfect for entertaining guests or spending time with family. The L-shaped kitchen, complete with a central island, provides a convenient location for serving and preparing meals.
The master bedroom is spacious, featuring an ensuite bathroom and walk-in closet. Two additional bedrooms share a well-appointed second bathroom with a linen closet for convenient storage.
BUY PL-62003 NOW!
Barndominium Floor Plan with a Safe
Behold the PL-62302 Greenway Barndominium House Plan. Spanning 1,813 heated sq ft with three bedrooms and two bathrooms, there is plenty of space for the whole family.
A spacious and open floor plan greets you, making entertaining a breeze. The family room and kitchen, complemented by a large island and corner pantry, set the stage for cooking and socializing.
The standout feature is the expansive master bedroom. With spacious closets and a well-appointed master bath, this retreat offers ultimate pampering. The home also features two additional bedrooms sharing a central bathroom.
A unique addition of a safe accessible from the laundry room adds an extra layer of security, providing peace of mind for valuables.
BUY PL-62302 NOW!
Can Barndominium Floor Plans be Modified?
Absolutely! The beauty of our barndominium floor plans lies in their flexibility. If you have specific adjustments in mind, the good news is that our plans can be modified with ease.
Connect with our design team to kickstart your customization. A small fee ensures your barndo is tailored to meet your unique needs. Feel free to reach out for more information and take the first step toward crafting a home that fits you like a glove.
Design Your Own Barndominium Floor Plans
Are you the kind of person with a distinct vision? Turning your dream barndominium into reality just became more accessible.
If you're inclined to dive into the creative process, our free barndominium design software empowers you to meticulously design your space with precision and flair.
And for those who might find starting from scratch a bit daunting, fear not – our "Barndominiums Made Easy" program is here for you. With over 40 ready-to-order barndominium house plans, we cater to every taste and family size.
Our program is your companion throughout the entire home-building journey. From the initial planning stages to the groundbreaking moment, our expertise is at your service.
Make the first step today!
Final Thoughts
These barndominium floor plans under 2000 sq ft give you a chance to enjoy the charm of smaller spaces. But whether you dream of a smaller home or living large and in charge, BarndominiumPlans.com is your go-to resource for a wide variety of barndo options.
Specializing in crafting barndominium house plans, our expertise extends beyond size constraints. Explore, envision, and let us be your partner in turning your dream home into a tangible reality.
Because when it comes to barndos, size may vary, but the craftsmanship, practicality, and style are constants. Your perfect barndominium, whether less than 2,000 sq ft or beyond, starts here. Let's build it together.






















