Couldn't load pickup availability
Barndominium Plans
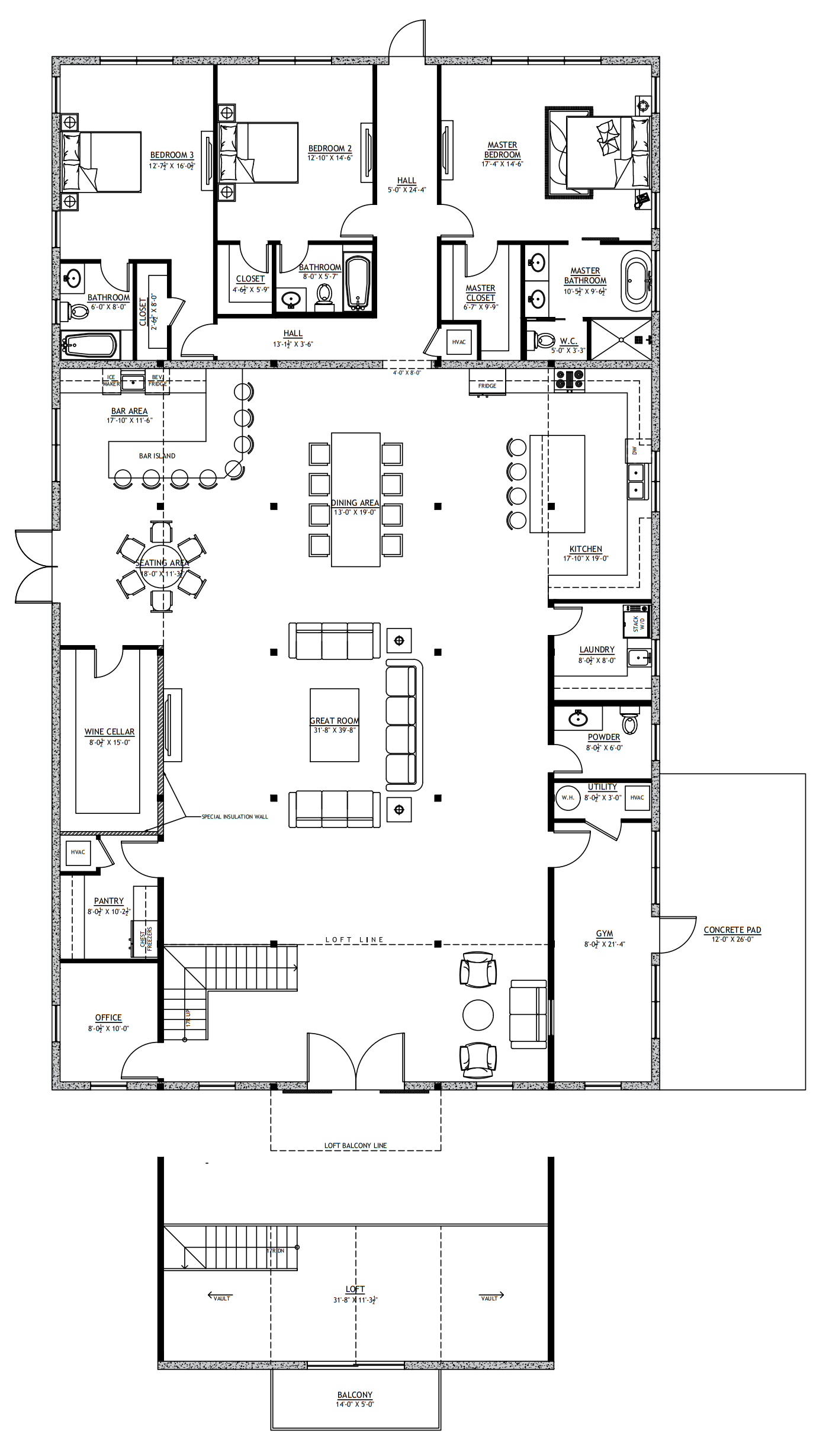
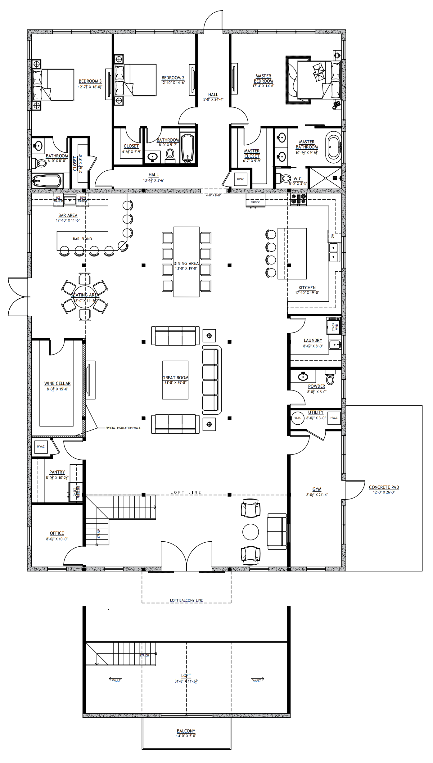
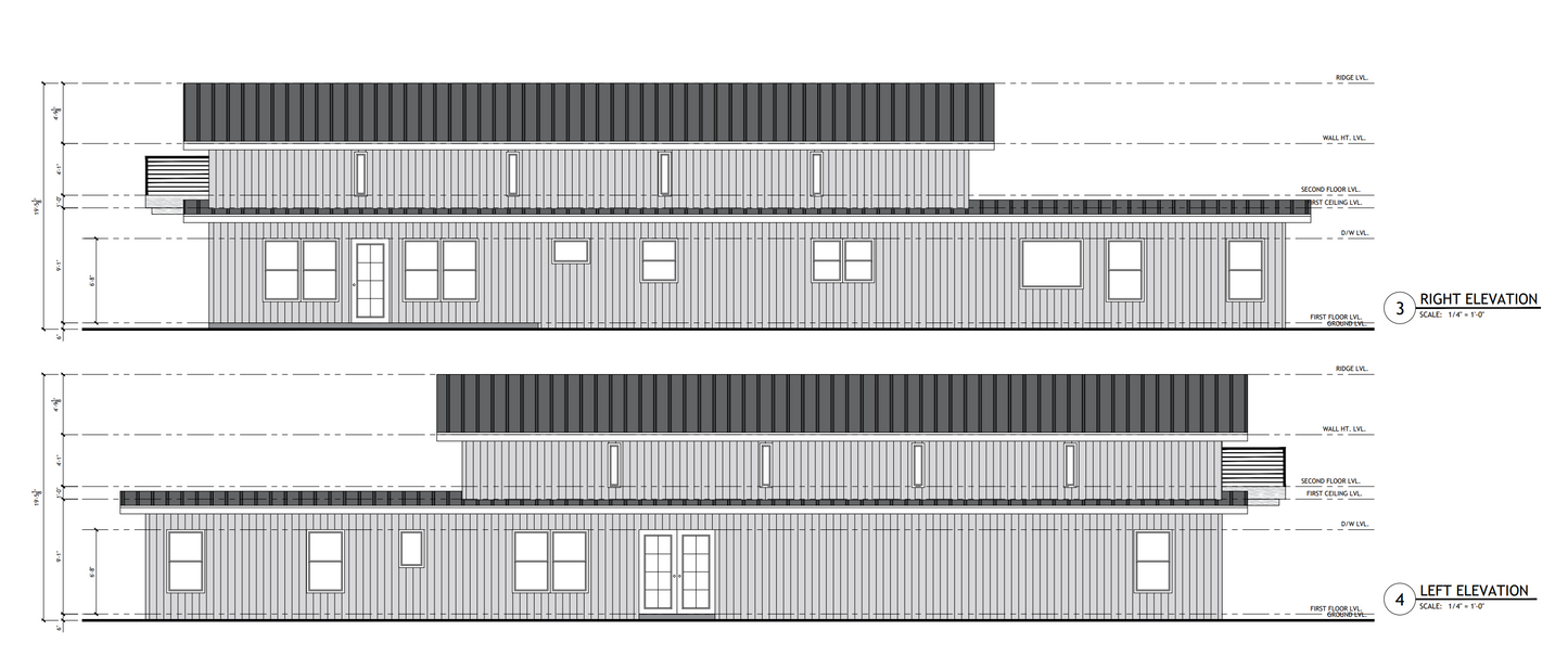
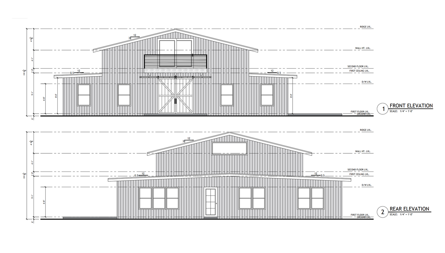
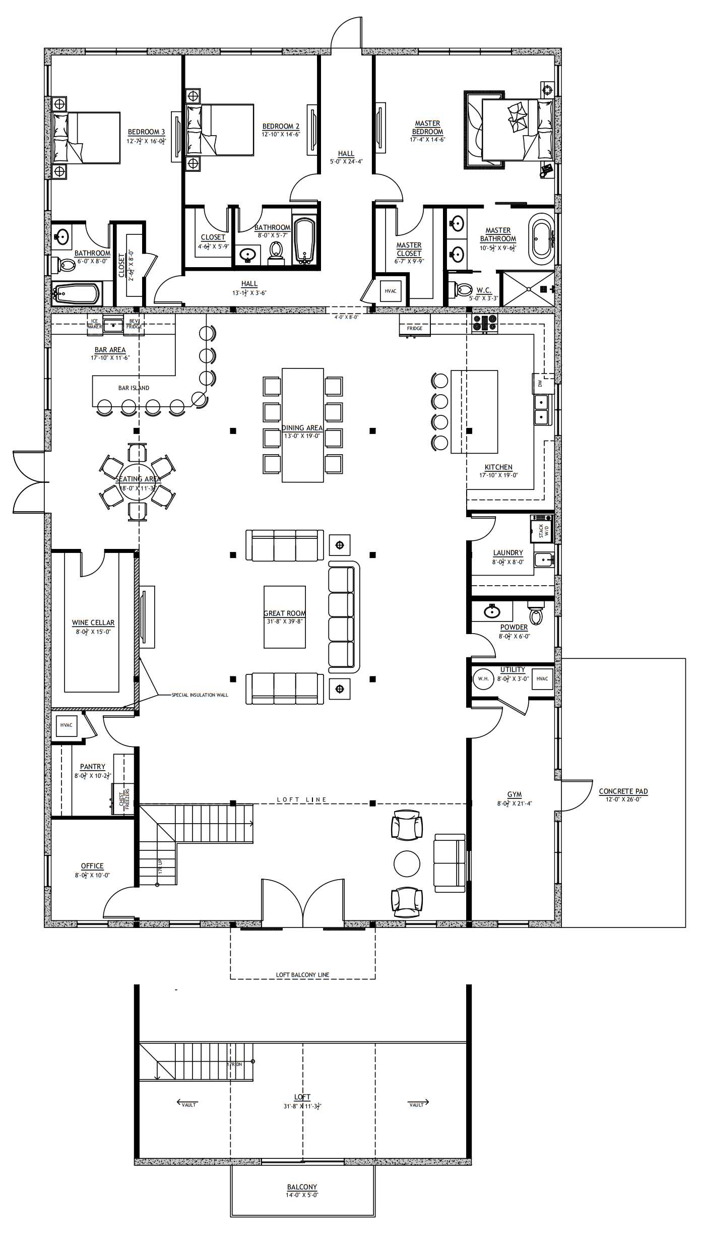
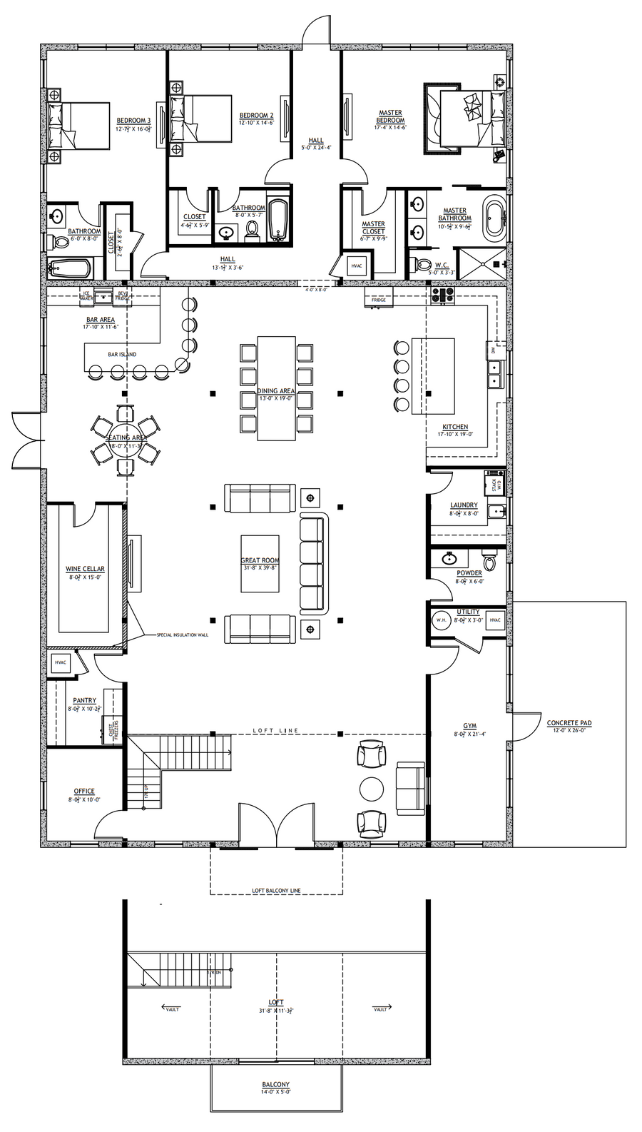
SV-5901 Nash Barndominium House Plan
DETAILS
HEATED SQ FT
First Floor:
4,640 SF
Second Floor:390 SF
Total Heated Sq Ft:4,640 SF
UNHEATED SQ FT
70 SF
Carport:None
3
3
1
None
50'
85'
19'-5 1/8"
Concrete Masonry Unit
3:12
Concrete Masonry Unit
CEILING HEIGHTS
9'-1"
SV-5901 Nash Barndominium House Plan
Â
About this barndominium house plan:
- 4640 Heated Square Feet
- 3 Bedrooms
- 3.1 Bathrooms
- Single Story
- Open concept
- Loft
- Office
- Gym
- Wine Cellar
- Bar
- Front Deck
Â
- An expansive 4,640 sq ft layout designed for luxury living with three spacious bedrooms, three full baths and a stylish half bath offer privacy, convenience, and a high-end living experience.
- Dedicated office space perfect working from home in comfort, and a private in-home gym that makes staying active convenient.
- Sophisticated wine cellar and bar area ideal for hosting, relaxing, and showcasing your favourite bottles.
- Bright loft that adds extra living space, paired with a front deck that invites fresh air, views, and outdoor enjoyment.
Â
What's included in SV-5901:
Cover Page
Floor Plan
Roof Plan
Elevations
Electrical Plan
Plumbing Plan
HVAC Plan
Roof Framing Plan
Foundation Plan
Foundation Detail
Interior Bearing Footing
Wall Section
Â
For more barndominium floor plans, check out our complete collection of 3-bedroom barndominium floor plans.
Â
Need to make changes? Submit a modification request using the button that says Modify This Plan. We will get you a free price quote within 72 hours.
What's Typically Included
What's Typically Included
THE SPECIFC DETAILS OF WHAT'S INCLUDED ON THESE PLANS IS CONTAINED IN THE PRODUCT DESCRIPTION. PLEASE SCROLL UP AND YOU WILL FIND IT UNDER "WHAT'S INCLUDED"
Our house plan sets typically have the following details:
4 Elevations – Front, Back, Both Sides
Detailed Floor Plan Drawing
Electrical Plans with placements for HVAC
Plumbing Plans with Placements
Flooring Plan
Roof Plan
Foundation Plan
For more information on what's included and examples of what your plans will look like, go here -> https://barndominiumplans.com/pages/whats-included
Please Note: We work with many different draftspeople who work in many different ways. It should be noted that their plans may contain different details. THE SPECIFC DETAILS OF WHAT'S INCLUDED ON THESE PLANS IS CONTAINED IN THE PRODUCT DESCRIPTION. PLEASE SCROLL UP AND YOU WILL FIND IT UNDER "WHAT'S INCLUDED"
What's Not Included
What's Not Included
The following items are NOT included:
Architectural or Engineering Stamp. Our plans are engineering-ready! Can take them to a local engineer in your state.
Site Plan - We can provide this if needed for $300 additional.
Materials List - handled locally when required
Energy calculations - handled locally when required
Snow load calculations - handled locally when required
Delivery
Delivery
This plan is available as a digital product or printed + shipped.
If you select digital, the plan will be delivered to you via email as a PDF file, no matter what time it is.
If you select printed + shipped, your order will ship in 24x36 format within 1 business day of your order.
We ship from the midwest in order to serve the entire country within 3-5 business days!
Return policy
Return policy
All barndominium house plan purchases are FINAL. There are no exchanges or refunds due to the digital nature of the product. Please make sure that the plan you have selected is going to fit your needs.
PDF (Single Build) $1,499.99
DETAILS
HEATED SQ FT
First Floor:
4,640 SF
Second Floor:390 SF
Total Heated Sq Ft:4,640 SF
UNHEATED SQ FT
70 SF
Carport:None
3
3
1
None
50'
85'
19'-5 1/8"
Concrete Masonry Unit
3:12
Concrete Masonry Unit
CEILING HEIGHTS
9'-1"
SV-5901 Nash Barndominium House Plan
Â
About this barndominium house plan:
- 4640 Heated Square Feet
- 3 Bedrooms
- 3.1 Bathrooms
- Single Story
- Open concept
- Loft
- Office
- Gym
- Wine Cellar
- Bar
- Front Deck
Â
- An expansive 4,640 sq ft layout designed for luxury living with three spacious bedrooms, three full baths and a stylish half bath offer privacy, convenience, and a high-end living experience.
- Dedicated office space perfect working from home in comfort, and a private in-home gym that makes staying active convenient.
- Sophisticated wine cellar and bar area ideal for hosting, relaxing, and showcasing your favourite bottles.
- Bright loft that adds extra living space, paired with a front deck that invites fresh air, views, and outdoor enjoyment.
Â
What's included in SV-5901:
Cover Page
Floor Plan
Roof Plan
Elevations
Electrical Plan
Plumbing Plan
HVAC Plan
Roof Framing Plan
Foundation Plan
Foundation Detail
Interior Bearing Footing
Wall Section
Â
For more barndominium floor plans, check out our complete collection of 3-bedroom barndominium floor plans.
Â
Need to make changes? Submit a modification request using the button that says Modify This Plan. We will get you a free price quote within 72 hours.
What's Typically Included
What's Typically Included
THE SPECIFC DETAILS OF WHAT'S INCLUDED ON THESE PLANS IS CONTAINED IN THE PRODUCT DESCRIPTION. PLEASE SCROLL UP AND YOU WILL FIND IT UNDER "WHAT'S INCLUDED"
Our house plan sets typically have the following details:
4 Elevations – Front, Back, Both Sides
Detailed Floor Plan Drawing
Electrical Plans with placements for HVAC
Plumbing Plans with Placements
Flooring Plan
Roof Plan
Foundation Plan
For more information on what's included and examples of what your plans will look like, go here -> https://barndominiumplans.com/pages/whats-included
Please Note: We work with many different draftspeople who work in many different ways. It should be noted that their plans may contain different details. THE SPECIFC DETAILS OF WHAT'S INCLUDED ON THESE PLANS IS CONTAINED IN THE PRODUCT DESCRIPTION. PLEASE SCROLL UP AND YOU WILL FIND IT UNDER "WHAT'S INCLUDED"
What's Not Included
What's Not Included
The following items are NOT included:
Architectural or Engineering Stamp. Our plans are engineering-ready! Can take them to a local engineer in your state.
Site Plan - We can provide this if needed for $300 additional.
Materials List - handled locally when required
Energy calculations - handled locally when required
Snow load calculations - handled locally when required
Delivery
Delivery
This plan is available as a digital product or printed + shipped.
If you select digital, the plan will be delivered to you via email as a PDF file, no matter what time it is.
If you select printed + shipped, your order will ship in 24x36 format within 1 business day of your order.
We ship from the midwest in order to serve the entire country within 3-5 business days!
Return policy
Return policy
All barndominium house plan purchases are FINAL. There are no exchanges or refunds due to the digital nature of the product. Please make sure that the plan you have selected is going to fit your needs.

Real Reviews, Real Experiences
How to Build Your Own Barndominium & 120+ House Plans
Just getting started on your build? Get the Barndominiums Made Easy Program.
- Choosing a selection results in a full page refresh.



