Couldn't load pickup availability
Barndominium Plans
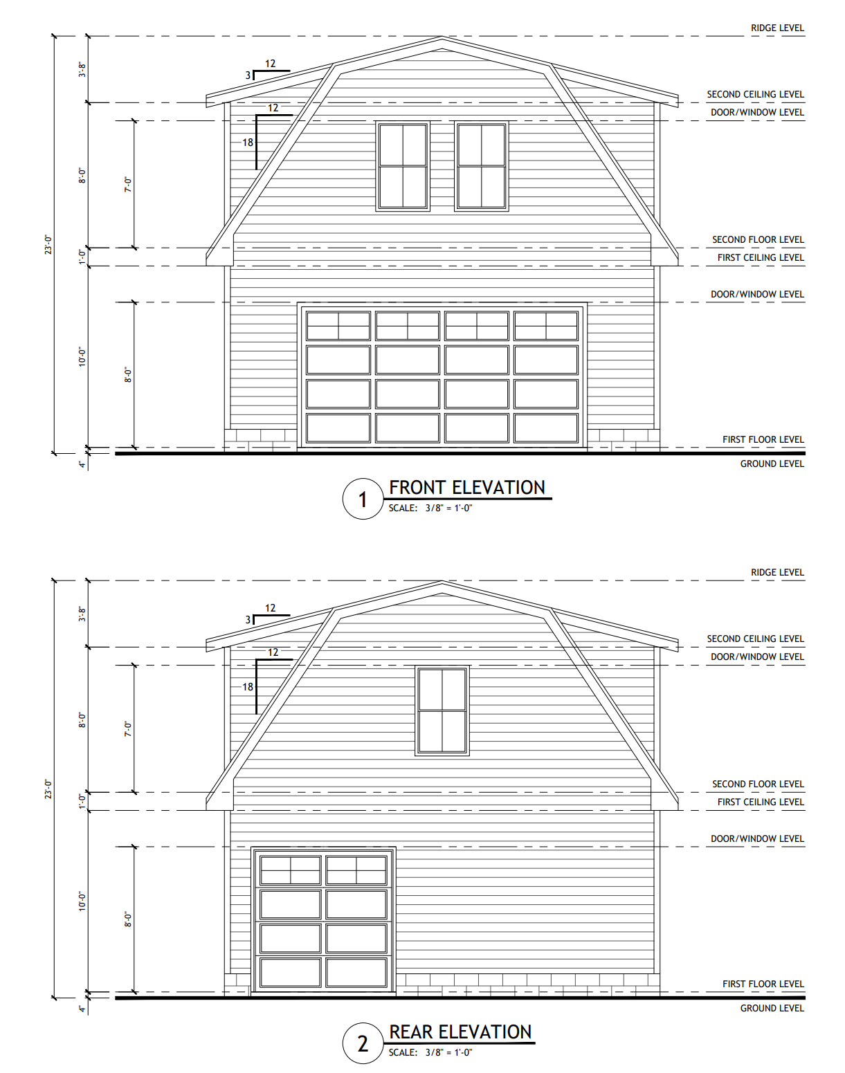
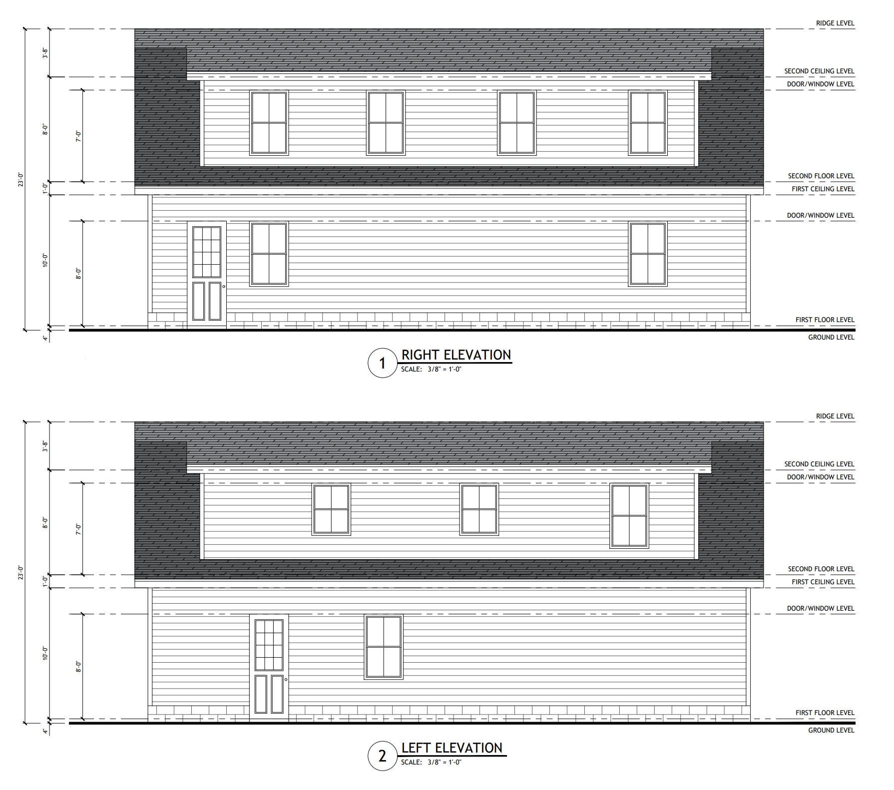
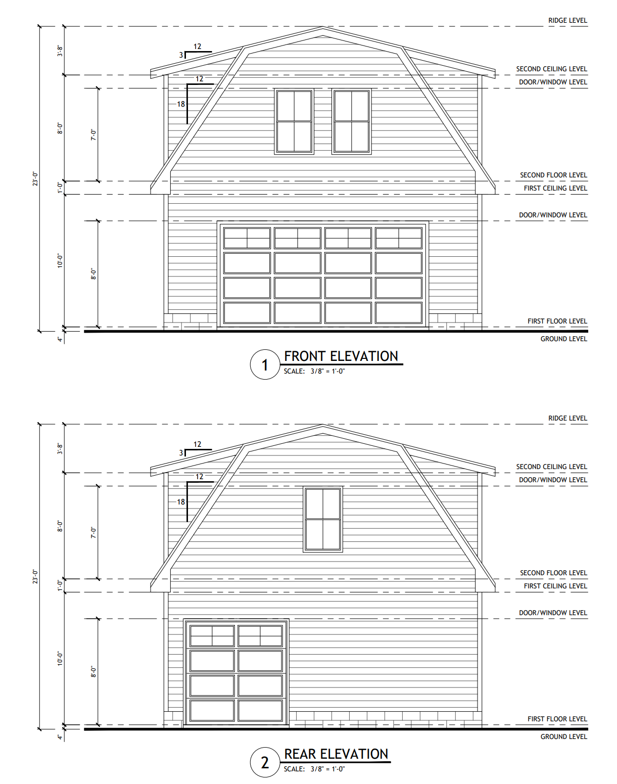
SV-5507 Austin Barndominium House Plan
DETAILS
HEATED SQ FT
First Floor:
1,104 SF
Second Floor:1,104 SF
Total Heated Sq Ft:2,208 SF
UNHEATED SQ FT
1,104 SF
Carport:None
1
2
2
1,104 SF
24
46'
23'
Concrete Slab
3:12
Stick Frame
CEILING HEIGHTS
10'
SV-5507 Austin Barndominium House Plan
Â
About this barndominium house plan:
- 2208 Heated Square Feet
- 2 Bedrooms
- 1 Bathroom
- Two Story
- Open concept
- 1104 Sq Ft Garage/Shop
Â
- Thoughtfully designed 1,104 sq ft living space located upstairs, offering comfort, privacy, and great views.
- Two cozy bedrooms that provide quiet retreats away from the garage and workshop below.
- Conveniently placed full bathroom for everyday ease and functionality.
- Smart two-story layout that separates living space above from work and storage space below.
- Massive 1,104 sq ft garage and workshop with heated floor on the lower level—ideal for vehicles, tools, projects, and serious hobby space.
Â
What's included in SV-5507:
Cover Page
Floor Plan
Roof Plan
Elevations
First Floor Electrical Plan
Second Floor Electrical Plan
Plumbing Plan
Hvac Plan
Roof Framing Plan
Foundation Plan
Â
For more barndominium floor plans, check out our complete collection of 2-bedroom barndominium floor plans.
Â
Need to make changes? Submit a modification request using the button that says Modify This Plan. We will get you a free price quote within 72 hours.
What's Typically Included
What's Typically Included
THE SPECIFC DETAILS OF WHAT'S INCLUDED ON THESE PLANS IS CONTAINED IN THE PRODUCT DESCRIPTION. PLEASE SCROLL UP AND YOU WILL FIND IT UNDER "WHAT'S INCLUDED"
Our house plan sets typically have the following details:
4 Elevations – Front, Back, Both Sides
Detailed Floor Plan Drawing
Electrical Plans with placements for HVAC
Plumbing Plans with Placements
Flooring Plan
Roof Plan
Foundation Plan
For more information on what's included and examples of what your plans will look like, go here -> https://barndominiumplans.com/pages/whats-included
Please Note: We work with many different draftspeople who work in many different ways. It should be noted that their plans may contain different details. THE SPECIFC DETAILS OF WHAT'S INCLUDED ON THESE PLANS IS CONTAINED IN THE PRODUCT DESCRIPTION. PLEASE SCROLL UP AND YOU WILL FIND IT UNDER "WHAT'S INCLUDED"
What's Not Included
What's Not Included
The following items are NOT included:
Architectural or Engineering Stamp. Our plans are engineering-ready! Can take them to a local engineer in your state.
Site Plan - We can provide this if needed for $300 additional.
Materials List - handled locally when required
Energy calculations - handled locally when required
Snow load calculations - handled locally when required
Delivery
Delivery
This plan is available as a digital product or printed + shipped.
If you select digital, the plan will be delivered to you via email as a PDF file, no matter what time it is.
If you select printed + shipped, your order will ship in 24x36 format within 1 business day of your order.
We ship from the midwest in order to serve the entire country within 3-5 business days!
Return policy
Return policy
All barndominium house plan purchases are FINAL. There are no exchanges or refunds due to the digital nature of the product. Please make sure that the plan you have selected is going to fit your needs.
PDF (Single Build) $849.99
DETAILS
HEATED SQ FT
First Floor:
1,104 SF
Second Floor:1,104 SF
Total Heated Sq Ft:2,208 SF
UNHEATED SQ FT
1,104 SF
Carport:None
1
2
2
1,104 SF
24
46'
23'
Concrete Slab
3:12
Stick Frame
CEILING HEIGHTS
10'
SV-5507 Austin Barndominium House Plan
Â
About this barndominium house plan:
- 2208 Heated Square Feet
- 2 Bedrooms
- 1 Bathroom
- Two Story
- Open concept
- 1104 Sq Ft Garage/Shop
Â
- Thoughtfully designed 1,104 sq ft living space located upstairs, offering comfort, privacy, and great views.
- Two cozy bedrooms that provide quiet retreats away from the garage and workshop below.
- Conveniently placed full bathroom for everyday ease and functionality.
- Smart two-story layout that separates living space above from work and storage space below.
- Massive 1,104 sq ft garage and workshop with heated floor on the lower level—ideal for vehicles, tools, projects, and serious hobby space.
Â
What's included in SV-5507:
Cover Page
Floor Plan
Roof Plan
Elevations
First Floor Electrical Plan
Second Floor Electrical Plan
Plumbing Plan
Hvac Plan
Roof Framing Plan
Foundation Plan
Â
For more barndominium floor plans, check out our complete collection of 2-bedroom barndominium floor plans.
Â
Need to make changes? Submit a modification request using the button that says Modify This Plan. We will get you a free price quote within 72 hours.
What's Typically Included
What's Typically Included
THE SPECIFC DETAILS OF WHAT'S INCLUDED ON THESE PLANS IS CONTAINED IN THE PRODUCT DESCRIPTION. PLEASE SCROLL UP AND YOU WILL FIND IT UNDER "WHAT'S INCLUDED"
Our house plan sets typically have the following details:
4 Elevations – Front, Back, Both Sides
Detailed Floor Plan Drawing
Electrical Plans with placements for HVAC
Plumbing Plans with Placements
Flooring Plan
Roof Plan
Foundation Plan
For more information on what's included and examples of what your plans will look like, go here -> https://barndominiumplans.com/pages/whats-included
Please Note: We work with many different draftspeople who work in many different ways. It should be noted that their plans may contain different details. THE SPECIFC DETAILS OF WHAT'S INCLUDED ON THESE PLANS IS CONTAINED IN THE PRODUCT DESCRIPTION. PLEASE SCROLL UP AND YOU WILL FIND IT UNDER "WHAT'S INCLUDED"
What's Not Included
What's Not Included
The following items are NOT included:
Architectural or Engineering Stamp. Our plans are engineering-ready! Can take them to a local engineer in your state.
Site Plan - We can provide this if needed for $300 additional.
Materials List - handled locally when required
Energy calculations - handled locally when required
Snow load calculations - handled locally when required
Delivery
Delivery
This plan is available as a digital product or printed + shipped.
If you select digital, the plan will be delivered to you via email as a PDF file, no matter what time it is.
If you select printed + shipped, your order will ship in 24x36 format within 1 business day of your order.
We ship from the midwest in order to serve the entire country within 3-5 business days!
Return policy
Return policy
All barndominium house plan purchases are FINAL. There are no exchanges or refunds due to the digital nature of the product. Please make sure that the plan you have selected is going to fit your needs.

Real Reviews, Real Experiences
How to Build Your Own Barndominium & 120+ House Plans
Just getting started on your build? Get the Barndominiums Made Easy Program.
- Choosing a selection results in a full page refresh.



