Couldn't load pickup availability
Barndominium Plans
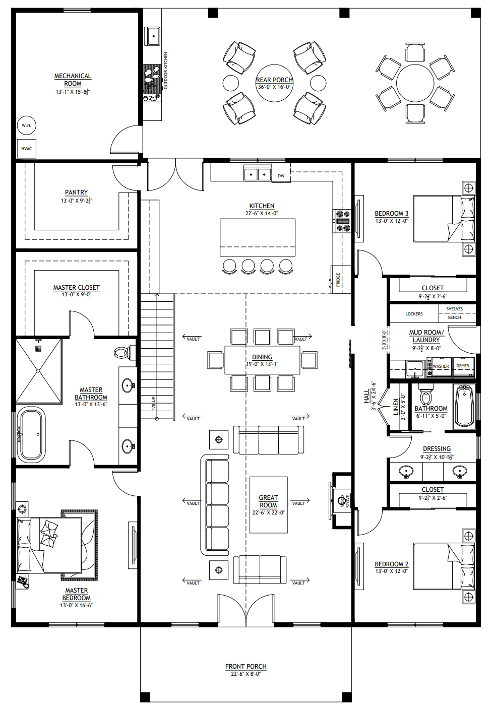
SV-5504 Azalea Barndominium House Plan
DETAILS
HEATED SQ FT
First Floor:
2,500 SF (plus 224 SF mechanical room)
Second Floor:334 SF
Total Heated Sq Ft:3,058 SF
UNHEATED SQ FT
756 SF (porches)
Carport:None
3
2
2
None
50'
66'
27'-4 ÂĽ"
Concrete Slab
07:12
Stick-Frame
CEILING HEIGHTS
10'
SV-5504 Azalea Barndominium House Plan
Looking for this plan, but a bit larger? Discover a similar floor plan here that's 2900 sq ft.
About this barndominium house plan:
- 2500 Heated square feet
- 50x50 living space dimension
- 3 Bedrooms
- 2 Bathrooms
- Loft
- Open concept
- Mechanical Room
- Mudroom
- Front and Rear Porch
- This 2500-square-foot haven boasts 3 bedrooms and 2 bathrooms, but it’s the heart of the home—the spacious great room with a wood stove, that steals the show.
- Ascend the spiral staircase to the loft—could be an office, reading nook or additional storage area.
- The rear porch features an outdoor kitchen, complete with a grill, sink, and seating area.
- The barndominium also includes a practical mudroom/ laundry area and a mechanical room.
What's included in SV-5504:
Cover Page
First Floor Plan
Second Floor Plan
Roof Plan
Front And Rear Elevation
Right And Left Elevation
First Floor Electrical Plan
Second Floor Electrical Plan
First Floor Plumbing Plan
First Floor Hvac Plan
Second Floor Hvac Plan
Roof Framing Plan
Foundation Plan
Foundation Detail
Interior Bearing Footing
C-Typical Column Detail
Wall Section
For more barndominium floor plans, check out our complete collection of 3-bedroom barndominium floor plans.
Need to make changes? Submit a modification request using the button that says Modify This Plan . We will get you a free price quote within 72 hours
What's Typically Included
What's Typically Included
THE SPECIFC DETAILS OF WHAT'S INCLUDED ON THESE PLANS IS CONTAINED IN THE PRODUCT DESCRIPTION. PLEASE SCROLL UP AND YOU WILL FIND IT UNDER "WHAT'S INCLUDED"
Our house plan sets typically have the following details:
4 Elevations – Front, Back, Both Sides
Detailed Floor Plan Drawing
Electrical Plans with placements for HVAC
Plumbing Plans with Placements
Flooring Plan
Roof Plan
Foundation Plan
For more information on what's included and examples of what your plans will look like, go here -> https://barndominiumplans.com/pages/whats-included
Please Note: We work with many different draftspeople who work in many different ways. It should be noted that their plans may contain different details. THE SPECIFC DETAILS OF WHAT'S INCLUDED ON THESE PLANS IS CONTAINED IN THE PRODUCT DESCRIPTION. PLEASE SCROLL UP AND YOU WILL FIND IT UNDER "WHAT'S INCLUDED"
What's Not Included
What's Not Included
The following items are NOT included:
Architectural or Engineering Stamp. Our plans are engineering-ready! Can take them to a local engineer in your state.
Site Plan - We can provide this if needed for $300 additional.
Materials List - handled locally when required
Energy calculations - handled locally when required
Snow load calculations - handled locally when required
Delivery
Delivery
This plan is available as a digital product or printed + shipped.
If you select digital, the plan will be delivered to you via email as a PDF file, no matter what time it is.
If you select printed + shipped, your order will ship in 24x36 format within 1 business day of your order.
We ship from the midwest in order to serve the entire country within 3-5 business days!
Return policy
Return policy
All barndominium house plan purchases are FINAL. There are no exchanges or refunds due to the digital nature of the product. Please make sure that the plan you have selected is going to fit your needs.
PDF (Single Build) $849.99
DETAILS
HEATED SQ FT
First Floor:
2,500 SF (plus 224 SF mechanical room)
Second Floor:334 SF
Total Heated Sq Ft:3,058 SF
UNHEATED SQ FT
756 SF (porches)
Carport:None
3
2
2
None
50'
66'
27'-4 ÂĽ"
Concrete Slab
07:12
Stick-Frame
CEILING HEIGHTS
10'
SV-5504 Azalea Barndominium House Plan
Looking for this plan, but a bit larger? Discover a similar floor plan here that's 2900 sq ft.
About this barndominium house plan:
- 2500 Heated square feet
- 50x50 living space dimension
- 3 Bedrooms
- 2 Bathrooms
- Loft
- Open concept
- Mechanical Room
- Mudroom
- Front and Rear Porch
- This 2500-square-foot haven boasts 3 bedrooms and 2 bathrooms, but it’s the heart of the home—the spacious great room with a wood stove, that steals the show.
- Ascend the spiral staircase to the loft—could be an office, reading nook or additional storage area.
- The rear porch features an outdoor kitchen, complete with a grill, sink, and seating area.
- The barndominium also includes a practical mudroom/ laundry area and a mechanical room.
What's included in SV-5504:
Cover Page
First Floor Plan
Second Floor Plan
Roof Plan
Front And Rear Elevation
Right And Left Elevation
First Floor Electrical Plan
Second Floor Electrical Plan
First Floor Plumbing Plan
First Floor Hvac Plan
Second Floor Hvac Plan
Roof Framing Plan
Foundation Plan
Foundation Detail
Interior Bearing Footing
C-Typical Column Detail
Wall Section
For more barndominium floor plans, check out our complete collection of 3-bedroom barndominium floor plans.
Need to make changes? Submit a modification request using the button that says Modify This Plan . We will get you a free price quote within 72 hours
What's Typically Included
What's Typically Included
THE SPECIFC DETAILS OF WHAT'S INCLUDED ON THESE PLANS IS CONTAINED IN THE PRODUCT DESCRIPTION. PLEASE SCROLL UP AND YOU WILL FIND IT UNDER "WHAT'S INCLUDED"
Our house plan sets typically have the following details:
4 Elevations – Front, Back, Both Sides
Detailed Floor Plan Drawing
Electrical Plans with placements for HVAC
Plumbing Plans with Placements
Flooring Plan
Roof Plan
Foundation Plan
For more information on what's included and examples of what your plans will look like, go here -> https://barndominiumplans.com/pages/whats-included
Please Note: We work with many different draftspeople who work in many different ways. It should be noted that their plans may contain different details. THE SPECIFC DETAILS OF WHAT'S INCLUDED ON THESE PLANS IS CONTAINED IN THE PRODUCT DESCRIPTION. PLEASE SCROLL UP AND YOU WILL FIND IT UNDER "WHAT'S INCLUDED"
What's Not Included
What's Not Included
The following items are NOT included:
Architectural or Engineering Stamp. Our plans are engineering-ready! Can take them to a local engineer in your state.
Site Plan - We can provide this if needed for $300 additional.
Materials List - handled locally when required
Energy calculations - handled locally when required
Snow load calculations - handled locally when required
Delivery
Delivery
This plan is available as a digital product or printed + shipped.
If you select digital, the plan will be delivered to you via email as a PDF file, no matter what time it is.
If you select printed + shipped, your order will ship in 24x36 format within 1 business day of your order.
We ship from the midwest in order to serve the entire country within 3-5 business days!
Return policy
Return policy
All barndominium house plan purchases are FINAL. There are no exchanges or refunds due to the digital nature of the product. Please make sure that the plan you have selected is going to fit your needs.







Real Reviews, Real Experiences
How to Build Your Own Barndominium & 120+ House Plans

Just getting started on your build? Get the Barndominiums Made Easy Program.
- Choosing a selection results in a full page refresh.