Couldn't load pickup availability
Barndominium Plans
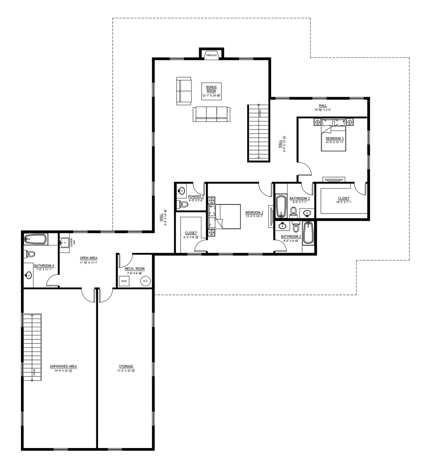
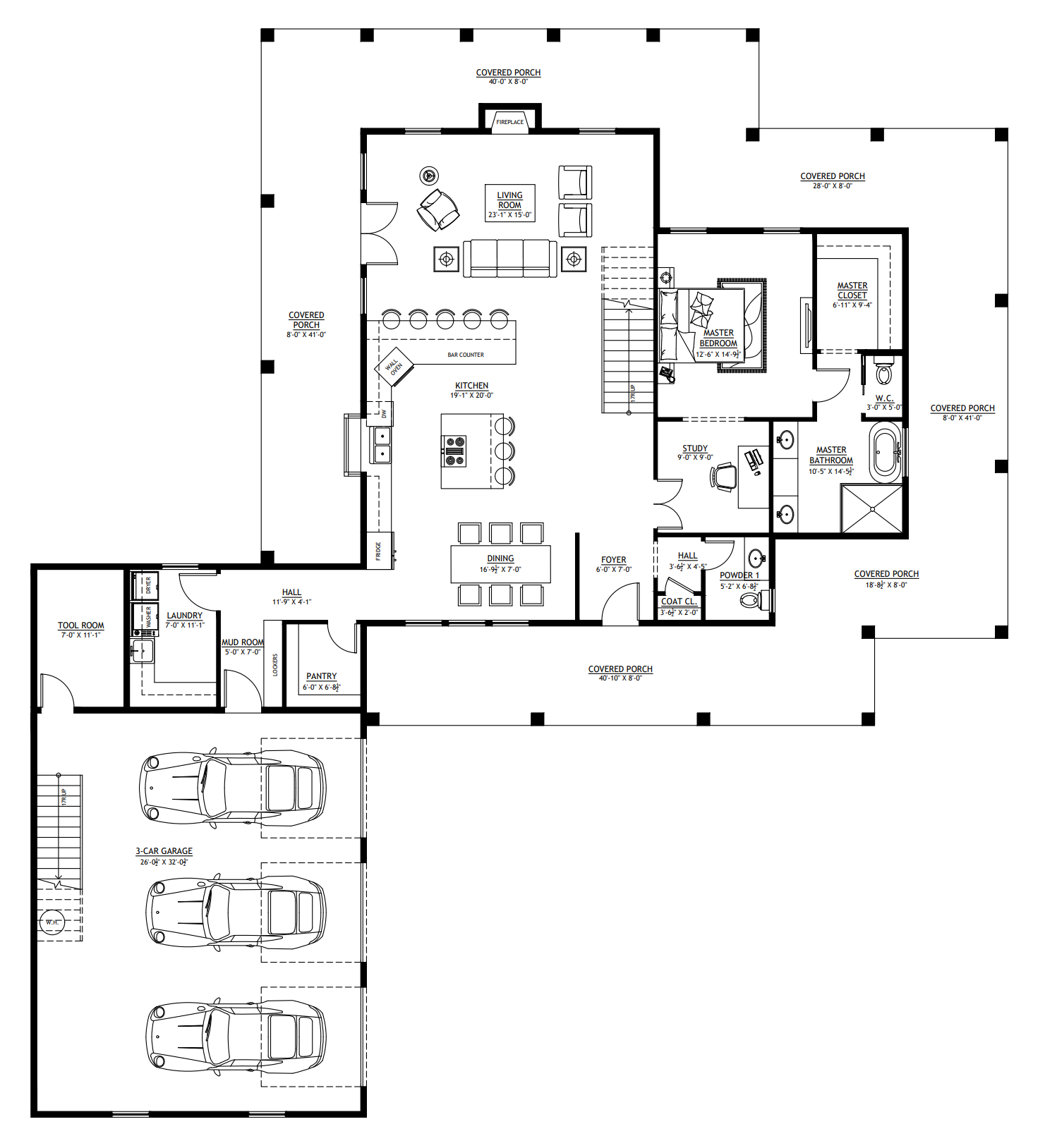
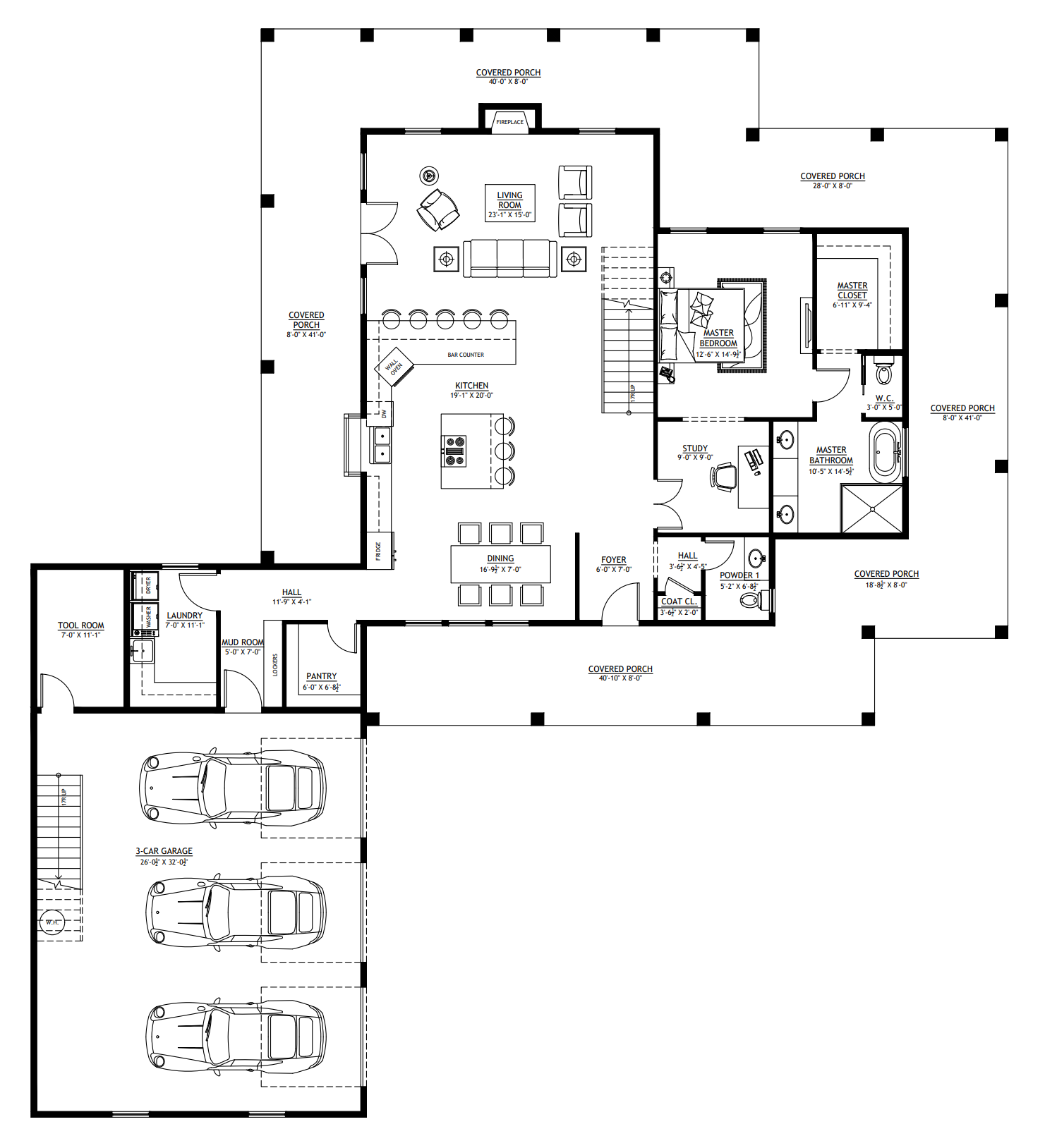
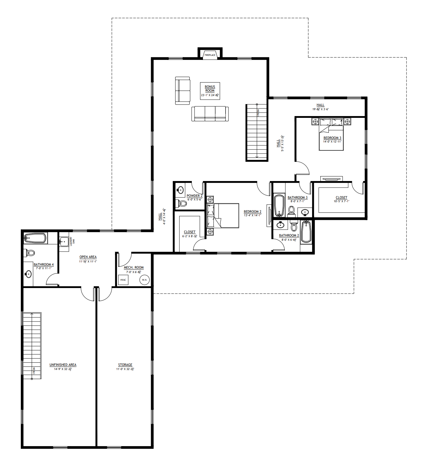
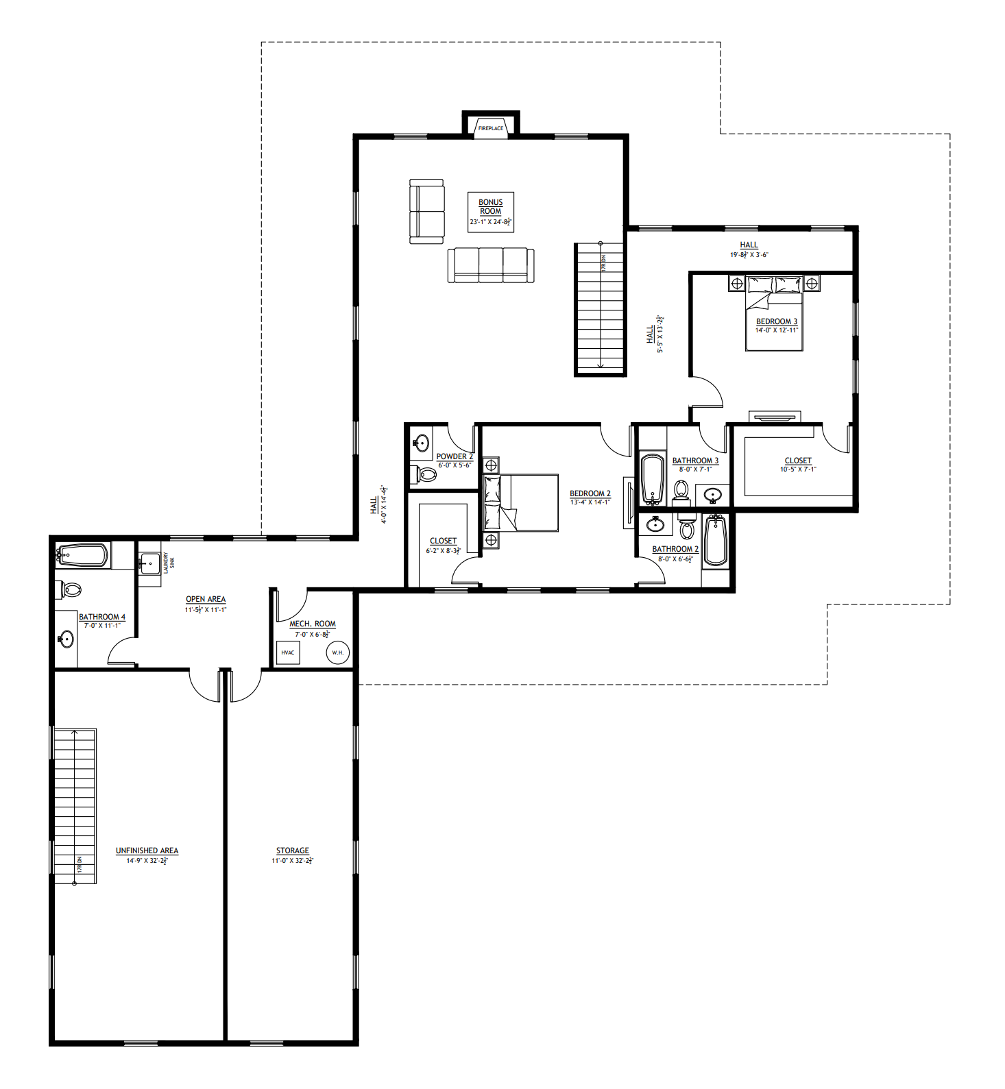
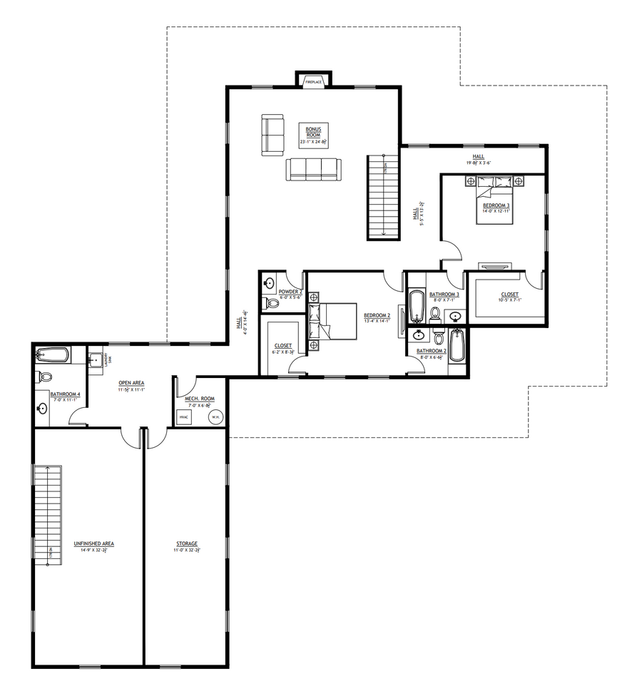
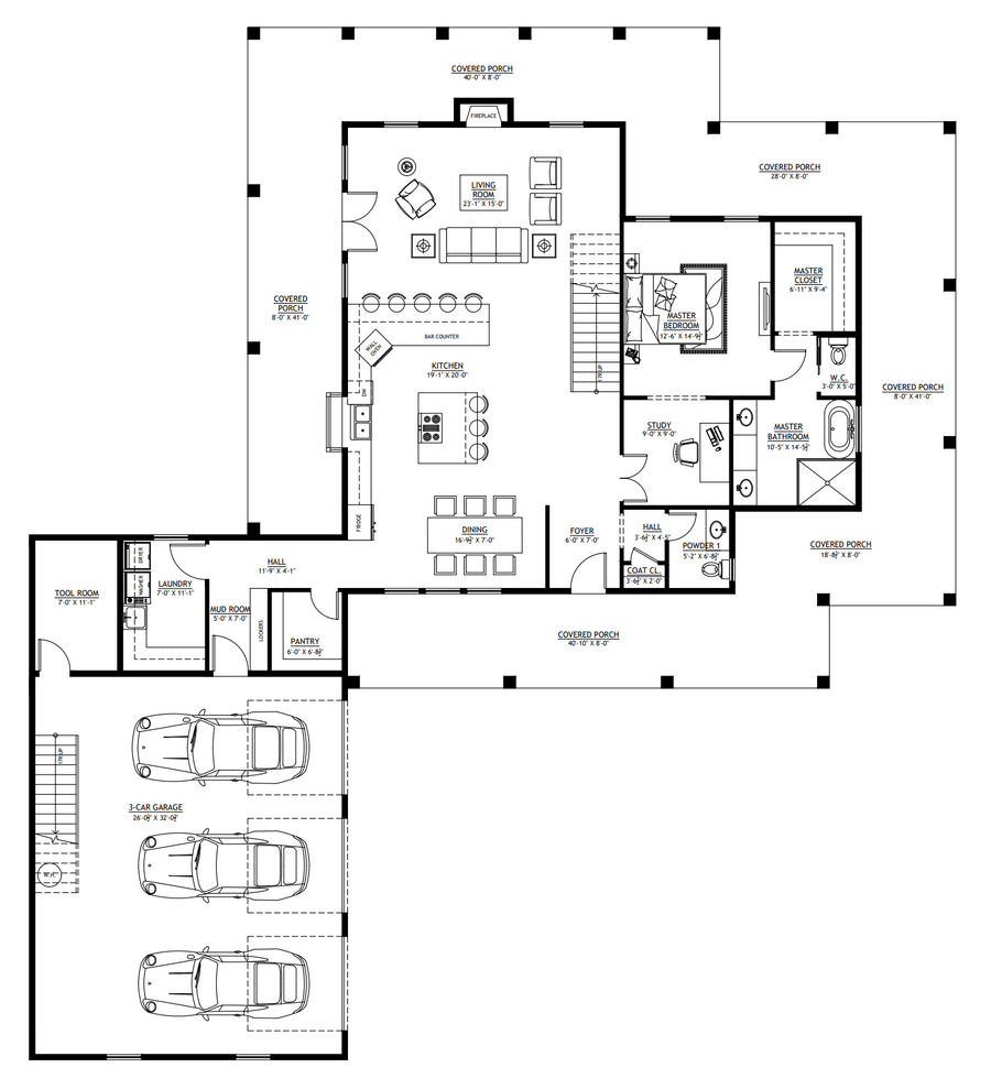
SV-30020 Cooper Custom Home Plan
DETAILS
HEATED SQ FT
First Floor:
1,846 SF
Second Floor:2,225 SF
Total Heated Sq Ft:4,071 SF
UNHEATED SQ FT
Garage 876 SF, Porch 1,492 SF, Second Floor Unfinished Area 497 SF = 2,865 SF
Carport:None
3
4
2
876 SF
78'
87'-6"
31'-3 3/4"
Crawl Space
8:12
Stick Frame
CEILING HEIGHTS
9'
SV-30020 Cooper Custom Home Plan
About this custom home plan:
- 4071 Heated Square Feet
- 3 Bedrooms
- 4.2 Bathrooms
- Two Story
- Open concept
- Study
- Foyer
- Mudroom
- Bonus room
- Storage room
- Mech room
- Tool room
- Wraparound porch
- 876 Sq Ft Garage
- A spacious 4,071 sq ft two-story layout designed for luxury living, generous gathering areas, and plenty of personal space.
- Three well-appointed bedrooms, including a private master suite on the main floor and two bedrooms upstairs—each with its own full bathroom for comfort and convenience.
- Four full bathrooms plus two half baths provide exceptional convenience for family, guests, and everyday living.
- A secluded study that leads to the master bedroom—perfect for a quiet office, reading retreat, or private workspace.
- The second floor includes a versatile bonus room, dedicated storage room, and a mechanical room to keep the home organized and running smoothly.
- A charming wraparound porch offering beautiful outdoor living, shade, and the perfect setting for relaxing or entertaining.
- A spacious 876 sq ft three-car garage complete with a dedicated tool room—ideal for storage, projects, and hobby space.
What's included in SV-30020:
Cover Page
First Floor Plan
Second Floor Plan
Roof Plan
Front & Rear Elevation
Right & Left Elevation
First Floor Electrical Plan
Second Floor Electrical Plan
First Floor Plumbing Plan
Second Floor Plumbing Plan
First Floor HVAC Plan
Second Floor HVAC Plan
Roof Framing Plan
First Floor Wall Framing Plan
Second Floor Wall Framing Plan
First Floor Ceiling Joist Plan
Second Floor Ceiling Joist Plan
Foundation Plan
Wall Section
Section A-A and Section B-B
Typical Framing Details-1
Typical Framing Details-2
Typical Framing Details-3
For more barndominium floor plans, check out our complete collection of 4-bedroom barndominium floor plans.
Need to make changes? Submit a modification request using the button that says Modify This Plan. We will get you a free price quote within 72 hours.
What's Typically Included
What's Typically Included
THE SPECIFC DETAILS OF WHAT'S INCLUDED ON THESE PLANS IS CONTAINED IN THE PRODUCT DESCRIPTION. PLEASE SCROLL UP AND YOU WILL FIND IT UNDER "WHAT'S INCLUDED"
Our house plan sets typically have the following details:
4 Elevations – Front, Back, Both Sides
Detailed Floor Plan Drawing
Electrical Plans with placements for HVAC
Plumbing Plans with Placements
Flooring Plan
Roof Plan
Foundation Plan
For more information on what's included and examples of what your plans will look like, go here -> https://barndominiumplans.com/pages/whats-included
Please Note: We work with many different draftspeople who work in many different ways. It should be noted that their plans may contain different details. THE SPECIFC DETAILS OF WHAT'S INCLUDED ON THESE PLANS IS CONTAINED IN THE PRODUCT DESCRIPTION. PLEASE SCROLL UP AND YOU WILL FIND IT UNDER "WHAT'S INCLUDED"
What's Not Included
What's Not Included
The following items are NOT included:
Architectural or Engineering Stamp. Our plans are engineering-ready! Can take them to a local engineer in your state.
Site Plan - We can provide this if needed for $300 additional.
Materials List - handled locally when required
Energy calculations - handled locally when required
Snow load calculations - handled locally when required
Delivery
Delivery
This plan is available as a digital product or printed + shipped.
If you select digital, the plan will be delivered to you via email as a PDF file, no matter what time it is.
If you select printed + shipped, your order will ship in 24x36 format within 1 business day of your order.
We ship from the midwest in order to serve the entire country within 3-5 business days!
Return policy
Return policy
All barndominium house plan purchases are FINAL. There are no exchanges or refunds due to the digital nature of the product. Please make sure that the plan you have selected is going to fit your needs.
PDF (Single Build) $1,499.99
DETAILS
HEATED SQ FT
First Floor:
1,846 SF
Second Floor:2,225 SF
Total Heated Sq Ft:4,071 SF
UNHEATED SQ FT
Garage 876 SF, Porch 1,492 SF, Second Floor Unfinished Area 497 SF = 2,865 SF
Carport:None
3
4
2
876 SF
78'
87'-6"
31'-3 3/4"
Crawl Space
8:12
Stick Frame
CEILING HEIGHTS
9'
SV-30020 Cooper Custom Home Plan
About this custom home plan:
- 4071 Heated Square Feet
- 3 Bedrooms
- 4.2 Bathrooms
- Two Story
- Open concept
- Study
- Foyer
- Mudroom
- Bonus room
- Storage room
- Mech room
- Tool room
- Wraparound porch
- 876 Sq Ft Garage
- A spacious 4,071 sq ft two-story layout designed for luxury living, generous gathering areas, and plenty of personal space.
- Three well-appointed bedrooms, including a private master suite on the main floor and two bedrooms upstairs—each with its own full bathroom for comfort and convenience.
- Four full bathrooms plus two half baths provide exceptional convenience for family, guests, and everyday living.
- A secluded study that leads to the master bedroom—perfect for a quiet office, reading retreat, or private workspace.
- The second floor includes a versatile bonus room, dedicated storage room, and a mechanical room to keep the home organized and running smoothly.
- A charming wraparound porch offering beautiful outdoor living, shade, and the perfect setting for relaxing or entertaining.
- A spacious 876 sq ft three-car garage complete with a dedicated tool room—ideal for storage, projects, and hobby space.
What's included in SV-30020:
Cover Page
First Floor Plan
Second Floor Plan
Roof Plan
Front & Rear Elevation
Right & Left Elevation
First Floor Electrical Plan
Second Floor Electrical Plan
First Floor Plumbing Plan
Second Floor Plumbing Plan
First Floor HVAC Plan
Second Floor HVAC Plan
Roof Framing Plan
First Floor Wall Framing Plan
Second Floor Wall Framing Plan
First Floor Ceiling Joist Plan
Second Floor Ceiling Joist Plan
Foundation Plan
Wall Section
Section A-A and Section B-B
Typical Framing Details-1
Typical Framing Details-2
Typical Framing Details-3
For more barndominium floor plans, check out our complete collection of 4-bedroom barndominium floor plans.
Need to make changes? Submit a modification request using the button that says Modify This Plan. We will get you a free price quote within 72 hours.
What's Typically Included
What's Typically Included
THE SPECIFC DETAILS OF WHAT'S INCLUDED ON THESE PLANS IS CONTAINED IN THE PRODUCT DESCRIPTION. PLEASE SCROLL UP AND YOU WILL FIND IT UNDER "WHAT'S INCLUDED"
Our house plan sets typically have the following details:
4 Elevations – Front, Back, Both Sides
Detailed Floor Plan Drawing
Electrical Plans with placements for HVAC
Plumbing Plans with Placements
Flooring Plan
Roof Plan
Foundation Plan
For more information on what's included and examples of what your plans will look like, go here -> https://barndominiumplans.com/pages/whats-included
Please Note: We work with many different draftspeople who work in many different ways. It should be noted that their plans may contain different details. THE SPECIFC DETAILS OF WHAT'S INCLUDED ON THESE PLANS IS CONTAINED IN THE PRODUCT DESCRIPTION. PLEASE SCROLL UP AND YOU WILL FIND IT UNDER "WHAT'S INCLUDED"
What's Not Included
What's Not Included
The following items are NOT included:
Architectural or Engineering Stamp. Our plans are engineering-ready! Can take them to a local engineer in your state.
Site Plan - We can provide this if needed for $300 additional.
Materials List - handled locally when required
Energy calculations - handled locally when required
Snow load calculations - handled locally when required
Delivery
Delivery
This plan is available as a digital product or printed + shipped.
If you select digital, the plan will be delivered to you via email as a PDF file, no matter what time it is.
If you select printed + shipped, your order will ship in 24x36 format within 1 business day of your order.
We ship from the midwest in order to serve the entire country within 3-5 business days!
Return policy
Return policy
All barndominium house plan purchases are FINAL. There are no exchanges or refunds due to the digital nature of the product. Please make sure that the plan you have selected is going to fit your needs.

Real Reviews, Real Experiences
How to Build Your Own Barndominium & 120+ House Plans
Just getting started on your build? Get the Barndominiums Made Easy Program.
- Choosing a selection results in a full page refresh.



