Couldn't load pickup availability
Barndominium Plans
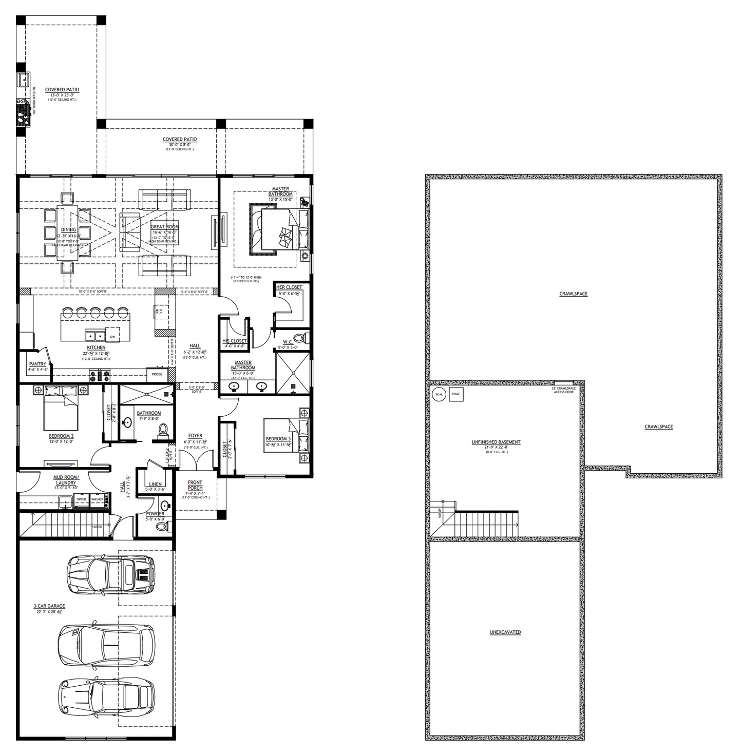
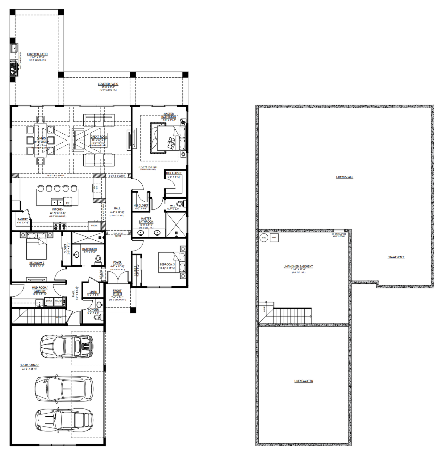
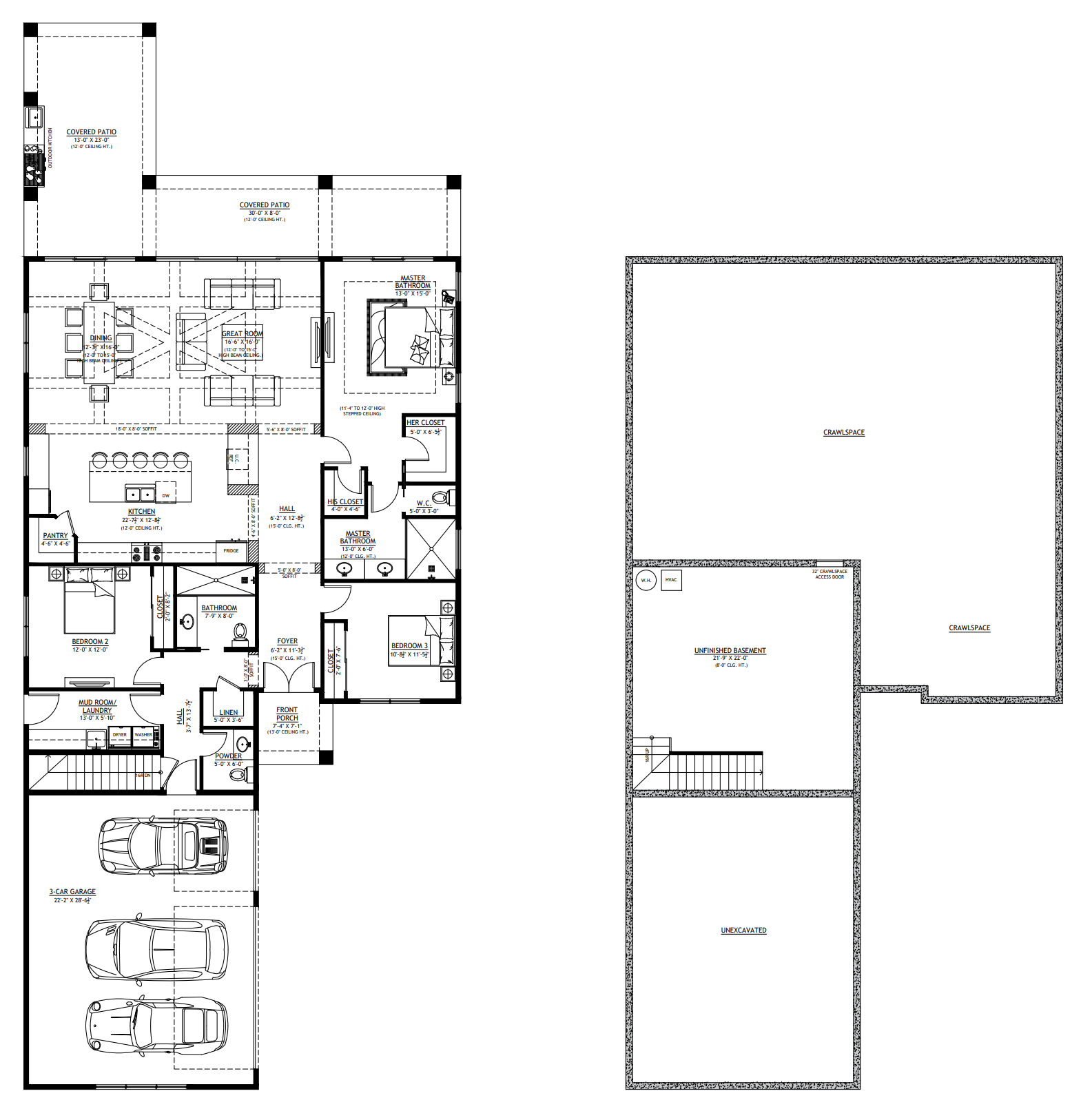
SV-30018 Archer Custom Home Plan
DETAILS
HEATED SQ FT
First Floor:
2,093 SF
Second Floor:None
Total Heated Sq Ft:2,093 SF
UNHEATED SQ FT
Garage 669 SF, Basement 538 SF, Front Porch 50 SF, Patio, 539 SF = TOTAL 1,796 SF
Carport:None
3
2
1
669 SF
43'
105'
21'-6"
Crawl Space and Basement
4:12
Stick Frame
CEILING HEIGHTS
10'
SV-30018 Archer Custom Home Plan
About this custom home plan:
- 2093 Heated Square Feet
- 3 Bedrooms
- 2.1 Bathrooms
- Single Story
- Open concept
- Utility room
- Foyer
- Front porch
- Patio with Outdoor Kitchen
- Mudroom/Laundry
- Unfinished Basement
- Crawlspace
- 669 Sq Ft Garage
- A well-designed 2,093 sq ft layout that offers spacious, comfortable living with a smooth single-story flow.
- Three inviting bedrooms and two full bathrooms plus a convenient half bath provide comfort and flexibility for everyday life.
- Beautiful patio featuring a built-in outdoor kitchen—perfect for grilling, entertaining, and enjoying outdoor living year-round.
- Practical mudroom-laundry combo that keeps your home tidy and daily routines running smoothly.
- Spacious unfinished basement offering endless possibilities—future expansion, storage, or custom projects.
- Functional crawlspace that adds simple maintenance access and extra storage flexibility.
- Generous 669 sq ft three-car garage with plenty of room for vehicles, tools, and storage.
What's included in SV-30018:
Cover Page
Main Floor Plan
Basement Floor Plan
Roof Plan
Exterior Elevations
Interior Elevations
Main Floor Electrical Plan
Basement Electrical Plan
Main Floor Plumbing Plan
Basement Plumbing Plan
Main Floor HVAC Plan
Roof Framing Plan
Main Floor Wall Framing Plan
Main Floor Ceiling Joist Plan
Foundation Plan
Wall Section (Basement)
Wall Section (Crawlspace)
Section A-A and Section B-B
Typical Framing Details-1
Typical Framing Details-2
Typical Framing Details-3
For more barndominium floor plans, check out our complete collection of 3-bedroom barndominium floor plans.
Need to make changes? Submit a modification request using the button that says Modify This Plan. We will get you a free price quote within 72 hours.
What's Typically Included
What's Typically Included
THE SPECIFC DETAILS OF WHAT'S INCLUDED ON THESE PLANS IS CONTAINED IN THE PRODUCT DESCRIPTION. PLEASE SCROLL UP AND YOU WILL FIND IT UNDER "WHAT'S INCLUDED"
Our house plan sets typically have the following details:
4 Elevations – Front, Back, Both Sides
Detailed Floor Plan Drawing
Electrical Plans with placements for HVAC
Plumbing Plans with Placements
Flooring Plan
Roof Plan
Foundation Plan
For more information on what's included and examples of what your plans will look like, go here -> https://barndominiumplans.com/pages/whats-included
Please Note: We work with many different draftspeople who work in many different ways. It should be noted that their plans may contain different details. THE SPECIFC DETAILS OF WHAT'S INCLUDED ON THESE PLANS IS CONTAINED IN THE PRODUCT DESCRIPTION. PLEASE SCROLL UP AND YOU WILL FIND IT UNDER "WHAT'S INCLUDED"
What's Not Included
What's Not Included
The following items are NOT included:
Architectural or Engineering Stamp. Our plans are engineering-ready! Can take them to a local engineer in your state.
Site Plan - We can provide this if needed for $300 additional.
Materials List - handled locally when required
Energy calculations - handled locally when required
Snow load calculations - handled locally when required
Delivery
Delivery
This plan is available as a digital product or printed + shipped.
If you select digital, the plan will be delivered to you via email as a PDF file, no matter what time it is.
If you select printed + shipped, your order will ship in 24x36 format within 1 business day of your order.
We ship from the midwest in order to serve the entire country within 3-5 business days!
Return policy
Return policy
All barndominium house plan purchases are FINAL. There are no exchanges or refunds due to the digital nature of the product. Please make sure that the plan you have selected is going to fit your needs.
PDF (Single Build) $849.99
DETAILS
HEATED SQ FT
First Floor:
2,093 SF
Second Floor:None
Total Heated Sq Ft:2,093 SF
UNHEATED SQ FT
Garage 669 SF, Basement 538 SF, Front Porch 50 SF, Patio, 539 SF = TOTAL 1,796 SF
Carport:None
3
2
1
669 SF
43'
105'
21'-6"
Crawl Space and Basement
4:12
Stick Frame
CEILING HEIGHTS
10'
SV-30018 Archer Custom Home Plan
About this custom home plan:
- 2093 Heated Square Feet
- 3 Bedrooms
- 2.1 Bathrooms
- Single Story
- Open concept
- Utility room
- Foyer
- Front porch
- Patio with Outdoor Kitchen
- Mudroom/Laundry
- Unfinished Basement
- Crawlspace
- 669 Sq Ft Garage
- A well-designed 2,093 sq ft layout that offers spacious, comfortable living with a smooth single-story flow.
- Three inviting bedrooms and two full bathrooms plus a convenient half bath provide comfort and flexibility for everyday life.
- Beautiful patio featuring a built-in outdoor kitchen—perfect for grilling, entertaining, and enjoying outdoor living year-round.
- Practical mudroom-laundry combo that keeps your home tidy and daily routines running smoothly.
- Spacious unfinished basement offering endless possibilities—future expansion, storage, or custom projects.
- Functional crawlspace that adds simple maintenance access and extra storage flexibility.
- Generous 669 sq ft three-car garage with plenty of room for vehicles, tools, and storage.
What's included in SV-30018:
Cover Page
Main Floor Plan
Basement Floor Plan
Roof Plan
Exterior Elevations
Interior Elevations
Main Floor Electrical Plan
Basement Electrical Plan
Main Floor Plumbing Plan
Basement Plumbing Plan
Main Floor HVAC Plan
Roof Framing Plan
Main Floor Wall Framing Plan
Main Floor Ceiling Joist Plan
Foundation Plan
Wall Section (Basement)
Wall Section (Crawlspace)
Section A-A and Section B-B
Typical Framing Details-1
Typical Framing Details-2
Typical Framing Details-3
For more barndominium floor plans, check out our complete collection of 3-bedroom barndominium floor plans.
Need to make changes? Submit a modification request using the button that says Modify This Plan. We will get you a free price quote within 72 hours.
What's Typically Included
What's Typically Included
THE SPECIFC DETAILS OF WHAT'S INCLUDED ON THESE PLANS IS CONTAINED IN THE PRODUCT DESCRIPTION. PLEASE SCROLL UP AND YOU WILL FIND IT UNDER "WHAT'S INCLUDED"
Our house plan sets typically have the following details:
4 Elevations – Front, Back, Both Sides
Detailed Floor Plan Drawing
Electrical Plans with placements for HVAC
Plumbing Plans with Placements
Flooring Plan
Roof Plan
Foundation Plan
For more information on what's included and examples of what your plans will look like, go here -> https://barndominiumplans.com/pages/whats-included
Please Note: We work with many different draftspeople who work in many different ways. It should be noted that their plans may contain different details. THE SPECIFC DETAILS OF WHAT'S INCLUDED ON THESE PLANS IS CONTAINED IN THE PRODUCT DESCRIPTION. PLEASE SCROLL UP AND YOU WILL FIND IT UNDER "WHAT'S INCLUDED"
What's Not Included
What's Not Included
The following items are NOT included:
Architectural or Engineering Stamp. Our plans are engineering-ready! Can take them to a local engineer in your state.
Site Plan - We can provide this if needed for $300 additional.
Materials List - handled locally when required
Energy calculations - handled locally when required
Snow load calculations - handled locally when required
Delivery
Delivery
This plan is available as a digital product or printed + shipped.
If you select digital, the plan will be delivered to you via email as a PDF file, no matter what time it is.
If you select printed + shipped, your order will ship in 24x36 format within 1 business day of your order.
We ship from the midwest in order to serve the entire country within 3-5 business days!
Return policy
Return policy
All barndominium house plan purchases are FINAL. There are no exchanges or refunds due to the digital nature of the product. Please make sure that the plan you have selected is going to fit your needs.

Real Reviews, Real Experiences
How to Build Your Own Barndominium & 120+ House Plans
Just getting started on your build? Get the Barndominiums Made Easy Program.
- Choosing a selection results in a full page refresh.



