Couldn't load pickup availability
Barndominium Plans
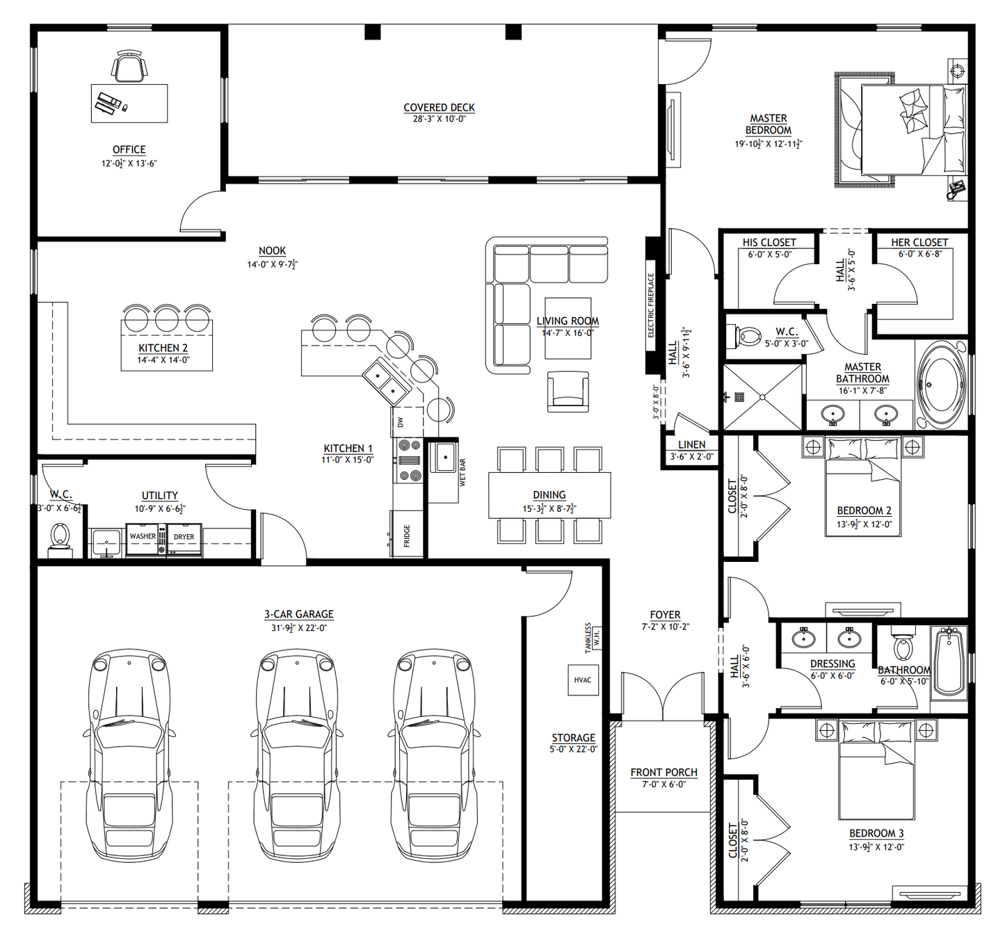
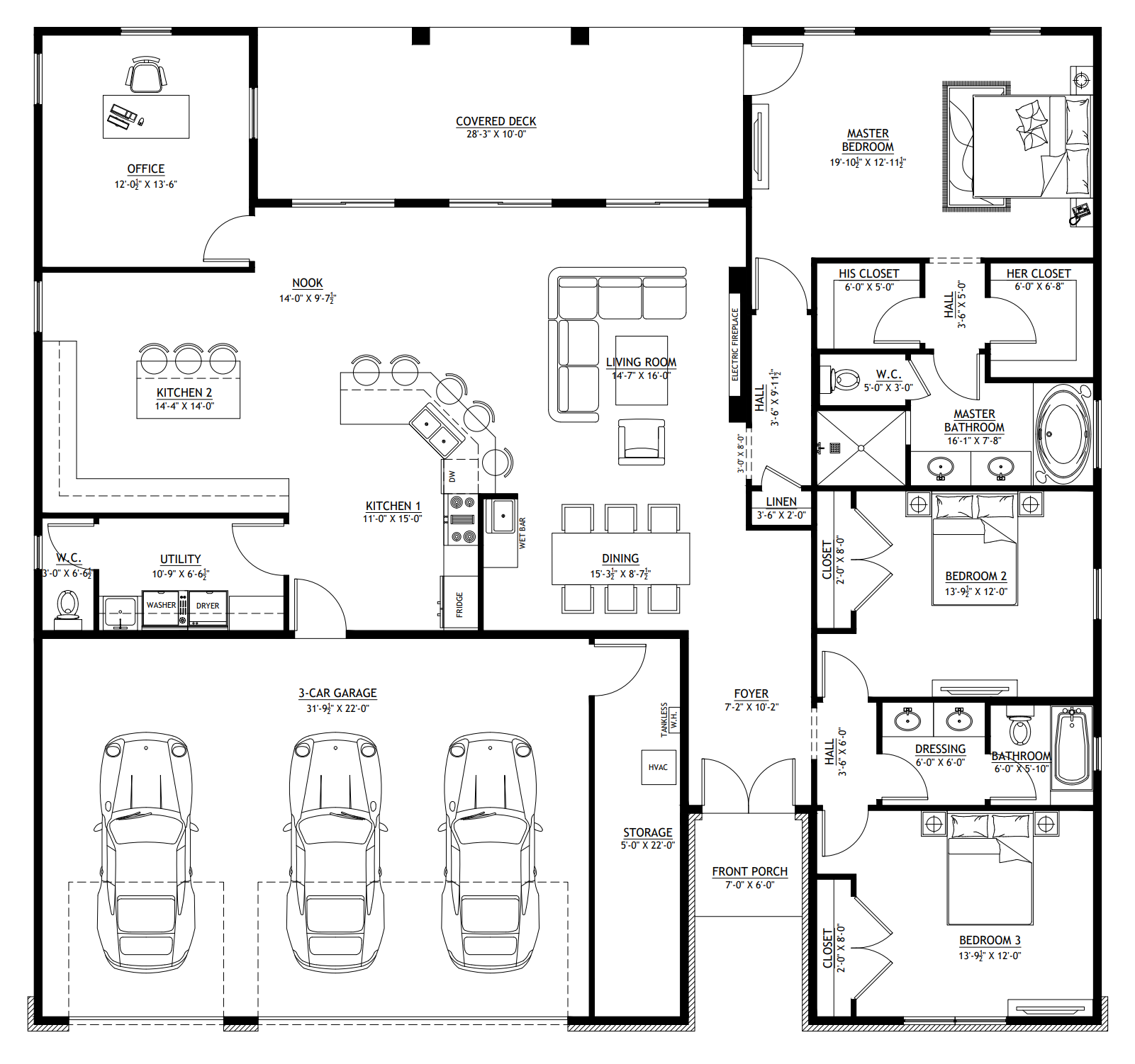
SV-30017 Jake Custom Home Plan
DETAILS
HEATED SQ FT
First Floor:
2,357 SF
Second Floor:None
Total Heated Sq Ft:2,357 SF
UNHEATED SQ FT
Garage 871 SF, Porch 325 SF = TOTAL 1,196 SF
Carport:None
3
2
1
871 SF
62'
58'
17'-7 5/8"
Concrete Slab
3:12
Stick Frame
CEILING HEIGHTS
9'
SV-30017 Jake Custom Home Plan
Â
About this custom plan:
- 2357 Heated Square Feet
- 3 Bedrooms
- 2.1 Bathrooms
- Single Story
- Open concept
- Utility room
- Office
- Foyer
- Front & rear porch
- Garage Storage
- 871 Sq Ft Garage
Â
- A spacious 2,357 sq ft layout designed for comfortable living with three inviting bedrooms paired with two full bathrooms and a handy half bath for everyday ease.
- Practical utility room complete with its own half bath—perfect for chores, cleanup, and added convenience.
- Dedicated office space ideal for working from home, studying, or managing day-to-day tasks.
- Welcoming foyer that sets the tone for the home’s bright, open design.
- An 871 sq ft garage featuring built-in storage space, giving you room for vehicles, tools, and organization.
Â
What's included in SV-30017:
Cover Page
Floor Plan
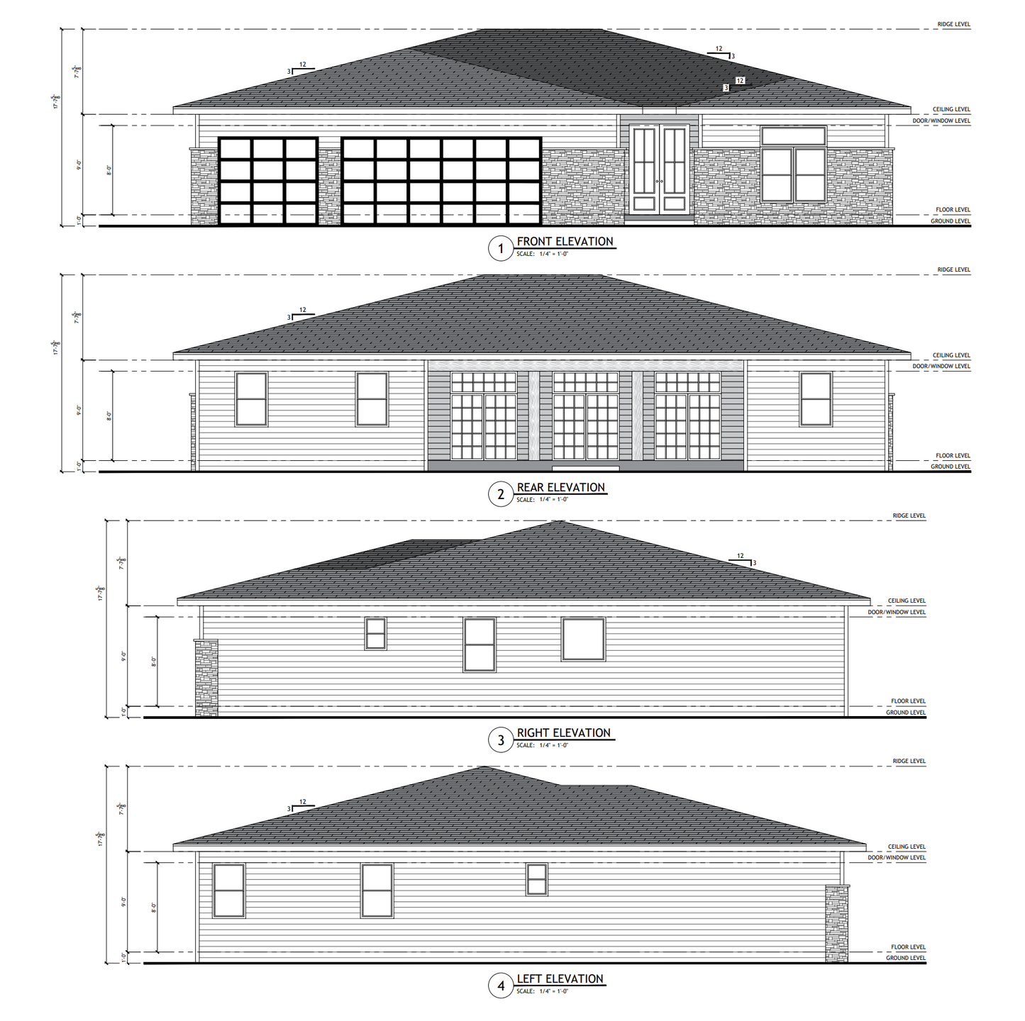
Roof Plan
Exterior Elevations
Interior Elevations
Electrical Plan
Plumbing Plan
HVAC Plan
Roof Framing Plan
Wall Framing Plan
Ceiling Joist Plan
Foundation Plan
Foundation Detail
Interior Bearing Footing
C-Typical Column Detail
Wall Section
Section A-A and Section B-B
Typical Framing Details-1
Typical Framing Details-2
Typical Framing Details-3
Â
Â
For more barndominium floor plans, check out our complete collection of 3-bedroom barndominium floor plans.
Â
Need to make changes? Submit a modification request using the button that says Modify This Plan. We will get you a free price quote within 72 hours.
What's Typically Included
What's Typically Included
THE SPECIFC DETAILS OF WHAT'S INCLUDED ON THESE PLANS IS CONTAINED IN THE PRODUCT DESCRIPTION. PLEASE SCROLL UP AND YOU WILL FIND IT UNDER "WHAT'S INCLUDED"
Our house plan sets typically have the following details:
4 Elevations – Front, Back, Both Sides
Detailed Floor Plan Drawing
Electrical Plans with placements for HVAC
Plumbing Plans with Placements
Flooring Plan
Roof Plan
Foundation Plan
For more information on what's included and examples of what your plans will look like, go here -> https://barndominiumplans.com/pages/whats-included
Please Note: We work with many different draftspeople who work in many different ways. It should be noted that their plans may contain different details. THE SPECIFC DETAILS OF WHAT'S INCLUDED ON THESE PLANS IS CONTAINED IN THE PRODUCT DESCRIPTION. PLEASE SCROLL UP AND YOU WILL FIND IT UNDER "WHAT'S INCLUDED"
What's Not Included
What's Not Included
The following items are NOT included:
Architectural or Engineering Stamp. Our plans are engineering-ready! Can take them to a local engineer in your state.
Site Plan - We can provide this if needed for $300 additional.
Materials List - handled locally when required
Energy calculations - handled locally when required
Snow load calculations - handled locally when required
Delivery
Delivery
This plan is available as a digital product or printed + shipped.
If you select digital, the plan will be delivered to you via email as a PDF file, no matter what time it is.
If you select printed + shipped, your order will ship in 24x36 format within 1 business day of your order.
We ship from the midwest in order to serve the entire country within 3-5 business days!
Return policy
Return policy
All barndominium house plan purchases are FINAL. There are no exchanges or refunds due to the digital nature of the product. Please make sure that the plan you have selected is going to fit your needs.
PDF (Single Build) $849.99
DETAILS
HEATED SQ FT
First Floor:
2,357 SF
Second Floor:None
Total Heated Sq Ft:2,357 SF
UNHEATED SQ FT
Garage 871 SF, Porch 325 SF = TOTAL 1,196 SF
Carport:None
3
2
1
871 SF
62'
58'
17'-7 5/8"
Concrete Slab
3:12
Stick Frame
CEILING HEIGHTS
9'
SV-30017 Jake Custom Home Plan
Â
About this custom plan:
- 2357 Heated Square Feet
- 3 Bedrooms
- 2.1 Bathrooms
- Single Story
- Open concept
- Utility room
- Office
- Foyer
- Front & rear porch
- Garage Storage
- 871 Sq Ft Garage
Â
- A spacious 2,357 sq ft layout designed for comfortable living with three inviting bedrooms paired with two full bathrooms and a handy half bath for everyday ease.
- Practical utility room complete with its own half bath—perfect for chores, cleanup, and added convenience.
- Dedicated office space ideal for working from home, studying, or managing day-to-day tasks.
- Welcoming foyer that sets the tone for the home’s bright, open design.
- An 871 sq ft garage featuring built-in storage space, giving you room for vehicles, tools, and organization.
Â
What's included in SV-30017:
Cover Page
Floor Plan
Roof Plan
Exterior Elevations
Interior Elevations
Electrical Plan
Plumbing Plan
HVAC Plan
Roof Framing Plan
Wall Framing Plan
Ceiling Joist Plan
Foundation Plan
Foundation Detail
Interior Bearing Footing
C-Typical Column Detail
Wall Section
Section A-A and Section B-B
Typical Framing Details-1
Typical Framing Details-2
Typical Framing Details-3
Â
Â
For more barndominium floor plans, check out our complete collection of 3-bedroom barndominium floor plans.
Â
Need to make changes? Submit a modification request using the button that says Modify This Plan. We will get you a free price quote within 72 hours.
What's Typically Included
What's Typically Included
THE SPECIFC DETAILS OF WHAT'S INCLUDED ON THESE PLANS IS CONTAINED IN THE PRODUCT DESCRIPTION. PLEASE SCROLL UP AND YOU WILL FIND IT UNDER "WHAT'S INCLUDED"
Our house plan sets typically have the following details:
4 Elevations – Front, Back, Both Sides
Detailed Floor Plan Drawing
Electrical Plans with placements for HVAC
Plumbing Plans with Placements
Flooring Plan
Roof Plan
Foundation Plan
For more information on what's included and examples of what your plans will look like, go here -> https://barndominiumplans.com/pages/whats-included
Please Note: We work with many different draftspeople who work in many different ways. It should be noted that their plans may contain different details. THE SPECIFC DETAILS OF WHAT'S INCLUDED ON THESE PLANS IS CONTAINED IN THE PRODUCT DESCRIPTION. PLEASE SCROLL UP AND YOU WILL FIND IT UNDER "WHAT'S INCLUDED"
What's Not Included
What's Not Included
The following items are NOT included:
Architectural or Engineering Stamp. Our plans are engineering-ready! Can take them to a local engineer in your state.
Site Plan - We can provide this if needed for $300 additional.
Materials List - handled locally when required
Energy calculations - handled locally when required
Snow load calculations - handled locally when required
Delivery
Delivery
This plan is available as a digital product or printed + shipped.
If you select digital, the plan will be delivered to you via email as a PDF file, no matter what time it is.
If you select printed + shipped, your order will ship in 24x36 format within 1 business day of your order.
We ship from the midwest in order to serve the entire country within 3-5 business days!
Return policy
Return policy
All barndominium house plan purchases are FINAL. There are no exchanges or refunds due to the digital nature of the product. Please make sure that the plan you have selected is going to fit your needs.

Real Reviews, Real Experiences
How to Build Your Own Barndominium & 120+ House Plans
Just getting started on your build? Get the Barndominiums Made Easy Program.
- Choosing a selection results in a full page refresh.



