Couldn't load pickup availability
Barndominium Plans
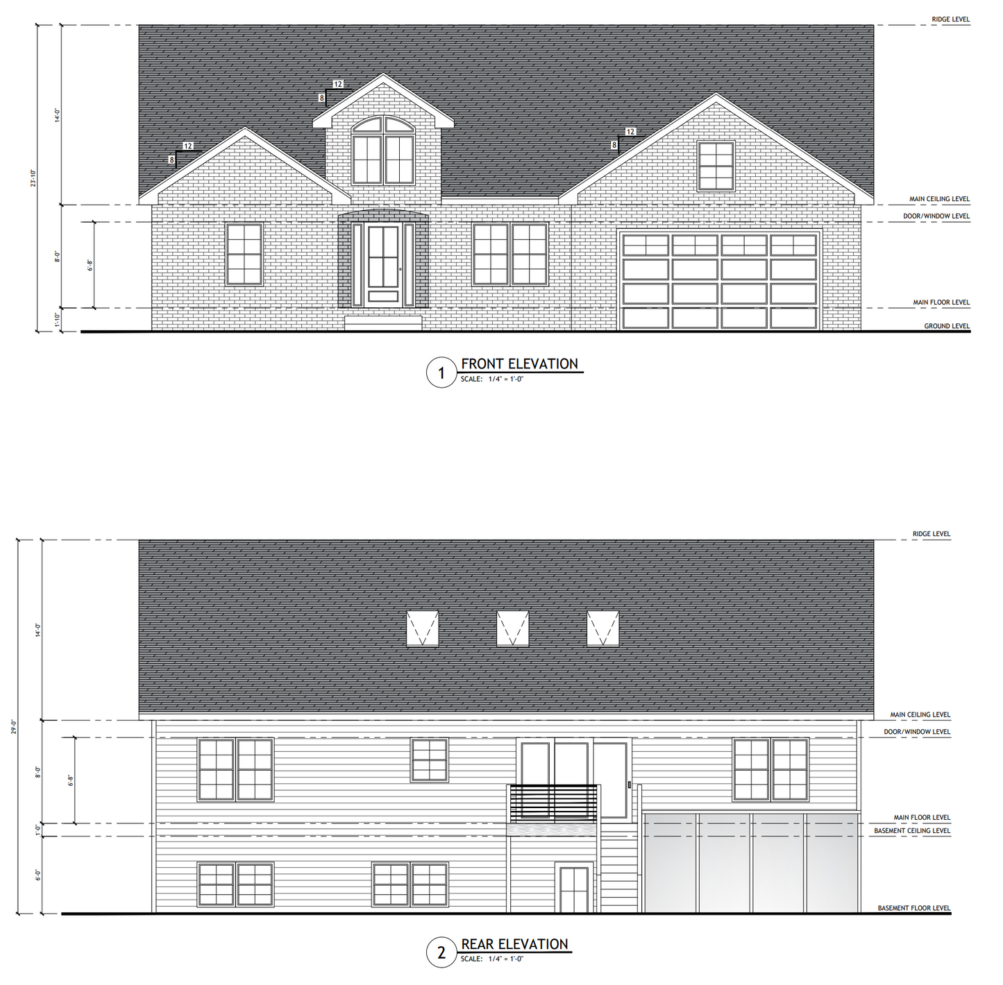
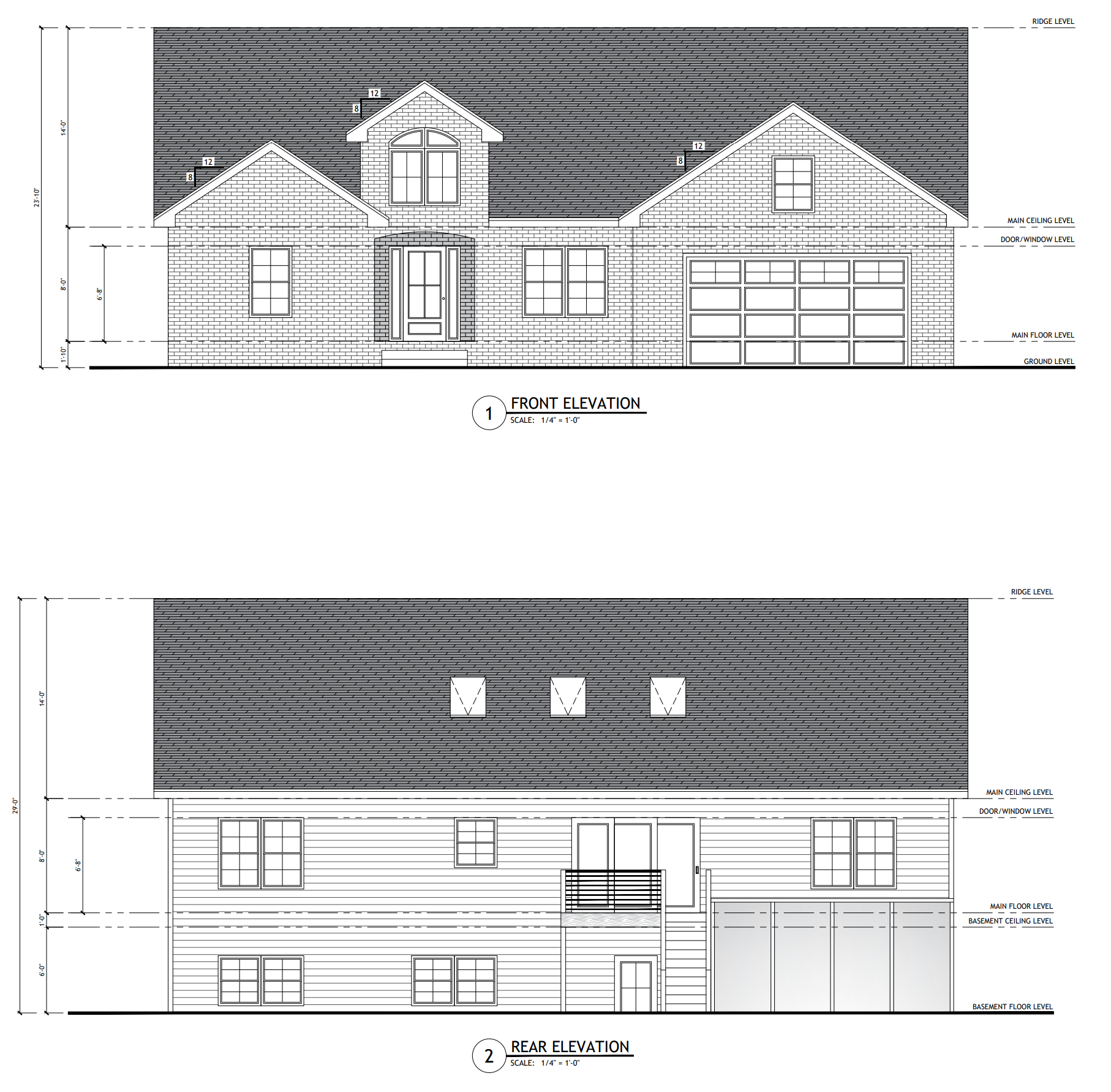
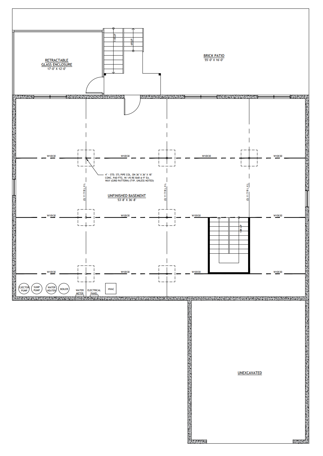
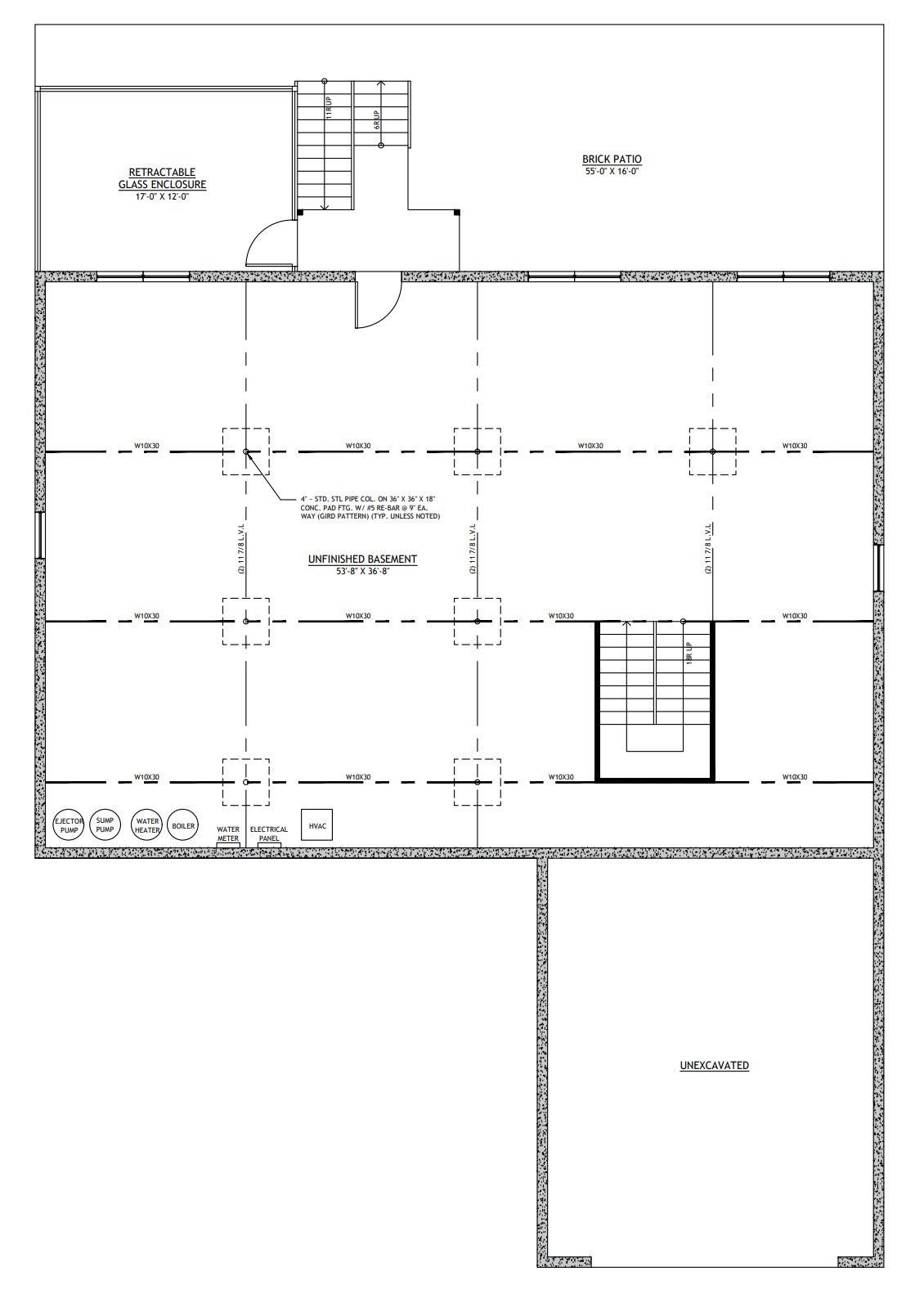
SV-30015 Shane Custom Home Plan
DETAILS
HEATED SQ FT
First Floor:
2,019 SF
Second Floor:None
Total Heated Sq Ft:2,019 SF
UNHEATED SQ FT
Garage 617 SF, Porch 49 SF, Unfinished Basement 2,019 SF = TOTAL 2,685 SF
Carport:None
3
2
1
617 SF
55'
38'
23'-10"
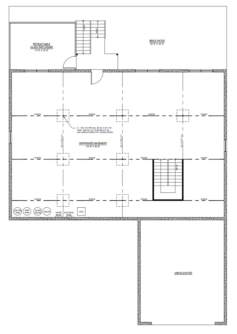
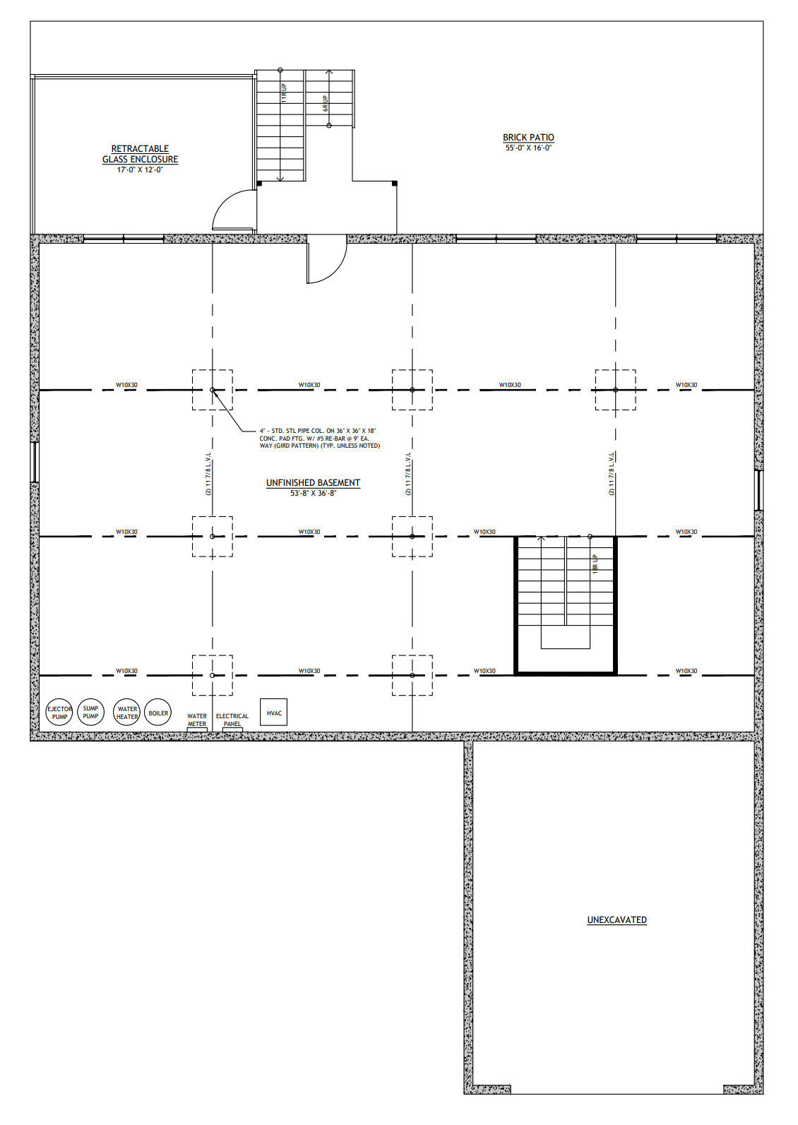
Basement
8:12
Stick Frame
CEILING HEIGHTS
8'
SV-30015 Shane Custom Home Plan
About this barndominium house plan:
- 2019 Heated Square Feet
- 3 Bedrooms
- 2.1 Bathrooms
- Single Story
- Open concept
- Foyer
- J&J Bathroom
- Patio
- Unfinished Basement
- Front Porch & Rear Deck
- 602 Sq Ft Garage
- A well-designed 2,019 sq ft single-story layout that balances comfort, functionality, and modern open living.
- Enjoy easy one-level living with a bright, open-concept design that seamlessly connects the kitchen, dining, and living areas.
- A welcoming foyer that creates a polished first impression and sets the tone for the home’s style.
- Three comfortable bedrooms paired with two full bathrooms and a handy half bath for everyday convenience.
- Shared Jack & Jill bathroom between Bedrooms 2 and 3—perfect for kids, guests, or shared spaces.
- Spacious unfinished basement offering endless possibilities—future living space, storage, a workshop, or custom upgrades.
- Multiple outdoor spaces—including a charming front porch, cozy patio, and elevated rear deck—perfect for relaxing or entertaining.
- A 602 sq ft two-car garage that provides secure parking and extra room for storage and everyday needs.
What's included in SV-30011:
Cover Page
Basement Floor Plan
Main Floor Plan
Roof Plan
Front And Rear Elevation
Right And Left Elevation
Interior Elevations
Basement Electrical Plan
Main Floor Electrical Plan
Basement Plumbing Plan
Main Floor Plumbing Plan
Main Floor HVAC Plan
For more barndominium floor plans, check out our complete collection of 3-bedroom barndominium floor plans.
Need to make changes? Submit a modification request using the button that says Modify This Plan. We will get you a free price quote within 72 hours.
What's Typically Included
What's Typically Included
THE SPECIFC DETAILS OF WHAT'S INCLUDED ON THESE PLANS IS CONTAINED IN THE PRODUCT DESCRIPTION. PLEASE SCROLL UP AND YOU WILL FIND IT UNDER "WHAT'S INCLUDED"
Our house plan sets typically have the following details:
4 Elevations – Front, Back, Both Sides
Detailed Floor Plan Drawing
Electrical Plans with placements for HVAC
Plumbing Plans with Placements
Flooring Plan
Roof Plan
Foundation Plan
For more information on what's included and examples of what your plans will look like, go here -> https://barndominiumplans.com/pages/whats-included
Please Note: We work with many different draftspeople who work in many different ways. It should be noted that their plans may contain different details. THE SPECIFC DETAILS OF WHAT'S INCLUDED ON THESE PLANS IS CONTAINED IN THE PRODUCT DESCRIPTION. PLEASE SCROLL UP AND YOU WILL FIND IT UNDER "WHAT'S INCLUDED"
What's Not Included
What's Not Included
The following items are NOT included:
Architectural or Engineering Stamp. Our plans are engineering-ready! Can take them to a local engineer in your state.
Site Plan - We can provide this if needed for $300 additional.
Materials List - handled locally when required
Energy calculations - handled locally when required
Snow load calculations - handled locally when required
Delivery
Delivery
This plan is available as a digital product or printed + shipped.
If you select digital, the plan will be delivered to you via email as a PDF file, no matter what time it is.
If you select printed + shipped, your order will ship in 24x36 format within 1 business day of your order.
We ship from the midwest in order to serve the entire country within 3-5 business days!
Return policy
Return policy
All barndominium house plan purchases are FINAL. There are no exchanges or refunds due to the digital nature of the product. Please make sure that the plan you have selected is going to fit your needs.
PDF (Single Build) $849.99
DETAILS
HEATED SQ FT
First Floor:
2,019 SF
Second Floor:None
Total Heated Sq Ft:2,019 SF
UNHEATED SQ FT
Garage 617 SF, Porch 49 SF, Unfinished Basement 2,019 SF = TOTAL 2,685 SF
Carport:None
3
2
1
617 SF
55'
38'
23'-10"
Basement
8:12
Stick Frame
CEILING HEIGHTS
8'
SV-30015 Shane Custom Home Plan
About this barndominium house plan:
- 2019 Heated Square Feet
- 3 Bedrooms
- 2.1 Bathrooms
- Single Story
- Open concept
- Foyer
- J&J Bathroom
- Patio
- Unfinished Basement
- Front Porch & Rear Deck
- 602 Sq Ft Garage
- A well-designed 2,019 sq ft single-story layout that balances comfort, functionality, and modern open living.
- Enjoy easy one-level living with a bright, open-concept design that seamlessly connects the kitchen, dining, and living areas.
- A welcoming foyer that creates a polished first impression and sets the tone for the home’s style.
- Three comfortable bedrooms paired with two full bathrooms and a handy half bath for everyday convenience.
- Shared Jack & Jill bathroom between Bedrooms 2 and 3—perfect for kids, guests, or shared spaces.
- Spacious unfinished basement offering endless possibilities—future living space, storage, a workshop, or custom upgrades.
- Multiple outdoor spaces—including a charming front porch, cozy patio, and elevated rear deck—perfect for relaxing or entertaining.
- A 602 sq ft two-car garage that provides secure parking and extra room for storage and everyday needs.
What's included in SV-30011:
Cover Page
Basement Floor Plan
Main Floor Plan
Roof Plan
Front And Rear Elevation
Right And Left Elevation
Interior Elevations
Basement Electrical Plan
Main Floor Electrical Plan
Basement Plumbing Plan
Main Floor Plumbing Plan
Main Floor HVAC Plan
For more barndominium floor plans, check out our complete collection of 3-bedroom barndominium floor plans.
Need to make changes? Submit a modification request using the button that says Modify This Plan. We will get you a free price quote within 72 hours.
What's Typically Included
What's Typically Included
THE SPECIFC DETAILS OF WHAT'S INCLUDED ON THESE PLANS IS CONTAINED IN THE PRODUCT DESCRIPTION. PLEASE SCROLL UP AND YOU WILL FIND IT UNDER "WHAT'S INCLUDED"
Our house plan sets typically have the following details:
4 Elevations – Front, Back, Both Sides
Detailed Floor Plan Drawing
Electrical Plans with placements for HVAC
Plumbing Plans with Placements
Flooring Plan
Roof Plan
Foundation Plan
For more information on what's included and examples of what your plans will look like, go here -> https://barndominiumplans.com/pages/whats-included
Please Note: We work with many different draftspeople who work in many different ways. It should be noted that their plans may contain different details. THE SPECIFC DETAILS OF WHAT'S INCLUDED ON THESE PLANS IS CONTAINED IN THE PRODUCT DESCRIPTION. PLEASE SCROLL UP AND YOU WILL FIND IT UNDER "WHAT'S INCLUDED"
What's Not Included
What's Not Included
The following items are NOT included:
Architectural or Engineering Stamp. Our plans are engineering-ready! Can take them to a local engineer in your state.
Site Plan - We can provide this if needed for $300 additional.
Materials List - handled locally when required
Energy calculations - handled locally when required
Snow load calculations - handled locally when required
Delivery
Delivery
This plan is available as a digital product or printed + shipped.
If you select digital, the plan will be delivered to you via email as a PDF file, no matter what time it is.
If you select printed + shipped, your order will ship in 24x36 format within 1 business day of your order.
We ship from the midwest in order to serve the entire country within 3-5 business days!
Return policy
Return policy
All barndominium house plan purchases are FINAL. There are no exchanges or refunds due to the digital nature of the product. Please make sure that the plan you have selected is going to fit your needs.

Real Reviews, Real Experiences
How to Build Your Own Barndominium & 120+ House Plans
Just getting started on your build? Get the Barndominiums Made Easy Program.
- Choosing a selection results in a full page refresh.



