Couldn't load pickup availability
Barndominium Plans
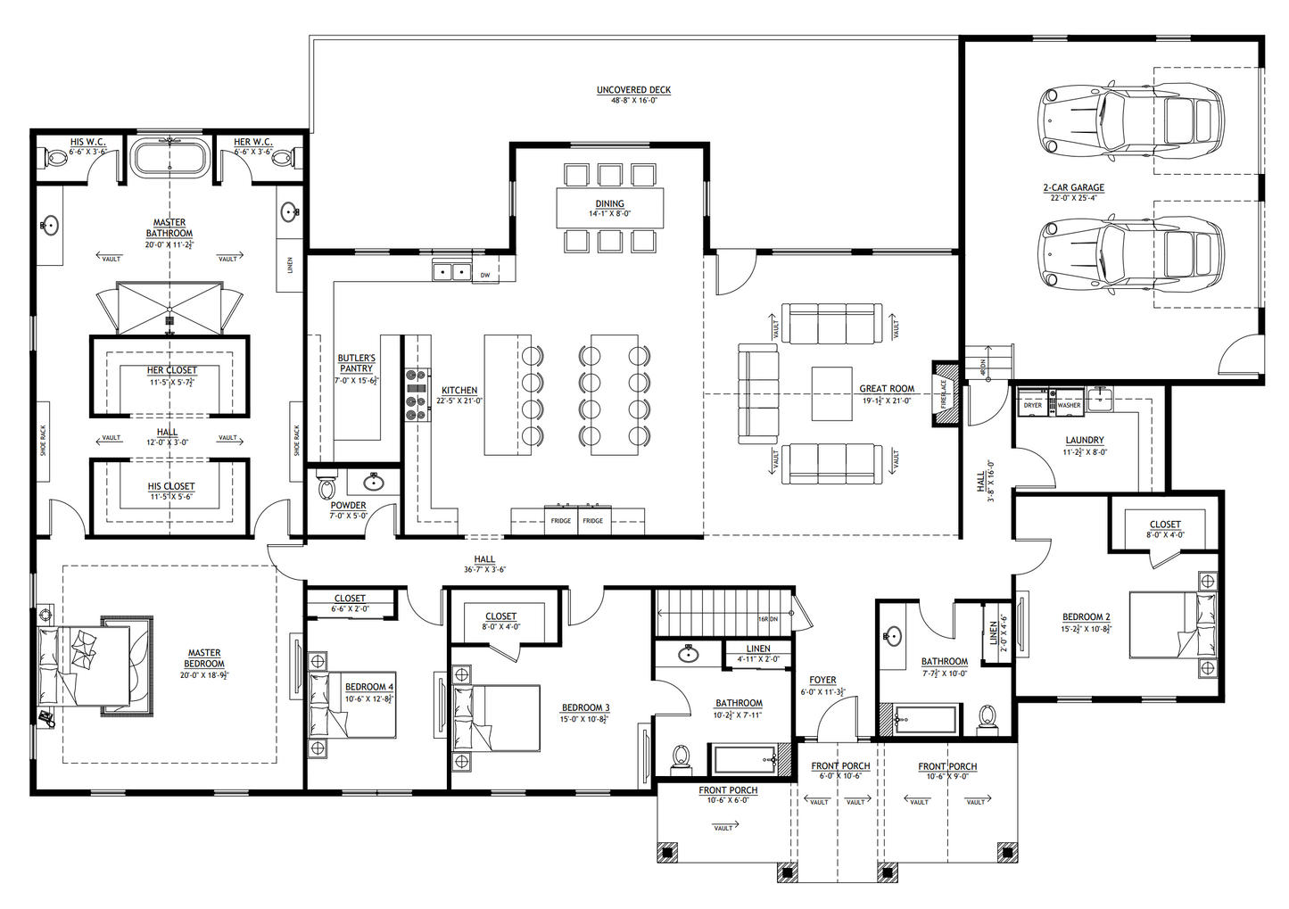
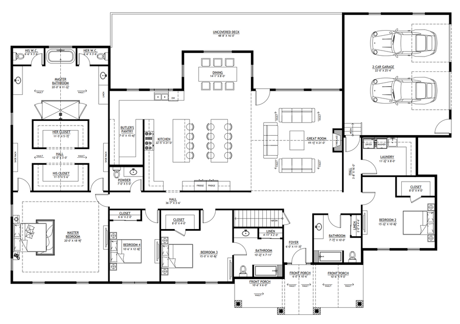
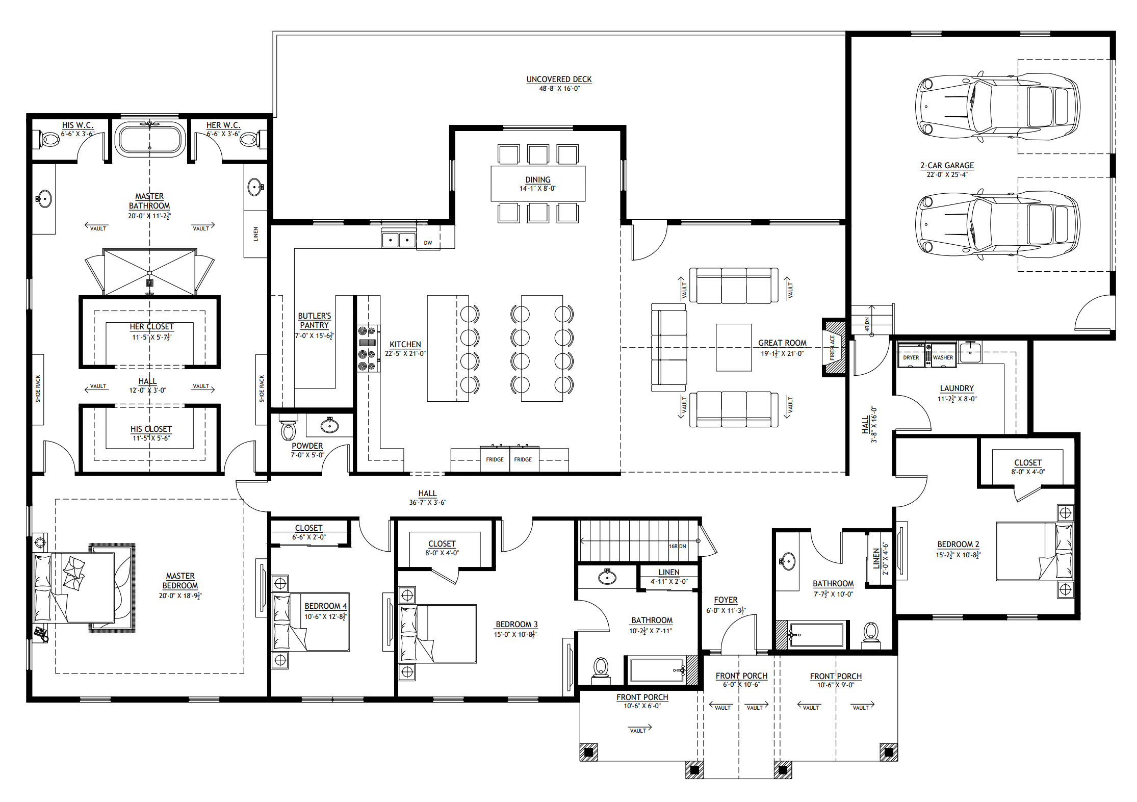
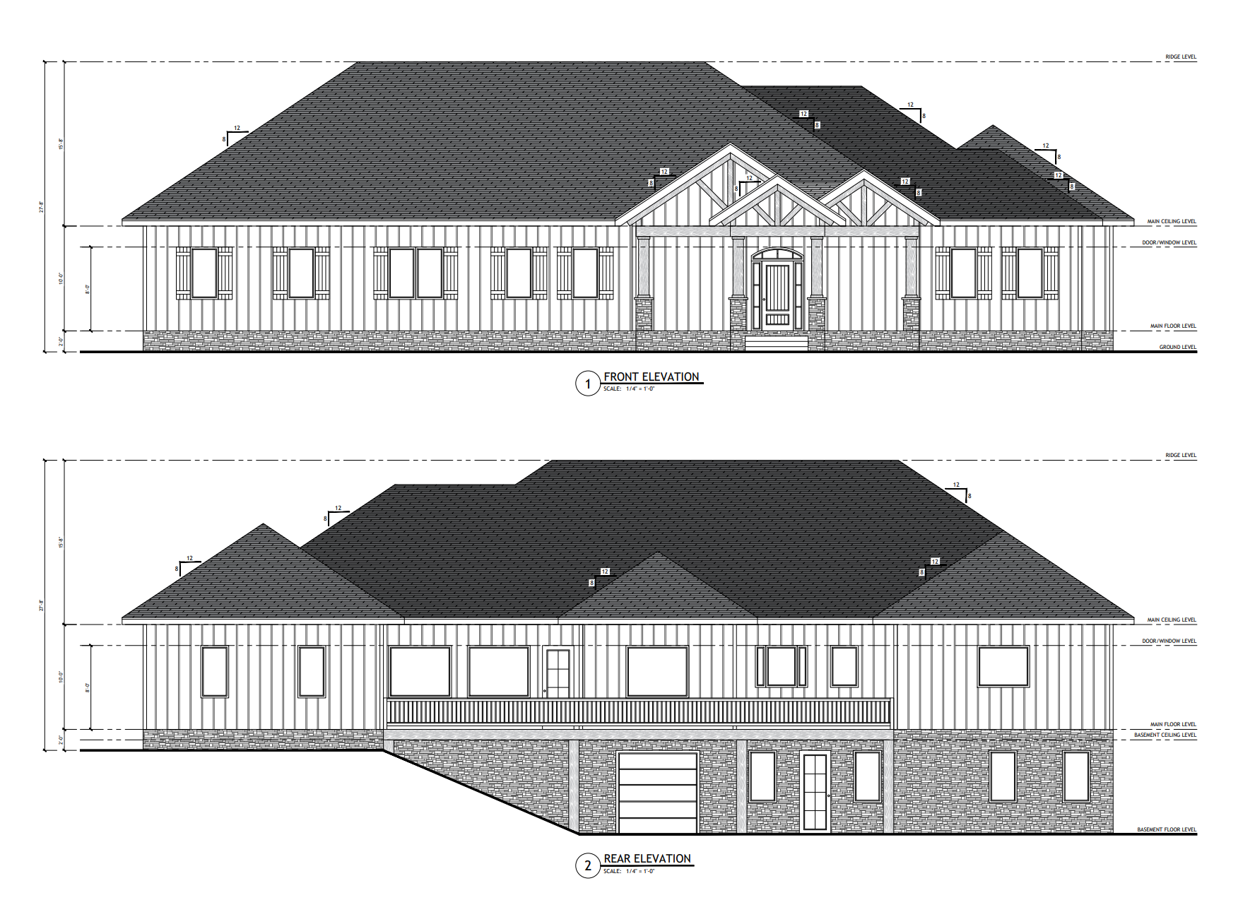
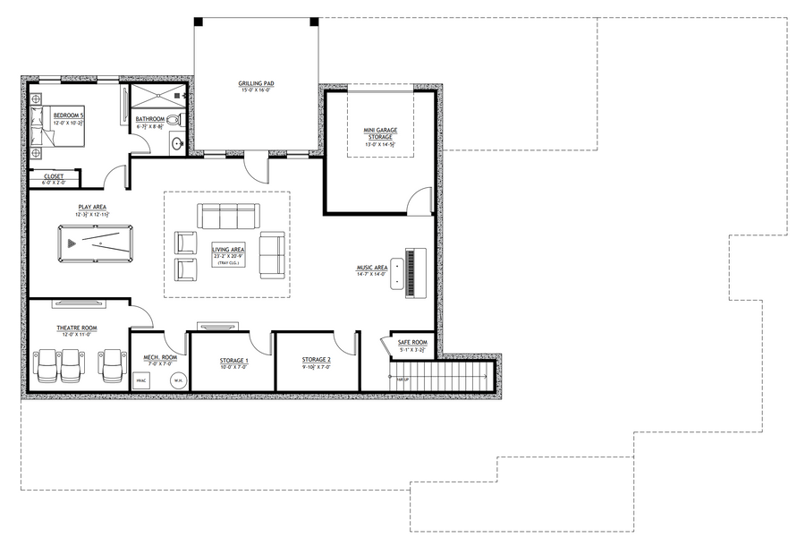
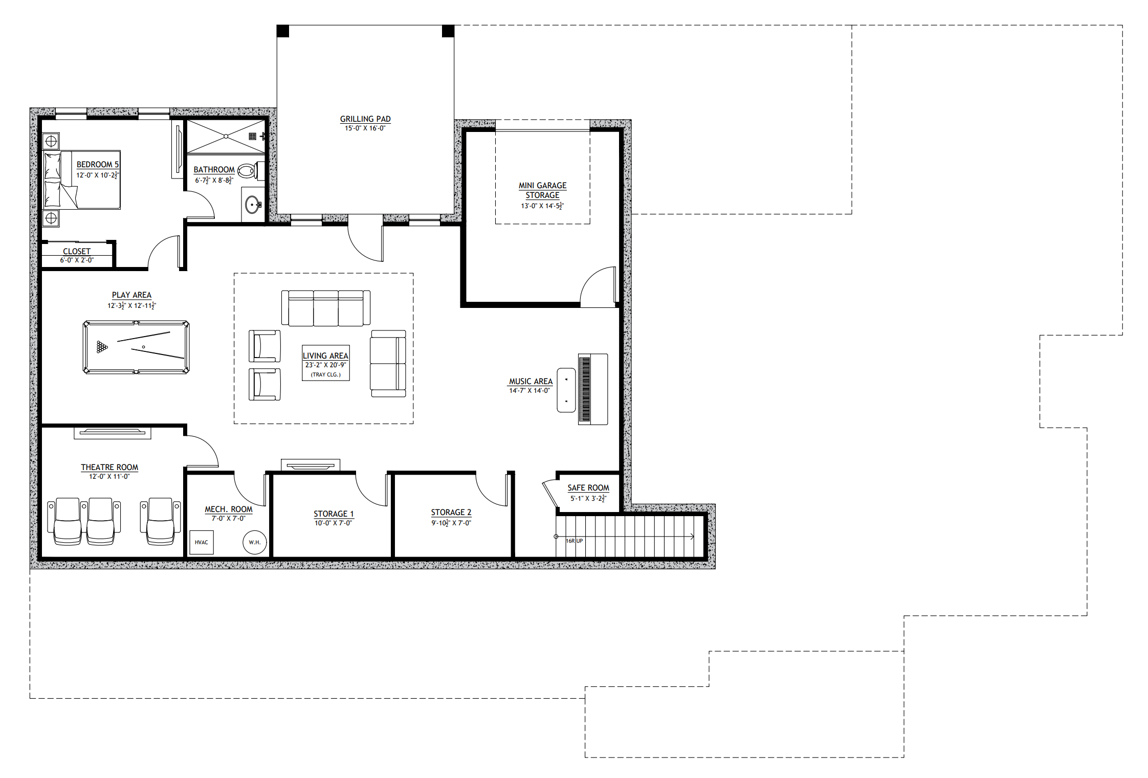
SV-30014 Sarah Custom Home Plan
DETAILS
HEATED SQ FT
First Floor:
3,557 SF
Second Floor:None
Total Heated Sq Ft:5,132 SF
UNHEATED SQ FT
Garage 602 SF, Garage Storage 235 SF, Grilling Pad 240 SF, Front & Rear Porch 870 SF = TOTAL 1,947 SF
Carport:None
4
1
602 SF
92'-6"
63'-6"
27'-8"
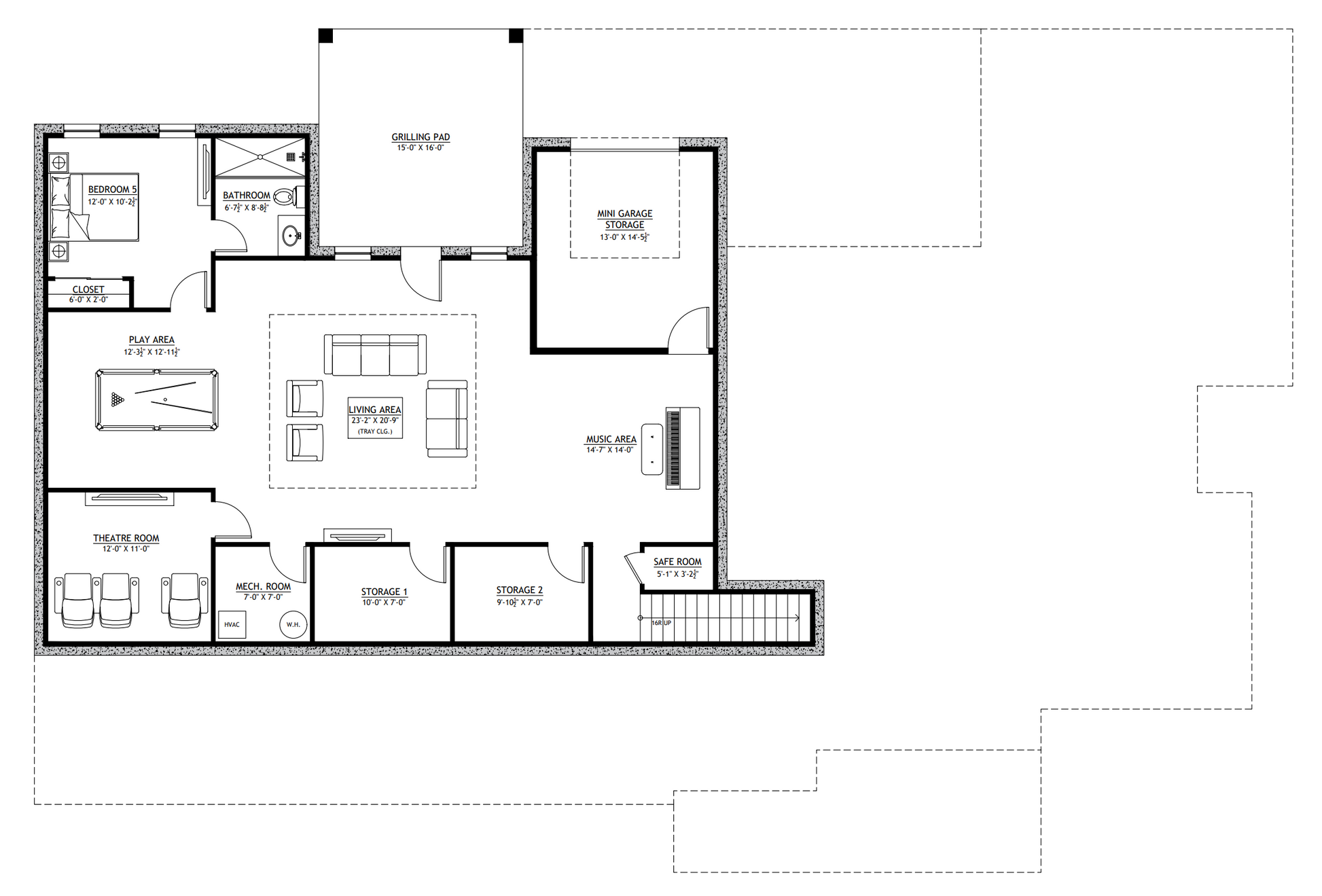
Walkout Basement
8:12
Stick Frame
CEILING HEIGHTS
10'
SV-30014 Sarah Custom Home Plan
- 5132 Heated Square Feet
- 5 Bedrooms
- 4.1 Bathrooms
- Single Story
- Open concept
- Foyer
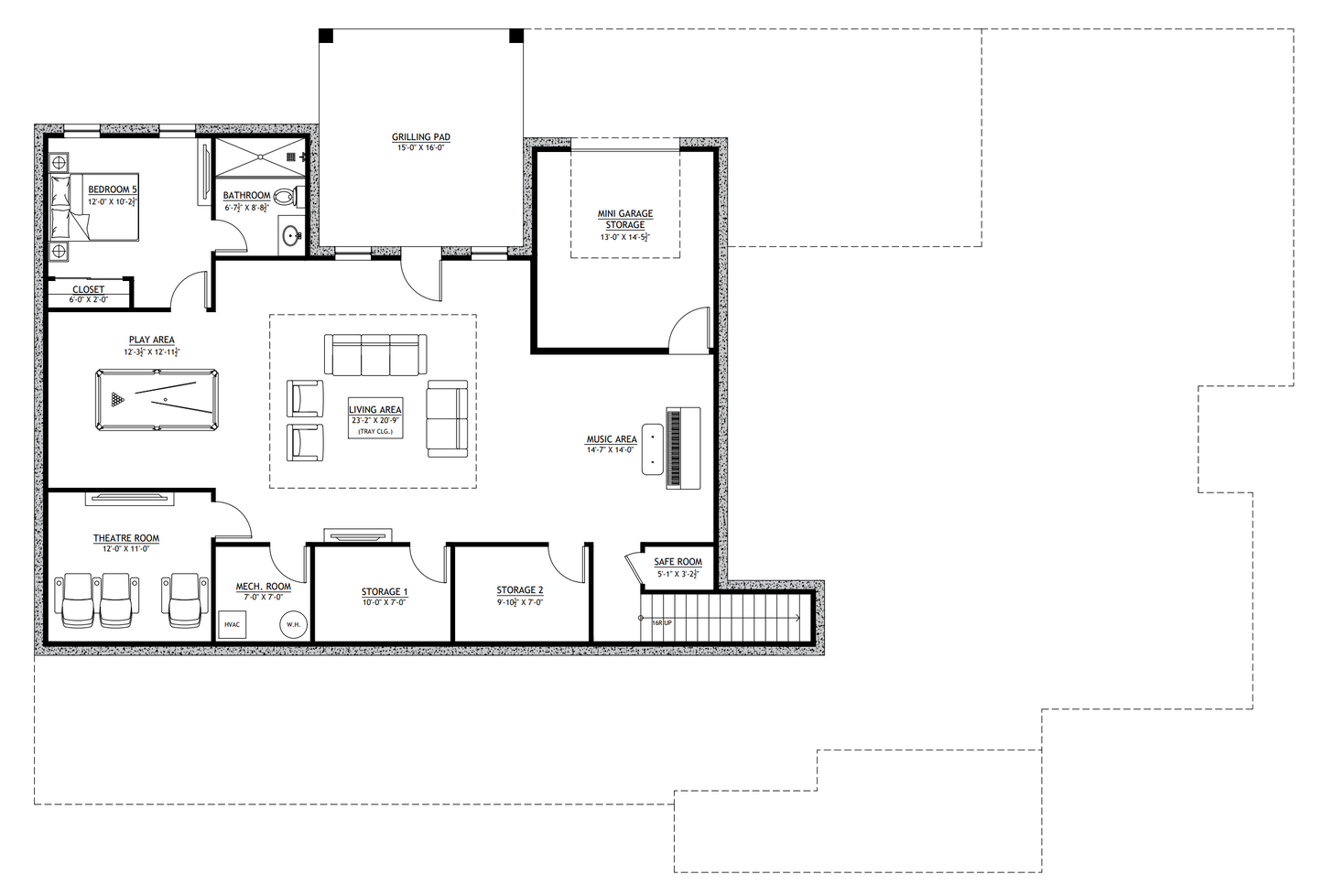
- Basement
- Front Porch & Rear Deck
- Great room and a living area
- Music Area
- Play area
- Theatre room
- Patio
- Storage rooms
- Mechanical Room
- Safe Room
- 602 Sq Ft Garage
- An expansive 5,132 sq ft layout designed for luxury living, comfortable family life, and incredible entertaining spaces.
- Five spacious bedrooms—including one in the basement—paired with four full bathrooms and a convenient half bath for ultimate comfort and flexibility.
- Fully finished basement built for fun and function, featuring a great room, living area, music area, play area, theatre room, and multiple storage rooms—perfect for gatherings, hobbies, and staying organized.
- Welcoming front porch and a relaxing rear deck that extend your living space outdoors and create perfect spots to unwind or entertain.
- Walkout basement that opens to a private patio or grilling pad, offering seamless indoor–outdoor living and extra space to enjoy.
- A 602 sq ft two-car garage providing secure parking and plenty of room for storage and everyday convenience.
What's included in SV-30014:
Cover Page
Basement Floor Plan
Main Floor Plan
Roof Plan
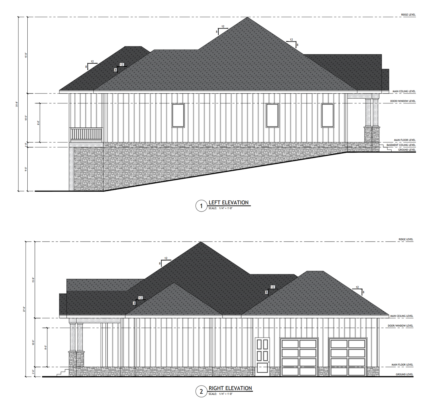
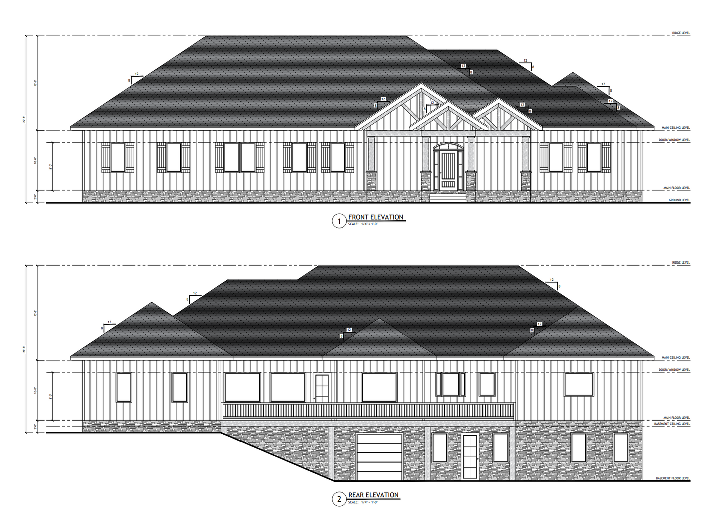
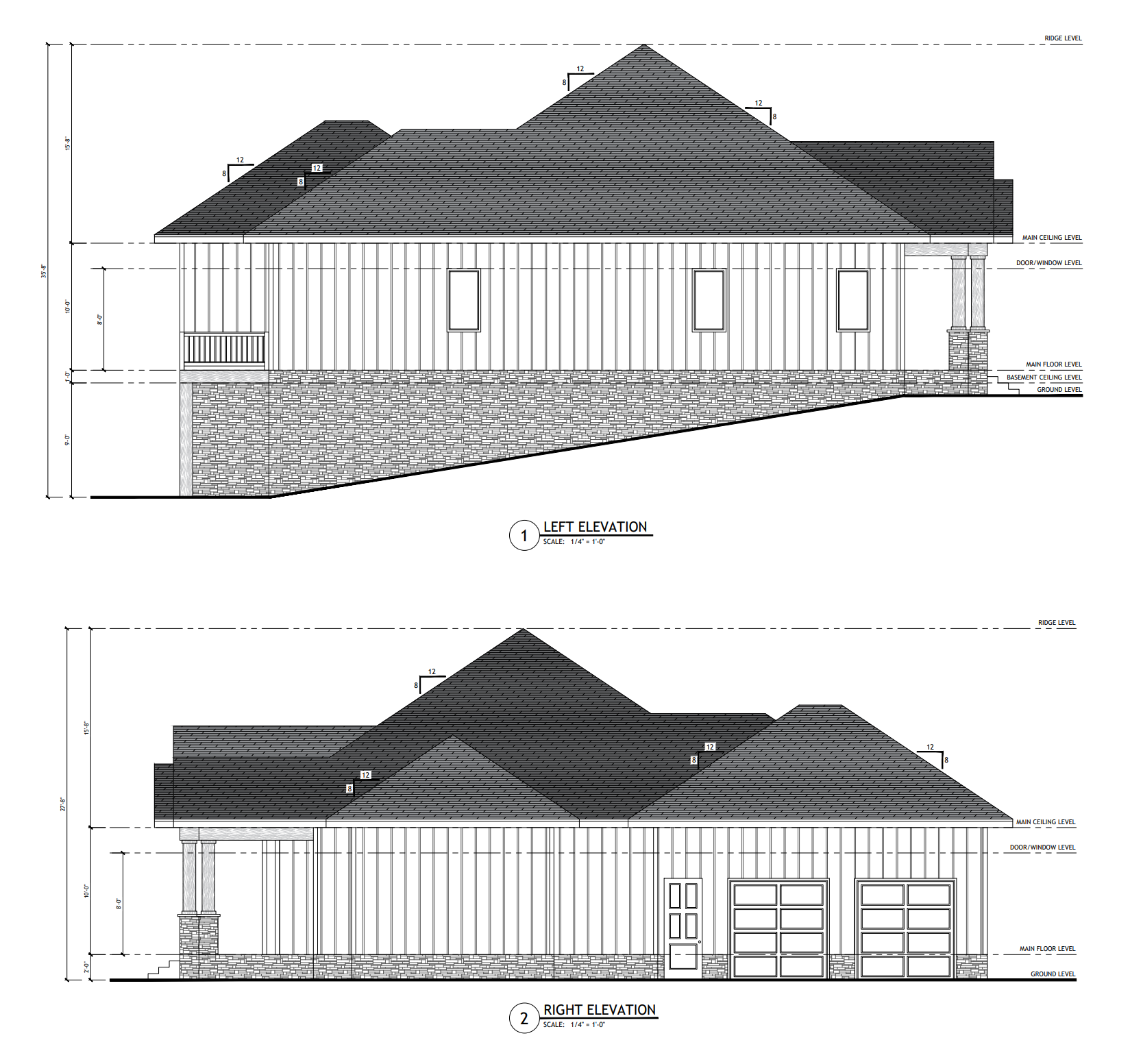
Front And Rear Elevation
Right And Left Elevation
Basement Electrical Plan
Main Floor Electrical Plan
Basement Plumbing Plan
Main Floor Plumbing Plan
Basement HVAC Plan
Main Floor HVAC Plan
Basement Wall Framing Plan
Main Floor Wall Framing Plan
Foundation Plan
Wall Section
Deck Post Detail
Section A-A and Section B-B
For more barndominium floor plans, check out our complete collection of 5 bedroom barndominium floor plans.
Need to make changes? Submit a modification request using the button that says Modify This Plan. We will get you a free price quote within 72 hours.
What's Typically Included
What's Typically Included
THE SPECIFC DETAILS OF WHAT'S INCLUDED ON THESE PLANS IS CONTAINED IN THE PRODUCT DESCRIPTION. PLEASE SCROLL UP AND YOU WILL FIND IT UNDER "WHAT'S INCLUDED"
Our house plan sets typically have the following details:
4 Elevations – Front, Back, Both Sides
Detailed Floor Plan Drawing
Electrical Plans with placements for HVAC
Plumbing Plans with Placements
Flooring Plan
Roof Plan
Foundation Plan
For more information on what's included and examples of what your plans will look like, go here -> https://barndominiumplans.com/pages/whats-included
Please Note: We work with many different draftspeople who work in many different ways. It should be noted that their plans may contain different details. THE SPECIFC DETAILS OF WHAT'S INCLUDED ON THESE PLANS IS CONTAINED IN THE PRODUCT DESCRIPTION. PLEASE SCROLL UP AND YOU WILL FIND IT UNDER "WHAT'S INCLUDED"
What's Not Included
What's Not Included
The following items are NOT included:
Architectural or Engineering Stamp. Our plans are engineering-ready! Can take them to a local engineer in your state.
Site Plan - We can provide this if needed for $300 additional.
Materials List - handled locally when required
Energy calculations - handled locally when required
Snow load calculations - handled locally when required
Delivery
Delivery
This plan is available as a digital product or printed + shipped.
If you select digital, the plan will be delivered to you via email as a PDF file, no matter what time it is.
If you select printed + shipped, your order will ship in 24x36 format within 1 business day of your order.
We ship from the midwest in order to serve the entire country within 3-5 business days!
Return policy
Return policy
All barndominium house plan purchases are FINAL. There are no exchanges or refunds due to the digital nature of the product. Please make sure that the plan you have selected is going to fit your needs.
PDF (Single Build) $1,749.99
DETAILS
HEATED SQ FT
First Floor:
3,557 SF
Second Floor:None
Total Heated Sq Ft:5,132 SF
UNHEATED SQ FT
Garage 602 SF, Garage Storage 235 SF, Grilling Pad 240 SF, Front & Rear Porch 870 SF = TOTAL 1,947 SF
Carport:None
4
1
602 SF
92'-6"
63'-6"
27'-8"
Walkout Basement
8:12
Stick Frame
CEILING HEIGHTS
10'
SV-30014 Sarah Custom Home Plan
- 5132 Heated Square Feet
- 5 Bedrooms
- 4.1 Bathrooms
- Single Story
- Open concept
- Foyer
- Basement
- Front Porch & Rear Deck
- Great room and a living area
- Music Area
- Play area
- Theatre room
- Patio
- Storage rooms
- Mechanical Room
- Safe Room
- 602 Sq Ft Garage
- An expansive 5,132 sq ft layout designed for luxury living, comfortable family life, and incredible entertaining spaces.
- Five spacious bedrooms—including one in the basement—paired with four full bathrooms and a convenient half bath for ultimate comfort and flexibility.
- Fully finished basement built for fun and function, featuring a great room, living area, music area, play area, theatre room, and multiple storage rooms—perfect for gatherings, hobbies, and staying organized.
- Welcoming front porch and a relaxing rear deck that extend your living space outdoors and create perfect spots to unwind or entertain.
- Walkout basement that opens to a private patio or grilling pad, offering seamless indoor–outdoor living and extra space to enjoy.
- A 602 sq ft two-car garage providing secure parking and plenty of room for storage and everyday convenience.
What's included in SV-30014:
Cover Page
Basement Floor Plan
Main Floor Plan
Roof Plan
Front And Rear Elevation
Right And Left Elevation
Basement Electrical Plan
Main Floor Electrical Plan
Basement Plumbing Plan
Main Floor Plumbing Plan
Basement HVAC Plan
Main Floor HVAC Plan
Basement Wall Framing Plan
Main Floor Wall Framing Plan
Foundation Plan
Wall Section
Deck Post Detail
Section A-A and Section B-B
For more barndominium floor plans, check out our complete collection of 5 bedroom barndominium floor plans.
Need to make changes? Submit a modification request using the button that says Modify This Plan. We will get you a free price quote within 72 hours.
What's Typically Included
What's Typically Included
THE SPECIFC DETAILS OF WHAT'S INCLUDED ON THESE PLANS IS CONTAINED IN THE PRODUCT DESCRIPTION. PLEASE SCROLL UP AND YOU WILL FIND IT UNDER "WHAT'S INCLUDED"
Our house plan sets typically have the following details:
4 Elevations – Front, Back, Both Sides
Detailed Floor Plan Drawing
Electrical Plans with placements for HVAC
Plumbing Plans with Placements
Flooring Plan
Roof Plan
Foundation Plan
For more information on what's included and examples of what your plans will look like, go here -> https://barndominiumplans.com/pages/whats-included
Please Note: We work with many different draftspeople who work in many different ways. It should be noted that their plans may contain different details. THE SPECIFC DETAILS OF WHAT'S INCLUDED ON THESE PLANS IS CONTAINED IN THE PRODUCT DESCRIPTION. PLEASE SCROLL UP AND YOU WILL FIND IT UNDER "WHAT'S INCLUDED"
What's Not Included
What's Not Included
The following items are NOT included:
Architectural or Engineering Stamp. Our plans are engineering-ready! Can take them to a local engineer in your state.
Site Plan - We can provide this if needed for $300 additional.
Materials List - handled locally when required
Energy calculations - handled locally when required
Snow load calculations - handled locally when required
Delivery
Delivery
This plan is available as a digital product or printed + shipped.
If you select digital, the plan will be delivered to you via email as a PDF file, no matter what time it is.
If you select printed + shipped, your order will ship in 24x36 format within 1 business day of your order.
We ship from the midwest in order to serve the entire country within 3-5 business days!
Return policy
Return policy
All barndominium house plan purchases are FINAL. There are no exchanges or refunds due to the digital nature of the product. Please make sure that the plan you have selected is going to fit your needs.

Real Reviews, Real Experiences
How to Build Your Own Barndominium & 120+ House Plans
Just getting started on your build? Get the Barndominiums Made Easy Program.
- Choosing a selection results in a full page refresh.



