Couldn't load pickup availability
Barndominium Plans
SV-30013 Shelby Custom Home Plan
DETAILS
HEATED SQ FT
First Floor:
1,850 SF
Second Floor:None
UNHEATED SQ FT
Carport:
None
2
2
1
441 SF
114'
45'
23'
Concrete Slab
8:12
Stick Frame
CEILING HEIGHTS
10'
SV-30013 Shelby Custom Home Plan
Â
About this custom home plan:
- 1850 Heated Square Feet
- 2 Bedrooms
- 2.1 Bathrooms
- Single Story
- Open concept
- Foyer
- Study/Library
- Rear Porch
- Breezeway
- Guest House with Office Nook
- 441 Sq Ft Garage
Â
- A beautifully planned 1,850 sq ft layout split between a main home and a private guest house for flexible, comfortable living.
- The main home features a spacious bedroom and a convenient bath-and-a-half setup, perfect for everyday comfort.
- Fully equipped guest house with its own bedroom and full bathroom—ideal for visitors, extended family, or rental potential.
- A welcoming foyer that sets the tone with charm and thoughtful design.
- Dedicated study or library offering a quiet retreat for reading, working, or relaxing.
- A peaceful rear porch that extends your living space outdoors and invites you to unwind.
- Covered breezeway that connects the main home to the guest house, offering shade, airflow, and architectural character.
- The guest house includes a cozy office nook—perfect for working remotely or providing guests with their own workspace.
- A practical 441 sq ft garage offering room for parking, storage, and everyday convenience.
Â
What's included in SV-30013:
Cover Page
Floor Plan
Roof Plan
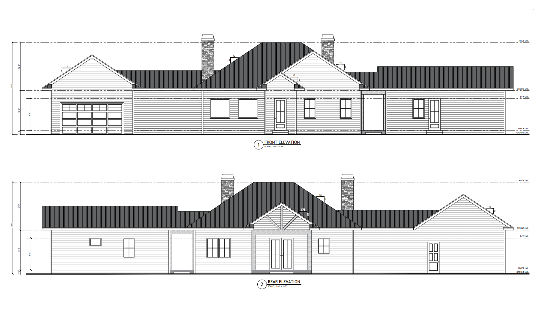
Front And Rear Elevation
Right And Left Elevation
Electrical Plan
Plumbing Plan
HVAC Plan
Foundation Plan
Foundation Detail
Interior Bearing Footing
C-Typical Column Detail
Wall Section
Â
For more barndominium floor plans, check out our complete collection of 2-bedroom barndominium floor plans.
Â
Need to make changes? Submit a modification request using the button that says Modify This Plan. We will get you a free price quote within 72 hours.
What's Typically Included
What's Typically Included
THE SPECIFC DETAILS OF WHAT'S INCLUDED ON THESE PLANS IS CONTAINED IN THE PRODUCT DESCRIPTION. PLEASE SCROLL UP AND YOU WILL FIND IT UNDER "WHAT'S INCLUDED"
Our house plan sets typically have the following details:
4 Elevations – Front, Back, Both Sides
Detailed Floor Plan Drawing
Electrical Plans with placements for HVAC
Plumbing Plans with Placements
Flooring Plan
Roof Plan
Foundation Plan
For more information on what's included and examples of what your plans will look like, go here -> https://barndominiumplans.com/pages/whats-included
Please Note: We work with many different draftspeople who work in many different ways. It should be noted that their plans may contain different details. THE SPECIFC DETAILS OF WHAT'S INCLUDED ON THESE PLANS IS CONTAINED IN THE PRODUCT DESCRIPTION. PLEASE SCROLL UP AND YOU WILL FIND IT UNDER "WHAT'S INCLUDED"
What's Not Included
What's Not Included
The following items are NOT included:
Architectural or Engineering Stamp. Our plans are engineering-ready! Can take them to a local engineer in your state.
Site Plan - We can provide this if needed for $300 additional.
Materials List - handled locally when required
Energy calculations - handled locally when required
Snow load calculations - handled locally when required
Delivery
Delivery
This plan is available as a digital product or printed + shipped.
If you select digital, the plan will be delivered to you via email as a PDF file, no matter what time it is.
If you select printed + shipped, your order will ship in 24x36 format within 1 business day of your order.
We ship from the midwest in order to serve the entire country within 3-5 business days!
Return policy
Return policy
All barndominium house plan purchases are FINAL. There are no exchanges or refunds due to the digital nature of the product. Please make sure that the plan you have selected is going to fit your needs.
PDF (Single Build) $849.99
DETAILS
HEATED SQ FT
First Floor:
1,850 SF
Second Floor:None
UNHEATED SQ FT
Carport:
None
2
2
1
441 SF
114'
45'
23'
Concrete Slab
8:12
Stick Frame
CEILING HEIGHTS
10'
SV-30013 Shelby Custom Home Plan
Â
About this custom home plan:
- 1850 Heated Square Feet
- 2 Bedrooms
- 2.1 Bathrooms
- Single Story
- Open concept
- Foyer
- Study/Library
- Rear Porch
- Breezeway
- Guest House with Office Nook
- 441 Sq Ft Garage
Â
- A beautifully planned 1,850 sq ft layout split between a main home and a private guest house for flexible, comfortable living.
- The main home features a spacious bedroom and a convenient bath-and-a-half setup, perfect for everyday comfort.
- Fully equipped guest house with its own bedroom and full bathroom—ideal for visitors, extended family, or rental potential.
- A welcoming foyer that sets the tone with charm and thoughtful design.
- Dedicated study or library offering a quiet retreat for reading, working, or relaxing.
- A peaceful rear porch that extends your living space outdoors and invites you to unwind.
- Covered breezeway that connects the main home to the guest house, offering shade, airflow, and architectural character.
- The guest house includes a cozy office nook—perfect for working remotely or providing guests with their own workspace.
- A practical 441 sq ft garage offering room for parking, storage, and everyday convenience.
Â
What's included in SV-30013:
Cover Page
Floor Plan
Roof Plan
Front And Rear Elevation
Right And Left Elevation
Electrical Plan
Plumbing Plan
HVAC Plan
Foundation Plan
Foundation Detail
Interior Bearing Footing
C-Typical Column Detail
Wall Section
Â
For more barndominium floor plans, check out our complete collection of 2-bedroom barndominium floor plans.
Â
Need to make changes? Submit a modification request using the button that says Modify This Plan. We will get you a free price quote within 72 hours.
What's Typically Included
What's Typically Included
THE SPECIFC DETAILS OF WHAT'S INCLUDED ON THESE PLANS IS CONTAINED IN THE PRODUCT DESCRIPTION. PLEASE SCROLL UP AND YOU WILL FIND IT UNDER "WHAT'S INCLUDED"
Our house plan sets typically have the following details:
4 Elevations – Front, Back, Both Sides
Detailed Floor Plan Drawing
Electrical Plans with placements for HVAC
Plumbing Plans with Placements
Flooring Plan
Roof Plan
Foundation Plan
For more information on what's included and examples of what your plans will look like, go here -> https://barndominiumplans.com/pages/whats-included
Please Note: We work with many different draftspeople who work in many different ways. It should be noted that their plans may contain different details. THE SPECIFC DETAILS OF WHAT'S INCLUDED ON THESE PLANS IS CONTAINED IN THE PRODUCT DESCRIPTION. PLEASE SCROLL UP AND YOU WILL FIND IT UNDER "WHAT'S INCLUDED"
What's Not Included
What's Not Included
The following items are NOT included:
Architectural or Engineering Stamp. Our plans are engineering-ready! Can take them to a local engineer in your state.
Site Plan - We can provide this if needed for $300 additional.
Materials List - handled locally when required
Energy calculations - handled locally when required
Snow load calculations - handled locally when required
Delivery
Delivery
This plan is available as a digital product or printed + shipped.
If you select digital, the plan will be delivered to you via email as a PDF file, no matter what time it is.
If you select printed + shipped, your order will ship in 24x36 format within 1 business day of your order.
We ship from the midwest in order to serve the entire country within 3-5 business days!
Return policy
Return policy
All barndominium house plan purchases are FINAL. There are no exchanges or refunds due to the digital nature of the product. Please make sure that the plan you have selected is going to fit your needs.

Real Reviews, Real Experiences
How to Build Your Own Barndominium & 120+ House Plans
Just getting started on your build? Get the Barndominiums Made Easy Program.
- Choosing a selection results in a full page refresh.



