Couldn't load pickup availability
Barndominium Plans
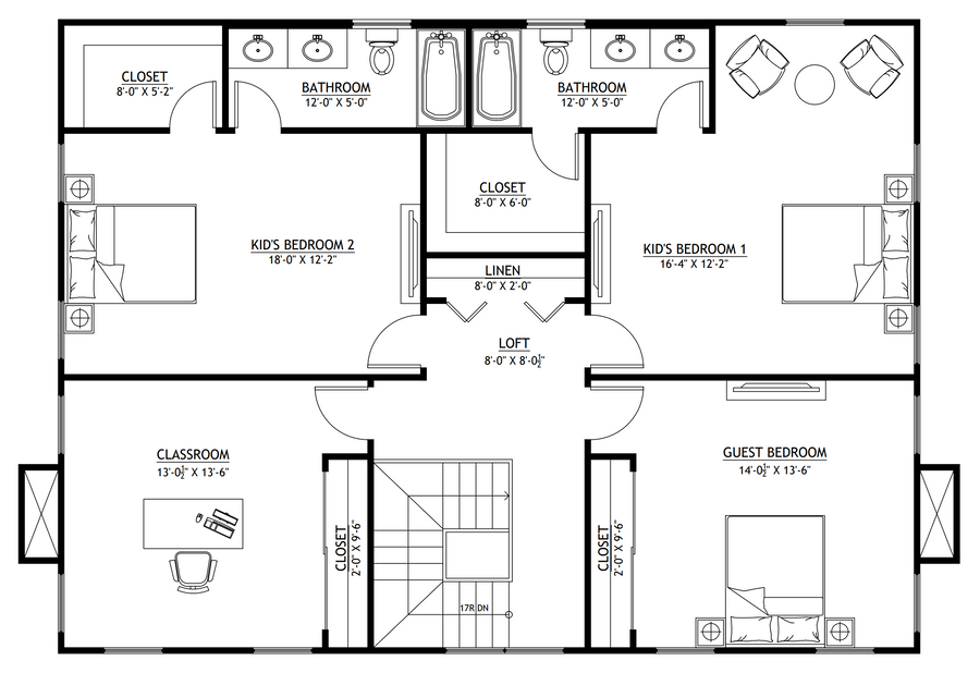
SV-30012 Tracy Custom Home Plan
DETAILS
HEATED SQ FT
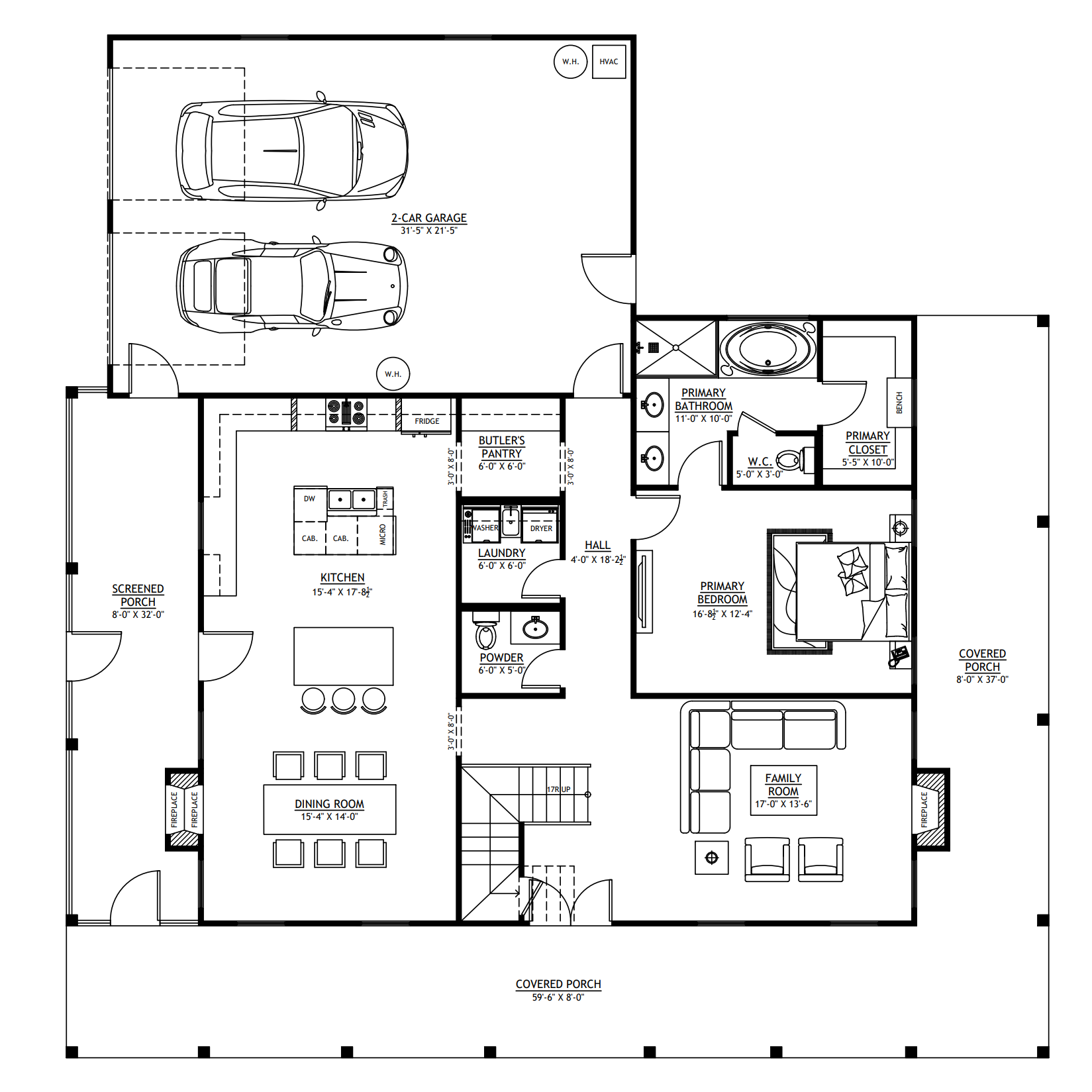
First Floor:
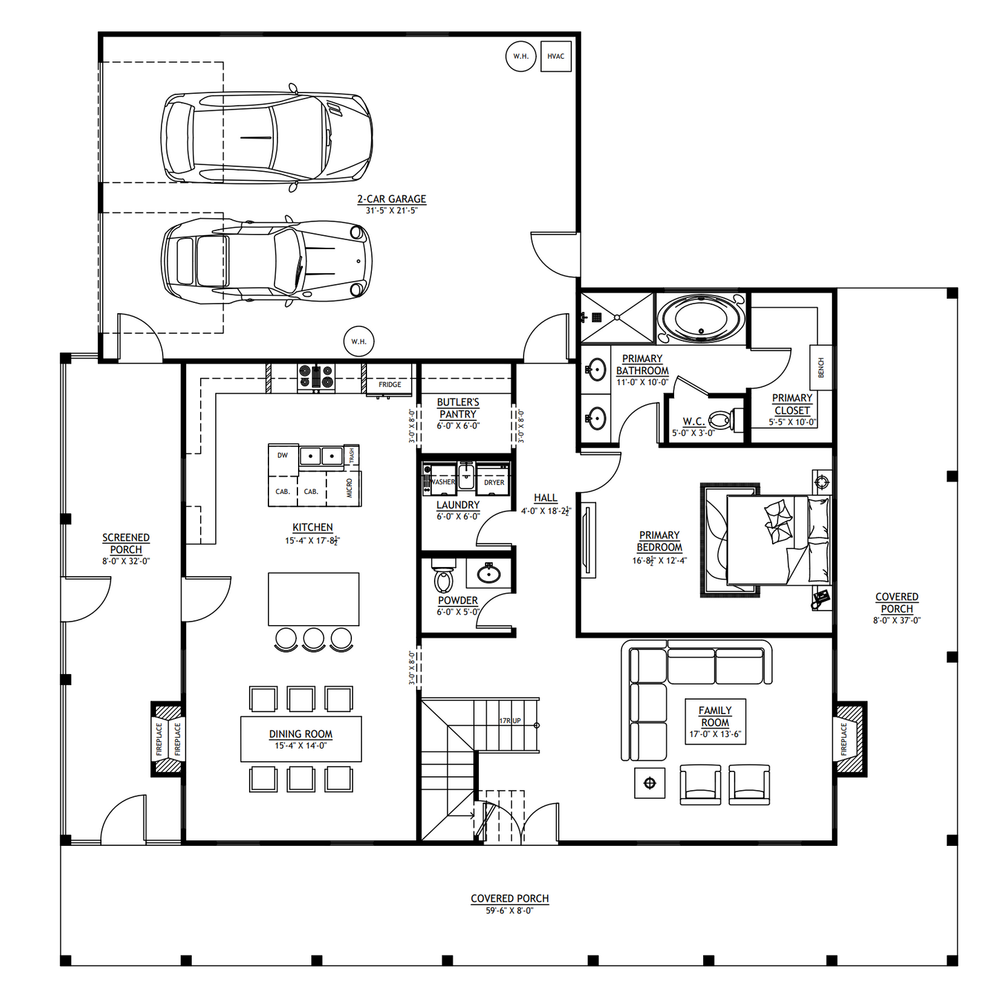
1,477 SF
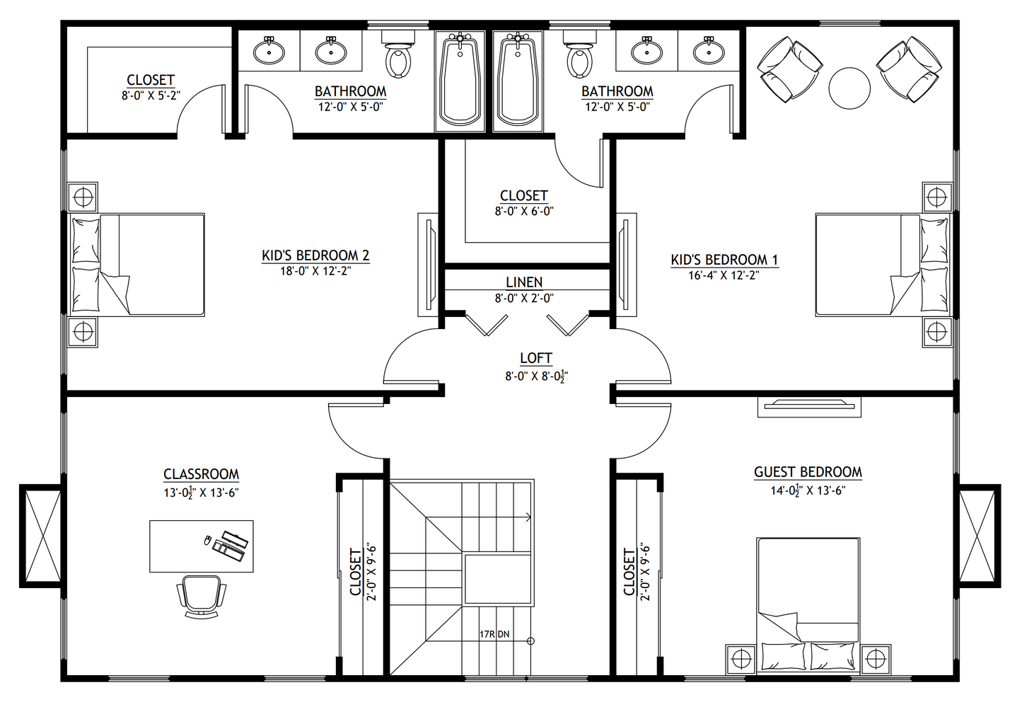
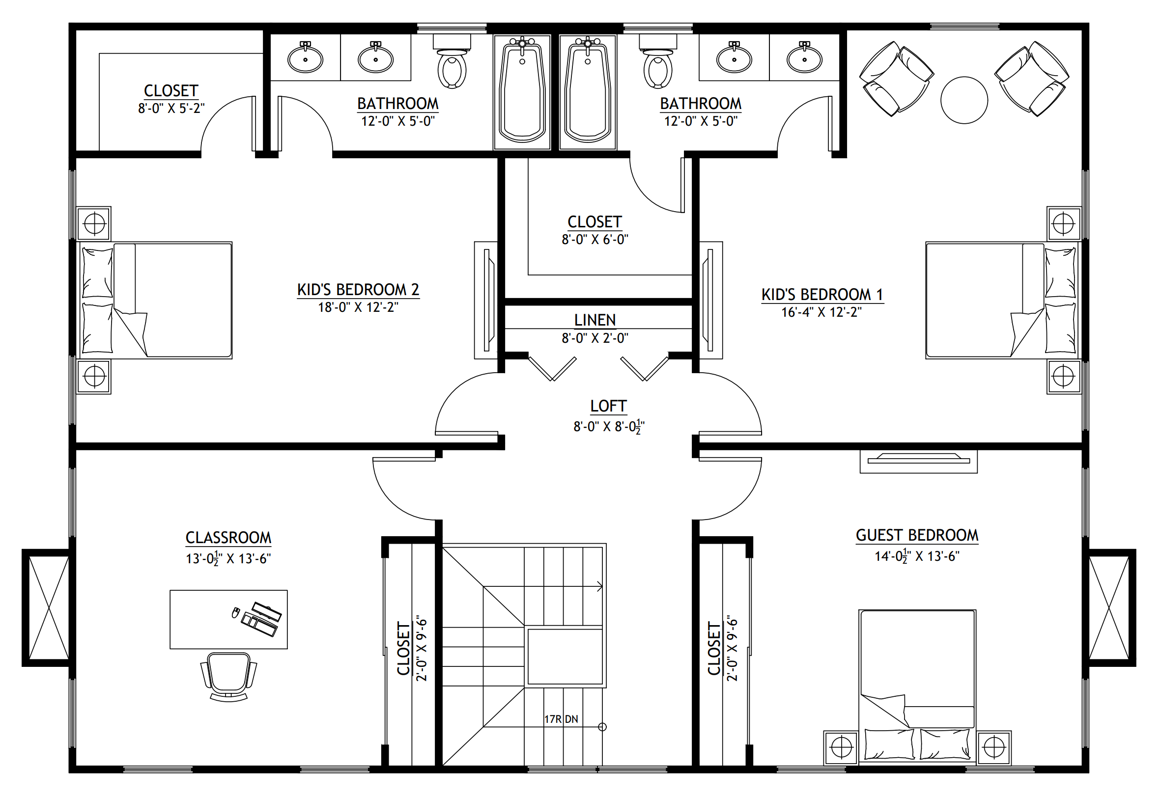
Second Floor:1,392 SF
Total Heated Sq Ft:2,869 SF
UNHEATED SQ FT
Garage 704 SF, Screened Porch 256 SF, Covered Porch 772 SF = TOTAL 1,732 SF
Carport:None
4
3
2
704 SF
59'-6"
62'
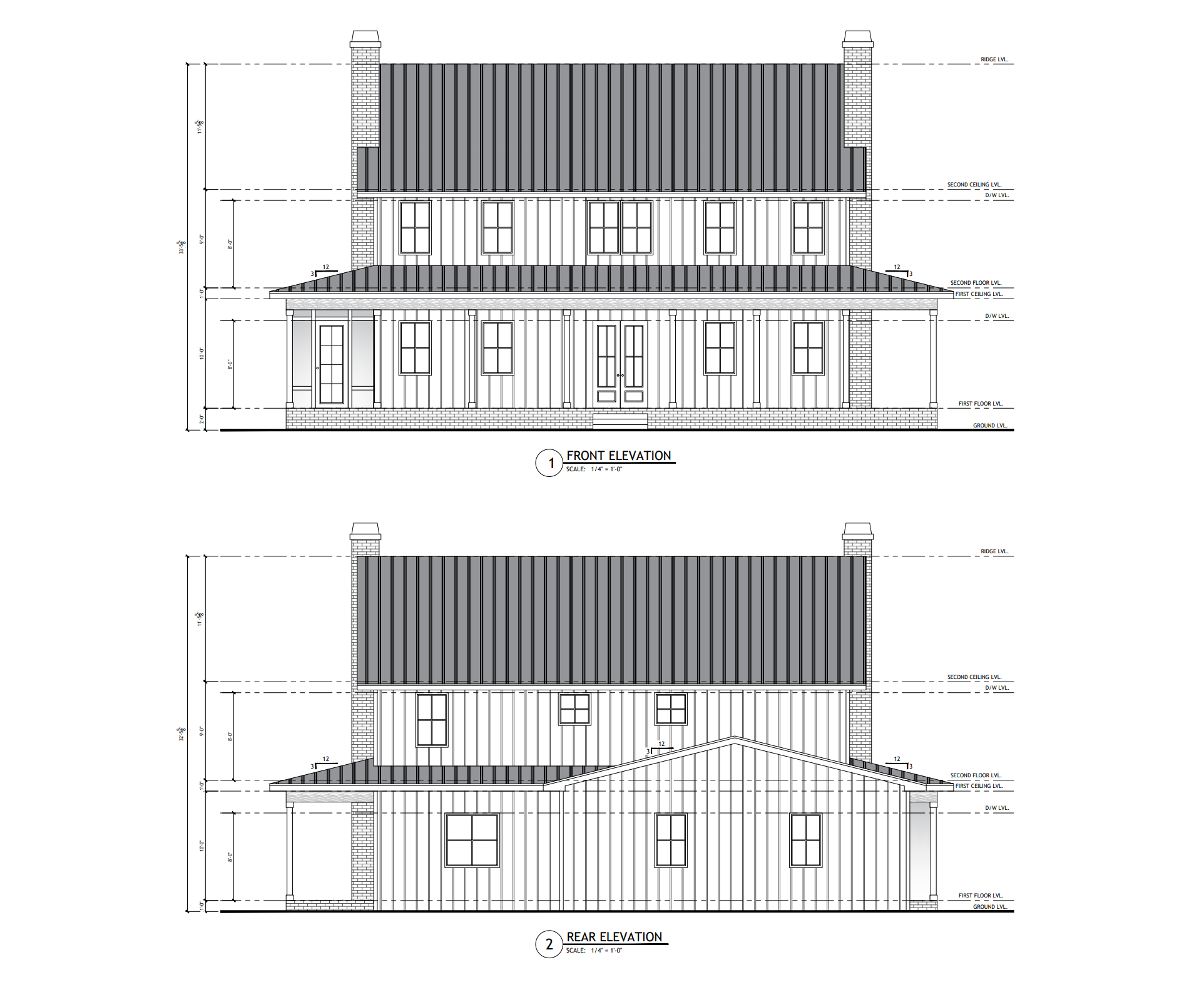
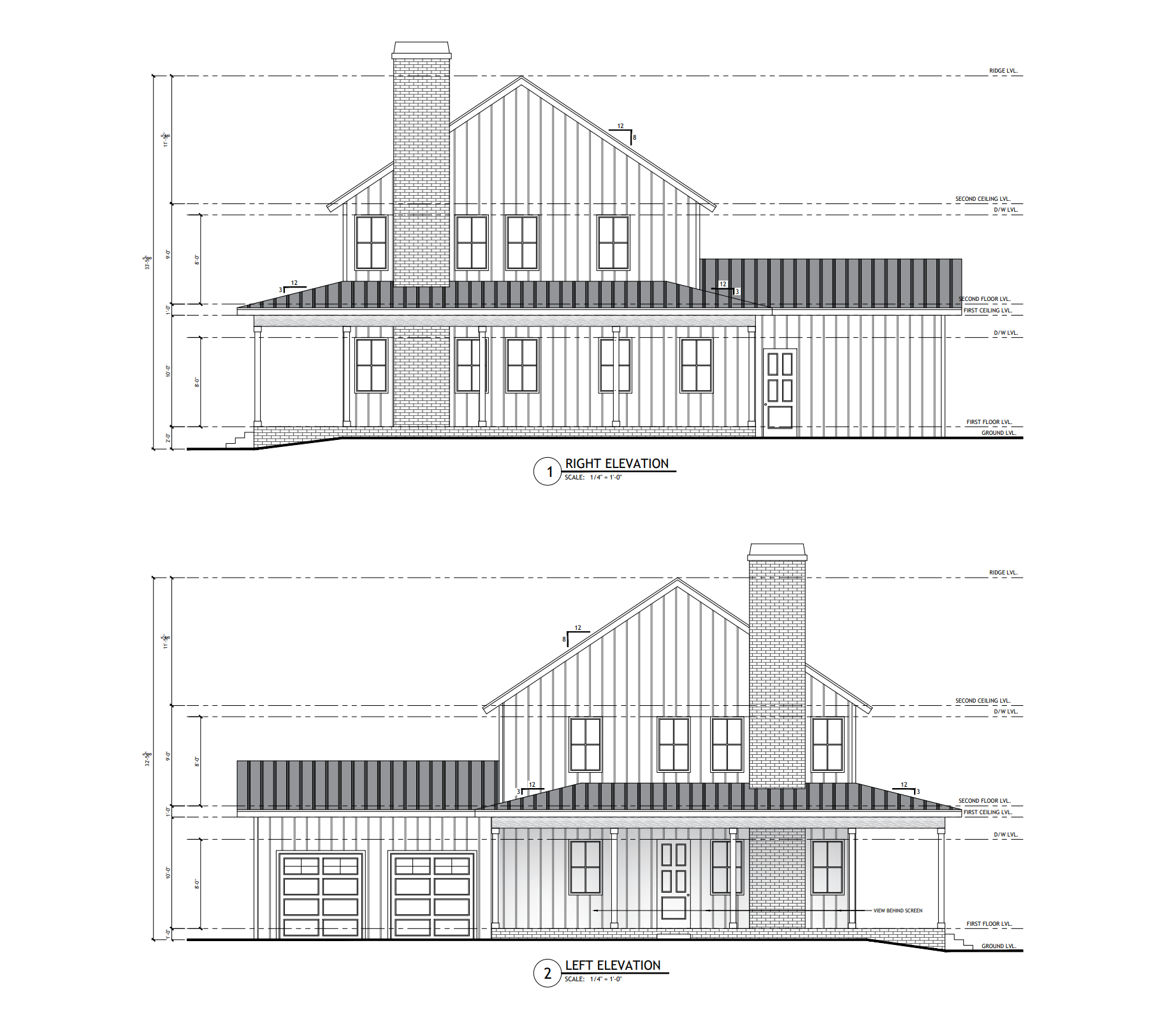
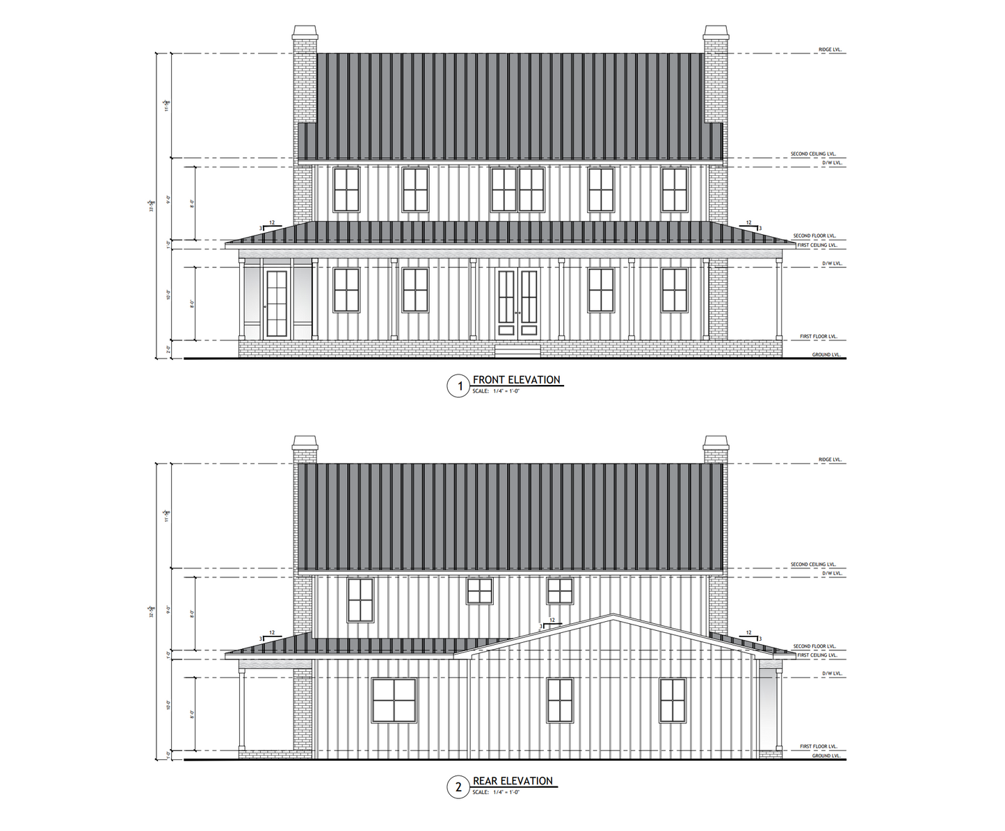
33'-5 5/8"
Concrete Slab
8:12
Stick Frame
CEILING HEIGHTS
10'
SV-30012 Tracy Custom Home Plan
- 2869 Heated Square Feet
- 4 Bedrooms
- 3.1 Bathrooms
- Two Story
- Open concept
- Guest Bedroom
- Classroom
- Screened porch with outdoor fireplace
- Wraparound porch
- 704 Sq Ft Garage
- A well-crafted 2,869 sq ft layout that blends comfort, style, and functional living across two beautifully designed floors.
- Four spacious bedrooms—including a private guest suite—paired with three full baths and a convenient half bath. The primary suite and kids’ bedrooms each include their own full bathrooms for ultimate privacy and comfort.
- A thoughtful two-story design featuring a loft plus three second-floor bedrooms and a dedicated classroom space.
- A relaxing screened porch complete with a cozy outdoor fireplace—perfect for year-round enjoyment.
- A charming wraparound porch that adds curb appeal and extends your living space outdoors.
- A roomy 704 sq ft two-car garage offering convenient parking, extra storage, and everyday practicality.
What's included in SV-30012:
Cover Page
First Floor Plan
Second Floor Plan
Roof Plan
Front And Rear Elevation
Right And Left Elevation
Interior Elevations
First Floor Electrical Plan
Second Floor Electrical Plan
First Floor Plumbing Plan
Second Floor Plumbing Plan
First Floor HVAC Plan
Second Floor HVAC Plan
Roof Framing Plan
First Floor Wall Framing Plan
Second Floor Wall Framing Plan
First Floor Ceiling Joist Plan
Second Floor Ceiling Joist Plan
Foundation Plan
Wall Section
Section A-A And Section B-B
Staircase Detail
Typical Framing Details-1
Typical Framing Details-2
Typical Framing Details-3
For more barndominium floor plans, check out our complete collection of 4-bedroom barndominium floor plans.
Need to make changes? Submit a modification request using the button that says Modify This Plan. We will get you a free price quote within 72 hours.
What's Typically Included
What's Typically Included
THE SPECIFC DETAILS OF WHAT'S INCLUDED ON THESE PLANS IS CONTAINED IN THE PRODUCT DESCRIPTION. PLEASE SCROLL UP AND YOU WILL FIND IT UNDER "WHAT'S INCLUDED"
Our house plan sets typically have the following details:
4 Elevations – Front, Back, Both Sides
Detailed Floor Plan Drawing
Electrical Plans with placements for HVAC
Plumbing Plans with Placements
Flooring Plan
Roof Plan
Foundation Plan
For more information on what's included and examples of what your plans will look like, go here -> https://barndominiumplans.com/pages/whats-included
Please Note: We work with many different draftspeople who work in many different ways. It should be noted that their plans may contain different details. THE SPECIFC DETAILS OF WHAT'S INCLUDED ON THESE PLANS IS CONTAINED IN THE PRODUCT DESCRIPTION. PLEASE SCROLL UP AND YOU WILL FIND IT UNDER "WHAT'S INCLUDED"
What's Not Included
What's Not Included
The following items are NOT included:
Architectural or Engineering Stamp. Our plans are engineering-ready! Can take them to a local engineer in your state.
Site Plan - We can provide this if needed for $300 additional.
Materials List - handled locally when required
Energy calculations - handled locally when required
Snow load calculations - handled locally when required
Delivery
Delivery
This plan is available as a digital product or printed + shipped.
If you select digital, the plan will be delivered to you via email as a PDF file, no matter what time it is.
If you select printed + shipped, your order will ship in 24x36 format within 1 business day of your order.
We ship from the midwest in order to serve the entire country within 3-5 business days!
Return policy
Return policy
All barndominium house plan purchases are FINAL. There are no exchanges or refunds due to the digital nature of the product. Please make sure that the plan you have selected is going to fit your needs.
PDF (Single Build) $849.99
DETAILS
HEATED SQ FT
First Floor:
1,477 SF
Second Floor:1,392 SF
Total Heated Sq Ft:2,869 SF
UNHEATED SQ FT
Garage 704 SF, Screened Porch 256 SF, Covered Porch 772 SF = TOTAL 1,732 SF
Carport:None
4
3
2
704 SF
59'-6"
62'
33'-5 5/8"
Concrete Slab
8:12
Stick Frame
CEILING HEIGHTS
10'
SV-30012 Tracy Custom Home Plan
- 2869 Heated Square Feet
- 4 Bedrooms
- 3.1 Bathrooms
- Two Story
- Open concept
- Guest Bedroom
- Classroom
- Screened porch with outdoor fireplace
- Wraparound porch
- 704 Sq Ft Garage
- A well-crafted 2,869 sq ft layout that blends comfort, style, and functional living across two beautifully designed floors.
- Four spacious bedrooms—including a private guest suite—paired with three full baths and a convenient half bath. The primary suite and kids’ bedrooms each include their own full bathrooms for ultimate privacy and comfort.
- A thoughtful two-story design featuring a loft plus three second-floor bedrooms and a dedicated classroom space.
- A relaxing screened porch complete with a cozy outdoor fireplace—perfect for year-round enjoyment.
- A charming wraparound porch that adds curb appeal and extends your living space outdoors.
- A roomy 704 sq ft two-car garage offering convenient parking, extra storage, and everyday practicality.
What's included in SV-30012:
Cover Page
First Floor Plan
Second Floor Plan
Roof Plan
Front And Rear Elevation
Right And Left Elevation
Interior Elevations
First Floor Electrical Plan
Second Floor Electrical Plan
First Floor Plumbing Plan
Second Floor Plumbing Plan
First Floor HVAC Plan
Second Floor HVAC Plan
Roof Framing Plan
First Floor Wall Framing Plan
Second Floor Wall Framing Plan
First Floor Ceiling Joist Plan
Second Floor Ceiling Joist Plan
Foundation Plan
Wall Section
Section A-A And Section B-B
Staircase Detail
Typical Framing Details-1
Typical Framing Details-2
Typical Framing Details-3
For more barndominium floor plans, check out our complete collection of 4-bedroom barndominium floor plans.
Need to make changes? Submit a modification request using the button that says Modify This Plan. We will get you a free price quote within 72 hours.
What's Typically Included
What's Typically Included
THE SPECIFC DETAILS OF WHAT'S INCLUDED ON THESE PLANS IS CONTAINED IN THE PRODUCT DESCRIPTION. PLEASE SCROLL UP AND YOU WILL FIND IT UNDER "WHAT'S INCLUDED"
Our house plan sets typically have the following details:
4 Elevations – Front, Back, Both Sides
Detailed Floor Plan Drawing
Electrical Plans with placements for HVAC
Plumbing Plans with Placements
Flooring Plan
Roof Plan
Foundation Plan
For more information on what's included and examples of what your plans will look like, go here -> https://barndominiumplans.com/pages/whats-included
Please Note: We work with many different draftspeople who work in many different ways. It should be noted that their plans may contain different details. THE SPECIFC DETAILS OF WHAT'S INCLUDED ON THESE PLANS IS CONTAINED IN THE PRODUCT DESCRIPTION. PLEASE SCROLL UP AND YOU WILL FIND IT UNDER "WHAT'S INCLUDED"
What's Not Included
What's Not Included
The following items are NOT included:
Architectural or Engineering Stamp. Our plans are engineering-ready! Can take them to a local engineer in your state.
Site Plan - We can provide this if needed for $300 additional.
Materials List - handled locally when required
Energy calculations - handled locally when required
Snow load calculations - handled locally when required
Delivery
Delivery
This plan is available as a digital product or printed + shipped.
If you select digital, the plan will be delivered to you via email as a PDF file, no matter what time it is.
If you select printed + shipped, your order will ship in 24x36 format within 1 business day of your order.
We ship from the midwest in order to serve the entire country within 3-5 business days!
Return policy
Return policy
All barndominium house plan purchases are FINAL. There are no exchanges or refunds due to the digital nature of the product. Please make sure that the plan you have selected is going to fit your needs.

Real Reviews, Real Experiences
How to Build Your Own Barndominium & 120+ House Plans
Just getting started on your build? Get the Barndominiums Made Easy Program.
- Choosing a selection results in a full page refresh.



