Couldn't load pickup availability
Barndominium Plans
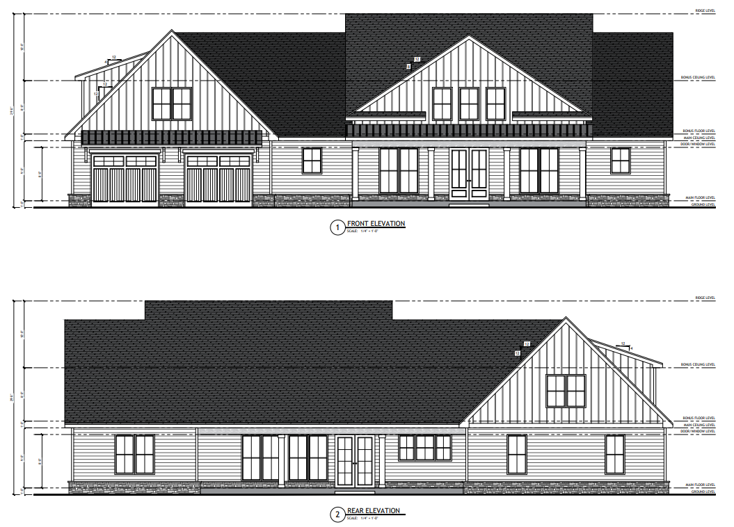
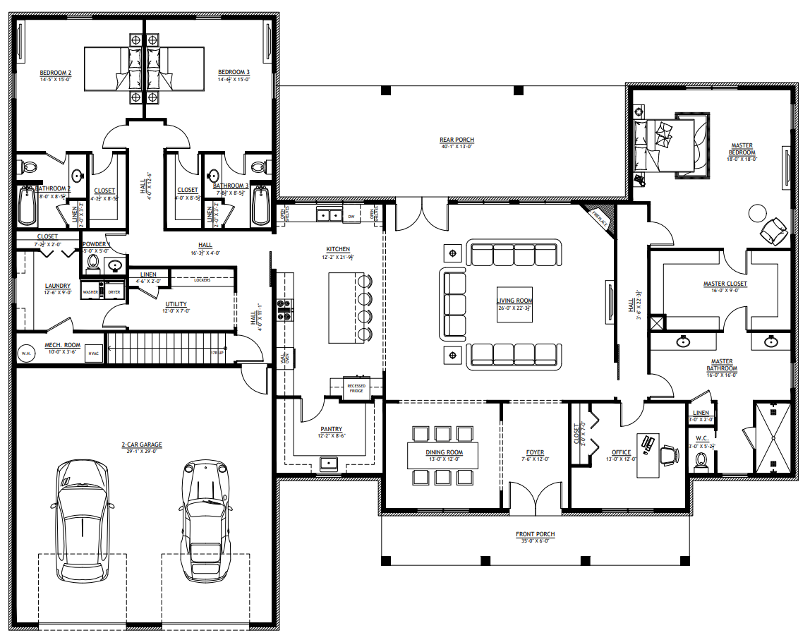
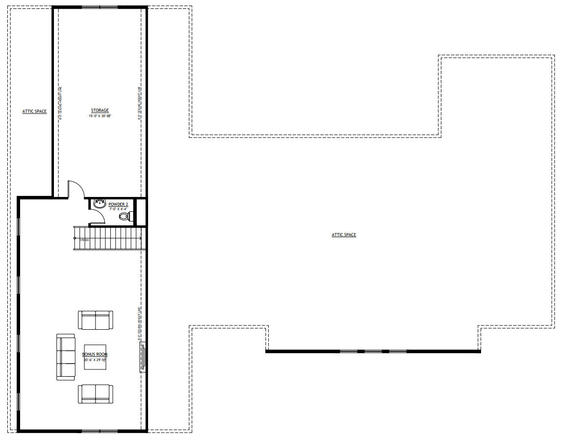
SV-30010 Marco Custom Home Plan
DETAILS
HEATED SQ FT
First Floor:
3,432 SF
Second Floor:818 SF
Total Heated Sq Ft:4,250 SF
UNHEATED SQ FT
Garage 898 SF, Storage 530 SF, Porch 731 SF = TOTAL 2,159 SF
Carport:None
3
3
2
898 SF
89'
69'-6"
29'
Concrete Slab
8:12
Stick Frame
CEILING HEIGHTS
9'
SV-30010 Marco Custom Home Plan
About this custom home plan:
- 4,250 Heated Sq Ft
- 3 Bedrooms
- 3.1 Bathrooms
- Two Story
- Open concept
- Foyer
- Office
- Utility room
- Storage
- Attic
- Bonus room
- Front porch & rear porch
- 898 Sq Ft garage
- A generous interior offering 4,250 square feet of conditioned space—crafted for expansive living, layered privacy, and seamless transitions across zones.
- Three spacious bedrooms and three full baths plus a powder room provide comfort and convenience for everyday living and effortless hosting.
- A defined entry that sets the tone—welcoming, intentional, and perfectly positioned to guide guests into the heart of the home.
- A dedicated workspace designed for focus and flow. Whether for remote work, study, or creative pursuits, this office offers quiet separation without feeling isolated.
- A tucked-away hub for systems and storage—keeping the essentials organised and the rest of the home running smoothly.
- Upstairs, a trio of flexible spaces—ample storage, an unfinished attic, and a spacious bonus room—ready to evolve into a studio, guest suite, or media lounge.
- Dual porches extend the living experience outdoors. Greet the day out front, unwind out back, and enjoy shaded comfort in every season.
- An oversized two-car garage offering 898 square feet of covered utility—ideal for vehicles, hobbies, or weekend projects with room to spare.
What's included in SV-30004:
Cover Page
Main Floor Plan
Bonus Floor Plan
Roof Plan
Front And Rear Elevation
Right And Left Elevation
Interior Elevations
Roof Framing Plan
Main Floor Wall Framing Plan Bonus Floor Wall Framing Plan Foundation Plan
Wall Section
Section A-A And Section B-B Typical Framing Details-1
Typical Framing Details-2
Typical Framing Details-3
For more barndominium floor plans, check out our complete collection of 3-bedroom barndominium floor plans.
Need to make changes? Submit a modification request using the button that says Modify This Plan (below the Add To Cart Button). We will get you a free price quote within 72 hours
Please note all square footage are estimates.
What's Typically Included
What's Typically Included
THE SPECIFC DETAILS OF WHAT'S INCLUDED ON THESE PLANS IS CONTAINED IN THE PRODUCT DESCRIPTION. PLEASE SCROLL UP AND YOU WILL FIND IT UNDER "WHAT'S INCLUDED"
Our house plan sets typically have the following details:
4 Elevations – Front, Back, Both Sides
Detailed Floor Plan Drawing
Electrical Plans with placements for HVAC
Plumbing Plans with Placements
Flooring Plan
Roof Plan
Foundation Plan
For more information on what's included and examples of what your plans will look like, go here -> https://barndominiumplans.com/pages/whats-included
Please Note: We work with many different draftspeople who work in many different ways. It should be noted that their plans may contain different details. THE SPECIFC DETAILS OF WHAT'S INCLUDED ON THESE PLANS IS CONTAINED IN THE PRODUCT DESCRIPTION. PLEASE SCROLL UP AND YOU WILL FIND IT UNDER "WHAT'S INCLUDED"
What's Not Included
What's Not Included
The following items are NOT included:
Architectural or Engineering Stamp. Our plans are engineering-ready! Can take them to a local engineer in your state.
Site Plan - We can provide this if needed for $300 additional.
Materials List - handled locally when required
Energy calculations - handled locally when required
Snow load calculations - handled locally when required
Delivery
Delivery
This plan is available as a digital product or printed + shipped.
If you select digital, the plan will be delivered to you via email as a PDF file, no matter what time it is.
If you select printed + shipped, your order will ship in 24x36 format within 1 business day of your order.
We ship from the midwest in order to serve the entire country within 3-5 business days!
Return policy
Return policy
All barndominium house plan purchases are FINAL. There are no exchanges or refunds due to the digital nature of the product. Please make sure that the plan you have selected is going to fit your needs.
PDF (Single Build) $1,749.99
DETAILS
HEATED SQ FT
First Floor:
3,432 SF
Second Floor:818 SF
Total Heated Sq Ft:4,250 SF
UNHEATED SQ FT
Garage 898 SF, Storage 530 SF, Porch 731 SF = TOTAL 2,159 SF
Carport:None
3
3
2
898 SF
89'
69'-6"
29'
Concrete Slab
8:12
Stick Frame
CEILING HEIGHTS
9'
SV-30010 Marco Custom Home Plan
About this custom home plan:
- 4,250 Heated Sq Ft
- 3 Bedrooms
- 3.1 Bathrooms
- Two Story
- Open concept
- Foyer
- Office
- Utility room
- Storage
- Attic
- Bonus room
- Front porch & rear porch
- 898 Sq Ft garage
- A generous interior offering 4,250 square feet of conditioned space—crafted for expansive living, layered privacy, and seamless transitions across zones.
- Three spacious bedrooms and three full baths plus a powder room provide comfort and convenience for everyday living and effortless hosting.
- A defined entry that sets the tone—welcoming, intentional, and perfectly positioned to guide guests into the heart of the home.
- A dedicated workspace designed for focus and flow. Whether for remote work, study, or creative pursuits, this office offers quiet separation without feeling isolated.
- A tucked-away hub for systems and storage—keeping the essentials organised and the rest of the home running smoothly.
- Upstairs, a trio of flexible spaces—ample storage, an unfinished attic, and a spacious bonus room—ready to evolve into a studio, guest suite, or media lounge.
- Dual porches extend the living experience outdoors. Greet the day out front, unwind out back, and enjoy shaded comfort in every season.
- An oversized two-car garage offering 898 square feet of covered utility—ideal for vehicles, hobbies, or weekend projects with room to spare.
What's included in SV-30004:
Cover Page
Main Floor Plan
Bonus Floor Plan
Roof Plan
Front And Rear Elevation
Right And Left Elevation
Interior Elevations
Roof Framing Plan
Main Floor Wall Framing Plan Bonus Floor Wall Framing Plan Foundation Plan
Wall Section
Section A-A And Section B-B Typical Framing Details-1
Typical Framing Details-2
Typical Framing Details-3
For more barndominium floor plans, check out our complete collection of 3-bedroom barndominium floor plans.
Need to make changes? Submit a modification request using the button that says Modify This Plan (below the Add To Cart Button). We will get you a free price quote within 72 hours
Please note all square footage are estimates.
What's Typically Included
What's Typically Included
THE SPECIFC DETAILS OF WHAT'S INCLUDED ON THESE PLANS IS CONTAINED IN THE PRODUCT DESCRIPTION. PLEASE SCROLL UP AND YOU WILL FIND IT UNDER "WHAT'S INCLUDED"
Our house plan sets typically have the following details:
4 Elevations – Front, Back, Both Sides
Detailed Floor Plan Drawing
Electrical Plans with placements for HVAC
Plumbing Plans with Placements
Flooring Plan
Roof Plan
Foundation Plan
For more information on what's included and examples of what your plans will look like, go here -> https://barndominiumplans.com/pages/whats-included
Please Note: We work with many different draftspeople who work in many different ways. It should be noted that their plans may contain different details. THE SPECIFC DETAILS OF WHAT'S INCLUDED ON THESE PLANS IS CONTAINED IN THE PRODUCT DESCRIPTION. PLEASE SCROLL UP AND YOU WILL FIND IT UNDER "WHAT'S INCLUDED"
What's Not Included
What's Not Included
The following items are NOT included:
Architectural or Engineering Stamp. Our plans are engineering-ready! Can take them to a local engineer in your state.
Site Plan - We can provide this if needed for $300 additional.
Materials List - handled locally when required
Energy calculations - handled locally when required
Snow load calculations - handled locally when required
Delivery
Delivery
This plan is available as a digital product or printed + shipped.
If you select digital, the plan will be delivered to you via email as a PDF file, no matter what time it is.
If you select printed + shipped, your order will ship in 24x36 format within 1 business day of your order.
We ship from the midwest in order to serve the entire country within 3-5 business days!
Return policy
Return policy
All barndominium house plan purchases are FINAL. There are no exchanges or refunds due to the digital nature of the product. Please make sure that the plan you have selected is going to fit your needs.





Real Reviews, Real Experiences
How to Build Your Own Barndominium & 120+ House Plans

Just getting started on your build? Get the Barndominiums Made Easy Program.
- Choosing a selection results in a full page refresh.