Couldn't load pickup availability
Barndominium Plans
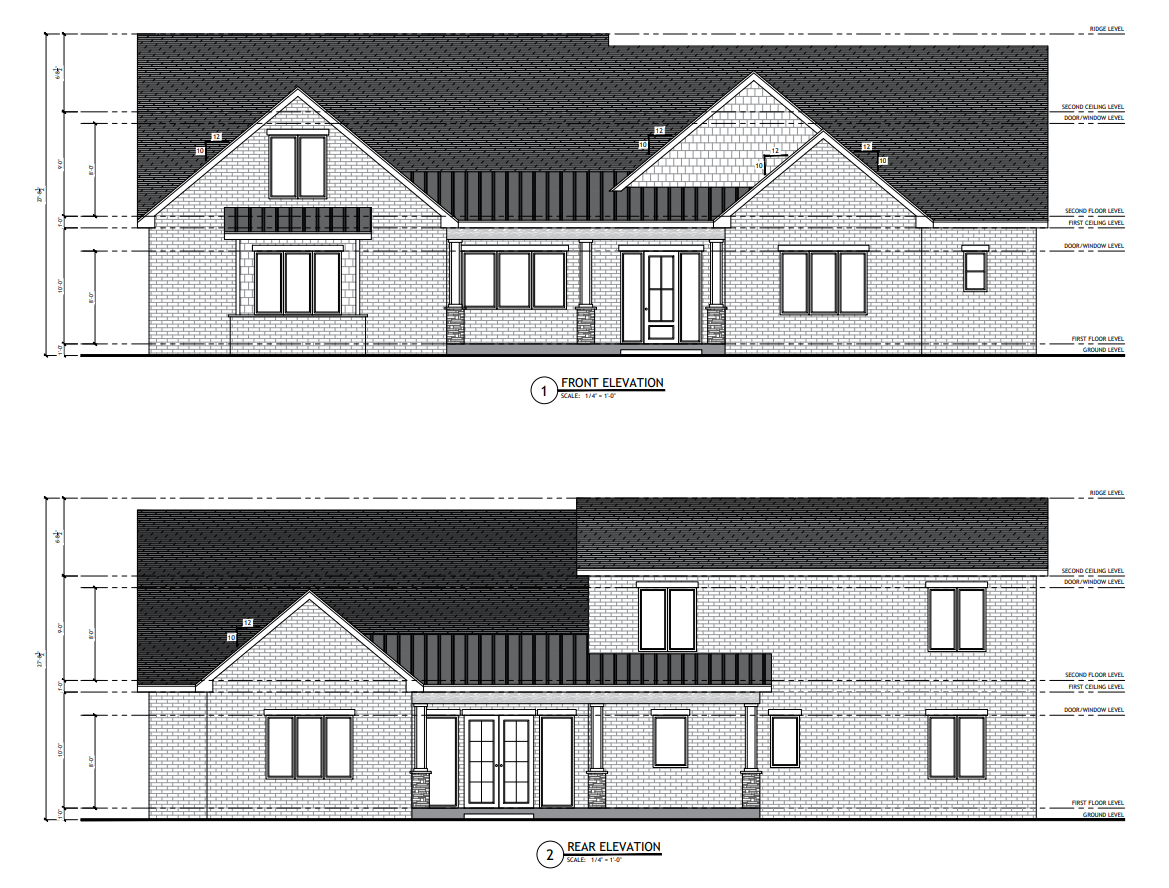
SV-30009 Jade Custom Home Plan
DETAILS
HEATED SQ FT
First Floor:
2,745 SF
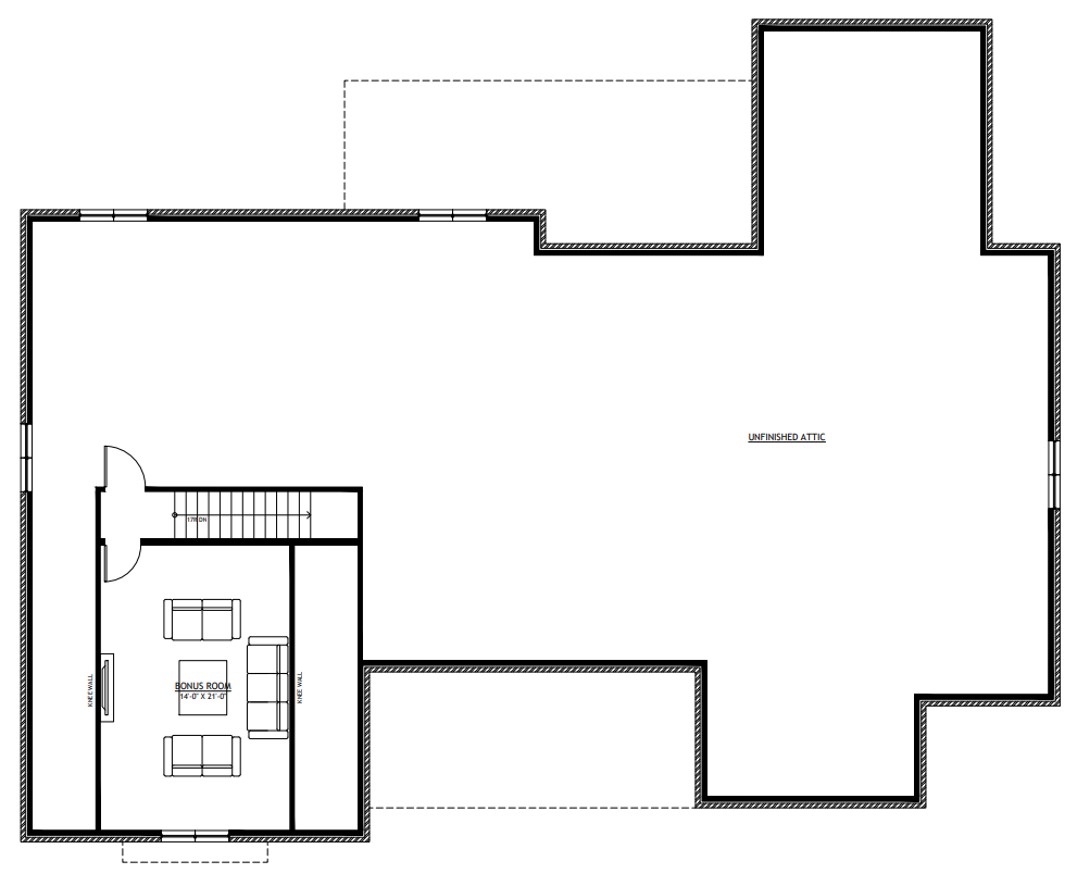
Second Floor:361 SF
Total Heated Sq Ft:3,106 SF
UNHEATED SQ FT
Garage 585 SF, Porch 563 SF = TOTAL 1,148 SF
Carport:None
4
3
2
585 SF
76'-6"
62'
27'-8 1/2"
Concrete Slab
10:12
Stick Frame
CEILING HEIGHTS
10'
SV-30009 Jade Custom Home Plan
About this custom home plan:.
- 3,106 Heated Sq Ft
- 4 Bedrooms
- 3 Bathrooms
- J&J Bathroom
- Two Story
- Open concept
- Foyer
- Butler's pantry
- Mudroom
- Unfinished attic
- Bonus room
- Front porch & rear porch
- 585 Sq Ft garage
- A spacious interior offering over 3,100 square feet of conditioned living—crafted for comfort, flow, and flexibility across every zone.
- Four well-placed bedrooms and three full baths provide privacy and ease for families, guests, and evolving lifestyles.
- A shared bath connects two bedrooms with thoughtful design—ideal for siblings, guests, or creating a semi-private suite with efficient flow.
- A welcoming entry that sets the tone with clarity and grace—guiding guests into the heart of the home while offering a moment of pause.
- Tucked between kitchen and dining, the butler’s pantry adds prep space, storage, and hosting ease—perfect for entertaining or everyday efficiency.
- A practical transition zone that keeps the rest of the home clean and organised. Drop your gear, sort your shoes, and move through the day with ease.
- A blank canvas above—ready for future expansion, storage, or creative transformation. Whether it becomes a studio, loft, or extra retreat, the potential is yours.
- A spacious upstairs bonus room offers flexibility for play, media, guests, or quiet escape. It’s a space that adapts to your rhythm.
- A well-sized garage with 585 square feet of covered utility—ideal for two vehicles, storage, or weekend projects.
What's included in SV-30008:
Cover Page
First Floor Plan
Second Floor Plan
Roof Plan
Front And Rear Elevation
Right And Left Elevation
Interior Elevations
First Floor Electrical Plan
Second Floor Electrical Plan
First Floor Plumbing Plan
First Floor HVAC Plan
Roof Framing Plan
First Floor Wall Framing Plan
Second Floor Wall Framing Plan
First Floor Ceiling Joist Plan
Foundation Plan
Foundation Detail
Interior Bearing Footing
C-Typical Column Detail
Wall Section
Section A-A And Section B-B
Typical Framing Details-1
Typical Framing Details-2
Typical Framing Details-3
For more barndominium floor plans, check out our complete collection of 4-bedroom barndominium floor plans.
Need to make changes? Submit a modification request using the button that says Modify This Plan (below the Add To Cart Button). We will get you a free price quote within 72 hours
Please note all square footage are estimates.
What's Typically Included
What's Typically Included
THE SPECIFC DETAILS OF WHAT'S INCLUDED ON THESE PLANS IS CONTAINED IN THE PRODUCT DESCRIPTION. PLEASE SCROLL UP AND YOU WILL FIND IT UNDER "WHAT'S INCLUDED"
Our house plan sets typically have the following details:
4 Elevations – Front, Back, Both Sides
Detailed Floor Plan Drawing
Electrical Plans with placements for HVAC
Plumbing Plans with Placements
Flooring Plan
Roof Plan
Foundation Plan
For more information on what's included and examples of what your plans will look like, go here -> https://barndominiumplans.com/pages/whats-included
Please Note: We work with many different draftspeople who work in many different ways. It should be noted that their plans may contain different details. THE SPECIFC DETAILS OF WHAT'S INCLUDED ON THESE PLANS IS CONTAINED IN THE PRODUCT DESCRIPTION. PLEASE SCROLL UP AND YOU WILL FIND IT UNDER "WHAT'S INCLUDED"
What's Not Included
What's Not Included
The following items are NOT included:
Architectural or Engineering Stamp. Our plans are engineering-ready! Can take them to a local engineer in your state.
Site Plan - We can provide this if needed for $300 additional.
Materials List - handled locally when required
Energy calculations - handled locally when required
Snow load calculations - handled locally when required
Delivery
Delivery
This plan is available as a digital product or printed + shipped.
If you select digital, the plan will be delivered to you via email as a PDF file, no matter what time it is.
If you select printed + shipped, your order will ship in 24x36 format within 1 business day of your order.
We ship from the midwest in order to serve the entire country within 3-5 business days!
Return policy
Return policy
All barndominium house plan purchases are FINAL. There are no exchanges or refunds due to the digital nature of the product. Please make sure that the plan you have selected is going to fit your needs.
PDF (Single Build) $1,749.99
DETAILS
HEATED SQ FT
First Floor:
2,745 SF
Second Floor:361 SF
Total Heated Sq Ft:3,106 SF
UNHEATED SQ FT
Garage 585 SF, Porch 563 SF = TOTAL 1,148 SF
Carport:None
4
3
2
585 SF
76'-6"
62'
27'-8 1/2"
Concrete Slab
10:12
Stick Frame
CEILING HEIGHTS
10'
SV-30009 Jade Custom Home Plan
About this custom home plan:.
- 3,106 Heated Sq Ft
- 4 Bedrooms
- 3 Bathrooms
- J&J Bathroom
- Two Story
- Open concept
- Foyer
- Butler's pantry
- Mudroom
- Unfinished attic
- Bonus room
- Front porch & rear porch
- 585 Sq Ft garage
- A spacious interior offering over 3,100 square feet of conditioned living—crafted for comfort, flow, and flexibility across every zone.
- Four well-placed bedrooms and three full baths provide privacy and ease for families, guests, and evolving lifestyles.
- A shared bath connects two bedrooms with thoughtful design—ideal for siblings, guests, or creating a semi-private suite with efficient flow.
- A welcoming entry that sets the tone with clarity and grace—guiding guests into the heart of the home while offering a moment of pause.
- Tucked between kitchen and dining, the butler’s pantry adds prep space, storage, and hosting ease—perfect for entertaining or everyday efficiency.
- A practical transition zone that keeps the rest of the home clean and organised. Drop your gear, sort your shoes, and move through the day with ease.
- A blank canvas above—ready for future expansion, storage, or creative transformation. Whether it becomes a studio, loft, or extra retreat, the potential is yours.
- A spacious upstairs bonus room offers flexibility for play, media, guests, or quiet escape. It’s a space that adapts to your rhythm.
- A well-sized garage with 585 square feet of covered utility—ideal for two vehicles, storage, or weekend projects.
What's included in SV-30008:
Cover Page
First Floor Plan
Second Floor Plan
Roof Plan
Front And Rear Elevation
Right And Left Elevation
Interior Elevations
First Floor Electrical Plan
Second Floor Electrical Plan
First Floor Plumbing Plan
First Floor HVAC Plan
Roof Framing Plan
First Floor Wall Framing Plan
Second Floor Wall Framing Plan
First Floor Ceiling Joist Plan
Foundation Plan
Foundation Detail
Interior Bearing Footing
C-Typical Column Detail
Wall Section
Section A-A And Section B-B
Typical Framing Details-1
Typical Framing Details-2
Typical Framing Details-3
For more barndominium floor plans, check out our complete collection of 4-bedroom barndominium floor plans.
Need to make changes? Submit a modification request using the button that says Modify This Plan (below the Add To Cart Button). We will get you a free price quote within 72 hours
Please note all square footage are estimates.
What's Typically Included
What's Typically Included
THE SPECIFC DETAILS OF WHAT'S INCLUDED ON THESE PLANS IS CONTAINED IN THE PRODUCT DESCRIPTION. PLEASE SCROLL UP AND YOU WILL FIND IT UNDER "WHAT'S INCLUDED"
Our house plan sets typically have the following details:
4 Elevations – Front, Back, Both Sides
Detailed Floor Plan Drawing
Electrical Plans with placements for HVAC
Plumbing Plans with Placements
Flooring Plan
Roof Plan
Foundation Plan
For more information on what's included and examples of what your plans will look like, go here -> https://barndominiumplans.com/pages/whats-included
Please Note: We work with many different draftspeople who work in many different ways. It should be noted that their plans may contain different details. THE SPECIFC DETAILS OF WHAT'S INCLUDED ON THESE PLANS IS CONTAINED IN THE PRODUCT DESCRIPTION. PLEASE SCROLL UP AND YOU WILL FIND IT UNDER "WHAT'S INCLUDED"
What's Not Included
What's Not Included
The following items are NOT included:
Architectural or Engineering Stamp. Our plans are engineering-ready! Can take them to a local engineer in your state.
Site Plan - We can provide this if needed for $300 additional.
Materials List - handled locally when required
Energy calculations - handled locally when required
Snow load calculations - handled locally when required
Delivery
Delivery
This plan is available as a digital product or printed + shipped.
If you select digital, the plan will be delivered to you via email as a PDF file, no matter what time it is.
If you select printed + shipped, your order will ship in 24x36 format within 1 business day of your order.
We ship from the midwest in order to serve the entire country within 3-5 business days!
Return policy
Return policy
All barndominium house plan purchases are FINAL. There are no exchanges or refunds due to the digital nature of the product. Please make sure that the plan you have selected is going to fit your needs.





Real Reviews, Real Experiences
How to Build Your Own Barndominium & 120+ House Plans

Just getting started on your build? Get the Barndominiums Made Easy Program.
- Choosing a selection results in a full page refresh.