Couldn't load pickup availability
Barndominium Plans
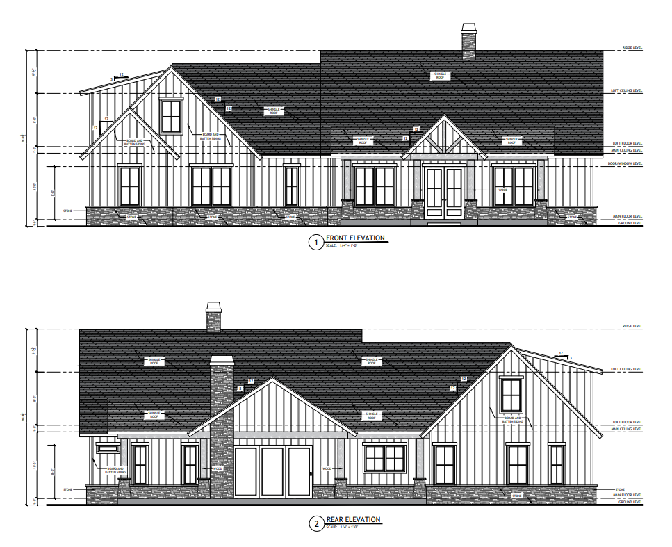
SV-30008 Windsor Custom Home Plan
DETAILS
HEATED SQ FT
First Floor:
2,835 SF
Second Floor:1,168 SF
Total Heated Sq Ft:2,835 SF
UNHEATED SQ FT
Garage 830 SF, Porch 904 SF, Bonus Floor 1,168 SF = TOTAL 2,902 SF
Carport:None
4
3
1
830 SF
75'-8 1/2"
68'-6"
26'-5 1/2"
Concrete Slab
8:12
Stick Frame
CEILING HEIGHTS
10'
SV-30008 Windsor Custom Home Plan
About this custom home plan:
- 2,835 Heated Sq Ft
- 4 Bedrooms
- 3.1 Bathrooms
- Single Story
- Open concept
- Foyer
- Office
- Mudroom
- Outdoor Fireplace
- Unfinished Bonus rooms
- Front porch & rear porch
- 830 Sq Ft garage
- A spacious interior offering 2,835 square feet of conditioned living—designed for comfort, flow, and the flexibility to grow with you.
- Four well-placed bedrooms and three full baths plus a powder room ensure privacy, convenience, and effortless hosting across every corner of the home.
- A defined entry that sets the tone—welcoming, intentional, and perfectly positioned to guide guests into the heart of the home.
- A dedicated workspace right off the entry, ideal for remote work, quiet study, or managing life’s logistics without disrupting the main living zones.
- The rear porch features a built-in outdoor fireplace—creating a cosy, open-air retreat for evening gatherings, cool mornings, or fireside lounging under the stars.
- Two spacious bonus rooms on the second floor offer endless potential ready to evolve with your lifestyle.
- An oversized garage with room for three vehicles and more. With 830 square feet, it’s perfect for storage, hobbies, or weekend tinkering.
What's included in SV-30008:
Cover Page
Floor Plan
Roof Plan
Four Elevations - Front, Back, Left Side, Right Side
Electrical Plan
Plumbing Plan
HVAC Plan
Roof Framing Plan
Foundation Plan
Foundation Detail
Interior Bearing Footing
C-Typical Column Detail
Wall Section
For more barndominium floor plans, check out our complete collection of 4-bedroom barndominium floor plans.
Need to make changes? Submit a modification request using the button that says Modify This Plan (below the Add To Cart Button). We will get you a free price quote within 72 hours
Please note all square footage are estimates.
What's Typically Included
What's Typically Included
THE SPECIFC DETAILS OF WHAT'S INCLUDED ON THESE PLANS IS CONTAINED IN THE PRODUCT DESCRIPTION. PLEASE SCROLL UP AND YOU WILL FIND IT UNDER "WHAT'S INCLUDED"
Our house plan sets typically have the following details:
4 Elevations – Front, Back, Both Sides
Detailed Floor Plan Drawing
Electrical Plans with placements for HVAC
Plumbing Plans with Placements
Flooring Plan
Roof Plan
Foundation Plan
For more information on what's included and examples of what your plans will look like, go here -> https://barndominiumplans.com/pages/whats-included
Please Note: We work with many different draftspeople who work in many different ways. It should be noted that their plans may contain different details. THE SPECIFC DETAILS OF WHAT'S INCLUDED ON THESE PLANS IS CONTAINED IN THE PRODUCT DESCRIPTION. PLEASE SCROLL UP AND YOU WILL FIND IT UNDER "WHAT'S INCLUDED"
What's Not Included
What's Not Included
The following items are NOT included:
Architectural or Engineering Stamp. Our plans are engineering-ready! Can take them to a local engineer in your state.
Site Plan - We can provide this if needed for $300 additional.
Materials List - handled locally when required
Energy calculations - handled locally when required
Snow load calculations - handled locally when required
Delivery
Delivery
This plan is available as a digital product or printed + shipped.
If you select digital, the plan will be delivered to you via email as a PDF file, no matter what time it is.
If you select printed + shipped, your order will ship in 24x36 format within 1 business day of your order.
We ship from the midwest in order to serve the entire country within 3-5 business days!
Return policy
Return policy
All barndominium house plan purchases are FINAL. There are no exchanges or refunds due to the digital nature of the product. Please make sure that the plan you have selected is going to fit your needs.
PDF (Single Build) $1,149.99
DETAILS
HEATED SQ FT
First Floor:
2,835 SF
Second Floor:1,168 SF
Total Heated Sq Ft:2,835 SF
UNHEATED SQ FT
Garage 830 SF, Porch 904 SF, Bonus Floor 1,168 SF = TOTAL 2,902 SF
Carport:None
4
3
1
830 SF
75'-8 1/2"
68'-6"
26'-5 1/2"
Concrete Slab
8:12
Stick Frame
CEILING HEIGHTS
10'
SV-30008 Windsor Custom Home Plan
About this custom home plan:
- 2,835 Heated Sq Ft
- 4 Bedrooms
- 3.1 Bathrooms
- Single Story
- Open concept
- Foyer
- Office
- Mudroom
- Outdoor Fireplace
- Unfinished Bonus rooms
- Front porch & rear porch
- 830 Sq Ft garage
- A spacious interior offering 2,835 square feet of conditioned living—designed for comfort, flow, and the flexibility to grow with you.
- Four well-placed bedrooms and three full baths plus a powder room ensure privacy, convenience, and effortless hosting across every corner of the home.
- A defined entry that sets the tone—welcoming, intentional, and perfectly positioned to guide guests into the heart of the home.
- A dedicated workspace right off the entry, ideal for remote work, quiet study, or managing life’s logistics without disrupting the main living zones.
- The rear porch features a built-in outdoor fireplace—creating a cosy, open-air retreat for evening gatherings, cool mornings, or fireside lounging under the stars.
- Two spacious bonus rooms on the second floor offer endless potential ready to evolve with your lifestyle.
- An oversized garage with room for three vehicles and more. With 830 square feet, it’s perfect for storage, hobbies, or weekend tinkering.
What's included in SV-30008:
Cover Page
Floor Plan
Roof Plan
Four Elevations - Front, Back, Left Side, Right Side
Electrical Plan
Plumbing Plan
HVAC Plan
Roof Framing Plan
Foundation Plan
Foundation Detail
Interior Bearing Footing
C-Typical Column Detail
Wall Section
For more barndominium floor plans, check out our complete collection of 4-bedroom barndominium floor plans.
Need to make changes? Submit a modification request using the button that says Modify This Plan (below the Add To Cart Button). We will get you a free price quote within 72 hours
Please note all square footage are estimates.
What's Typically Included
What's Typically Included
THE SPECIFC DETAILS OF WHAT'S INCLUDED ON THESE PLANS IS CONTAINED IN THE PRODUCT DESCRIPTION. PLEASE SCROLL UP AND YOU WILL FIND IT UNDER "WHAT'S INCLUDED"
Our house plan sets typically have the following details:
4 Elevations – Front, Back, Both Sides
Detailed Floor Plan Drawing
Electrical Plans with placements for HVAC
Plumbing Plans with Placements
Flooring Plan
Roof Plan
Foundation Plan
For more information on what's included and examples of what your plans will look like, go here -> https://barndominiumplans.com/pages/whats-included
Please Note: We work with many different draftspeople who work in many different ways. It should be noted that their plans may contain different details. THE SPECIFC DETAILS OF WHAT'S INCLUDED ON THESE PLANS IS CONTAINED IN THE PRODUCT DESCRIPTION. PLEASE SCROLL UP AND YOU WILL FIND IT UNDER "WHAT'S INCLUDED"
What's Not Included
What's Not Included
The following items are NOT included:
Architectural or Engineering Stamp. Our plans are engineering-ready! Can take them to a local engineer in your state.
Site Plan - We can provide this if needed for $300 additional.
Materials List - handled locally when required
Energy calculations - handled locally when required
Snow load calculations - handled locally when required
Delivery
Delivery
This plan is available as a digital product or printed + shipped.
If you select digital, the plan will be delivered to you via email as a PDF file, no matter what time it is.
If you select printed + shipped, your order will ship in 24x36 format within 1 business day of your order.
We ship from the midwest in order to serve the entire country within 3-5 business days!
Return policy
Return policy
All barndominium house plan purchases are FINAL. There are no exchanges or refunds due to the digital nature of the product. Please make sure that the plan you have selected is going to fit your needs.






Real Reviews, Real Experiences
How to Build Your Own Barndominium & 120+ House Plans

Just getting started on your build? Get the Barndominiums Made Easy Program.
- Choosing a selection results in a full page refresh.