Couldn't load pickup availability
Barndominium Plans
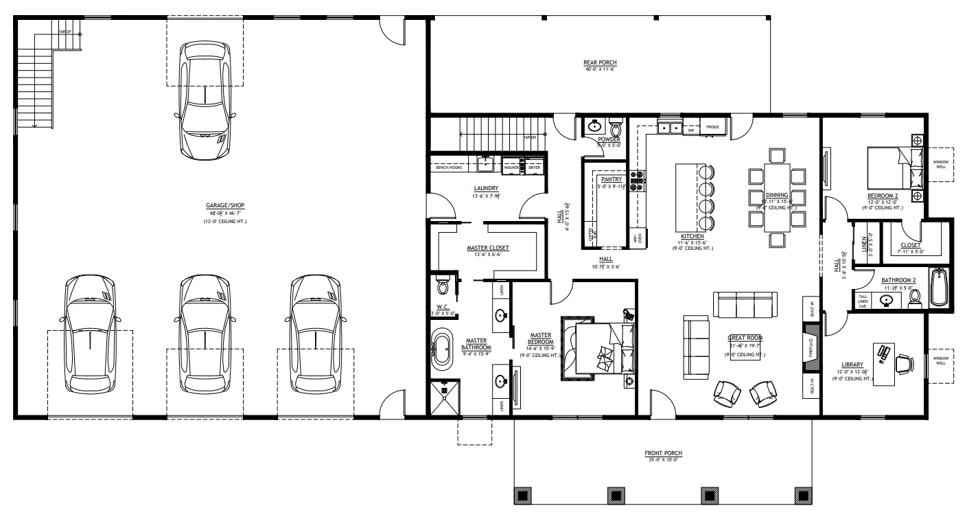
SV-30007 Rosewood Custom Home Plan
DETAILS
HEATED SQ FT
First Floor:
2,141 SF
Second Floor:None
Total Heated Sq Ft:4,282 SF
UNHEATED SQ FT
Garage 2,325 SF, Porch 810 SF = TOTAL 3,135 SF
Carport:None
4
3
1
2,325 SF
110'-6"
57'-6"
26'-0 1/2"
Basement
06:12
Stick Frame
CEILING HEIGHTS
13'
SV-30007 Rosewood Custom Home Plan
About this custom home plan:
- 4,282 Heated Sq Ft
- 4 Bedrooms
- 3.1 Bathrooms
- Single Story
- Basement
- Open concept
- Library
- Utility room
- Two great rooms
- Front porch & rear porch
- 2,325 sq ft garage
- A generous footprint offering over 4,280 square feet of conditioned space—designed for expansive living, layered privacy, and seamless transitions across levels.
- Two bedrooms on the main floor and two tucked into the basement create a flexible layout, each space offering a quiet retreat and room to personalise.
- Three full baths and a powder room ensure comfort and convenience throughout the home—supporting both daily routines and effortless hosting.
- Main-level living meets lower-level versatility. This design offers the ease of a single-story layout with the added depth and privacy of a finished basement.
- A dedicated space for quiet thought and curated shelves. Whether it’s a reading nook, study zone, or creative retreat, the library adds a layer of refinement to the home.
- A tucked-away hub for systems and storage—keeping the essentials organised and the rest of the home running smoothly.
- Two expansive living areas—one on each level—offer space to gather, relax, or entertain for movie nights upstairs or game days below.
- An oversized garage with space for four vehicles and more. With 2,325 square feet, it’s ideal for car enthusiasts, hobbyists, or anyone needing serious storage and workspace.
What's included in SV-30007:
Cover Page
Basement Floor Plan
Main Floor Plan
Roof Plan
Front And Rear Elevation
Right And Left Elevation
Interior Elevations
Roof Framing Plan
Basement Wall Framing Plan
Main Floor Wall Framing Plan
Basement Ceiling Joist Plan
Main Floor Ceiling Joist Plan
Foundation Plan
Wall Section
Section A-A And Section B-B
Typical Framing Details-1
Typical Framing Details-2
Typical Framing Details-3
For more barndominium floor plans, check out our complete collection of 4-bedroom barndominium floor plans.
Need to make changes? Submit a modification request using the button that says Modify This Plan . We will get you a free price quote within 72 hours
What's Typically Included
What's Typically Included
THE SPECIFC DETAILS OF WHAT'S INCLUDED ON THESE PLANS IS CONTAINED IN THE PRODUCT DESCRIPTION. PLEASE SCROLL UP AND YOU WILL FIND IT UNDER "WHAT'S INCLUDED"
Our house plan sets typically have the following details:
4 Elevations – Front, Back, Both Sides
Detailed Floor Plan Drawing
Electrical Plans with placements for HVAC
Plumbing Plans with Placements
Flooring Plan
Roof Plan
Foundation Plan
For more information on what's included and examples of what your plans will look like, go here -> https://barndominiumplans.com/pages/whats-included
Please Note: We work with many different draftspeople who work in many different ways. It should be noted that their plans may contain different details. THE SPECIFC DETAILS OF WHAT'S INCLUDED ON THESE PLANS IS CONTAINED IN THE PRODUCT DESCRIPTION. PLEASE SCROLL UP AND YOU WILL FIND IT UNDER "WHAT'S INCLUDED"
What's Not Included
What's Not Included
The following items are NOT included:
Architectural or Engineering Stamp. Our plans are engineering-ready! Can take them to a local engineer in your state.
Site Plan - We can provide this if needed for $300 additional.
Materials List - handled locally when required
Energy calculations - handled locally when required
Snow load calculations - handled locally when required
Delivery
Delivery
This plan is available as a digital product or printed + shipped.
If you select digital, the plan will be delivered to you via email as a PDF file, no matter what time it is.
If you select printed + shipped, your order will ship in 24x36 format within 1 business day of your order.
We ship from the midwest in order to serve the entire country within 3-5 business days!
Return policy
Return policy
All barndominium house plan purchases are FINAL. There are no exchanges or refunds due to the digital nature of the product. Please make sure that the plan you have selected is going to fit your needs.
PDF (Single Build) $1,799.99
DETAILS
HEATED SQ FT
First Floor:
2,141 SF
Second Floor:None
Total Heated Sq Ft:4,282 SF
UNHEATED SQ FT
Garage 2,325 SF, Porch 810 SF = TOTAL 3,135 SF
Carport:None
4
3
1
2,325 SF
110'-6"
57'-6"
26'-0 1/2"
Basement
06:12
Stick Frame
CEILING HEIGHTS
13'
SV-30007 Rosewood Custom Home Plan
About this custom home plan:
- 4,282 Heated Sq Ft
- 4 Bedrooms
- 3.1 Bathrooms
- Single Story
- Basement
- Open concept
- Library
- Utility room
- Two great rooms
- Front porch & rear porch
- 2,325 sq ft garage
- A generous footprint offering over 4,280 square feet of conditioned space—designed for expansive living, layered privacy, and seamless transitions across levels.
- Two bedrooms on the main floor and two tucked into the basement create a flexible layout, each space offering a quiet retreat and room to personalise.
- Three full baths and a powder room ensure comfort and convenience throughout the home—supporting both daily routines and effortless hosting.
- Main-level living meets lower-level versatility. This design offers the ease of a single-story layout with the added depth and privacy of a finished basement.
- A dedicated space for quiet thought and curated shelves. Whether it’s a reading nook, study zone, or creative retreat, the library adds a layer of refinement to the home.
- A tucked-away hub for systems and storage—keeping the essentials organised and the rest of the home running smoothly.
- Two expansive living areas—one on each level—offer space to gather, relax, or entertain for movie nights upstairs or game days below.
- An oversized garage with space for four vehicles and more. With 2,325 square feet, it’s ideal for car enthusiasts, hobbyists, or anyone needing serious storage and workspace.
What's included in SV-30007:
Cover Page
Basement Floor Plan
Main Floor Plan
Roof Plan
Front And Rear Elevation
Right And Left Elevation
Interior Elevations
Roof Framing Plan
Basement Wall Framing Plan
Main Floor Wall Framing Plan
Basement Ceiling Joist Plan
Main Floor Ceiling Joist Plan
Foundation Plan
Wall Section
Section A-A And Section B-B
Typical Framing Details-1
Typical Framing Details-2
Typical Framing Details-3
For more barndominium floor plans, check out our complete collection of 4-bedroom barndominium floor plans.
Need to make changes? Submit a modification request using the button that says Modify This Plan . We will get you a free price quote within 72 hours
What's Typically Included
What's Typically Included
THE SPECIFC DETAILS OF WHAT'S INCLUDED ON THESE PLANS IS CONTAINED IN THE PRODUCT DESCRIPTION. PLEASE SCROLL UP AND YOU WILL FIND IT UNDER "WHAT'S INCLUDED"
Our house plan sets typically have the following details:
4 Elevations – Front, Back, Both Sides
Detailed Floor Plan Drawing
Electrical Plans with placements for HVAC
Plumbing Plans with Placements
Flooring Plan
Roof Plan
Foundation Plan
For more information on what's included and examples of what your plans will look like, go here -> https://barndominiumplans.com/pages/whats-included
Please Note: We work with many different draftspeople who work in many different ways. It should be noted that their plans may contain different details. THE SPECIFC DETAILS OF WHAT'S INCLUDED ON THESE PLANS IS CONTAINED IN THE PRODUCT DESCRIPTION. PLEASE SCROLL UP AND YOU WILL FIND IT UNDER "WHAT'S INCLUDED"
What's Not Included
What's Not Included
The following items are NOT included:
Architectural or Engineering Stamp. Our plans are engineering-ready! Can take them to a local engineer in your state.
Site Plan - We can provide this if needed for $300 additional.
Materials List - handled locally when required
Energy calculations - handled locally when required
Snow load calculations - handled locally when required
Delivery
Delivery
This plan is available as a digital product or printed + shipped.
If you select digital, the plan will be delivered to you via email as a PDF file, no matter what time it is.
If you select printed + shipped, your order will ship in 24x36 format within 1 business day of your order.
We ship from the midwest in order to serve the entire country within 3-5 business days!
Return policy
Return policy
All barndominium house plan purchases are FINAL. There are no exchanges or refunds due to the digital nature of the product. Please make sure that the plan you have selected is going to fit your needs.

Real Reviews, Real Experiences
How to Build Your Own Barndominium & 120+ House Plans
Just getting started on your build? Get the Barndominiums Made Easy Program.
- Choosing a selection results in a full page refresh.



