Couldn't load pickup availability
Barndominium Plans
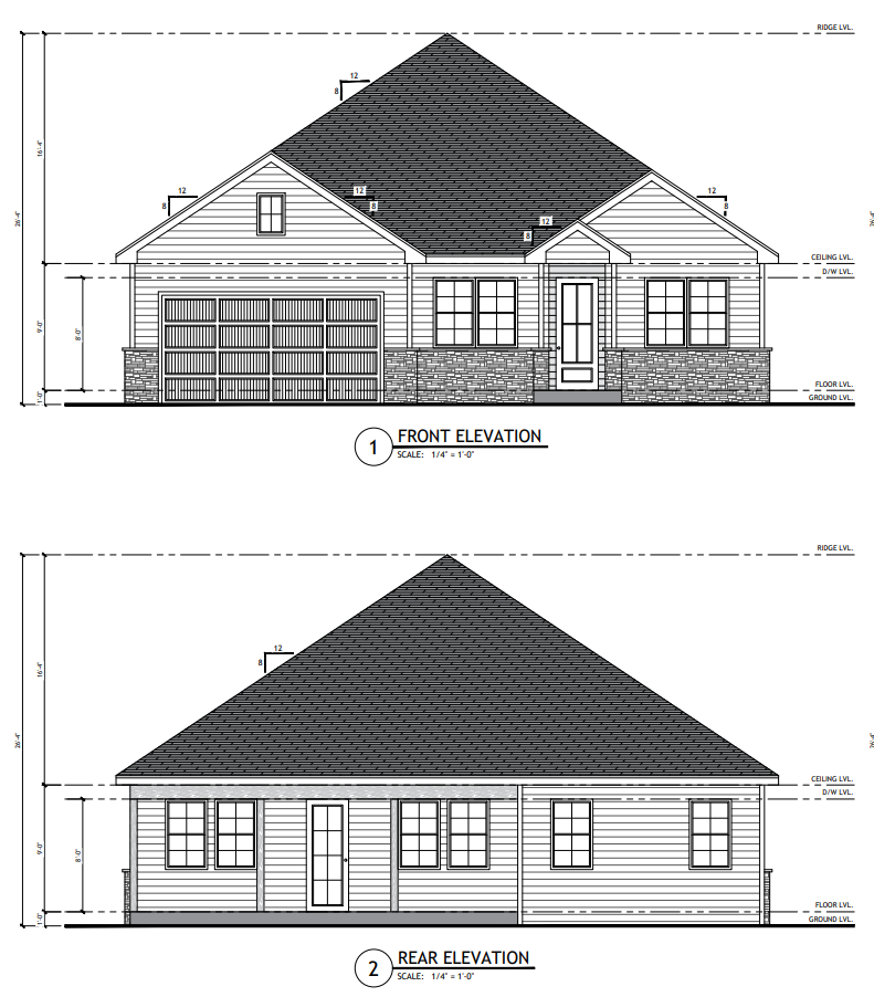
SV-30006 Oakland Custom Home Plan
DETAILS
HEATED SQ FT
First Floor:
1,637 SF
Second Floor:None
Total Heated Sq Ft:1,637 SF
UNHEATED SQ FT
Garage 412 SF, Porch 202 SF = TOTAL 202 SF
Carport:None
3
2
1
412 SF
45'
52'
26'-4"
Concrete Slab
8:12
Stick Frame
CEILING HEIGHTS
9'
SV-30006 Oakland Custom Home Plan
About this custom home plan:
- 1,637 Heated Sq Ft
- 3 Bedrooms
- 2 Bathrooms
- Single Story
- Open concept
- Foyer
- Office
- Mudroom
- Front porch & rear porch
- 412 sq ft garage
- A well-proportioned interior offering 1,637 square feet of conditioned space—designed for easy movement, natural light, and everyday comfort.
- Three restful bedrooms and two full baths provide the perfect balance of privacy and practicality—ideal for families, guests, or flexible living.
- A welcoming entry that sets the tone. The foyer offers a graceful transition into the home, with direct access to the office and living spaces.
- This cleverly positioned mudroom connects directly to the laundry room, master bath, and bedroom—streamlining routines and keeping the rest of the home clean and organised.
- A dedicated workspace right off the entry—perfect for remote work, quiet study, or managing life’s logistics without disrupting the flow of the home.
- A compact yet efficient garage offering 412 square feet of covered space—ideal for two vehicles, storage, or weekend projects.
What's included in SV-30004:
Cover Page
Detailed Floor Plan
Roof Plan
Four Elevations - Front, Back, Left Side, Right Side
Electrical Plan
Plumbing Plan
HVAC Plan
Roof Framing Plan
Floor Wall Framing Plan
Ceiling Joist Plan
Foundation Plan
Foundation Detail
Interior Bearing Footing
C-Typical Column Detail
Wall Section
Section A-A And Section B-B
Typical Framing Details
For more barndominium floor plans, check out our complete collection of 3-bedroom barndominium floor plans.
Need to make changes? Submit a modification request using the button that says Modify This Plan (below the Add To Cart Button). We will get you a free price quote within 72 hours
Please note all square footage are estimates.
What's Typically Included
What's Typically Included
THE SPECIFC DETAILS OF WHAT'S INCLUDED ON THESE PLANS IS CONTAINED IN THE PRODUCT DESCRIPTION. PLEASE SCROLL UP AND YOU WILL FIND IT UNDER "WHAT'S INCLUDED"
Our house plan sets typically have the following details:
4 Elevations – Front, Back, Both Sides
Detailed Floor Plan Drawing
Electrical Plans with placements for HVAC
Plumbing Plans with Placements
Flooring Plan
Roof Plan
Foundation Plan
For more information on what's included and examples of what your plans will look like, go here -> https://barndominiumplans.com/pages/whats-included
Please Note: We work with many different draftspeople who work in many different ways. It should be noted that their plans may contain different details. THE SPECIFC DETAILS OF WHAT'S INCLUDED ON THESE PLANS IS CONTAINED IN THE PRODUCT DESCRIPTION. PLEASE SCROLL UP AND YOU WILL FIND IT UNDER "WHAT'S INCLUDED"
What's Not Included
What's Not Included
The following items are NOT included:
Architectural or Engineering Stamp. Our plans are engineering-ready! Can take them to a local engineer in your state.
Site Plan - We can provide this if needed for $300 additional.
Materials List - handled locally when required
Energy calculations - handled locally when required
Snow load calculations - handled locally when required
Delivery
Delivery
This plan is available as a digital product or printed + shipped.
If you select digital, the plan will be delivered to you via email as a PDF file, no matter what time it is.
If you select printed + shipped, your order will ship in 24x36 format within 1 business day of your order.
We ship from the midwest in order to serve the entire country within 3-5 business days!
Return policy
Return policy
All barndominium house plan purchases are FINAL. There are no exchanges or refunds due to the digital nature of the product. Please make sure that the plan you have selected is going to fit your needs.
PDF (Single Build) $1,149.99
DETAILS
HEATED SQ FT
First Floor:
1,637 SF
Second Floor:None
Total Heated Sq Ft:1,637 SF
UNHEATED SQ FT
Garage 412 SF, Porch 202 SF = TOTAL 202 SF
Carport:None
3
2
1
412 SF
45'
52'
26'-4"
Concrete Slab
8:12
Stick Frame
CEILING HEIGHTS
9'
SV-30006 Oakland Custom Home Plan
About this custom home plan:
- 1,637 Heated Sq Ft
- 3 Bedrooms
- 2 Bathrooms
- Single Story
- Open concept
- Foyer
- Office
- Mudroom
- Front porch & rear porch
- 412 sq ft garage
- A well-proportioned interior offering 1,637 square feet of conditioned space—designed for easy movement, natural light, and everyday comfort.
- Three restful bedrooms and two full baths provide the perfect balance of privacy and practicality—ideal for families, guests, or flexible living.
- A welcoming entry that sets the tone. The foyer offers a graceful transition into the home, with direct access to the office and living spaces.
- This cleverly positioned mudroom connects directly to the laundry room, master bath, and bedroom—streamlining routines and keeping the rest of the home clean and organised.
- A dedicated workspace right off the entry—perfect for remote work, quiet study, or managing life’s logistics without disrupting the flow of the home.
- A compact yet efficient garage offering 412 square feet of covered space—ideal for two vehicles, storage, or weekend projects.
What's included in SV-30004:
Cover Page
Detailed Floor Plan
Roof Plan
Four Elevations - Front, Back, Left Side, Right Side
Electrical Plan
Plumbing Plan
HVAC Plan
Roof Framing Plan
Floor Wall Framing Plan
Ceiling Joist Plan
Foundation Plan
Foundation Detail
Interior Bearing Footing
C-Typical Column Detail
Wall Section
Section A-A And Section B-B
Typical Framing Details
For more barndominium floor plans, check out our complete collection of 3-bedroom barndominium floor plans.
Need to make changes? Submit a modification request using the button that says Modify This Plan (below the Add To Cart Button). We will get you a free price quote within 72 hours
Please note all square footage are estimates.
What's Typically Included
What's Typically Included
THE SPECIFC DETAILS OF WHAT'S INCLUDED ON THESE PLANS IS CONTAINED IN THE PRODUCT DESCRIPTION. PLEASE SCROLL UP AND YOU WILL FIND IT UNDER "WHAT'S INCLUDED"
Our house plan sets typically have the following details:
4 Elevations – Front, Back, Both Sides
Detailed Floor Plan Drawing
Electrical Plans with placements for HVAC
Plumbing Plans with Placements
Flooring Plan
Roof Plan
Foundation Plan
For more information on what's included and examples of what your plans will look like, go here -> https://barndominiumplans.com/pages/whats-included
Please Note: We work with many different draftspeople who work in many different ways. It should be noted that their plans may contain different details. THE SPECIFC DETAILS OF WHAT'S INCLUDED ON THESE PLANS IS CONTAINED IN THE PRODUCT DESCRIPTION. PLEASE SCROLL UP AND YOU WILL FIND IT UNDER "WHAT'S INCLUDED"
What's Not Included
What's Not Included
The following items are NOT included:
Architectural or Engineering Stamp. Our plans are engineering-ready! Can take them to a local engineer in your state.
Site Plan - We can provide this if needed for $300 additional.
Materials List - handled locally when required
Energy calculations - handled locally when required
Snow load calculations - handled locally when required
Delivery
Delivery
This plan is available as a digital product or printed + shipped.
If you select digital, the plan will be delivered to you via email as a PDF file, no matter what time it is.
If you select printed + shipped, your order will ship in 24x36 format within 1 business day of your order.
We ship from the midwest in order to serve the entire country within 3-5 business days!
Return policy
Return policy
All barndominium house plan purchases are FINAL. There are no exchanges or refunds due to the digital nature of the product. Please make sure that the plan you have selected is going to fit your needs.






Real Reviews, Real Experiences
How to Build Your Own Barndominium & 120+ House Plans

Just getting started on your build? Get the Barndominiums Made Easy Program.
- Choosing a selection results in a full page refresh.