Couldn't load pickup availability
Barndominium Plans
SV-30004 Eastwood Custom Home Plan
DETAILS
HEATED SQ FT
First Floor:
1,358 SF
Second Floor:948 SF
Total Heated Sq Ft:2,306 SF
UNHEATED SQ FT
Garage 556 SF, Porch 349 SF = TOTAL 905 SF
Carport:None
3
2
2
556 SF
45'
58'
28'-8"
Concrete Slab
12:12
Stick Frame
CEILING HEIGHTS
10'
SV-30004 Eastwood Custom Home Plan
About this Custom Home Plan:
- 2,306 Heated Sq Ft
- 3 Bedrooms
- 2.1 Bathrooms
- Two Story
- Open concept
- Foyer
- Utility room
- Bonus room
- Mudroom
- Front porch & rear porch
- 556 sq ft garage
- A well-balanced interior spanning over 2,300 square feet—crafted for movement, light, and layered living. Every inch is designed to support both quiet retreat and lively gathering.
- Three sleeping quarters and two full baths offer comfort and privacy, while the powder room adds a touch of convenience for guests and everyday flow.
- A defined entry that sets the tone—welcoming, intentional, and quietly elegant. It’s the pause before the home unfolds.
- Out of sight but always essential. This utility space keeps systems organized and the rest of the home running smoothly.
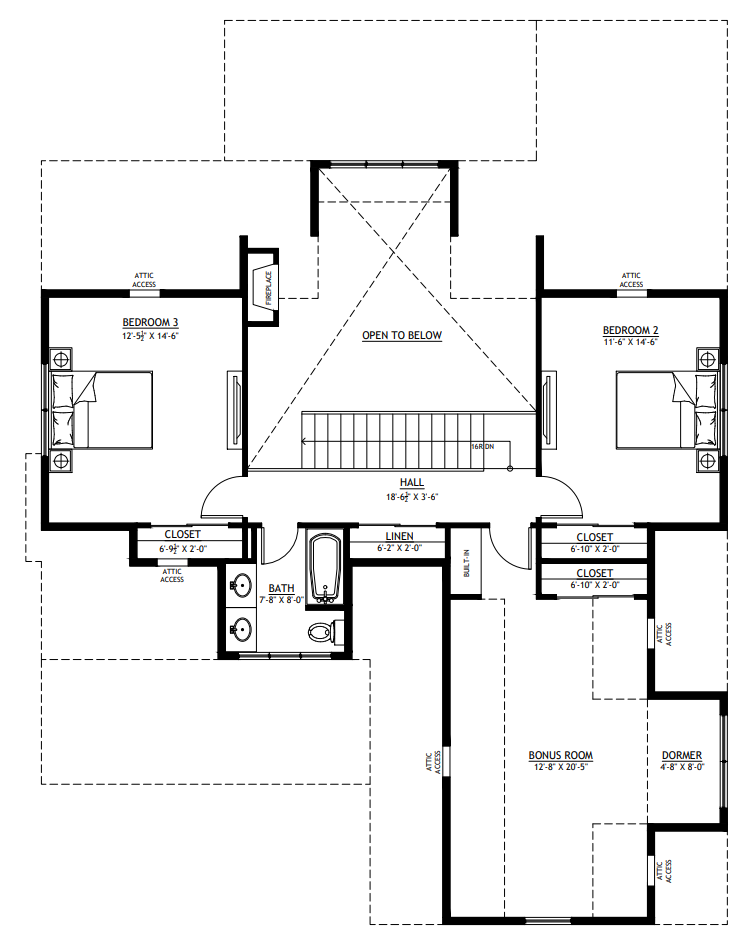
- Upstairs, a spacious bonus room bathed in natural light from its dormer window. Perfect for play, creativity, or quiet escape—this space invites imagination.
- A practical threshold between the garage and the heart of the home. Drop your gear, sort your shoes, and transition with ease—this mudroom is built for real life.
- A compact yet capable garage offering 556 square feet of covered utility for vehicles, storage, or weekend tinkering.
What's included in SV-30004:
Cover Page
Detailed Floor Plan
Roof Plan
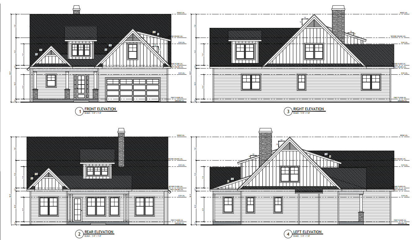
Four Elevations - Front, Back, Left Side, Right Side
Electrical Plan
Plumbing Plan
HVAC Plan
Roof Framing Plan
Floor Wall Framing Plan
Ceiling Joist Plan
Foundation Plan
Foundation Detail
Interior Bearing Footing
C-Typical Column Detail
Wall Section
Section A-A And Section B-B
Typical Framing Details
For more barndominium floor plans, check out our complete collection of 3-bedroom barndominium floor plans.
Need to make changes? Submit a modification request using the button that says Modify This Plan (below the Add To Cart Button). We will get you a free price quote within 72 hours
Please note all square footage are estimates.
What's Typically Included
What's Typically Included
THE SPECIFC DETAILS OF WHAT'S INCLUDED ON THESE PLANS IS CONTAINED IN THE PRODUCT DESCRIPTION. PLEASE SCROLL UP AND YOU WILL FIND IT UNDER "WHAT'S INCLUDED"
Our house plan sets typically have the following details:
4 Elevations – Front, Back, Both Sides
Detailed Floor Plan Drawing
Electrical Plans with placements for HVAC
Plumbing Plans with Placements
Flooring Plan
Roof Plan
Foundation Plan
For more information on what's included and examples of what your plans will look like, go here -> https://barndominiumplans.com/pages/whats-included
Please Note: We work with many different draftspeople who work in many different ways. It should be noted that their plans may contain different details. THE SPECIFC DETAILS OF WHAT'S INCLUDED ON THESE PLANS IS CONTAINED IN THE PRODUCT DESCRIPTION. PLEASE SCROLL UP AND YOU WILL FIND IT UNDER "WHAT'S INCLUDED"
What's Not Included
What's Not Included
The following items are NOT included:
Architectural or Engineering Stamp. Our plans are engineering-ready! Can take them to a local engineer in your state.
Site Plan - We can provide this if needed for $300 additional.
Materials List - handled locally when required
Energy calculations - handled locally when required
Snow load calculations - handled locally when required
Delivery
Delivery
This plan is available as a digital product or printed + shipped.
If you select digital, the plan will be delivered to you via email as a PDF file, no matter what time it is.
If you select printed + shipped, your order will ship in 24x36 format within 1 business day of your order.
We ship from the midwest in order to serve the entire country within 3-5 business days!
Return policy
Return policy
All barndominium house plan purchases are FINAL. There are no exchanges or refunds due to the digital nature of the product. Please make sure that the plan you have selected is going to fit your needs.
PDF (Single Build) $1,149.99
DETAILS
HEATED SQ FT
First Floor:
1,358 SF
Second Floor:948 SF
Total Heated Sq Ft:2,306 SF
UNHEATED SQ FT
Garage 556 SF, Porch 349 SF = TOTAL 905 SF
Carport:None
3
2
2
556 SF
45'
58'
28'-8"
Concrete Slab
12:12
Stick Frame
CEILING HEIGHTS
10'
SV-30004 Eastwood Custom Home Plan
About this Custom Home Plan:
- 2,306 Heated Sq Ft
- 3 Bedrooms
- 2.1 Bathrooms
- Two Story
- Open concept
- Foyer
- Utility room
- Bonus room
- Mudroom
- Front porch & rear porch
- 556 sq ft garage
- A well-balanced interior spanning over 2,300 square feet—crafted for movement, light, and layered living. Every inch is designed to support both quiet retreat and lively gathering.
- Three sleeping quarters and two full baths offer comfort and privacy, while the powder room adds a touch of convenience for guests and everyday flow.
- A defined entry that sets the tone—welcoming, intentional, and quietly elegant. It’s the pause before the home unfolds.
- Out of sight but always essential. This utility space keeps systems organized and the rest of the home running smoothly.
- Upstairs, a spacious bonus room bathed in natural light from its dormer window. Perfect for play, creativity, or quiet escape—this space invites imagination.
- A practical threshold between the garage and the heart of the home. Drop your gear, sort your shoes, and transition with ease—this mudroom is built for real life.
- A compact yet capable garage offering 556 square feet of covered utility for vehicles, storage, or weekend tinkering.
What's included in SV-30004:
Cover Page
Detailed Floor Plan
Roof Plan
Four Elevations - Front, Back, Left Side, Right Side
Electrical Plan
Plumbing Plan
HVAC Plan
Roof Framing Plan
Floor Wall Framing Plan
Ceiling Joist Plan
Foundation Plan
Foundation Detail
Interior Bearing Footing
C-Typical Column Detail
Wall Section
Section A-A And Section B-B
Typical Framing Details
For more barndominium floor plans, check out our complete collection of 3-bedroom barndominium floor plans.
Need to make changes? Submit a modification request using the button that says Modify This Plan (below the Add To Cart Button). We will get you a free price quote within 72 hours
Please note all square footage are estimates.
What's Typically Included
What's Typically Included
THE SPECIFC DETAILS OF WHAT'S INCLUDED ON THESE PLANS IS CONTAINED IN THE PRODUCT DESCRIPTION. PLEASE SCROLL UP AND YOU WILL FIND IT UNDER "WHAT'S INCLUDED"
Our house plan sets typically have the following details:
4 Elevations – Front, Back, Both Sides
Detailed Floor Plan Drawing
Electrical Plans with placements for HVAC
Plumbing Plans with Placements
Flooring Plan
Roof Plan
Foundation Plan
For more information on what's included and examples of what your plans will look like, go here -> https://barndominiumplans.com/pages/whats-included
Please Note: We work with many different draftspeople who work in many different ways. It should be noted that their plans may contain different details. THE SPECIFC DETAILS OF WHAT'S INCLUDED ON THESE PLANS IS CONTAINED IN THE PRODUCT DESCRIPTION. PLEASE SCROLL UP AND YOU WILL FIND IT UNDER "WHAT'S INCLUDED"
What's Not Included
What's Not Included
The following items are NOT included:
Architectural or Engineering Stamp. Our plans are engineering-ready! Can take them to a local engineer in your state.
Site Plan - We can provide this if needed for $300 additional.
Materials List - handled locally when required
Energy calculations - handled locally when required
Snow load calculations - handled locally when required
Delivery
Delivery
This plan is available as a digital product or printed + shipped.
If you select digital, the plan will be delivered to you via email as a PDF file, no matter what time it is.
If you select printed + shipped, your order will ship in 24x36 format within 1 business day of your order.
We ship from the midwest in order to serve the entire country within 3-5 business days!
Return policy
Return policy
All barndominium house plan purchases are FINAL. There are no exchanges or refunds due to the digital nature of the product. Please make sure that the plan you have selected is going to fit your needs.







Real Reviews, Real Experiences
How to Build Your Own Barndominium & 120+ House Plans

Just getting started on your build? Get the Barndominiums Made Easy Program.
- Choosing a selection results in a full page refresh.