Couldn't load pickup availability
Barndominium Plans
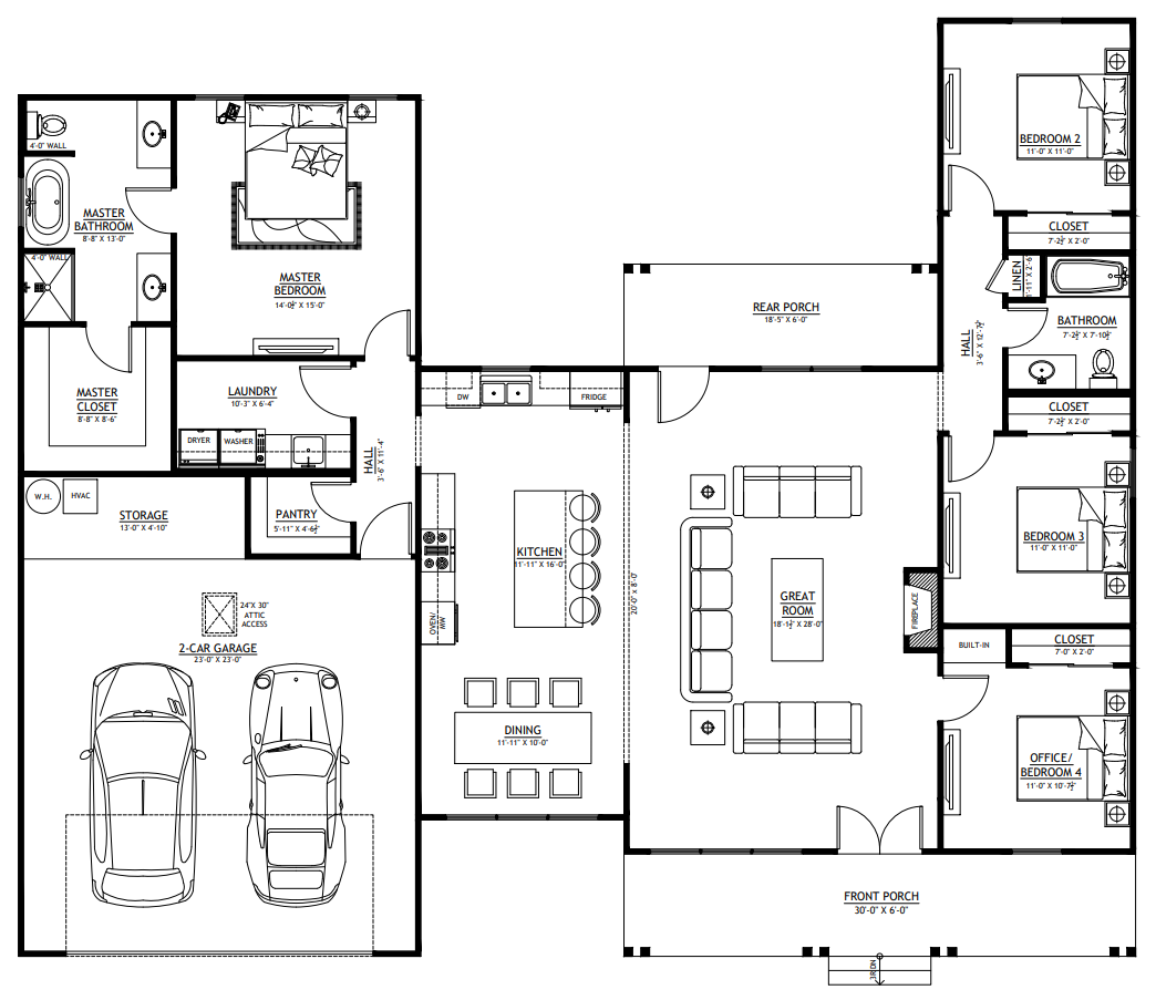
SV-30003 Cambridge Custom Home Plan
DETAILS
HEATED SQ FT
First Floor:
1,992 SF
Second Floor:None
Total Heated Sq Ft:1,992 SF
UNHEATED SQ FT
Garage 609 SF, Porch 290 SF = TOTAL 899 SF
Carport:None
4
2
1
609 SF
65'-6"
55'
21'-11 1/2"
Concrete Slab
10:12
Stick Frame
CEILING HEIGHTS
9'
SV-30003 Cambridge Custom Home Plan
About this Custom Home Plan:
- 1,992 Heated Sq Ft
- 4 Bedrooms
- 2 Bathrooms
- Single Story
- Open concept
- Storage area
- Front porch & rear porch
- 609 sq ft garage
- A well-proportioned interior offering just under 2,000 square feet of conditioned space—crafted for easy flow, functional living, and room to grow.
- Four versatile rooms, with one ready to transform into a home office, studio, or guest space. Whether you're working remotely or hosting family, the layout flexes to fit your lifestyle.
- Two full baths designed for comfort and convenience—streamlining morning routines and offering a quiet retreat at day’s end.
- Tucked within the garage, this dedicated storage zone keeps tools, gear, and seasonal items organized and out of sight—freeing up space inside the home.
- Dual porches invite outdoor living from sunrise to sunset. Welcome guests out front, unwind out back, and enjoy shaded comfort in every season.
- A spacious two-car garage with 609 square feet of covered utility—ideal for vehicles, weekend projects, or extra storage with room to spare.
What's included in SV-30003:
Cover Page
Floor Plan
Roof Plan
Four Elevations - Front, Back, Left Side, Right Side
Electrical Plan
Plumbing Plan
HVAC Plan
Roof Framing Plan
Roof Details
Foundation Plan
Foundation Details
Interior Bearing Footing C-Typical Column Detail
Wall Section
For more barndominium floor plans, check out our complete collection of 3-bedroom barndominium floor plans.
Need to make changes? Submit a modification request using the button that says Modify This Plan (below the Add To Cart Button). We will get you a free price quote within 72 hours
Please note all square footage are estimates.
What's Typically Included
What's Typically Included
THE SPECIFC DETAILS OF WHAT'S INCLUDED ON THESE PLANS IS CONTAINED IN THE PRODUCT DESCRIPTION. PLEASE SCROLL UP AND YOU WILL FIND IT UNDER "WHAT'S INCLUDED"
Our house plan sets typically have the following details:
4 Elevations – Front, Back, Both Sides
Detailed Floor Plan Drawing
Electrical Plans with placements for HVAC
Plumbing Plans with Placements
Flooring Plan
Roof Plan
Foundation Plan
For more information on what's included and examples of what your plans will look like, go here -> https://barndominiumplans.com/pages/whats-included
Please Note: We work with many different draftspeople who work in many different ways. It should be noted that their plans may contain different details. THE SPECIFC DETAILS OF WHAT'S INCLUDED ON THESE PLANS IS CONTAINED IN THE PRODUCT DESCRIPTION. PLEASE SCROLL UP AND YOU WILL FIND IT UNDER "WHAT'S INCLUDED"
What's Not Included
What's Not Included
The following items are NOT included:
Architectural or Engineering Stamp. Our plans are engineering-ready! Can take them to a local engineer in your state.
Site Plan - We can provide this if needed for $300 additional.
Materials List - handled locally when required
Energy calculations - handled locally when required
Snow load calculations - handled locally when required
Delivery
Delivery
This plan is available as a digital product or printed + shipped.
If you select digital, the plan will be delivered to you via email as a PDF file, no matter what time it is.
If you select printed + shipped, your order will ship in 24x36 format within 1 business day of your order.
We ship from the midwest in order to serve the entire country within 3-5 business days!
Return policy
Return policy
All barndominium house plan purchases are FINAL. There are no exchanges or refunds due to the digital nature of the product. Please make sure that the plan you have selected is going to fit your needs.
PDF (Single Build) $1,149.99
DETAILS
HEATED SQ FT
First Floor:
1,992 SF
Second Floor:None
Total Heated Sq Ft:1,992 SF
UNHEATED SQ FT
Garage 609 SF, Porch 290 SF = TOTAL 899 SF
Carport:None
4
2
1
609 SF
65'-6"
55'
21'-11 1/2"
Concrete Slab
10:12
Stick Frame
CEILING HEIGHTS
9'
SV-30003 Cambridge Custom Home Plan
About this Custom Home Plan:
- 1,992 Heated Sq Ft
- 4 Bedrooms
- 2 Bathrooms
- Single Story
- Open concept
- Storage area
- Front porch & rear porch
- 609 sq ft garage
- A well-proportioned interior offering just under 2,000 square feet of conditioned space—crafted for easy flow, functional living, and room to grow.
- Four versatile rooms, with one ready to transform into a home office, studio, or guest space. Whether you're working remotely or hosting family, the layout flexes to fit your lifestyle.
- Two full baths designed for comfort and convenience—streamlining morning routines and offering a quiet retreat at day’s end.
- Tucked within the garage, this dedicated storage zone keeps tools, gear, and seasonal items organized and out of sight—freeing up space inside the home.
- Dual porches invite outdoor living from sunrise to sunset. Welcome guests out front, unwind out back, and enjoy shaded comfort in every season.
- A spacious two-car garage with 609 square feet of covered utility—ideal for vehicles, weekend projects, or extra storage with room to spare.
What's included in SV-30003:
Cover Page
Floor Plan
Roof Plan
Four Elevations - Front, Back, Left Side, Right Side
Electrical Plan
Plumbing Plan
HVAC Plan
Roof Framing Plan
Roof Details
Foundation Plan
Foundation Details
Interior Bearing Footing C-Typical Column Detail
Wall Section
For more barndominium floor plans, check out our complete collection of 3-bedroom barndominium floor plans.
Need to make changes? Submit a modification request using the button that says Modify This Plan (below the Add To Cart Button). We will get you a free price quote within 72 hours
Please note all square footage are estimates.
What's Typically Included
What's Typically Included
THE SPECIFC DETAILS OF WHAT'S INCLUDED ON THESE PLANS IS CONTAINED IN THE PRODUCT DESCRIPTION. PLEASE SCROLL UP AND YOU WILL FIND IT UNDER "WHAT'S INCLUDED"
Our house plan sets typically have the following details:
4 Elevations – Front, Back, Both Sides
Detailed Floor Plan Drawing
Electrical Plans with placements for HVAC
Plumbing Plans with Placements
Flooring Plan
Roof Plan
Foundation Plan
For more information on what's included and examples of what your plans will look like, go here -> https://barndominiumplans.com/pages/whats-included
Please Note: We work with many different draftspeople who work in many different ways. It should be noted that their plans may contain different details. THE SPECIFC DETAILS OF WHAT'S INCLUDED ON THESE PLANS IS CONTAINED IN THE PRODUCT DESCRIPTION. PLEASE SCROLL UP AND YOU WILL FIND IT UNDER "WHAT'S INCLUDED"
What's Not Included
What's Not Included
The following items are NOT included:
Architectural or Engineering Stamp. Our plans are engineering-ready! Can take them to a local engineer in your state.
Site Plan - We can provide this if needed for $300 additional.
Materials List - handled locally when required
Energy calculations - handled locally when required
Snow load calculations - handled locally when required
Delivery
Delivery
This plan is available as a digital product or printed + shipped.
If you select digital, the plan will be delivered to you via email as a PDF file, no matter what time it is.
If you select printed + shipped, your order will ship in 24x36 format within 1 business day of your order.
We ship from the midwest in order to serve the entire country within 3-5 business days!
Return policy
Return policy
All barndominium house plan purchases are FINAL. There are no exchanges or refunds due to the digital nature of the product. Please make sure that the plan you have selected is going to fit your needs.






Real Reviews, Real Experiences
How to Build Your Own Barndominium & 120+ House Plans

Just getting started on your build? Get the Barndominiums Made Easy Program.
- Choosing a selection results in a full page refresh.