Couldn't load pickup availability
Barndominium Plans
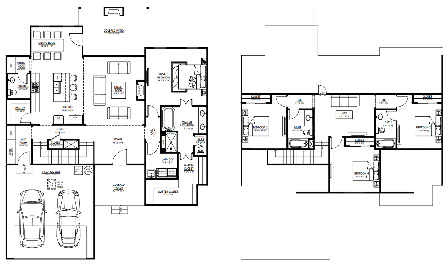
SV-30001 Asher Custom Home Plan
DETAILS
HEATED SQ FT
First Floor:
1,615 SF
Second Floor:826 SF
Total Heated Sq Ft:2,441 SF
UNHEATED SQ FT
Garage 510 SF, Porch/Patio 321 SF = TOTAL 831 SF
Carport:None
4
3
2
510 SF
49'-10"
62'-3 1/2"
27'-8"
Concrete Slab
12:12
Stick Frame
CEILING HEIGHTS
9'
SV-30001 Asher Custom Home Plan
About this Custom Home Plan:
- 2,441 Heated Sq Ft
- 4 Bedrooms
- 3.1 Bathrooms
- Two Story
- Loft
- Open concept
- Mudroom
- Study nook
- Foyer
- Outdoor fireplace
- Covered front porch & back patio
- 510 sq ft garage
- This spacious home offers a comfortable lifestyle with 2,441 heated square feet, thoughtfully designed for both daily living and entertaining.
- The four-bedroom layout provides a private escape, featuring a convenient master suite on the main floor and three additional bedrooms located upstairs for family and guests.
- With three full baths and a powder room, this home is designed for convenience. The huge master bath offers a luxurious retreat, while a half bath is easily accessible on the main floor, and two more full baths are situated upstairs.
- A practical mudroom helps keep your home organized, providing the perfect drop-zone for coats, shoes, and bags.
- Find a quiet space to focus and be productive in the convenient study nook, ideal for work or homework.
- A welcoming foyer provides a grand entrance, setting the tone for the sophisticated home that lies beyond.
- Embrace the outdoors with a charming covered front porch and a back patio featuring an inviting outdoor fireplace, perfect for cozy evenings.
- Includes a two-car, 510-square-foot garage, offering ample space for vehicles, tools, and extra storage.
What's included in SV-30001:
Detailed Floor Plan Dimensions
Roof Plan
Four Elevations - Front, Back, Left Side, Right Side
Electrical Plan
Plumbing Plan
HVAC Plan
Roof Framing Plan
Foundation Plan
Foundation Details
Wall Section
For more barndominium floor plans, check out our complete collection of 4-bedroom barndominium floor plans.
Need to make changes? Submit a modification request using the button that says Modify This Plan . We will get you a free price quote within 72 hours
What's Typically Included
What's Typically Included
THE SPECIFC DETAILS OF WHAT'S INCLUDED ON THESE PLANS IS CONTAINED IN THE PRODUCT DESCRIPTION. PLEASE SCROLL UP AND YOU WILL FIND IT UNDER "WHAT'S INCLUDED"
Our house plan sets typically have the following details:
4 Elevations – Front, Back, Both Sides
Detailed Floor Plan Drawing
Electrical Plans with placements for HVAC
Plumbing Plans with Placements
Flooring Plan
Roof Plan
Foundation Plan
For more information on what's included and examples of what your plans will look like, go here -> https://barndominiumplans.com/pages/whats-included
Please Note: We work with many different draftspeople who work in many different ways. It should be noted that their plans may contain different details. THE SPECIFC DETAILS OF WHAT'S INCLUDED ON THESE PLANS IS CONTAINED IN THE PRODUCT DESCRIPTION. PLEASE SCROLL UP AND YOU WILL FIND IT UNDER "WHAT'S INCLUDED"
What's Not Included
What's Not Included
The following items are NOT included:
Architectural or Engineering Stamp. Our plans are engineering-ready! Can take them to a local engineer in your state.
Site Plan - We can provide this if needed for $300 additional.
Materials List - handled locally when required
Energy calculations - handled locally when required
Snow load calculations - handled locally when required
Delivery
Delivery
This plan is available as a digital product or printed + shipped.
If you select digital, the plan will be delivered to you via email as a PDF file, no matter what time it is.
If you select printed + shipped, your order will ship in 24x36 format within 1 business day of your order.
We ship from the midwest in order to serve the entire country within 3-5 business days!
Return policy
Return policy
All barndominium house plan purchases are FINAL. There are no exchanges or refunds due to the digital nature of the product. Please make sure that the plan you have selected is going to fit your needs.
PDF (Single Build) $1,149.99
DETAILS
HEATED SQ FT
First Floor:
1,615 SF
Second Floor:826 SF
Total Heated Sq Ft:2,441 SF
UNHEATED SQ FT
Garage 510 SF, Porch/Patio 321 SF = TOTAL 831 SF
Carport:None
4
3
2
510 SF
49'-10"
62'-3 1/2"
27'-8"
Concrete Slab
12:12
Stick Frame
CEILING HEIGHTS
9'
SV-30001 Asher Custom Home Plan
About this Custom Home Plan:
- 2,441 Heated Sq Ft
- 4 Bedrooms
- 3.1 Bathrooms
- Two Story
- Loft
- Open concept
- Mudroom
- Study nook
- Foyer
- Outdoor fireplace
- Covered front porch & back patio
- 510 sq ft garage
- This spacious home offers a comfortable lifestyle with 2,441 heated square feet, thoughtfully designed for both daily living and entertaining.
- The four-bedroom layout provides a private escape, featuring a convenient master suite on the main floor and three additional bedrooms located upstairs for family and guests.
- With three full baths and a powder room, this home is designed for convenience. The huge master bath offers a luxurious retreat, while a half bath is easily accessible on the main floor, and two more full baths are situated upstairs.
- A practical mudroom helps keep your home organized, providing the perfect drop-zone for coats, shoes, and bags.
- Find a quiet space to focus and be productive in the convenient study nook, ideal for work or homework.
- A welcoming foyer provides a grand entrance, setting the tone for the sophisticated home that lies beyond.
- Embrace the outdoors with a charming covered front porch and a back patio featuring an inviting outdoor fireplace, perfect for cozy evenings.
- Includes a two-car, 510-square-foot garage, offering ample space for vehicles, tools, and extra storage.
What's included in SV-30001:
Detailed Floor Plan Dimensions
Roof Plan
Four Elevations - Front, Back, Left Side, Right Side
Electrical Plan
Plumbing Plan
HVAC Plan
Roof Framing Plan
Foundation Plan
Foundation Details
Wall Section
For more barndominium floor plans, check out our complete collection of 4-bedroom barndominium floor plans.
Need to make changes? Submit a modification request using the button that says Modify This Plan . We will get you a free price quote within 72 hours
What's Typically Included
What's Typically Included
THE SPECIFC DETAILS OF WHAT'S INCLUDED ON THESE PLANS IS CONTAINED IN THE PRODUCT DESCRIPTION. PLEASE SCROLL UP AND YOU WILL FIND IT UNDER "WHAT'S INCLUDED"
Our house plan sets typically have the following details:
4 Elevations – Front, Back, Both Sides
Detailed Floor Plan Drawing
Electrical Plans with placements for HVAC
Plumbing Plans with Placements
Flooring Plan
Roof Plan
Foundation Plan
For more information on what's included and examples of what your plans will look like, go here -> https://barndominiumplans.com/pages/whats-included
Please Note: We work with many different draftspeople who work in many different ways. It should be noted that their plans may contain different details. THE SPECIFC DETAILS OF WHAT'S INCLUDED ON THESE PLANS IS CONTAINED IN THE PRODUCT DESCRIPTION. PLEASE SCROLL UP AND YOU WILL FIND IT UNDER "WHAT'S INCLUDED"
What's Not Included
What's Not Included
The following items are NOT included:
Architectural or Engineering Stamp. Our plans are engineering-ready! Can take them to a local engineer in your state.
Site Plan - We can provide this if needed for $300 additional.
Materials List - handled locally when required
Energy calculations - handled locally when required
Snow load calculations - handled locally when required
Delivery
Delivery
This plan is available as a digital product or printed + shipped.
If you select digital, the plan will be delivered to you via email as a PDF file, no matter what time it is.
If you select printed + shipped, your order will ship in 24x36 format within 1 business day of your order.
We ship from the midwest in order to serve the entire country within 3-5 business days!
Return policy
Return policy
All barndominium house plan purchases are FINAL. There are no exchanges or refunds due to the digital nature of the product. Please make sure that the plan you have selected is going to fit your needs.

Real Reviews, Real Experiences
How to Build Your Own Barndominium & 120+ House Plans
Just getting started on your build? Get the Barndominiums Made Easy Program.
- Choosing a selection results in a full page refresh.



