Couldn't load pickup availability
Barndominium Plans
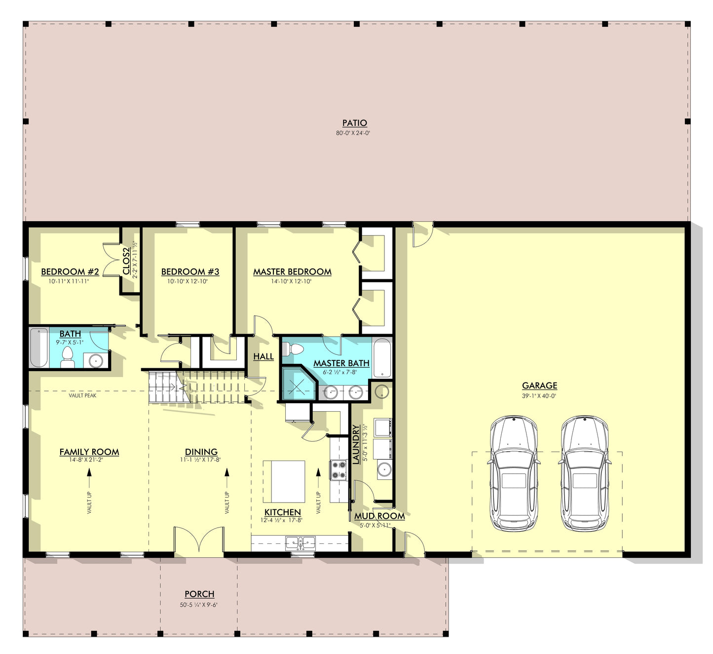
PL-69197 Bexley Barndominium House Plan
DETAILS
HEATED SQ FT
First Floor:
1,798 SF
Second Floor:885 SF
Total Heated Sq Ft:2,683 SF
UNHEATED SQ FT
2,402 SF porch + 1,432 SF garage = TOTAL 3,834 SF
Carport:None
4
3
2
1,432 SF
80'
73'-6"
28'-8 15/16"
Concrete Slab
5:12
Stick Frame
CEILING HEIGHTS
8'
PL-69197 Bexley Barndominium House Plan
About this barndominium house plan:
- 2683 Heated Sq Ft
- 42x45 living space dimension
- 4 Bedrooms
- 3 Bathrooms
- Laundry room
- Mudroom
- Open concept
- Two-story
- Loft Style
- 1432 Sq Ft Garage
- Front and back porch
- This two-story floor plan offers an impressive 2683 square feet of heated living space. The design also includes a substantial 1432-square-foot garage, perfect for housing vehicles, storage, or a workshop.
- This plan features four bedrooms, three of which are conveniently located on the main floor, and a guest bedroom on the second floor. Each bedroom, including the master and guest bedrooms, has its own private bathroom. Additionally, there is a shared bathroom on the main floor, making this design both practical and accommodating for a variety of living arrangements.
- A loft-style floor plan that features an open concept main floor. As you enter the house from the garage, you are greeted by a practical mudroom, perfect for storing outdoor gear and keeping the rest of the home clean. Conveniently, this mudroom is also linked to the laundry room, making it easy to manage household chores.
- This floor plan features a charming front porch, providing a warm welcome to visitors. At the rear of the house, a spacious back patio offers ample room for outdoor dining, relaxation, or entertaining. Whether you’re greeting neighbors at the front door or enjoying a backyard barbecue, this floor plan caters to a lifestyle that appreciates both community connection and private leisure.
What's included in PL-69197:
Cover Sheet
Detailed Floor Plan Dimensions
Four Elevations - Front, Back, Left Side, Right Side
Electrical Plan
Plumbing Plan
HVAC Plan
Roof Framing Plan
Foundation Plan
Wall Section
For more barndominium floor plans, check out our complete collection of 4 bedroom barndominium floor plans.
Need to make changes? Submit a modification request using the button that says Modify This Plan (below the Add To Cart Button). We will get you a free price quote within 72 hours
Please note all square footage are estimates.
What's Included
What's Included
Our house plan sets typically have the following details:
4 Elevations – Front, Back, Both Sides
Detailed Floor Plan Drawing
Electrical Plans with placements for HVAC
Plumbing Plans with Placements
Flooring Plan
Roof Plan
Foundation Plan
For more information on what's included and examples of what your plans will look like, go here -> https://barndominiumplans.com/pages/whats-included
Please Note: We work with many different draftspeople who work in many different ways. It should be noted that their plans may contain different details.Â
What's Not Included
What's Not Included
The following items are NOT included:
Architectural or Engineering Stamp. Our plans are engineering-ready! Can take them to a local engineer in your state.
Site Plan - We can provide this if needed for $300 additional.
Materials List - handled locally when required
Energy calculations - handled locally when required
Snow load calculations - handled locally when required
Delivery
Delivery
This plan is available as a digital product or printed + shipped.
If you select digital, the plan will be delivered to you via email as a PDF file, no matter what time it is.
If you select printed + shipped, your order will ship in 24x36 format within 1 business day of your order.
We ship from the midwest in order to serve the entire country within 3-5 business days!
Return policy
Return policy
All barndominium house plan purchases are FINAL. There are no exchanges or refunds due to the digital nature of the product. Please make sure that the plan you have selected is going to fit your needs.
PDF (Single Build) $849.99
DETAILS
HEATED SQ FT
First Floor:
1,798 SF
Second Floor:885 SF
Total Heated Sq Ft:2,683 SF
UNHEATED SQ FT
2,402 SF porch + 1,432 SF garage = TOTAL 3,834 SF
Carport:None
4
3
2
1,432 SF
80'
73'-6"
28'-8 15/16"
Concrete Slab
5:12
Stick Frame
CEILING HEIGHTS
8'
PL-69197 Bexley Barndominium House Plan
About this barndominium house plan:
- 2683 Heated Sq Ft
- 42x45 living space dimension
- 4 Bedrooms
- 3 Bathrooms
- Laundry room
- Mudroom
- Open concept
- Two-story
- Loft Style
- 1432 Sq Ft Garage
- Front and back porch
- This two-story floor plan offers an impressive 2683 square feet of heated living space. The design also includes a substantial 1432-square-foot garage, perfect for housing vehicles, storage, or a workshop.
- This plan features four bedrooms, three of which are conveniently located on the main floor, and a guest bedroom on the second floor. Each bedroom, including the master and guest bedrooms, has its own private bathroom. Additionally, there is a shared bathroom on the main floor, making this design both practical and accommodating for a variety of living arrangements.
- A loft-style floor plan that features an open concept main floor. As you enter the house from the garage, you are greeted by a practical mudroom, perfect for storing outdoor gear and keeping the rest of the home clean. Conveniently, this mudroom is also linked to the laundry room, making it easy to manage household chores.
- This floor plan features a charming front porch, providing a warm welcome to visitors. At the rear of the house, a spacious back patio offers ample room for outdoor dining, relaxation, or entertaining. Whether you’re greeting neighbors at the front door or enjoying a backyard barbecue, this floor plan caters to a lifestyle that appreciates both community connection and private leisure.
What's included in PL-69197:
Cover Sheet
Detailed Floor Plan Dimensions
Four Elevations - Front, Back, Left Side, Right Side
Electrical Plan
Plumbing Plan
HVAC Plan
Roof Framing Plan
Foundation Plan
Wall Section
For more barndominium floor plans, check out our complete collection of 4 bedroom barndominium floor plans.
Need to make changes? Submit a modification request using the button that says Modify This Plan (below the Add To Cart Button). We will get you a free price quote within 72 hours
Please note all square footage are estimates.
What's Included
What's Included
Our house plan sets typically have the following details:
4 Elevations – Front, Back, Both Sides
Detailed Floor Plan Drawing
Electrical Plans with placements for HVAC
Plumbing Plans with Placements
Flooring Plan
Roof Plan
Foundation Plan
For more information on what's included and examples of what your plans will look like, go here -> https://barndominiumplans.com/pages/whats-included
Please Note: We work with many different draftspeople who work in many different ways. It should be noted that their plans may contain different details.Â
What's Not Included
What's Not Included
The following items are NOT included:
Architectural or Engineering Stamp. Our plans are engineering-ready! Can take them to a local engineer in your state.
Site Plan - We can provide this if needed for $300 additional.
Materials List - handled locally when required
Energy calculations - handled locally when required
Snow load calculations - handled locally when required
Delivery
Delivery
This plan is available as a digital product or printed + shipped.
If you select digital, the plan will be delivered to you via email as a PDF file, no matter what time it is.
If you select printed + shipped, your order will ship in 24x36 format within 1 business day of your order.
We ship from the midwest in order to serve the entire country within 3-5 business days!
Return policy
Return policy
All barndominium house plan purchases are FINAL. There are no exchanges or refunds due to the digital nature of the product. Please make sure that the plan you have selected is going to fit your needs.















Real Reviews, Real Experiences
How to Build Your Own Barndominium & 120+ House Plans

Just getting started on your build? Get the Barndominiums Made Easy Program.
- Choosing a selection results in a full page refresh.