Couldn't load pickup availability
Barndominium Plans
PL-64035 Norman Barndominium House Plan
DETAILS
HEATED SQ FT
First Floor:
2,400 SF
Second Floor:None
Total Heated Sq Ft:2,400 SF
UNHEATED SQ FT
2,288 SF (porch and garage)
Carport:None
3
2
1
1,120 SF
56'
58'
20'-4 3/8"
Concrete Slab
4:12
Post-Frame
CEILING HEIGHTS
9'
PL-64035 Norman Barndominium House Plan
About this barndominium house plan:
- Square Footage: 1,610 sq. ft. (Heated/Living Area)
- Bedrooms: 3 (Master Bedroom, Bedroom 2, and Bedroom 3)
- Bathrooms: 2 (Master Bathroom and one shared full Bathroom)
- Stories: 1
- Garage Spaces: 0 (This plan does not include a garage)
- This single-story plan features a compact two-bedroom, one-bathroom layout and includes an attached two-car Garage(20'-0" x 22'-5").
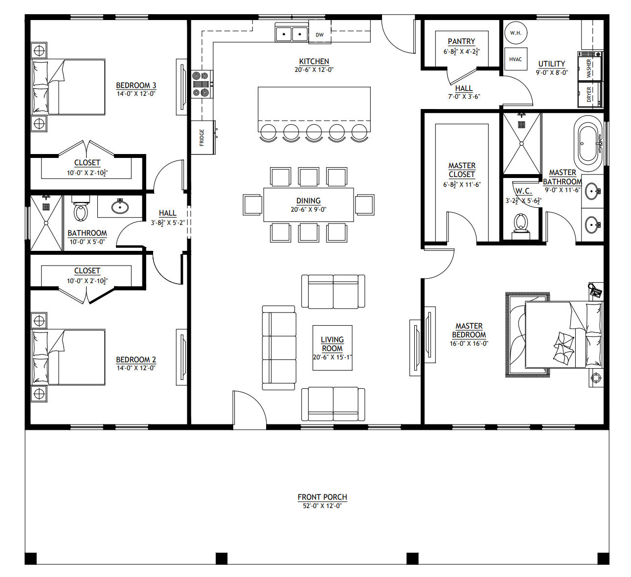
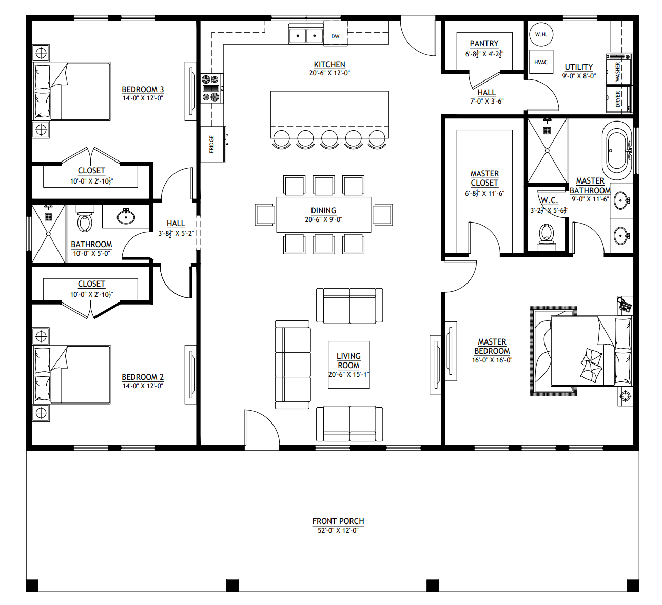
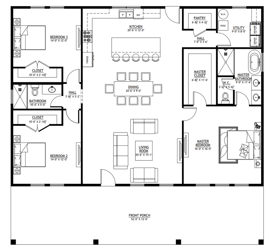
- This single-story plan features a spacious three-bedroom, two-bathroom layout with a large, open living area.
- The central zone is dedicated to the Living Room (20'-6" x 16'-1"), Dining area (20'-6" x 9'-0"), and an expansive Kitchen (20'-6" x 9'-0") with a large island.
- The Master Bedroom (16'-0" x 16'-0") offers a private retreat, complete with a Master Bathroom (9'-0" x 8'-0") and a spacious walk-in Master Closet (6'-8" x 11'-6").
- Bedrooms 2 (14'-0" x 12'-0") and 3 (14'-0" x 12'-0") are located on the left side, sharing a full Bathroom (10'-0" x 5'-0") and two large closets.
- Additional features include a combined Utility/HVAC room (9'-0" x 8'-0"), a Pantry (6'-8" x 4'-2"), and a Front Porch (52'-0" x 12'-0").
What's included in PL-64035 Norman:
Cover Page
Floor Plan
Roof Plan
Front And Rear Elevation
Right And Left Elevation
Electrical Plan
Plumbing Plan
Hvac Plan
Roof Framing Plan
Foundation Plan
Wall Section
Foundation Detail
Â
For more barndominium floor plans, check out our complete collection of 3-bedroom barndominium floor plans.
Â
Need to make changes? Submit a modification request using the button that says Modify This Plan . We will get you a free price quote within 72 hours
What's Typically Included
What's Typically Included
THE SPECIFC DETAILS OF WHAT'S INCLUDED ON THESE PLANS IS CONTAINED IN THE PRODUCT DESCRIPTION. PLEASE SCROLL UP AND YOU WILL FIND IT UNDER "WHAT'S INCLUDED"
Our house plan sets typically have the following details:
4 Elevations – Front, Back, Both Sides
Detailed Floor Plan Drawing
Electrical Plans with placements for HVAC
Plumbing Plans with Placements
Flooring Plan
Roof Plan
Foundation Plan
For more information on what's included and examples of what your plans will look like, go here -> https://barndominiumplans.com/pages/whats-included
Please Note: We work with many different draftspeople who work in many different ways. It should be noted that their plans may contain different details. THE SPECIFC DETAILS OF WHAT'S INCLUDED ON THESE PLANS IS CONTAINED IN THE PRODUCT DESCRIPTION. PLEASE SCROLL UP AND YOU WILL FIND IT UNDER "WHAT'S INCLUDED"
What's Not Included
What's Not Included
The following items are NOT included:
Architectural or Engineering Stamp. Our plans are engineering-ready! Can take them to a local engineer in your state.
Site Plan - We can provide this if needed for $300 additional.
Materials List - handled locally when required
Energy calculations - handled locally when required
Snow load calculations - handled locally when required
Delivery
Delivery
This plan is available as a digital product or printed + shipped.
If you select digital, the plan will be delivered to you via email as a PDF file, no matter what time it is.
If you select printed + shipped, your order will ship in 24x36 format within 1 business day of your order.
We ship from the midwest in order to serve the entire country within 3-5 business days!
Return policy
Return policy
All barndominium house plan purchases are FINAL. There are no exchanges or refunds due to the digital nature of the product. Please make sure that the plan you have selected is going to fit your needs.
PDF (Single Build) $849.99
DETAILS
HEATED SQ FT
First Floor:
2,400 SF
Second Floor:None
Total Heated Sq Ft:2,400 SF
UNHEATED SQ FT
2,288 SF (porch and garage)
Carport:None
3
2
1
1,120 SF
56'
58'
20'-4 3/8"
Concrete Slab
4:12
Post-Frame
CEILING HEIGHTS
9'
PL-64035 Norman Barndominium House Plan
About this barndominium house plan:
- Square Footage: 1,610 sq. ft. (Heated/Living Area)
- Bedrooms: 3 (Master Bedroom, Bedroom 2, and Bedroom 3)
- Bathrooms: 2 (Master Bathroom and one shared full Bathroom)
- Stories: 1
- Garage Spaces: 0 (This plan does not include a garage)
- This single-story plan features a compact two-bedroom, one-bathroom layout and includes an attached two-car Garage(20'-0" x 22'-5").
- This single-story plan features a spacious three-bedroom, two-bathroom layout with a large, open living area.
- The central zone is dedicated to the Living Room (20'-6" x 16'-1"), Dining area (20'-6" x 9'-0"), and an expansive Kitchen (20'-6" x 9'-0") with a large island.
- The Master Bedroom (16'-0" x 16'-0") offers a private retreat, complete with a Master Bathroom (9'-0" x 8'-0") and a spacious walk-in Master Closet (6'-8" x 11'-6").
- Bedrooms 2 (14'-0" x 12'-0") and 3 (14'-0" x 12'-0") are located on the left side, sharing a full Bathroom (10'-0" x 5'-0") and two large closets.
- Additional features include a combined Utility/HVAC room (9'-0" x 8'-0"), a Pantry (6'-8" x 4'-2"), and a Front Porch (52'-0" x 12'-0").
What's included in PL-64035 Norman:
Cover Page
Floor Plan
Roof Plan
Front And Rear Elevation
Right And Left Elevation
Electrical Plan
Plumbing Plan
Hvac Plan
Roof Framing Plan
Foundation Plan
Wall Section
Foundation Detail
Â
For more barndominium floor plans, check out our complete collection of 3-bedroom barndominium floor plans.
Â
Need to make changes? Submit a modification request using the button that says Modify This Plan . We will get you a free price quote within 72 hours
What's Typically Included
What's Typically Included
THE SPECIFC DETAILS OF WHAT'S INCLUDED ON THESE PLANS IS CONTAINED IN THE PRODUCT DESCRIPTION. PLEASE SCROLL UP AND YOU WILL FIND IT UNDER "WHAT'S INCLUDED"
Our house plan sets typically have the following details:
4 Elevations – Front, Back, Both Sides
Detailed Floor Plan Drawing
Electrical Plans with placements for HVAC
Plumbing Plans with Placements
Flooring Plan
Roof Plan
Foundation Plan
For more information on what's included and examples of what your plans will look like, go here -> https://barndominiumplans.com/pages/whats-included
Please Note: We work with many different draftspeople who work in many different ways. It should be noted that their plans may contain different details. THE SPECIFC DETAILS OF WHAT'S INCLUDED ON THESE PLANS IS CONTAINED IN THE PRODUCT DESCRIPTION. PLEASE SCROLL UP AND YOU WILL FIND IT UNDER "WHAT'S INCLUDED"
What's Not Included
What's Not Included
The following items are NOT included:
Architectural or Engineering Stamp. Our plans are engineering-ready! Can take them to a local engineer in your state.
Site Plan - We can provide this if needed for $300 additional.
Materials List - handled locally when required
Energy calculations - handled locally when required
Snow load calculations - handled locally when required
Delivery
Delivery
This plan is available as a digital product or printed + shipped.
If you select digital, the plan will be delivered to you via email as a PDF file, no matter what time it is.
If you select printed + shipped, your order will ship in 24x36 format within 1 business day of your order.
We ship from the midwest in order to serve the entire country within 3-5 business days!
Return policy
Return policy
All barndominium house plan purchases are FINAL. There are no exchanges or refunds due to the digital nature of the product. Please make sure that the plan you have selected is going to fit your needs.

Real Reviews, Real Experiences
How to Build Your Own Barndominium & 120+ House Plans
Just getting started on your build? Get the Barndominiums Made Easy Program.
- Choosing a selection results in a full page refresh.



