Couldn't load pickup availability
Barndominium Plans
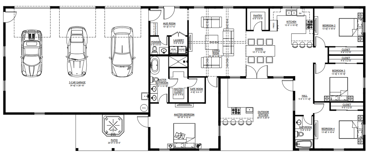
PL-64033 Erica Barndominium House Plan
DETAILS
HEATED SQ FT
First Floor:
2,000 SF
Second Floor:None
Total Heated Sq Ft:2,000 SF
UNHEATED SQ FT
Garage 1,200 SF, Outdoor Kitchen 400 SF, Patio 200 SF = TOTAL 1,800 SF
Carport:None
4
2
1
1,200 SF
100'
40'
20'-0 1/2"
Concrete Slab
4:12
Post Frame
CEILING HEIGHTS
12'
PL-64033 Erica Barndominium House Plan
About this barndominium house plan:
- 2,000 Heated Sq Ft
- 4 bedrooms
- 2.1 bathrooms
- Single Story
- Mudroom
- Patio
- Outdoor kitchen
- 1,200 Sq Ft Garage
- Spacious single-level layout offering 2,000 square feet of conditioned living.
- Four bedrooms are thoughtfully positioned for privacy and flexibility—anchored by a generous master suite with walk-in closet and en-suite bath.
- A practical transition zone between garage and living space—perfect for storing shoes, coats, and keeping the home tidy.
- An extended outdoor living area designed for grilling, dining, and gathering—ideal for weekend cookouts or sunset lounging.
- A spacious garage with room for multiple vehicles and gear—perfect for active households or hobbyists.
What's included in PL-64033:
Cover Page
Floor Plan
Roof Plan
Elevations
Electrical Plan
Plumbing Plan
HVAC Plan
Roof Framing Plan
Foundation Plan
Slab Detail
Porch Post Detail
Wall Section
For more barndominium floor plans, check out our complete collection of 4 bedroom barndominium floor plans.
Need to make changes? Submit a modification request using the button that says Modify This Plan . We will get you a free price quote within 72 hours
What's Typically Included
What's Typically Included
THE SPECIFC DETAILS OF WHAT'S INCLUDED ON THESE PLANS IS CONTAINED IN THE PRODUCT DESCRIPTION. PLEASE SCROLL UP AND YOU WILL FIND IT UNDER "WHAT'S INCLUDED"
Our house plan sets typically have the following details:
4 Elevations – Front, Back, Both Sides
Detailed Floor Plan Drawing
Electrical Plans with placements for HVAC
Plumbing Plans with Placements
Flooring Plan
Roof Plan
Foundation Plan
For more information on what's included and examples of what your plans will look like, go here -> https://barndominiumplans.com/pages/whats-included
Please Note: We work with many different draftspeople who work in many different ways. It should be noted that their plans may contain different details. THE SPECIFC DETAILS OF WHAT'S INCLUDED ON THESE PLANS IS CONTAINED IN THE PRODUCT DESCRIPTION. PLEASE SCROLL UP AND YOU WILL FIND IT UNDER "WHAT'S INCLUDED"
What's Not Included
What's Not Included
The following items are NOT included:
Architectural or Engineering Stamp. Our plans are engineering-ready! Can take them to a local engineer in your state.
Site Plan - We can provide this if needed for $300 additional.
Materials List - handled locally when required
Energy calculations - handled locally when required
Snow load calculations - handled locally when required
Delivery
Delivery
This plan is available as a digital product or printed + shipped.
If you select digital, the plan will be delivered to you via email as a PDF file, no matter what time it is.
If you select printed + shipped, your order will ship in 24x36 format within 1 business day of your order.
We ship from the midwest in order to serve the entire country within 3-5 business days!
Return policy
Return policy
All barndominium house plan purchases are FINAL. There are no exchanges or refunds due to the digital nature of the product. Please make sure that the plan you have selected is going to fit your needs.
PDF (Single Build) $849.99
DETAILS
HEATED SQ FT
First Floor:
2,000 SF
Second Floor:None
Total Heated Sq Ft:2,000 SF
UNHEATED SQ FT
Garage 1,200 SF, Outdoor Kitchen 400 SF, Patio 200 SF = TOTAL 1,800 SF
Carport:None
4
2
1
1,200 SF
100'
40'
20'-0 1/2"
Concrete Slab
4:12
Post Frame
CEILING HEIGHTS
12'
PL-64033 Erica Barndominium House Plan
About this barndominium house plan:
- 2,000 Heated Sq Ft
- 4 bedrooms
- 2.1 bathrooms
- Single Story
- Mudroom
- Patio
- Outdoor kitchen
- 1,200 Sq Ft Garage
- Spacious single-level layout offering 2,000 square feet of conditioned living.
- Four bedrooms are thoughtfully positioned for privacy and flexibility—anchored by a generous master suite with walk-in closet and en-suite bath.
- A practical transition zone between garage and living space—perfect for storing shoes, coats, and keeping the home tidy.
- An extended outdoor living area designed for grilling, dining, and gathering—ideal for weekend cookouts or sunset lounging.
- A spacious garage with room for multiple vehicles and gear—perfect for active households or hobbyists.
What's included in PL-64033:
Cover Page
Floor Plan
Roof Plan
Elevations
Electrical Plan
Plumbing Plan
HVAC Plan
Roof Framing Plan
Foundation Plan
Slab Detail
Porch Post Detail
Wall Section
For more barndominium floor plans, check out our complete collection of 4 bedroom barndominium floor plans.
Need to make changes? Submit a modification request using the button that says Modify This Plan . We will get you a free price quote within 72 hours
What's Typically Included
What's Typically Included
THE SPECIFC DETAILS OF WHAT'S INCLUDED ON THESE PLANS IS CONTAINED IN THE PRODUCT DESCRIPTION. PLEASE SCROLL UP AND YOU WILL FIND IT UNDER "WHAT'S INCLUDED"
Our house plan sets typically have the following details:
4 Elevations – Front, Back, Both Sides
Detailed Floor Plan Drawing
Electrical Plans with placements for HVAC
Plumbing Plans with Placements
Flooring Plan
Roof Plan
Foundation Plan
For more information on what's included and examples of what your plans will look like, go here -> https://barndominiumplans.com/pages/whats-included
Please Note: We work with many different draftspeople who work in many different ways. It should be noted that their plans may contain different details. THE SPECIFC DETAILS OF WHAT'S INCLUDED ON THESE PLANS IS CONTAINED IN THE PRODUCT DESCRIPTION. PLEASE SCROLL UP AND YOU WILL FIND IT UNDER "WHAT'S INCLUDED"
What's Not Included
What's Not Included
The following items are NOT included:
Architectural or Engineering Stamp. Our plans are engineering-ready! Can take them to a local engineer in your state.
Site Plan - We can provide this if needed for $300 additional.
Materials List - handled locally when required
Energy calculations - handled locally when required
Snow load calculations - handled locally when required
Delivery
Delivery
This plan is available as a digital product or printed + shipped.
If you select digital, the plan will be delivered to you via email as a PDF file, no matter what time it is.
If you select printed + shipped, your order will ship in 24x36 format within 1 business day of your order.
We ship from the midwest in order to serve the entire country within 3-5 business days!
Return policy
Return policy
All barndominium house plan purchases are FINAL. There are no exchanges or refunds due to the digital nature of the product. Please make sure that the plan you have selected is going to fit your needs.

Real Reviews, Real Experiences
How to Build Your Own Barndominium & 120+ House Plans
Just getting started on your build? Get the Barndominiums Made Easy Program.
- Choosing a selection results in a full page refresh.



