Couldn't load pickup availability
Barndominium Plans
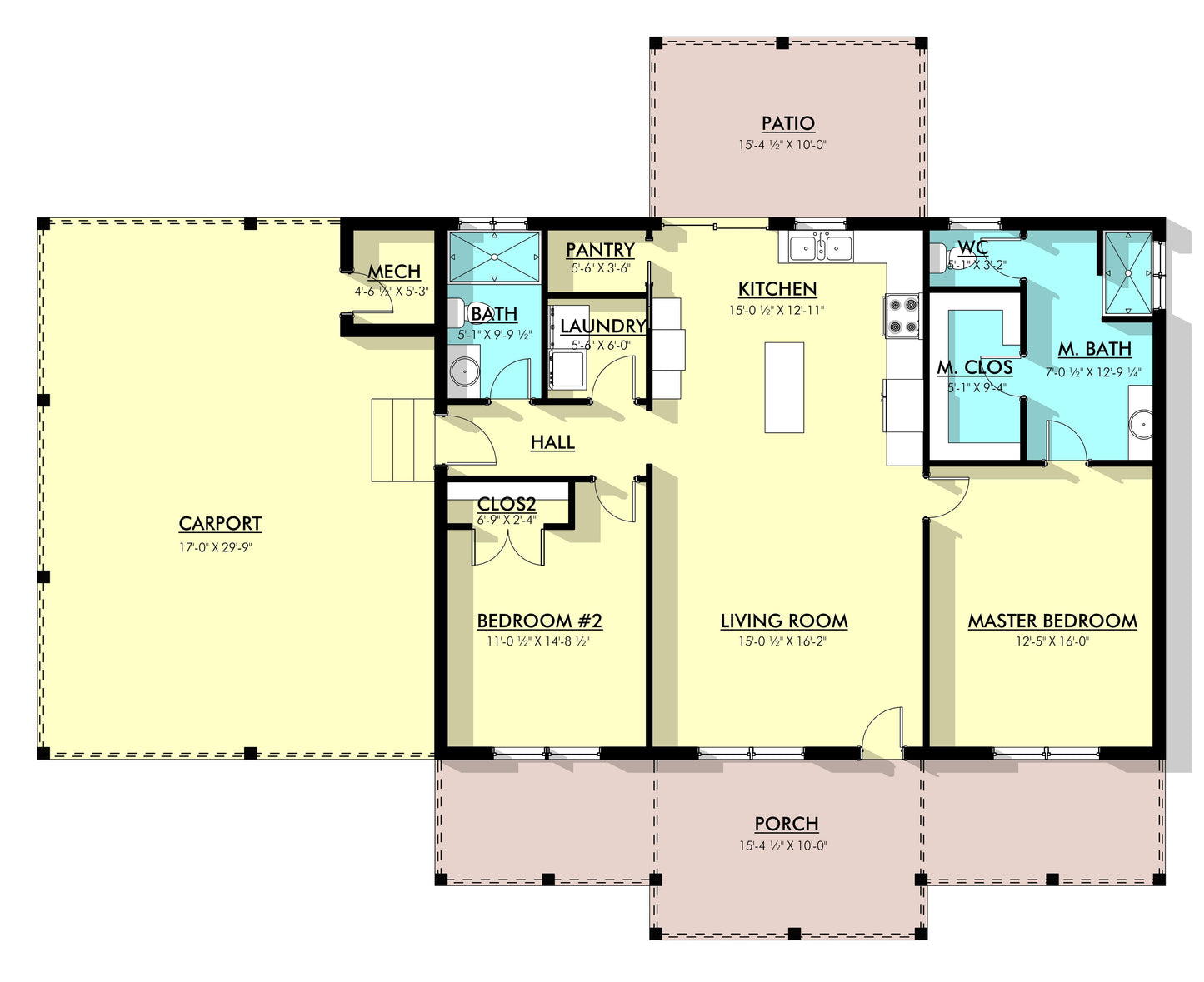
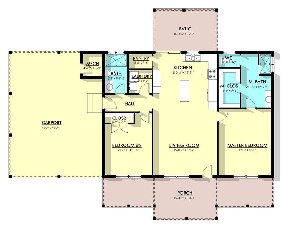
PL-64011 Silverwood Barndominium House Plan
DETAILS
HEATED SQ FT
First Floor:
1,218 SF
Second Floor:None
Total Heated Sq Ft:1,218 SF
UNHEATED SQ FT
Carport: 629 SF Porches: 539 SF Total Unheated: 1,168 SF
Carport:629 SF
2
2
1
None
62'
50'
17'-4 1/32"
Concrete Slab
08:12
Stick-Frame
CEILING HEIGHTS
9'
PL-64011 Silverwood Barndominium House Plan
About this barndominium house plan:
- 1218 Heated square feet
- 30x40 living space dimension
- 2 bedrooms
- 2 bathrooms
- 1 Story
- Open-concept
- Carport
- Mechanical room
- Front & rear porch
- 1218 heated square feet smartly designed for cozy comfort and effortless living.
- 2 Bedrooms with serene spaces perfect for relaxation and 2 stylish and functional bathrooms, making daily routines a breeze.
- Everything you need, all on one level—simple and seamless.
- Covered car parking for convenience and protection from the elements.
- A tucked-away space for essential home systems and storage.
- Two outdoor retreats, ideal for enjoying fresh air and quiet moments.
What's included in PL-64011:
Cover Sheet
Detailed Floor Plan Dimensions
Four Elevations - Front, Back, Left Side, Right Side
Electrical Plan
Plumbing Plan
HVAC Plan
Roof Framing Plan
Foundation Plan
Wall Section
For more barndominium floor plans, check out our complete collection of 2 bedroom barndominium floor plans.
Need to make changes? Submit a modification request using the button that says Modify This Plan . We will get you a free price quote within 72 hours
What's Typically Included
What's Typically Included
THE SPECIFC DETAILS OF WHAT'S INCLUDED ON THESE PLANS IS CONTAINED IN THE PRODUCT DESCRIPTION. PLEASE SCROLL UP AND YOU WILL FIND IT UNDER "WHAT'S INCLUDED"
Our house plan sets typically have the following details:
4 Elevations – Front, Back, Both Sides
Detailed Floor Plan Drawing
Electrical Plans with placements for HVAC
Plumbing Plans with Placements
Flooring Plan
Roof Plan
Foundation Plan
For more information on what's included and examples of what your plans will look like, go here -> https://barndominiumplans.com/pages/whats-included
Please Note: We work with many different draftspeople who work in many different ways. It should be noted that their plans may contain different details. THE SPECIFC DETAILS OF WHAT'S INCLUDED ON THESE PLANS IS CONTAINED IN THE PRODUCT DESCRIPTION. PLEASE SCROLL UP AND YOU WILL FIND IT UNDER "WHAT'S INCLUDED"
What's Not Included
What's Not Included
The following items are NOT included:
Architectural or Engineering Stamp. Our plans are engineering-ready! Can take them to a local engineer in your state.
Site Plan - We can provide this if needed for $300 additional.
Materials List - handled locally when required
Energy calculations - handled locally when required
Snow load calculations - handled locally when required
Delivery
Delivery
This plan is available as a digital product or printed + shipped.
If you select digital, the plan will be delivered to you via email as a PDF file, no matter what time it is.
If you select printed + shipped, your order will ship in 24x36 format within 1 business day of your order.
We ship from the midwest in order to serve the entire country within 3-5 business days!
Return policy
Return policy
All barndominium house plan purchases are FINAL. There are no exchanges or refunds due to the digital nature of the product. Please make sure that the plan you have selected is going to fit your needs.
PDF (Single Build) $849.99
DETAILS
HEATED SQ FT
First Floor:
1,218 SF
Second Floor:None
Total Heated Sq Ft:1,218 SF
UNHEATED SQ FT
Carport: 629 SF Porches: 539 SF Total Unheated: 1,168 SF
Carport:629 SF
2
2
1
None
62'
50'
17'-4 1/32"
Concrete Slab
08:12
Stick-Frame
CEILING HEIGHTS
9'
PL-64011 Silverwood Barndominium House Plan
About this barndominium house plan:
- 1218 Heated square feet
- 30x40 living space dimension
- 2 bedrooms
- 2 bathrooms
- 1 Story
- Open-concept
- Carport
- Mechanical room
- Front & rear porch
- 1218 heated square feet smartly designed for cozy comfort and effortless living.
- 2 Bedrooms with serene spaces perfect for relaxation and 2 stylish and functional bathrooms, making daily routines a breeze.
- Everything you need, all on one level—simple and seamless.
- Covered car parking for convenience and protection from the elements.
- A tucked-away space for essential home systems and storage.
- Two outdoor retreats, ideal for enjoying fresh air and quiet moments.
What's included in PL-64011:
Cover Sheet
Detailed Floor Plan Dimensions
Four Elevations - Front, Back, Left Side, Right Side
Electrical Plan
Plumbing Plan
HVAC Plan
Roof Framing Plan
Foundation Plan
Wall Section
For more barndominium floor plans, check out our complete collection of 2 bedroom barndominium floor plans.
Need to make changes? Submit a modification request using the button that says Modify This Plan . We will get you a free price quote within 72 hours
What's Typically Included
What's Typically Included
THE SPECIFC DETAILS OF WHAT'S INCLUDED ON THESE PLANS IS CONTAINED IN THE PRODUCT DESCRIPTION. PLEASE SCROLL UP AND YOU WILL FIND IT UNDER "WHAT'S INCLUDED"
Our house plan sets typically have the following details:
4 Elevations – Front, Back, Both Sides
Detailed Floor Plan Drawing
Electrical Plans with placements for HVAC
Plumbing Plans with Placements
Flooring Plan
Roof Plan
Foundation Plan
For more information on what's included and examples of what your plans will look like, go here -> https://barndominiumplans.com/pages/whats-included
Please Note: We work with many different draftspeople who work in many different ways. It should be noted that their plans may contain different details. THE SPECIFC DETAILS OF WHAT'S INCLUDED ON THESE PLANS IS CONTAINED IN THE PRODUCT DESCRIPTION. PLEASE SCROLL UP AND YOU WILL FIND IT UNDER "WHAT'S INCLUDED"
What's Not Included
What's Not Included
The following items are NOT included:
Architectural or Engineering Stamp. Our plans are engineering-ready! Can take them to a local engineer in your state.
Site Plan - We can provide this if needed for $300 additional.
Materials List - handled locally when required
Energy calculations - handled locally when required
Snow load calculations - handled locally when required
Delivery
Delivery
This plan is available as a digital product or printed + shipped.
If you select digital, the plan will be delivered to you via email as a PDF file, no matter what time it is.
If you select printed + shipped, your order will ship in 24x36 format within 1 business day of your order.
We ship from the midwest in order to serve the entire country within 3-5 business days!
Return policy
Return policy
All barndominium house plan purchases are FINAL. There are no exchanges or refunds due to the digital nature of the product. Please make sure that the plan you have selected is going to fit your needs.

Real Reviews, Real Experiences
How to Build Your Own Barndominium & 120+ House Plans
Just getting started on your build? Get the Barndominiums Made Easy Program.
- Choosing a selection results in a full page refresh.



