Couldn't load pickup availability
Barndominium Plans
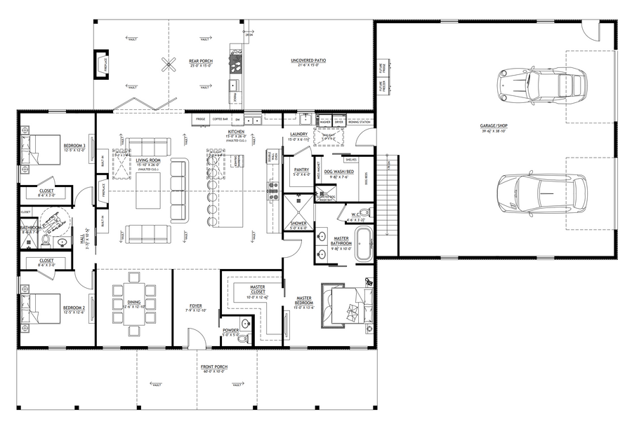
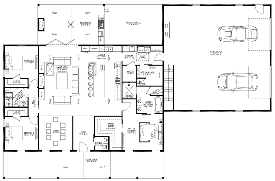
PL-64007-J Jodi Barndominium House Plan
DETAILS
HEATED SQ FT
First Floor:
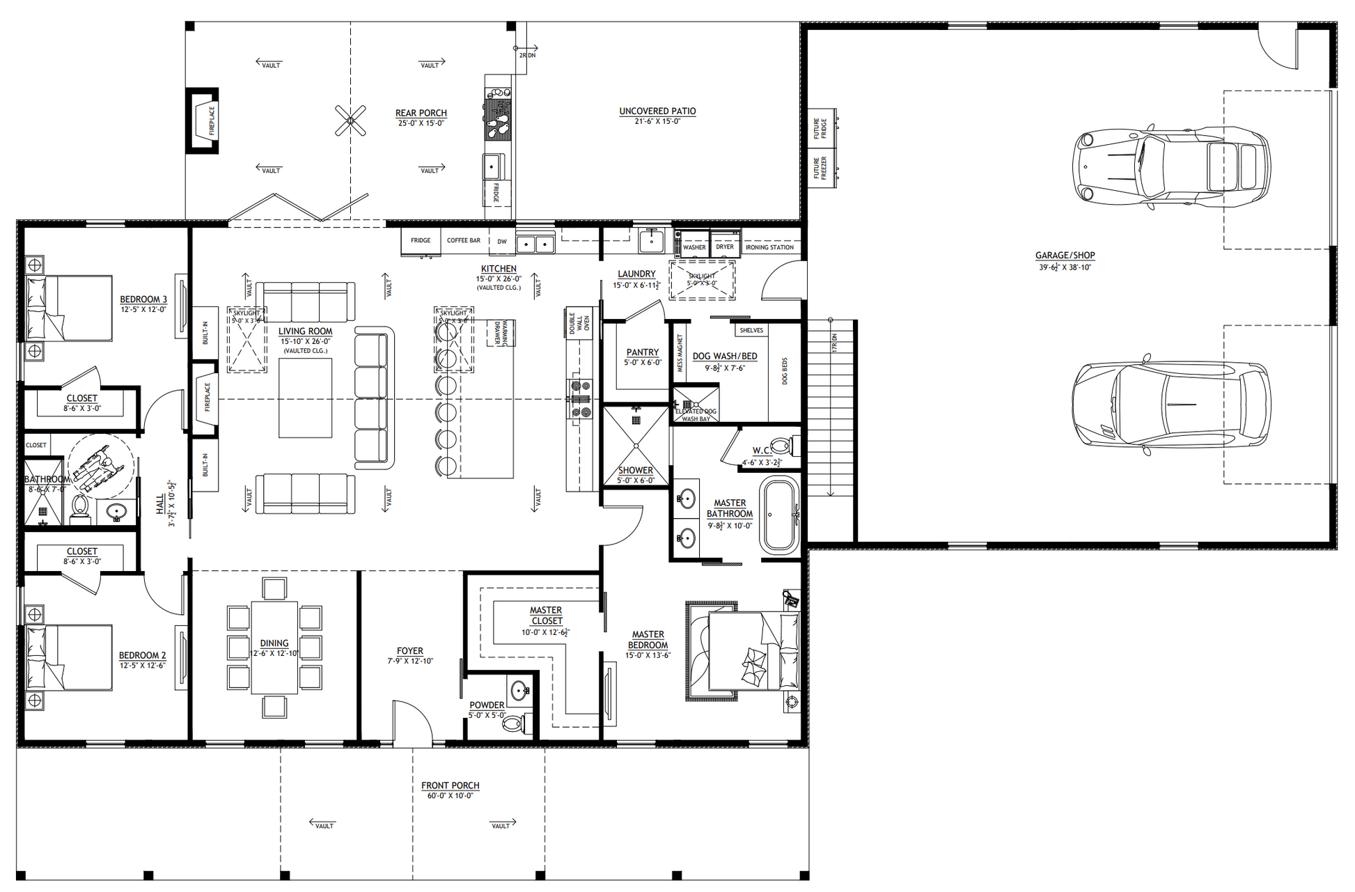
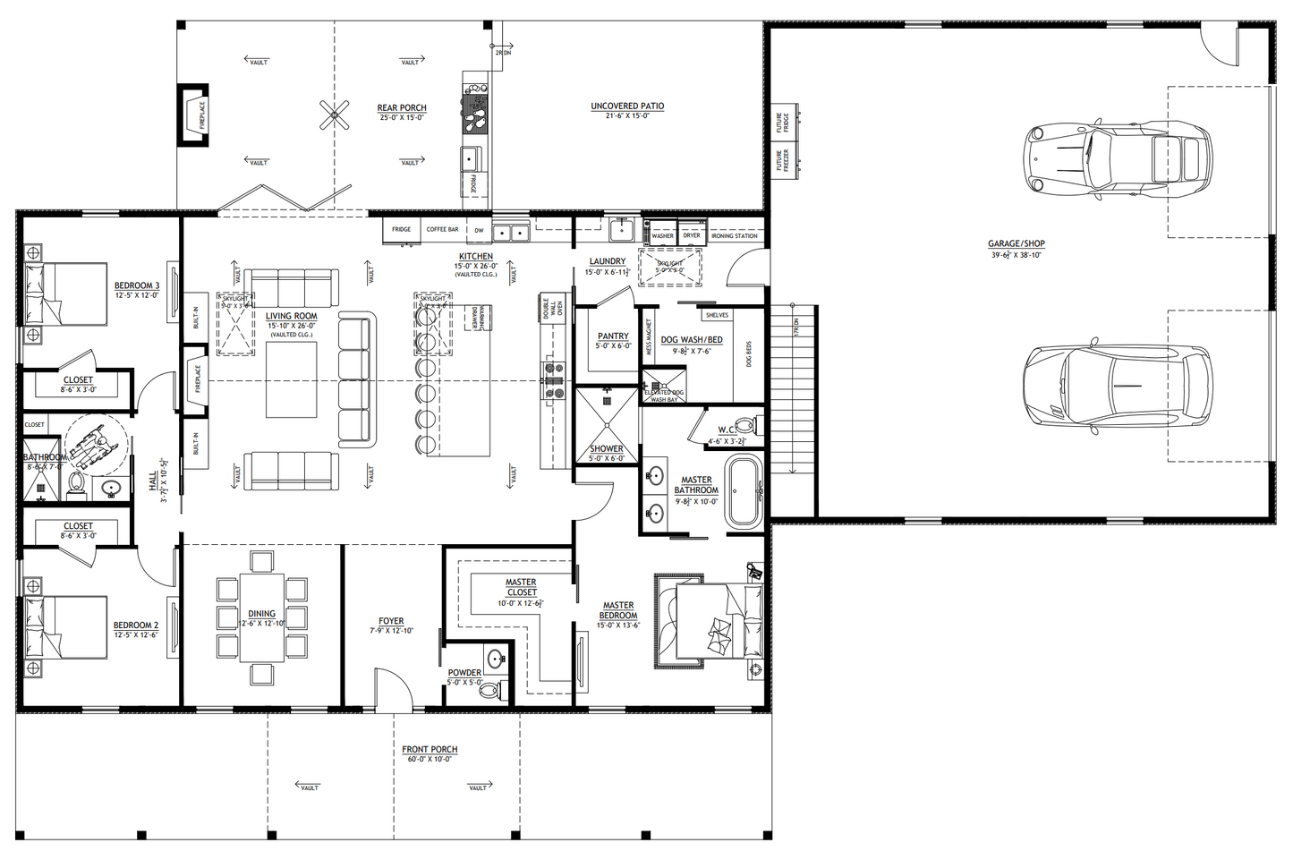
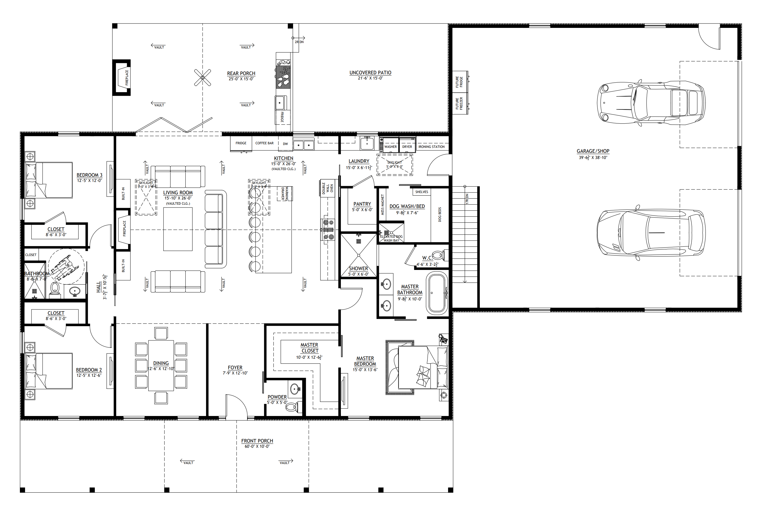
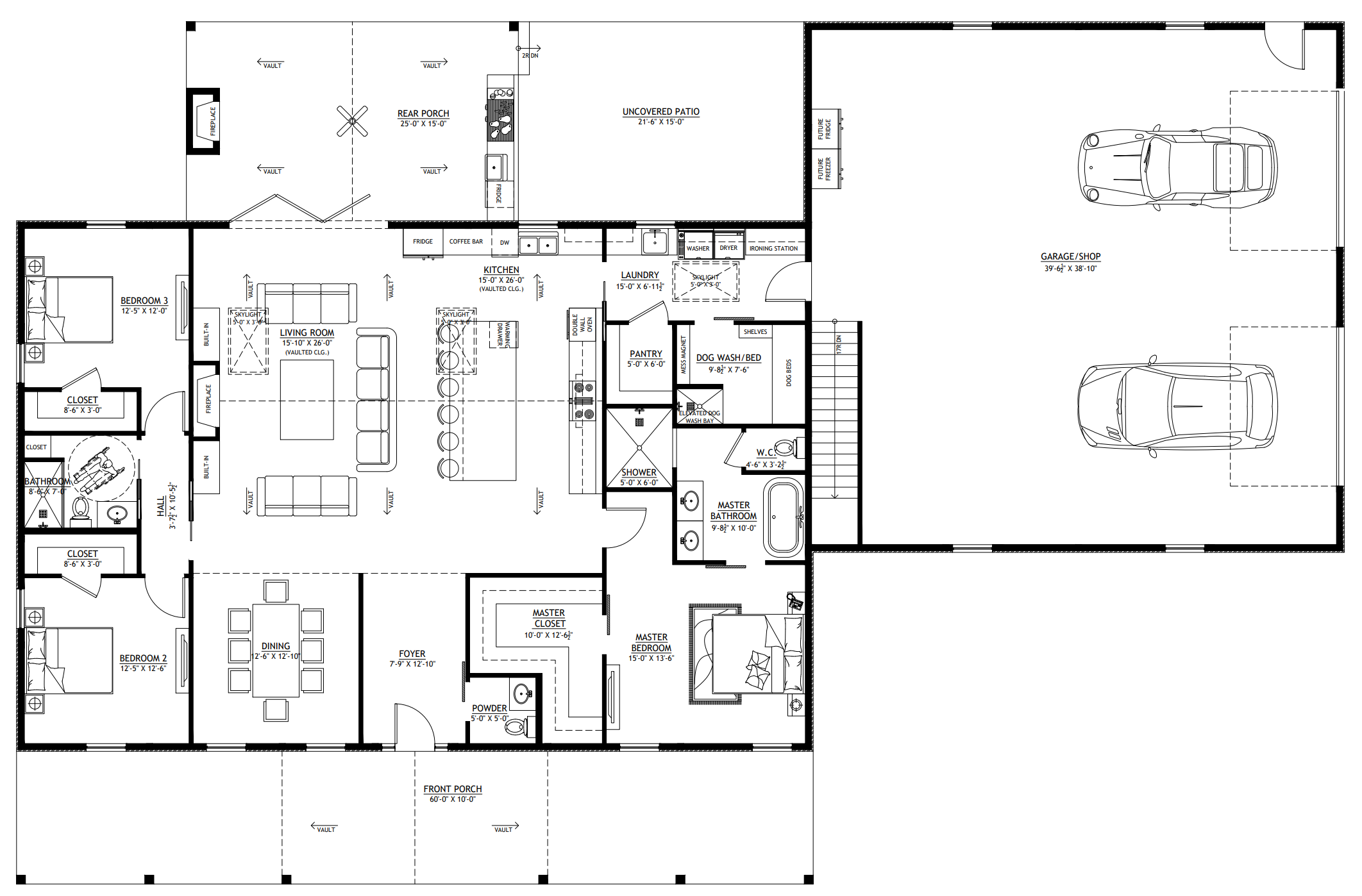
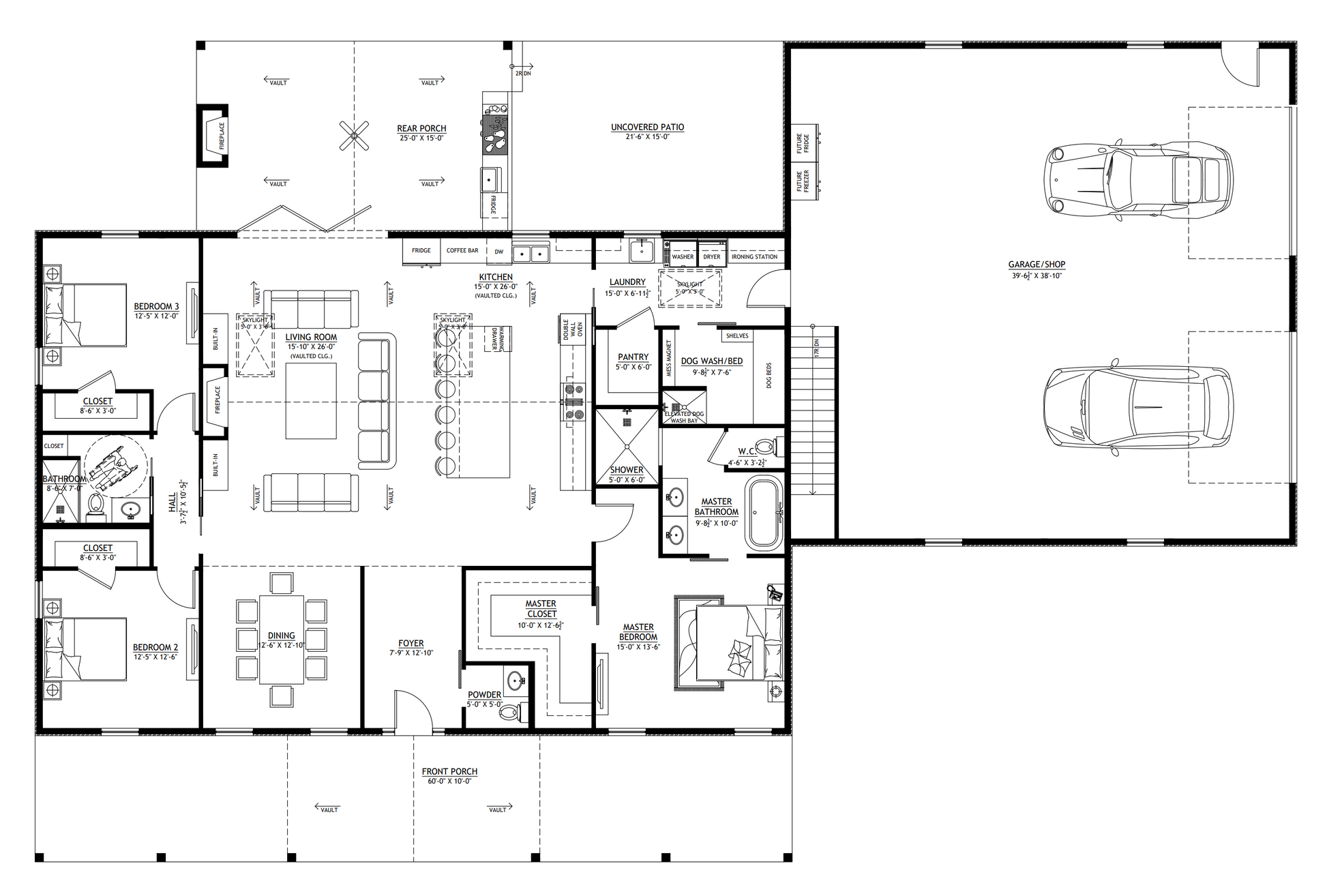
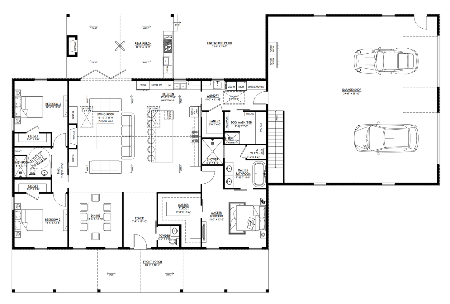
2,400 SF
Second Floor:None
Total Heated Sq Ft:2,400 SF
UNHEATED SQ FT
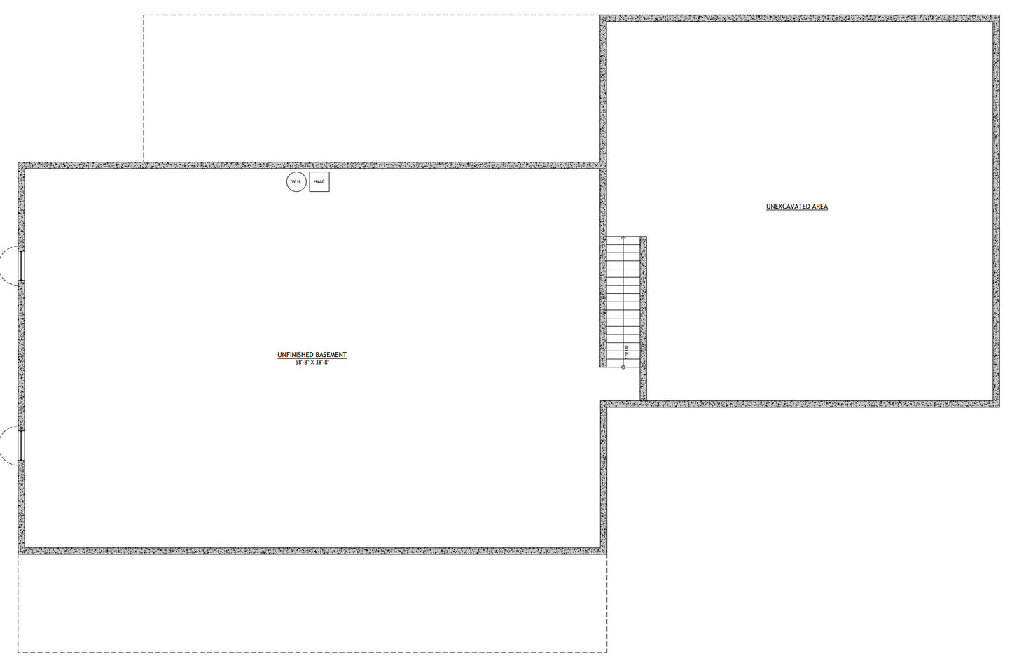
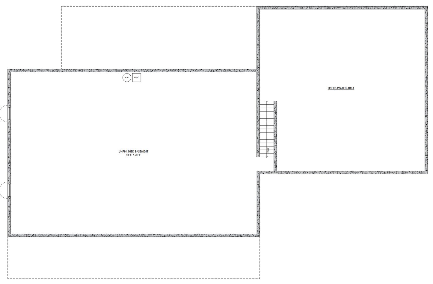
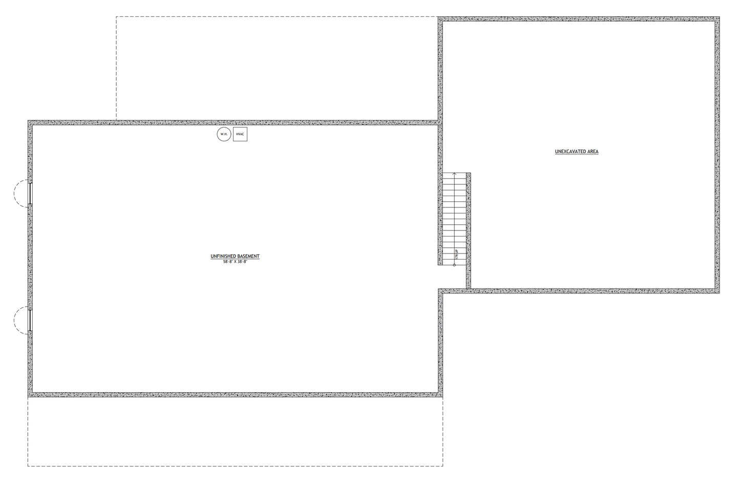
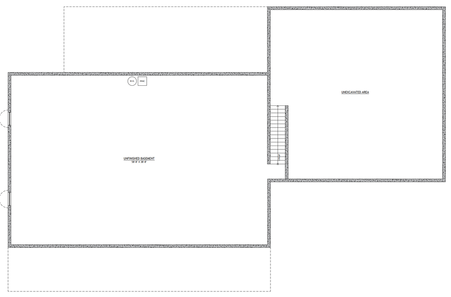
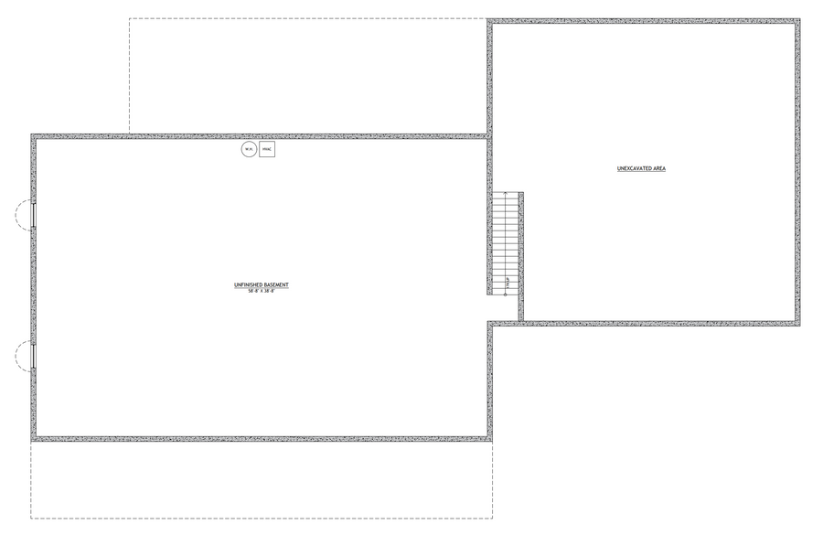
Basement 2,400 SF, Garage 1,610 SF, Porches 975 SF, Patio 698 SF = TOTAL 5,683 SF
Carport:None
3
2
1
1,610 SF
100'
65'
21'-9"
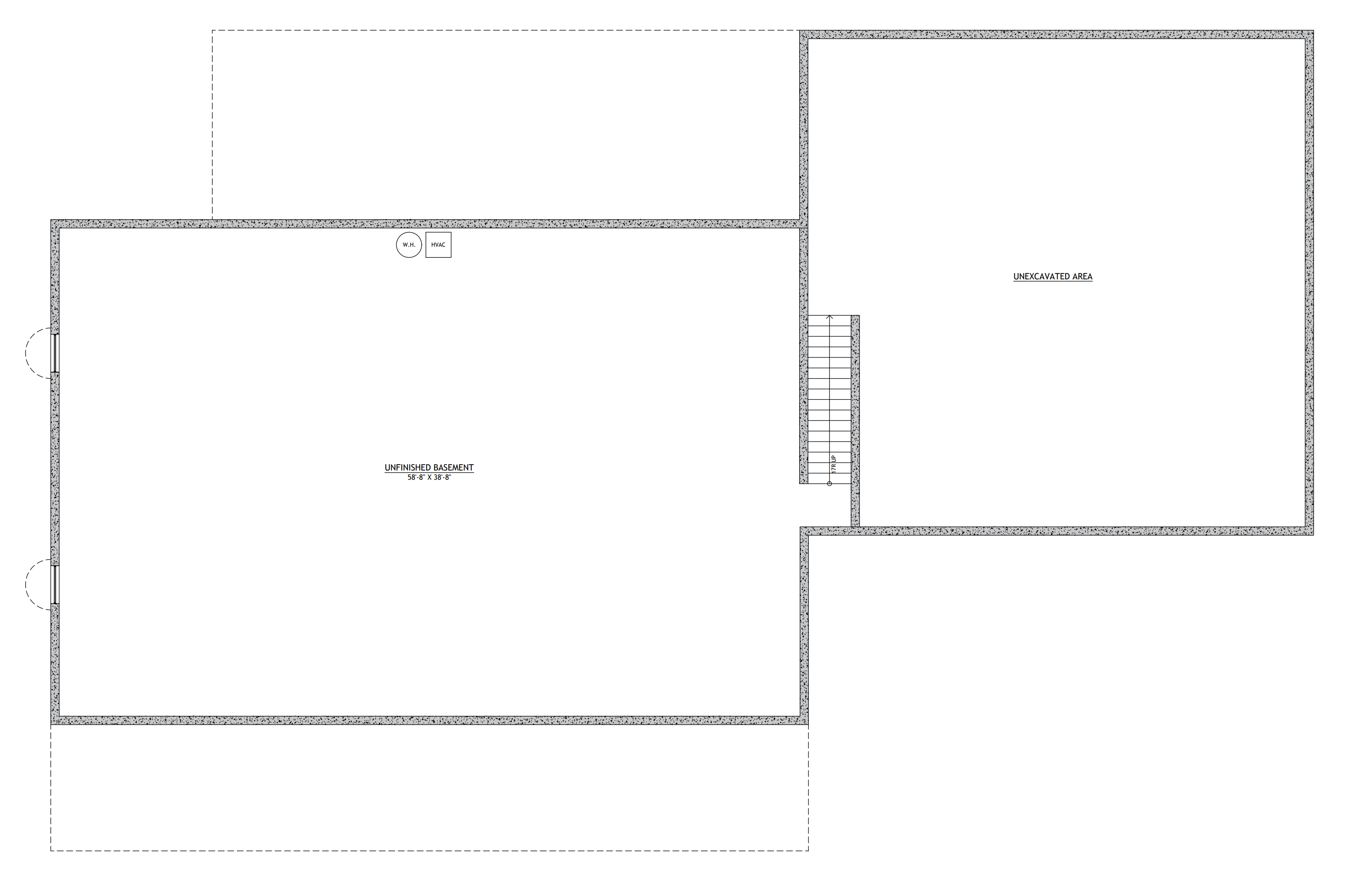
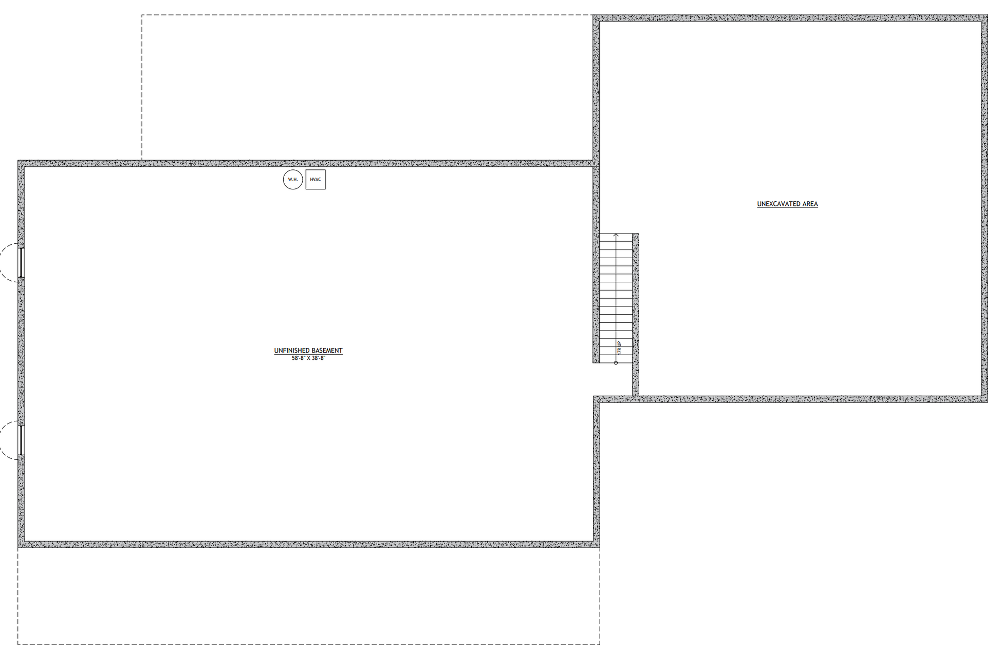
Basement
06:12
Stick-Frame
CEILING HEIGHTS
10'
PL-64007-J Jodi Barndominium House Plan
Discover a similar floor plan here.
About this barndominium house plan:
- 2400 heated sq ft
- 40x60 living space dimension
- 3 Bedrooms
- 2.1 bathrooms
- Wheelchair-accessible bathroom
- Single-story
- Open concept
- Foyer
- Front porch
- Rear porch/patio
- Outdoor kitchen
- Outdoor fireplace
- Dog Room
- Unfinished basement
- 1610 sq ft garage
- Spacious, sleek, and smartly designed—this home offers 2,400 square feet of climate-controlled comfort, ideal for relaxed living and refined entertaining.
- Three beautifully proportioned bedrooms provide the perfect mix of privacy and possibility—whether you're hosting guests, working from home, or creating a dreamy retreat.
- Two full baths and a stylish powder room mean no waiting, no crowding—just smooth mornings and elegant evenings.
- Designed with dignity and ease in mind, this accessible bath blends thoughtful layout with high-end finishes for seamless comfort.
- No stairs, no hassle—just effortless flow and timeless appeal across one beautifully laid-out level.
- Wide sightlines, natural light, and connected spaces make this home feel expansive and inviting from the moment you step inside.
- A welcoming entry that sets the tone—gracious, grounded, and ready to impress.
- Sip your morning coffee or greet guests in style—this charming front porch is both functional and photogenic.
- Your private outdoor escape, perfect for lounging, dining, or simply soaking in the sunset.
- Grill, chill, and thrill your guests with a fully equipped outdoor kitchen—al fresco dining just got an upgrade.
- Cozy up under the stars with a crackling fire and a glass of wine—this feature turns every evening into an experience.
- Pamper your pup with a built-in wash station and cozy nook—because luxury living includes your four-legged family too.
- A blank canvas below—ready for your wine cellar, gym, studio, or secret lair. You dream it, it’s yours to build.
- Room for cars, gear, hobbies, and more. This oversized garage is a storage solution and a statement piece.
What's included in PL-64007-J:
Cover Page
Main Floor Plan
Basement Floor Plan
Roof Plan
Front And Rear Elevation
Right And Left Elevation
Main Floor Electrical Plan
Basement Electrical Plan
Main Floor Plumbing Plan
Basement Plumbing Plan
Main Floor Hvac Plan
Roof Framing Plan
Foundation Plan
Porch Post Detail
Lally Column Detail
Wall Section
For more barndominium floor plans, check out our complete collection of 3-bedroom barndominium floor plans.
Need to make changes? Submit a modification request using the button that says Modify This Plan . We will get you a free price quote within 72 hours
What's Typically Included
What's Typically Included
THE SPECIFC DETAILS OF WHAT'S INCLUDED ON THESE PLANS IS CONTAINED IN THE PRODUCT DESCRIPTION. PLEASE SCROLL UP AND YOU WILL FIND IT UNDER "WHAT'S INCLUDED"
Our house plan sets typically have the following details:
4 Elevations – Front, Back, Both Sides
Detailed Floor Plan Drawing
Electrical Plans with placements for HVAC
Plumbing Plans with Placements
Flooring Plan
Roof Plan
Foundation Plan
For more information on what's included and examples of what your plans will look like, go here -> https://barndominiumplans.com/pages/whats-included
Please Note: We work with many different draftspeople who work in many different ways. It should be noted that their plans may contain different details. THE SPECIFC DETAILS OF WHAT'S INCLUDED ON THESE PLANS IS CONTAINED IN THE PRODUCT DESCRIPTION. PLEASE SCROLL UP AND YOU WILL FIND IT UNDER "WHAT'S INCLUDED"
What's Not Included
What's Not Included
The following items are NOT included:
Architectural or Engineering Stamp. Our plans are engineering-ready! Can take them to a local engineer in your state.
Site Plan - We can provide this if needed for $300 additional.
Materials List - handled locally when required
Energy calculations - handled locally when required
Snow load calculations - handled locally when required
Delivery
Delivery
This plan is available as a digital product or printed + shipped.
If you select digital, the plan will be delivered to you via email as a PDF file, no matter what time it is.
If you select printed + shipped, your order will ship in 24x36 format within 1 business day of your order.
We ship from the midwest in order to serve the entire country within 3-5 business days!
Return policy
Return policy
All barndominium house plan purchases are FINAL. There are no exchanges or refunds due to the digital nature of the product. Please make sure that the plan you have selected is going to fit your needs.
PDF (Single Build) $849.99
DETAILS
HEATED SQ FT
First Floor:
2,400 SF
Second Floor:None
Total Heated Sq Ft:2,400 SF
UNHEATED SQ FT
Basement 2,400 SF, Garage 1,610 SF, Porches 975 SF, Patio 698 SF = TOTAL 5,683 SF
Carport:None
3
2
1
1,610 SF
100'
65'
21'-9"
Basement
06:12
Stick-Frame
CEILING HEIGHTS
10'
PL-64007-J Jodi Barndominium House Plan
Discover a similar floor plan here.
About this barndominium house plan:
- 2400 heated sq ft
- 40x60 living space dimension
- 3 Bedrooms
- 2.1 bathrooms
- Wheelchair-accessible bathroom
- Single-story
- Open concept
- Foyer
- Front porch
- Rear porch/patio
- Outdoor kitchen
- Outdoor fireplace
- Dog Room
- Unfinished basement
- 1610 sq ft garage
- Spacious, sleek, and smartly designed—this home offers 2,400 square feet of climate-controlled comfort, ideal for relaxed living and refined entertaining.
- Three beautifully proportioned bedrooms provide the perfect mix of privacy and possibility—whether you're hosting guests, working from home, or creating a dreamy retreat.
- Two full baths and a stylish powder room mean no waiting, no crowding—just smooth mornings and elegant evenings.
- Designed with dignity and ease in mind, this accessible bath blends thoughtful layout with high-end finishes for seamless comfort.
- No stairs, no hassle—just effortless flow and timeless appeal across one beautifully laid-out level.
- Wide sightlines, natural light, and connected spaces make this home feel expansive and inviting from the moment you step inside.
- A welcoming entry that sets the tone—gracious, grounded, and ready to impress.
- Sip your morning coffee or greet guests in style—this charming front porch is both functional and photogenic.
- Your private outdoor escape, perfect for lounging, dining, or simply soaking in the sunset.
- Grill, chill, and thrill your guests with a fully equipped outdoor kitchen—al fresco dining just got an upgrade.
- Cozy up under the stars with a crackling fire and a glass of wine—this feature turns every evening into an experience.
- Pamper your pup with a built-in wash station and cozy nook—because luxury living includes your four-legged family too.
- A blank canvas below—ready for your wine cellar, gym, studio, or secret lair. You dream it, it’s yours to build.
- Room for cars, gear, hobbies, and more. This oversized garage is a storage solution and a statement piece.
What's included in PL-64007-J:
Cover Page
Main Floor Plan
Basement Floor Plan
Roof Plan
Front And Rear Elevation
Right And Left Elevation
Main Floor Electrical Plan
Basement Electrical Plan
Main Floor Plumbing Plan
Basement Plumbing Plan
Main Floor Hvac Plan
Roof Framing Plan
Foundation Plan
Porch Post Detail
Lally Column Detail
Wall Section
For more barndominium floor plans, check out our complete collection of 3-bedroom barndominium floor plans.
Need to make changes? Submit a modification request using the button that says Modify This Plan . We will get you a free price quote within 72 hours
What's Typically Included
What's Typically Included
THE SPECIFC DETAILS OF WHAT'S INCLUDED ON THESE PLANS IS CONTAINED IN THE PRODUCT DESCRIPTION. PLEASE SCROLL UP AND YOU WILL FIND IT UNDER "WHAT'S INCLUDED"
Our house plan sets typically have the following details:
4 Elevations – Front, Back, Both Sides
Detailed Floor Plan Drawing
Electrical Plans with placements for HVAC
Plumbing Plans with Placements
Flooring Plan
Roof Plan
Foundation Plan
For more information on what's included and examples of what your plans will look like, go here -> https://barndominiumplans.com/pages/whats-included
Please Note: We work with many different draftspeople who work in many different ways. It should be noted that their plans may contain different details. THE SPECIFC DETAILS OF WHAT'S INCLUDED ON THESE PLANS IS CONTAINED IN THE PRODUCT DESCRIPTION. PLEASE SCROLL UP AND YOU WILL FIND IT UNDER "WHAT'S INCLUDED"
What's Not Included
What's Not Included
The following items are NOT included:
Architectural or Engineering Stamp. Our plans are engineering-ready! Can take them to a local engineer in your state.
Site Plan - We can provide this if needed for $300 additional.
Materials List - handled locally when required
Energy calculations - handled locally when required
Snow load calculations - handled locally when required
Delivery
Delivery
This plan is available as a digital product or printed + shipped.
If you select digital, the plan will be delivered to you via email as a PDF file, no matter what time it is.
If you select printed + shipped, your order will ship in 24x36 format within 1 business day of your order.
We ship from the midwest in order to serve the entire country within 3-5 business days!
Return policy
Return policy
All barndominium house plan purchases are FINAL. There are no exchanges or refunds due to the digital nature of the product. Please make sure that the plan you have selected is going to fit your needs.

Real Reviews, Real Experiences
How to Build Your Own Barndominium & 120+ House Plans
Just getting started on your build? Get the Barndominiums Made Easy Program.
- Choosing a selection results in a full page refresh.



