Couldn't load pickup availability
Barndominium Plans
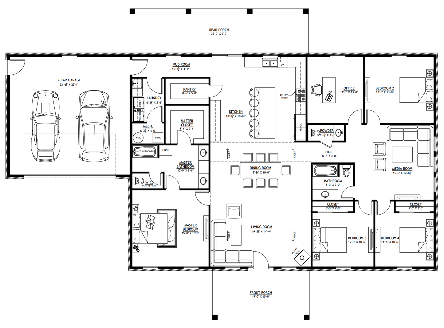
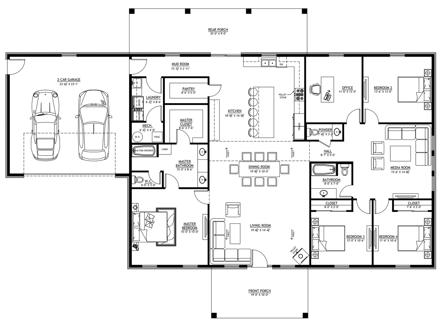
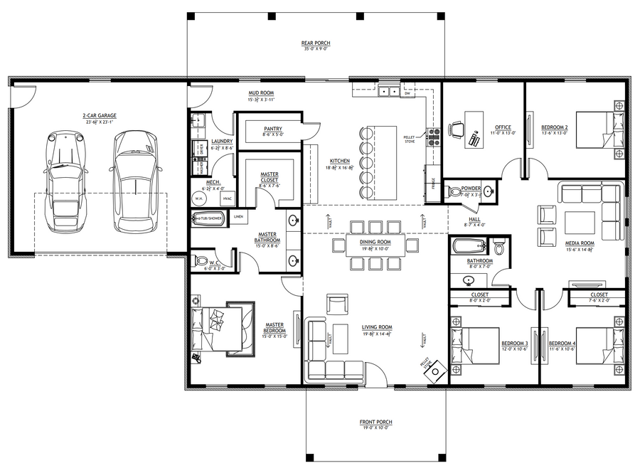
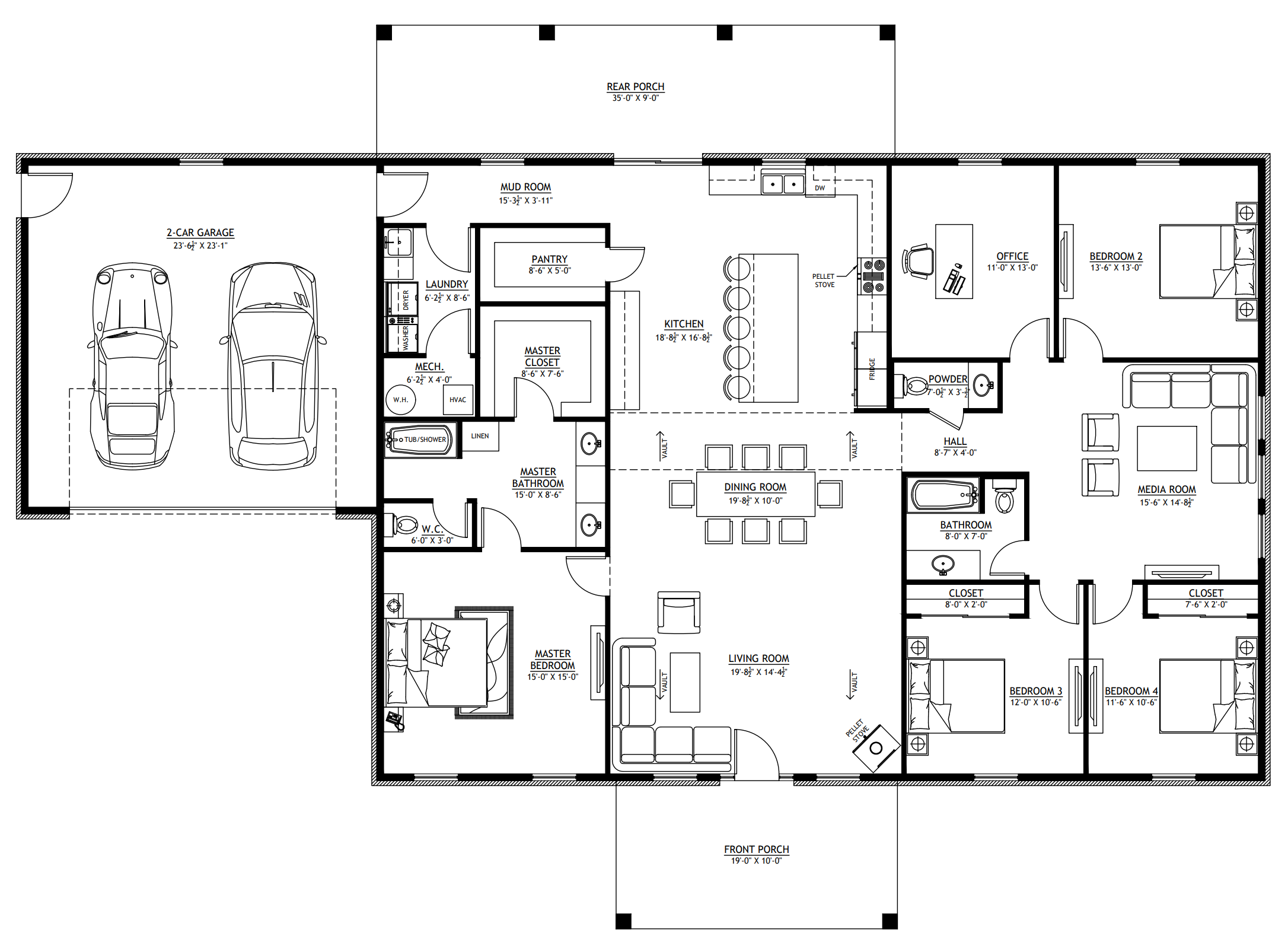
PL-64001-J Jason Barndominium House Plan
DETAILS
HEATED SQ FT
First Floor:
2,520 SF
Second Floor:None
Total Heated Sq Ft:2,520 SF
UNHEATED SQ FT
Garage 576 SF, Porches 505 SF = 1,081 SF
Carport:None
4
2
1
576 SF
84'
61'
21'-3"
Concrete Slab
6:12
Stick Frame
CEILING HEIGHTS
9'
PL-64001-J Jason Barndominium House Plan
Â
About this barndominium house plan:
- 2520 Heated Square Feet
- 42x60 living space dimension
- 4 Bedrooms
- 2.1 Bathrooms
- Single Story
- Open concept
- Office
- Media room
- Mudroom
- Front & rear porch
- 576 Sq Ft Garage
Â
- A spacious 2,520 sq ft layout designed for comfortable family living and effortless entertaining.
- Four generous bedrooms, two full bathrooms, and a convenient half bath provide space and privacy for everyone.
- Dedicated office for productivity and a media room perfect for movie nights and relaxing entertainment.
- Practical mudroom that keeps everyday clutter organized and your home running smoothly.
- Inviting front and rear porches that extend your living space and offer relaxing outdoor retreats.
- 576 sq ft garage providing room for parking, storage, and everyday convenience.
Â
Â
What's included in PL-64001-J:
Cover Page
Floor Plan
Roof Plan
Front And Rear Elevation
Right And Left Elevation
Electrical Plan
Plumbing Plan
HVAC Plan
Roof Framing Plan
Foundation Plan
Foundation Detail
Interior Bearing Footing
C-Typical Column Detail
Wall Section
Â
For more barndominium floor plans, check out our complete collection of 4 bedroom barndominium floor plans.
Â
Need to make changes? Submit a modification request using the button that says Modify This Plan. We will get you a free price quote within 72 hours.
What's Typically Included
What's Typically Included
THE SPECIFC DETAILS OF WHAT'S INCLUDED ON THESE PLANS IS CONTAINED IN THE PRODUCT DESCRIPTION. PLEASE SCROLL UP AND YOU WILL FIND IT UNDER "WHAT'S INCLUDED"
Our house plan sets typically have the following details:
4 Elevations – Front, Back, Both Sides
Detailed Floor Plan Drawing
Electrical Plans with placements for HVAC
Plumbing Plans with Placements
Flooring Plan
Roof Plan
Foundation Plan
For more information on what's included and examples of what your plans will look like, go here -> https://barndominiumplans.com/pages/whats-included
Please Note: We work with many different draftspeople who work in many different ways. It should be noted that their plans may contain different details. THE SPECIFC DETAILS OF WHAT'S INCLUDED ON THESE PLANS IS CONTAINED IN THE PRODUCT DESCRIPTION. PLEASE SCROLL UP AND YOU WILL FIND IT UNDER "WHAT'S INCLUDED"
What's Not Included
What's Not Included
The following items are NOT included:
Architectural or Engineering Stamp. Our plans are engineering-ready! Can take them to a local engineer in your state.
Site Plan - We can provide this if needed for $300 additional.
Materials List - handled locally when required
Energy calculations - handled locally when required
Snow load calculations - handled locally when required
Delivery
Delivery
This plan is available as a digital product or printed + shipped.
If you select digital, the plan will be delivered to you via email as a PDF file, no matter what time it is.
If you select printed + shipped, your order will ship in 24x36 format within 1 business day of your order.
We ship from the midwest in order to serve the entire country within 3-5 business days!
Return policy
Return policy
All barndominium house plan purchases are FINAL. There are no exchanges or refunds due to the digital nature of the product. Please make sure that the plan you have selected is going to fit your needs.
PDF (Single Build) $849.99
DETAILS
HEATED SQ FT
First Floor:
2,520 SF
Second Floor:None
Total Heated Sq Ft:2,520 SF
UNHEATED SQ FT
Garage 576 SF, Porches 505 SF = 1,081 SF
Carport:None
4
2
1
576 SF
84'
61'
21'-3"
Concrete Slab
6:12
Stick Frame
CEILING HEIGHTS
9'
PL-64001-J Jason Barndominium House Plan
Â
About this barndominium house plan:
- 2520 Heated Square Feet
- 42x60 living space dimension
- 4 Bedrooms
- 2.1 Bathrooms
- Single Story
- Open concept
- Office
- Media room
- Mudroom
- Front & rear porch
- 576 Sq Ft Garage
Â
- A spacious 2,520 sq ft layout designed for comfortable family living and effortless entertaining.
- Four generous bedrooms, two full bathrooms, and a convenient half bath provide space and privacy for everyone.
- Dedicated office for productivity and a media room perfect for movie nights and relaxing entertainment.
- Practical mudroom that keeps everyday clutter organized and your home running smoothly.
- Inviting front and rear porches that extend your living space and offer relaxing outdoor retreats.
- 576 sq ft garage providing room for parking, storage, and everyday convenience.
Â
Â
What's included in PL-64001-J:
Cover Page
Floor Plan
Roof Plan
Front And Rear Elevation
Right And Left Elevation
Electrical Plan
Plumbing Plan
HVAC Plan
Roof Framing Plan
Foundation Plan
Foundation Detail
Interior Bearing Footing
C-Typical Column Detail
Wall Section
Â
For more barndominium floor plans, check out our complete collection of 4 bedroom barndominium floor plans.
Â
Need to make changes? Submit a modification request using the button that says Modify This Plan. We will get you a free price quote within 72 hours.
What's Typically Included
What's Typically Included
THE SPECIFC DETAILS OF WHAT'S INCLUDED ON THESE PLANS IS CONTAINED IN THE PRODUCT DESCRIPTION. PLEASE SCROLL UP AND YOU WILL FIND IT UNDER "WHAT'S INCLUDED"
Our house plan sets typically have the following details:
4 Elevations – Front, Back, Both Sides
Detailed Floor Plan Drawing
Electrical Plans with placements for HVAC
Plumbing Plans with Placements
Flooring Plan
Roof Plan
Foundation Plan
For more information on what's included and examples of what your plans will look like, go here -> https://barndominiumplans.com/pages/whats-included
Please Note: We work with many different draftspeople who work in many different ways. It should be noted that their plans may contain different details. THE SPECIFC DETAILS OF WHAT'S INCLUDED ON THESE PLANS IS CONTAINED IN THE PRODUCT DESCRIPTION. PLEASE SCROLL UP AND YOU WILL FIND IT UNDER "WHAT'S INCLUDED"
What's Not Included
What's Not Included
The following items are NOT included:
Architectural or Engineering Stamp. Our plans are engineering-ready! Can take them to a local engineer in your state.
Site Plan - We can provide this if needed for $300 additional.
Materials List - handled locally when required
Energy calculations - handled locally when required
Snow load calculations - handled locally when required
Delivery
Delivery
This plan is available as a digital product or printed + shipped.
If you select digital, the plan will be delivered to you via email as a PDF file, no matter what time it is.
If you select printed + shipped, your order will ship in 24x36 format within 1 business day of your order.
We ship from the midwest in order to serve the entire country within 3-5 business days!
Return policy
Return policy
All barndominium house plan purchases are FINAL. There are no exchanges or refunds due to the digital nature of the product. Please make sure that the plan you have selected is going to fit your needs.

Real Reviews, Real Experiences
How to Build Your Own Barndominium & 120+ House Plans
Just getting started on your build? Get the Barndominiums Made Easy Program.
- Choosing a selection results in a full page refresh.



