Couldn't load pickup availability
Barndominium Plans
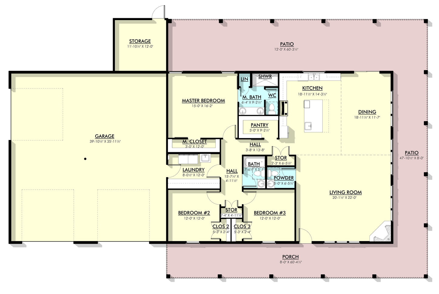
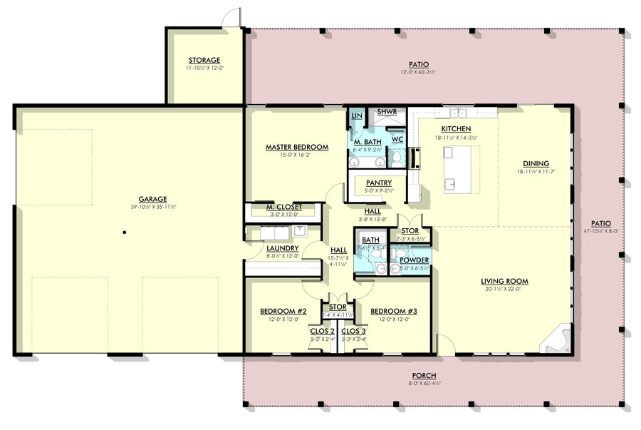
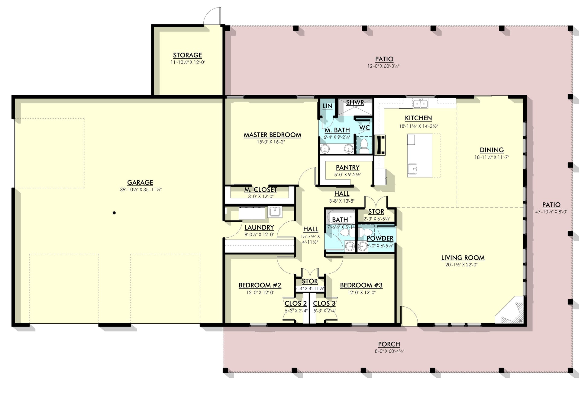
PL-62836 Stanley Barndominium House Plan
DETAILS
HEATED SQ FT
First Floor:
2,122 SF
Second Floor:None
Total Heated Sq Ft:2,122 SF
UNHEATED SQ FT
1,531 SF porch + 1,627 SF garage = TOTAL 3,158 SF
Carport:None
3
2
1
1,627 SF
96'-6 1/2"
60'-2"
24'-5 1/8"
Concrete Slab
6:12
Stick-Frame
CEILING HEIGHTS
14'
PL-62836 Stanley Barndominium House Plan
About this barndominium house plan:
- 2122 Heated square feet
- 40x53 living space dimension
- 3 Bedrooms
- 2.1 Bathrooms
- Two story
- Open concept
- Attached 1627 sq ft garage
- Wraparound porch
- Storage room
- This charming two-story home offers 2,122 heated square feet of living space, featuring an open concept design that enhances the spacious feel. With three bedrooms and 2.1 bathrooms, it provides ample room for family and guests.
- The living room is a cozy retreat with a fireplace, ideal for relaxing evenings. The attached 1,627 sq ft garage offers plenty of space for vehicles and additional storage.
- One of the standout features is the wraparound porch, perfect for enjoying the outdoors from multiple vantage points. The loft area is a versatile space that can also be used for storage.
- The storage room is conveniently located outside the back of the house, and there are numerous other storage areas throughout the home, ensuring you have plenty of space to keep things organized.
What's included in PL-62836:
Cover Sheet
Detailed Floor Plan Dimensions
Four Elevations - Front, Back, Left Side, Right Side
Electrical Plan
Plumbing Plan
HVAC Plan
Roof Framing Plan
Foundation Plan
Wall Section
For more barndominium floor plans, check out our complete collection of 3-bedroom barndominium floor plans.
Need to make changes? Submit a modification request using the button that says Modify This Plan (below the Add To Cart Button). We will get you a free price quote within 72 hours
Please note all square footage are estimates.
What's Included
What's Included
Our house plan sets typically have the following details:
4 Elevations – Front, Back, Both Sides
Detailed Floor Plan Drawing
Electrical Plans with placements for HVAC
Plumbing Plans with Placements
Flooring Plan
Roof Plan
Foundation Plan
For more information on what's included and examples of what your plans will look like, go here -> https://barndominiumplans.com/pages/whats-included
Please Note: We work with many different draftspeople who work in many different ways. It should be noted that their plans may contain different details.Â
What's Not Included
What's Not Included
The following items are NOT included:
Architectural or Engineering Stamp. Our plans are engineering-ready! Can take them to a local engineer in your state.
Site Plan - We can provide this if needed for $300 additional.
Materials List - handled locally when required
Energy calculations - handled locally when required
Snow load calculations - handled locally when required
Delivery
Delivery
This plan is available as a digital product or printed + shipped.
If you select digital, the plan will be delivered to you via email as a PDF file, no matter what time it is.
If you select printed + shipped, your order will ship in 24x36 format within 1 business day of your order.
We ship from the midwest in order to serve the entire country within 3-5 business days!
Return policy
Return policy
All barndominium house plan purchases are FINAL. There are no exchanges or refunds due to the digital nature of the product. Please make sure that the plan you have selected is going to fit your needs.
PDF (Single Build) $849.99
DETAILS
HEATED SQ FT
First Floor:
2,122 SF
Second Floor:None
Total Heated Sq Ft:2,122 SF
UNHEATED SQ FT
1,531 SF porch + 1,627 SF garage = TOTAL 3,158 SF
Carport:None
3
2
1
1,627 SF
96'-6 1/2"
60'-2"
24'-5 1/8"
Concrete Slab
6:12
Stick-Frame
CEILING HEIGHTS
14'
PL-62836 Stanley Barndominium House Plan
About this barndominium house plan:
- 2122 Heated square feet
- 40x53 living space dimension
- 3 Bedrooms
- 2.1 Bathrooms
- Two story
- Open concept
- Attached 1627 sq ft garage
- Wraparound porch
- Storage room
- This charming two-story home offers 2,122 heated square feet of living space, featuring an open concept design that enhances the spacious feel. With three bedrooms and 2.1 bathrooms, it provides ample room for family and guests.
- The living room is a cozy retreat with a fireplace, ideal for relaxing evenings. The attached 1,627 sq ft garage offers plenty of space for vehicles and additional storage.
- One of the standout features is the wraparound porch, perfect for enjoying the outdoors from multiple vantage points. The loft area is a versatile space that can also be used for storage.
- The storage room is conveniently located outside the back of the house, and there are numerous other storage areas throughout the home, ensuring you have plenty of space to keep things organized.
What's included in PL-62836:
Cover Sheet
Detailed Floor Plan Dimensions
Four Elevations - Front, Back, Left Side, Right Side
Electrical Plan
Plumbing Plan
HVAC Plan
Roof Framing Plan
Foundation Plan
Wall Section
For more barndominium floor plans, check out our complete collection of 3-bedroom barndominium floor plans.
Need to make changes? Submit a modification request using the button that says Modify This Plan (below the Add To Cart Button). We will get you a free price quote within 72 hours
Please note all square footage are estimates.
What's Included
What's Included
Our house plan sets typically have the following details:
4 Elevations – Front, Back, Both Sides
Detailed Floor Plan Drawing
Electrical Plans with placements for HVAC
Plumbing Plans with Placements
Flooring Plan
Roof Plan
Foundation Plan
For more information on what's included and examples of what your plans will look like, go here -> https://barndominiumplans.com/pages/whats-included
Please Note: We work with many different draftspeople who work in many different ways. It should be noted that their plans may contain different details.Â
What's Not Included
What's Not Included
The following items are NOT included:
Architectural or Engineering Stamp. Our plans are engineering-ready! Can take them to a local engineer in your state.
Site Plan - We can provide this if needed for $300 additional.
Materials List - handled locally when required
Energy calculations - handled locally when required
Snow load calculations - handled locally when required
Delivery
Delivery
This plan is available as a digital product or printed + shipped.
If you select digital, the plan will be delivered to you via email as a PDF file, no matter what time it is.
If you select printed + shipped, your order will ship in 24x36 format within 1 business day of your order.
We ship from the midwest in order to serve the entire country within 3-5 business days!
Return policy
Return policy
All barndominium house plan purchases are FINAL. There are no exchanges or refunds due to the digital nature of the product. Please make sure that the plan you have selected is going to fit your needs.


















Real Reviews, Real Experiences
How to Build Your Own Barndominium & 120+ House Plans

Just getting started on your build? Get the Barndominiums Made Easy Program.
- Choosing a selection results in a full page refresh.