Couldn't load pickup availability
Barndominium Plans
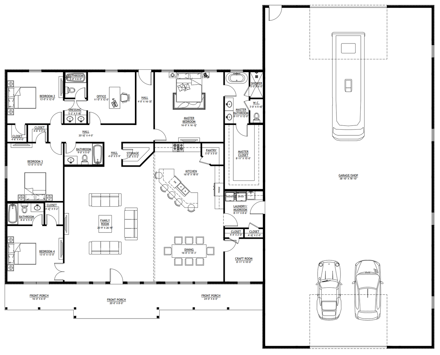
PL-62519 Walter Barndominium House Plan
DETAILS
HEATED SQ FT
First Floor:
3,072 SF
Second Floor:None
Total Heated Sq Ft:3,072 SF
UNHEATED SQ FT
363 SF porch + 3,238 SF garage = TOTAL 3,601 SF
Carport:None
4
4
1
3,238 SF
101'-3 1/2"
50'
29'-6 1/8"
Concrete Slab
05:12
Stick Frame
CEILING HEIGHTS
9'
PL-62519 Walter Barndominium House Plan
About this barndominium house plan:
- 3,072 Heated Square Feet
- 50x60 living space dimension
- 1 Story
- 4 Bedrooms
- 4 Bathrooms
- Craft Room
- Office
- Shop
- Enjoy the spacious and cozy living in this 3,072 square feet home that is perfect for families who love to entertain and relax in comfort.
- This one-story home offers convenience and accessibility for all ages and abilities. No stairs to climb, no hassle to move furniture, and no wasted space.
- This home has four bedrooms that can accommodate your family and guests.
- This home has four bathrooms that are modern and functional. Each bathroom has a vanity, a toilet, and a shower or a tub.
- This home has a craft room that is ideal for your hobbies and projects.
- This home has an office that is perfect for your work and study needs and also has a door that can be closed for privacy and quietness.
- This home has a shop that is great for your DIY and repair activities. The shop also has a garage door that can be opened for ventilation and access.
What's included in PL-62519:
Cover Sheet
Detailed Floor Plan Dimensions
Four Elevations - Front, Back, Left Side, Right Side
Electrical Plan
Plumbing Plan
HVAC Plan
Roof Framing Plan
Foundation Plan
Wall Section
For more barndominium floor plans, check out our complete collection of 4 bedroom barndominium floor plans.
Need to make changes? Submit a modification request using the button that says Modify This Plan . We will get you a free price quote within 72 hours
What's Typically Included
What's Typically Included
THE SPECIFC DETAILS OF WHAT'S INCLUDED ON THESE PLANS IS CONTAINED IN THE PRODUCT DESCRIPTION. PLEASE SCROLL UP AND YOU WILL FIND IT UNDER "WHAT'S INCLUDED"
Our house plan sets typically have the following details:
4 Elevations – Front, Back, Both Sides
Detailed Floor Plan Drawing
Electrical Plans with placements for HVAC
Plumbing Plans with Placements
Flooring Plan
Roof Plan
Foundation Plan
For more information on what's included and examples of what your plans will look like, go here -> https://barndominiumplans.com/pages/whats-included
Please Note: We work with many different draftspeople who work in many different ways. It should be noted that their plans may contain different details. THE SPECIFC DETAILS OF WHAT'S INCLUDED ON THESE PLANS IS CONTAINED IN THE PRODUCT DESCRIPTION. PLEASE SCROLL UP AND YOU WILL FIND IT UNDER "WHAT'S INCLUDED"
What's Not Included
What's Not Included
The following items are NOT included:
Architectural or Engineering Stamp. Our plans are engineering-ready! Can take them to a local engineer in your state.
Site Plan - We can provide this if needed for $300 additional.
Materials List - handled locally when required
Energy calculations - handled locally when required
Snow load calculations - handled locally when required
Delivery
Delivery
This plan is available as a digital product or printed + shipped.
If you select digital, the plan will be delivered to you via email as a PDF file, no matter what time it is.
If you select printed + shipped, your order will ship in 24x36 format within 1 business day of your order.
We ship from the midwest in order to serve the entire country within 3-5 business days!
Return policy
Return policy
All barndominium house plan purchases are FINAL. There are no exchanges or refunds due to the digital nature of the product. Please make sure that the plan you have selected is going to fit your needs.
PDF (Single Build) $1,349.99
DETAILS
HEATED SQ FT
First Floor:
3,072 SF
Second Floor:None
Total Heated Sq Ft:3,072 SF
UNHEATED SQ FT
363 SF porch + 3,238 SF garage = TOTAL 3,601 SF
Carport:None
4
4
1
3,238 SF
101'-3 1/2"
50'
29'-6 1/8"
Concrete Slab
05:12
Stick Frame
CEILING HEIGHTS
9'
PL-62519 Walter Barndominium House Plan
About this barndominium house plan:
- 3,072 Heated Square Feet
- 50x60 living space dimension
- 1 Story
- 4 Bedrooms
- 4 Bathrooms
- Craft Room
- Office
- Shop
- Enjoy the spacious and cozy living in this 3,072 square feet home that is perfect for families who love to entertain and relax in comfort.
- This one-story home offers convenience and accessibility for all ages and abilities. No stairs to climb, no hassle to move furniture, and no wasted space.
- This home has four bedrooms that can accommodate your family and guests.
- This home has four bathrooms that are modern and functional. Each bathroom has a vanity, a toilet, and a shower or a tub.
- This home has a craft room that is ideal for your hobbies and projects.
- This home has an office that is perfect for your work and study needs and also has a door that can be closed for privacy and quietness.
- This home has a shop that is great for your DIY and repair activities. The shop also has a garage door that can be opened for ventilation and access.
What's included in PL-62519:
Cover Sheet
Detailed Floor Plan Dimensions
Four Elevations - Front, Back, Left Side, Right Side
Electrical Plan
Plumbing Plan
HVAC Plan
Roof Framing Plan
Foundation Plan
Wall Section
For more barndominium floor plans, check out our complete collection of 4 bedroom barndominium floor plans.
Need to make changes? Submit a modification request using the button that says Modify This Plan . We will get you a free price quote within 72 hours
What's Typically Included
What's Typically Included
THE SPECIFC DETAILS OF WHAT'S INCLUDED ON THESE PLANS IS CONTAINED IN THE PRODUCT DESCRIPTION. PLEASE SCROLL UP AND YOU WILL FIND IT UNDER "WHAT'S INCLUDED"
Our house plan sets typically have the following details:
4 Elevations – Front, Back, Both Sides
Detailed Floor Plan Drawing
Electrical Plans with placements for HVAC
Plumbing Plans with Placements
Flooring Plan
Roof Plan
Foundation Plan
For more information on what's included and examples of what your plans will look like, go here -> https://barndominiumplans.com/pages/whats-included
Please Note: We work with many different draftspeople who work in many different ways. It should be noted that their plans may contain different details. THE SPECIFC DETAILS OF WHAT'S INCLUDED ON THESE PLANS IS CONTAINED IN THE PRODUCT DESCRIPTION. PLEASE SCROLL UP AND YOU WILL FIND IT UNDER "WHAT'S INCLUDED"
What's Not Included
What's Not Included
The following items are NOT included:
Architectural or Engineering Stamp. Our plans are engineering-ready! Can take them to a local engineer in your state.
Site Plan - We can provide this if needed for $300 additional.
Materials List - handled locally when required
Energy calculations - handled locally when required
Snow load calculations - handled locally when required
Delivery
Delivery
This plan is available as a digital product or printed + shipped.
If you select digital, the plan will be delivered to you via email as a PDF file, no matter what time it is.
If you select printed + shipped, your order will ship in 24x36 format within 1 business day of your order.
We ship from the midwest in order to serve the entire country within 3-5 business days!
Return policy
Return policy
All barndominium house plan purchases are FINAL. There are no exchanges or refunds due to the digital nature of the product. Please make sure that the plan you have selected is going to fit your needs.

Real Reviews, Real Experiences
How to Build Your Own Barndominium & 120+ House Plans
Just getting started on your build? Get the Barndominiums Made Easy Program.
- Choosing a selection results in a full page refresh.



