Couldn't load pickup availability
Barndominium Plans
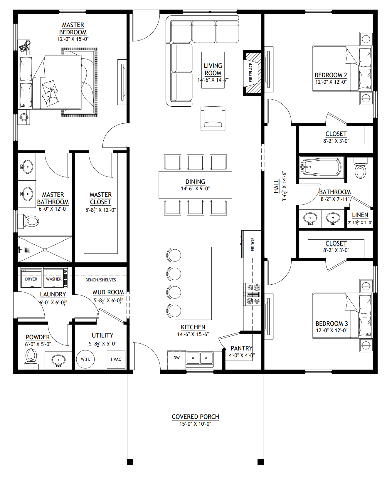
PL-62323 Elias Barndominium House Plan
DETAILS
HEATED SQ FT
First Floor:
1,600 SF
Second Floor:None
Total Heated Sq Ft:1,600 SF
UNHEATED SQ FT
150 SF
Carport:None
3
2
1
None
40'
50'
17'-4 1/2"
Concrete Slab
4:12
Stick-Frame
CEILING HEIGHTS
9'
PL-62323 Elias Barndominium House Plan
About this barndominium house plan:
- 1600 Heated square feet
- 40x40 living space dimension
- 3 bedrooms
- 2.1 bathrooms
- 1 Story
- Utility Room
- Mudroom
- Open Concept
- Back porch
- A well-proportioned 1,600 square feet of heated living space offers the perfect blend of comfort and efficiency—ideal for those who value cozy living with room to grow.
- A clean and versatile 40x40 footprint creates a beautifully balanced layout—easy to furnish, effortless to navigate, and designed for seamless flow.
- Three inviting bedrooms provide space for rest, creativity, and connection—whether it’s a peaceful primary suite, a guest-ready room, or a playful retreat.
- Two full baths and a convenient powder room ensure smooth mornings and relaxed evenings, with style and function in every detail.
- Single-level living at its finest—no stairs, no fuss, just a smooth and accessible layout that keeps everything within easy reach.
- A dedicated utility room keeps the mess out of sight and the rhythm of daily life running smoothly—perfect for laundry, storage, and household essentials.
- The open-concept design invites light and life into every corner—ideal for entertaining, relaxing, and enjoying the freedom of a space that flows.
- Step out onto the rear porch and unwind—whether it’s morning coffee, evening breezes, or weekend lounging, this outdoor space is your private slice of serenity.
- A stylish buffer between the great outdoors and your pristine interiors, the mudroom offers a smart space to kick off boots, hang coats, and stash gear—keeping clutter contained and your home effortlessly tidy.
What's included in PL-62323:
Cover Page
Floor Plan
Roof Plan
Front and Rear Elevation
Right and Left Elevation
Electrical Plan
Plumbing Plan
HVAC Plan
Roof Framing Plan
Foundation Plan
Foundation Detail
Interior Bearing Footing
C-Typical Column Detail
Wall Section
For more barndominium floor plans, check out our complete collection of 3 bedroom barndominium floor plans.
Need to make changes? Submit a modification request using the button that says Modify This Plan (below the Add To Cart Button). We will get you a free price quote within 72 hours
Please note all square footage are estimates.
What's Typically Included
What's Typically Included
THE SPECIFC DETAILS OF WHAT'S INCLUDED ON THESE PLANS IS CONTAINED IN THE PRODUCT DESCRIPTION. PLEASE SCROLL UP AND YOU WILL FIND IT UNDER "WHAT'S INCLUDED"
Our house plan sets typically have the following details:
4 Elevations – Front, Back, Both Sides
Detailed Floor Plan Drawing
Electrical Plans with placements for HVAC
Plumbing Plans with Placements
Flooring Plan
Roof Plan
Foundation Plan
For more information on what's included and examples of what your plans will look like, go here -> https://barndominiumplans.com/pages/whats-included
Please Note: We work with many different draftspeople who work in many different ways. It should be noted that their plans may contain different details. THE SPECIFC DETAILS OF WHAT'S INCLUDED ON THESE PLANS IS CONTAINED IN THE PRODUCT DESCRIPTION. PLEASE SCROLL UP AND YOU WILL FIND IT UNDER "WHAT'S INCLUDED"
What's Not Included
What's Not Included
The following items are NOT included:
Architectural or Engineering Stamp. Our plans are engineering-ready! Can take them to a local engineer in your state.
Site Plan - We can provide this if needed for $300 additional.
Materials List - handled locally when required
Energy calculations - handled locally when required
Snow load calculations - handled locally when required
Delivery
Delivery
This plan is available as a digital product or printed + shipped.
If you select digital, the plan will be delivered to you via email as a PDF file, no matter what time it is.
If you select printed + shipped, your order will ship in 24x36 format within 1 business day of your order.
We ship from the midwest in order to serve the entire country within 3-5 business days!
Return policy
Return policy
All barndominium house plan purchases are FINAL. There are no exchanges or refunds due to the digital nature of the product. Please make sure that the plan you have selected is going to fit your needs.
PDF (Single Build) $849.99
DETAILS
HEATED SQ FT
First Floor:
1,600 SF
Second Floor:None
Total Heated Sq Ft:1,600 SF
UNHEATED SQ FT
150 SF
Carport:None
3
2
1
None
40'
50'
17'-4 1/2"
Concrete Slab
4:12
Stick-Frame
CEILING HEIGHTS
9'
PL-62323 Elias Barndominium House Plan
About this barndominium house plan:
- 1600 Heated square feet
- 40x40 living space dimension
- 3 bedrooms
- 2.1 bathrooms
- 1 Story
- Utility Room
- Mudroom
- Open Concept
- Back porch
- A well-proportioned 1,600 square feet of heated living space offers the perfect blend of comfort and efficiency—ideal for those who value cozy living with room to grow.
- A clean and versatile 40x40 footprint creates a beautifully balanced layout—easy to furnish, effortless to navigate, and designed for seamless flow.
- Three inviting bedrooms provide space for rest, creativity, and connection—whether it’s a peaceful primary suite, a guest-ready room, or a playful retreat.
- Two full baths and a convenient powder room ensure smooth mornings and relaxed evenings, with style and function in every detail.
- Single-level living at its finest—no stairs, no fuss, just a smooth and accessible layout that keeps everything within easy reach.
- A dedicated utility room keeps the mess out of sight and the rhythm of daily life running smoothly—perfect for laundry, storage, and household essentials.
- The open-concept design invites light and life into every corner—ideal for entertaining, relaxing, and enjoying the freedom of a space that flows.
- Step out onto the rear porch and unwind—whether it’s morning coffee, evening breezes, or weekend lounging, this outdoor space is your private slice of serenity.
- A stylish buffer between the great outdoors and your pristine interiors, the mudroom offers a smart space to kick off boots, hang coats, and stash gear—keeping clutter contained and your home effortlessly tidy.
What's included in PL-62323:
Cover Page
Floor Plan
Roof Plan
Front and Rear Elevation
Right and Left Elevation
Electrical Plan
Plumbing Plan
HVAC Plan
Roof Framing Plan
Foundation Plan
Foundation Detail
Interior Bearing Footing
C-Typical Column Detail
Wall Section
For more barndominium floor plans, check out our complete collection of 3 bedroom barndominium floor plans.
Need to make changes? Submit a modification request using the button that says Modify This Plan (below the Add To Cart Button). We will get you a free price quote within 72 hours
Please note all square footage are estimates.
What's Typically Included
What's Typically Included
THE SPECIFC DETAILS OF WHAT'S INCLUDED ON THESE PLANS IS CONTAINED IN THE PRODUCT DESCRIPTION. PLEASE SCROLL UP AND YOU WILL FIND IT UNDER "WHAT'S INCLUDED"
Our house plan sets typically have the following details:
4 Elevations – Front, Back, Both Sides
Detailed Floor Plan Drawing
Electrical Plans with placements for HVAC
Plumbing Plans with Placements
Flooring Plan
Roof Plan
Foundation Plan
For more information on what's included and examples of what your plans will look like, go here -> https://barndominiumplans.com/pages/whats-included
Please Note: We work with many different draftspeople who work in many different ways. It should be noted that their plans may contain different details. THE SPECIFC DETAILS OF WHAT'S INCLUDED ON THESE PLANS IS CONTAINED IN THE PRODUCT DESCRIPTION. PLEASE SCROLL UP AND YOU WILL FIND IT UNDER "WHAT'S INCLUDED"
What's Not Included
What's Not Included
The following items are NOT included:
Architectural or Engineering Stamp. Our plans are engineering-ready! Can take them to a local engineer in your state.
Site Plan - We can provide this if needed for $300 additional.
Materials List - handled locally when required
Energy calculations - handled locally when required
Snow load calculations - handled locally when required
Delivery
Delivery
This plan is available as a digital product or printed + shipped.
If you select digital, the plan will be delivered to you via email as a PDF file, no matter what time it is.
If you select printed + shipped, your order will ship in 24x36 format within 1 business day of your order.
We ship from the midwest in order to serve the entire country within 3-5 business days!
Return policy
Return policy
All barndominium house plan purchases are FINAL. There are no exchanges or refunds due to the digital nature of the product. Please make sure that the plan you have selected is going to fit your needs.












Real Reviews, Real Experiences
How to Build Your Own Barndominium & 120+ House Plans

Just getting started on your build? Get the Barndominiums Made Easy Program.
- Choosing a selection results in a full page refresh.