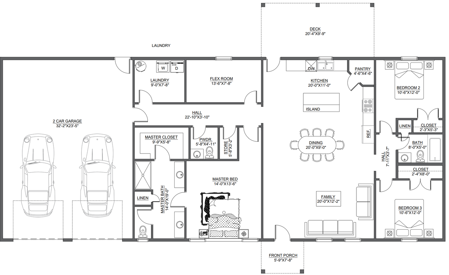
PL-62313 Dalton Barndominium House Plan
- 1870 Heated square feet
- 33x56 living space dimension
- 798 square foot attached 2 car garage
- 3 bedrooms
- 2.1 bathrooms
- 1 Story
- Flex Room
- Utility Room
- Open Concept
- The Dalton barndominium house plan is 1870 heated square feet and features 3 bedrooms, 2 full bathrooms, 1 1/2 bathroom, and an attached 798 square foot attached 2 car garage.
- You'll love the open-concept design of this floor plan that allows for easy flow between the main living areas.
- The living room is large and spacious allowing plenty of space to gather and create memories as family and friends.
- The giant master suite is located on the opposite end of the home from the other bedrooms, providing maximum privacy and seclusion. With its spacious walk-in closet and luxurious en suite bathroom, it is the perfect place to relax after a long day.
- The secondary bedrooms are a good size and include ample closet space, so there's plenty of room for everyone. And with a shared bathroom between two of the bedrooms, it makes getting ready a breeze. The half bathroom is great for guests to use.
- The flex room is a great addition to this home. It can be used for anything from a home office to a playroom for the kids.
What's included in PL-62313:
Elevations - Front, Back, Left Side, Right Side
Detailed Floor Plan
Electrical Plan
Flooring Plan
Ceiling Joist Plan
Roof Plan
Plumbing Plan
Foundation Plan
Â
For more barndominium floor plans, check out our complete collection of 3 bedroom barndominium floor plans.
Â
Need to make changes? Submit a modification request using the button that says Modify This Plan . We will get you a free price quote within 72 hours




