Couldn't load pickup availability
Barndominium Plans
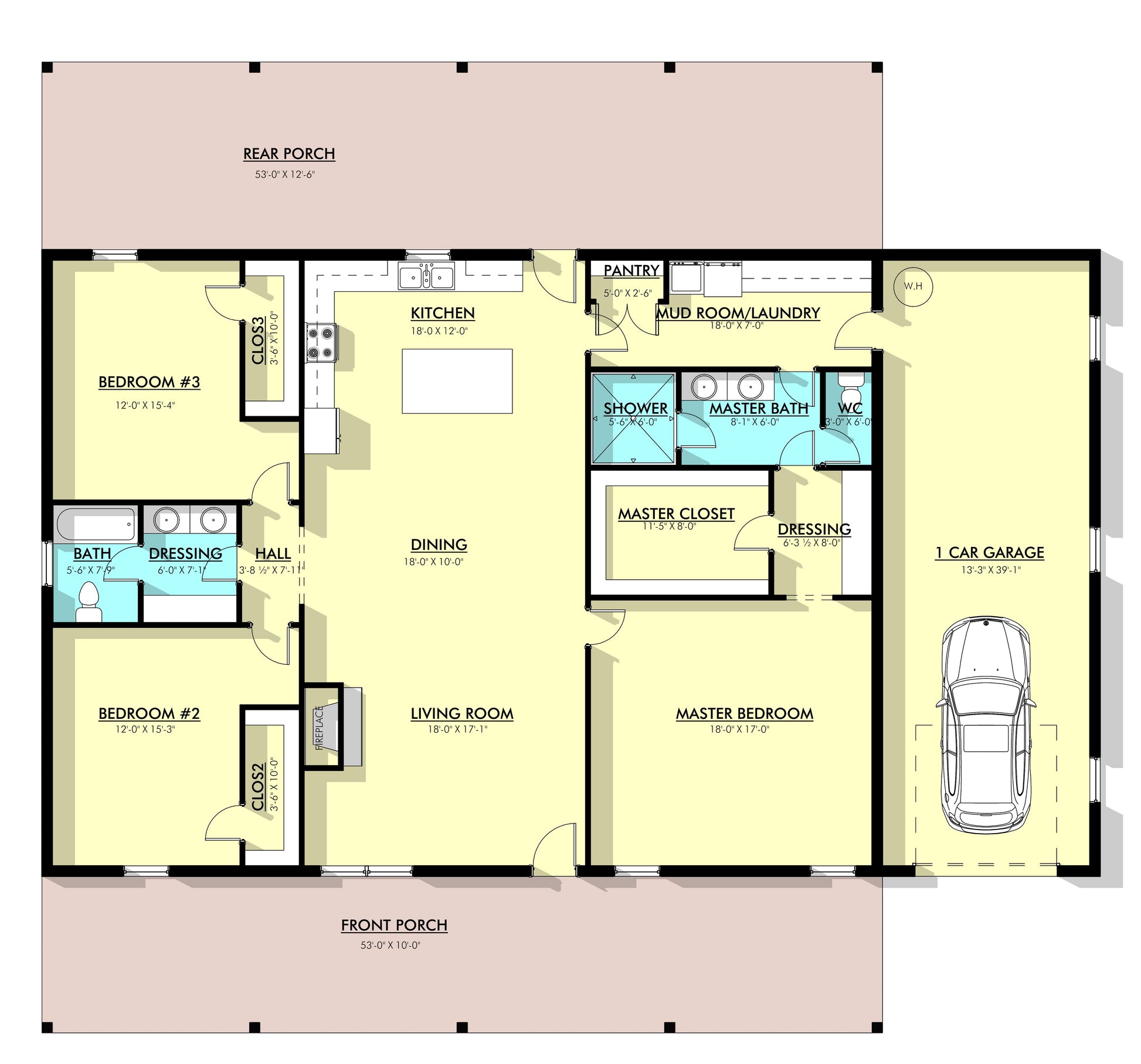
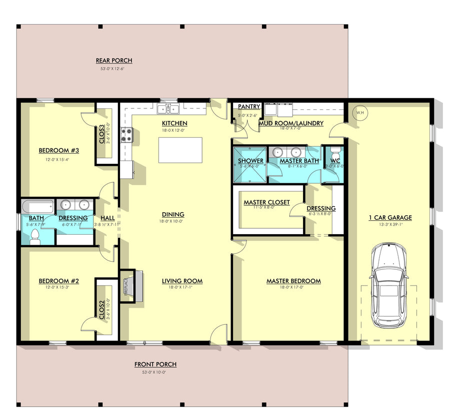
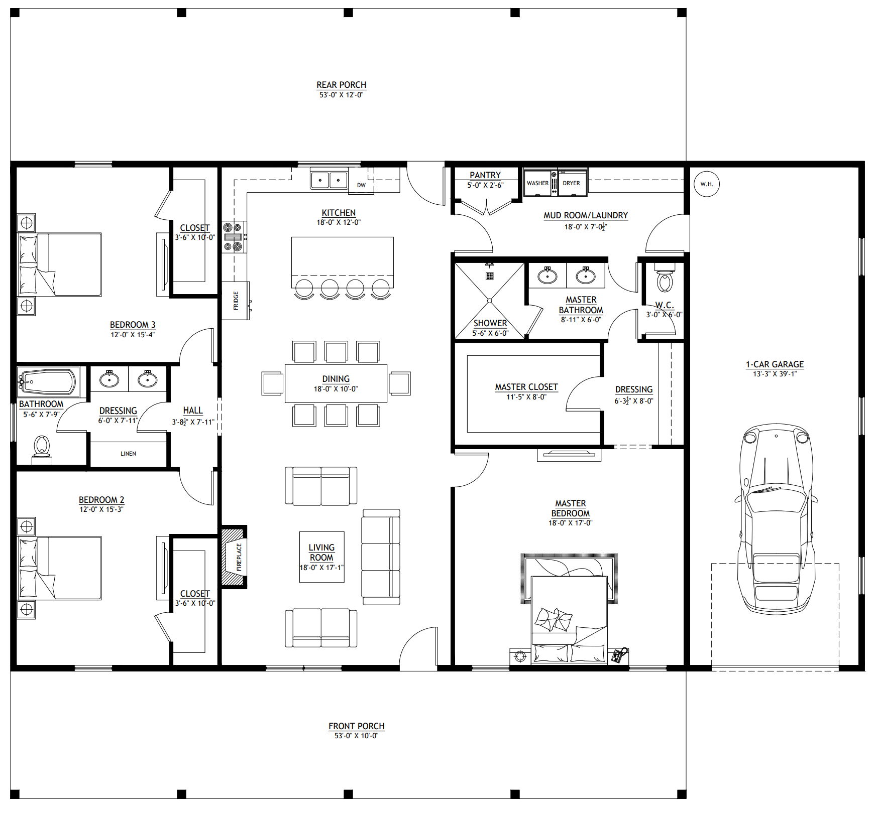
PL-62001-G Barndominium House Plan
DETAILS
HEATED SQ FT
First Floor:
2,120 SF
Second Floor:None
Total Heated Sq Ft:2,120 SF
UNHEATED SQ FT
Porch Area: 1,166 SF Garage Area: 560 SF Total Unheated: 1,726 SF
Carport:None
3
2
1
560 SF
53'
67'
21'-9"
Concrete Slab
6:12
Stick-Frame
CEILING HEIGHTS
10'
PL-62001-G Barndominium House Plan
Looking for this plan, but a bit smaller? Discover a similar floor plan here that's 1800 sq ft.
- 2120 Heated square feet
- 40x53 living space dimension
- 1 Car attached garage
- 3 bedrooms
- 2 bathrooms
- Open Concept
- Single-story
- 1 Story
- Front & rear porch
- Spacious and thoughtfully designed 2120 heated SF, offering plenty of room to live, work, and relax in total comfort.
- Convenient and secure parking 1-car attached garage, just steps from your front door—perfect for easy access and added storage.
- A trio of cozy retreats, ready to be transformed into restful sanctuaries, vibrant workspaces, or guest-friendly escapes.
- Two stylish and functional bathrooms, featuring modern finishes for effortless daily routines.
- A seamless flow between living, dining, and kitchen areas, creating an inviting and airy space for connection and entertaining.
- The ease of one-level living—no stairs, just effortless movement throughout a beautifully designed space.
- Practical and elegant, offering a streamlined layout that balances functionality with charm.
- Welcome in fresh air and scenic views with inviting outdoor spaces—perfect for morning coffee or sunset unwinding.
What's included in PL-62001-G:
Cover Sheet
Detailed Floor Plan Dimensions
Four Elevations - Front, Back, Left Side, Right Side
Electrical Plan
Plumbing Plan
HVAC Plan
Roof Framing Plan
Foundation Plan
Wall Section
For more barndominium floor plans, check out our complete collection of 3 bedroom barndominium floor plans.
Need to make changes? Submit a modification request using the button that says Modify This Plan (below the Add To Cart Button). We will get you a free price quote within 72 hours
Please note all square footage are estimates.
What's Included
What's Included
Our house plan sets typically have the following details:
4 Elevations – Front, Back, Both Sides
Detailed Floor Plan Drawing
Electrical Plans with placements for HVAC
Plumbing Plans with Placements
Flooring Plan
Roof Plan
Foundation Plan
For more information on what's included and examples of what your plans will look like, go here -> https://barndominiumplans.com/pages/whats-included
Please Note: We work with many different draftspeople who work in many different ways. It should be noted that their plans may contain different details.Â
What's Not Included
What's Not Included
The following items are NOT included:
Architectural or Engineering Stamp. Our plans are engineering-ready! Can take them to a local engineer in your state.
Site Plan - We can provide this if needed for $300 additional.
Materials List - handled locally when required
Energy calculations - handled locally when required
Snow load calculations - handled locally when required
Delivery
Delivery
This plan is available as a digital product or printed + shipped.
If you select digital, the plan will be delivered to you via email as a PDF file, no matter what time it is.
If you select printed + shipped, your order will ship in 24x36 format within 1 business day of your order.
We ship from the midwest in order to serve the entire country within 3-5 business days!
Return policy
Return policy
All barndominium house plan purchases are FINAL. There are no exchanges or refunds due to the digital nature of the product. Please make sure that the plan you have selected is going to fit your needs.
PDF (Single Build) $849.99
DETAILS
HEATED SQ FT
First Floor:
2,120 SF
Second Floor:None
Total Heated Sq Ft:2,120 SF
UNHEATED SQ FT
Porch Area: 1,166 SF Garage Area: 560 SF Total Unheated: 1,726 SF
Carport:None
3
2
1
560 SF
53'
67'
21'-9"
Concrete Slab
6:12
Stick-Frame
CEILING HEIGHTS
10'
PL-62001-G Barndominium House Plan
Looking for this plan, but a bit smaller? Discover a similar floor plan here that's 1800 sq ft.
- 2120 Heated square feet
- 40x53 living space dimension
- 1 Car attached garage
- 3 bedrooms
- 2 bathrooms
- Open Concept
- Single-story
- 1 Story
- Front & rear porch
- Spacious and thoughtfully designed 2120 heated SF, offering plenty of room to live, work, and relax in total comfort.
- Convenient and secure parking 1-car attached garage, just steps from your front door—perfect for easy access and added storage.
- A trio of cozy retreats, ready to be transformed into restful sanctuaries, vibrant workspaces, or guest-friendly escapes.
- Two stylish and functional bathrooms, featuring modern finishes for effortless daily routines.
- A seamless flow between living, dining, and kitchen areas, creating an inviting and airy space for connection and entertaining.
- The ease of one-level living—no stairs, just effortless movement throughout a beautifully designed space.
- Practical and elegant, offering a streamlined layout that balances functionality with charm.
- Welcome in fresh air and scenic views with inviting outdoor spaces—perfect for morning coffee or sunset unwinding.
What's included in PL-62001-G:
Cover Sheet
Detailed Floor Plan Dimensions
Four Elevations - Front, Back, Left Side, Right Side
Electrical Plan
Plumbing Plan
HVAC Plan
Roof Framing Plan
Foundation Plan
Wall Section
For more barndominium floor plans, check out our complete collection of 3 bedroom barndominium floor plans.
Need to make changes? Submit a modification request using the button that says Modify This Plan (below the Add To Cart Button). We will get you a free price quote within 72 hours
Please note all square footage are estimates.
What's Included
What's Included
Our house plan sets typically have the following details:
4 Elevations – Front, Back, Both Sides
Detailed Floor Plan Drawing
Electrical Plans with placements for HVAC
Plumbing Plans with Placements
Flooring Plan
Roof Plan
Foundation Plan
For more information on what's included and examples of what your plans will look like, go here -> https://barndominiumplans.com/pages/whats-included
Please Note: We work with many different draftspeople who work in many different ways. It should be noted that their plans may contain different details.Â
What's Not Included
What's Not Included
The following items are NOT included:
Architectural or Engineering Stamp. Our plans are engineering-ready! Can take them to a local engineer in your state.
Site Plan - We can provide this if needed for $300 additional.
Materials List - handled locally when required
Energy calculations - handled locally when required
Snow load calculations - handled locally when required
Delivery
Delivery
This plan is available as a digital product or printed + shipped.
If you select digital, the plan will be delivered to you via email as a PDF file, no matter what time it is.
If you select printed + shipped, your order will ship in 24x36 format within 1 business day of your order.
We ship from the midwest in order to serve the entire country within 3-5 business days!
Return policy
Return policy
All barndominium house plan purchases are FINAL. There are no exchanges or refunds due to the digital nature of the product. Please make sure that the plan you have selected is going to fit your needs.








Real Reviews, Real Experiences
How to Build Your Own Barndominium & 120+ House Plans

Just getting started on your build? Get the Barndominiums Made Easy Program.
- Choosing a selection results in a full page refresh.