Couldn't load pickup availability
Barndominium Plans
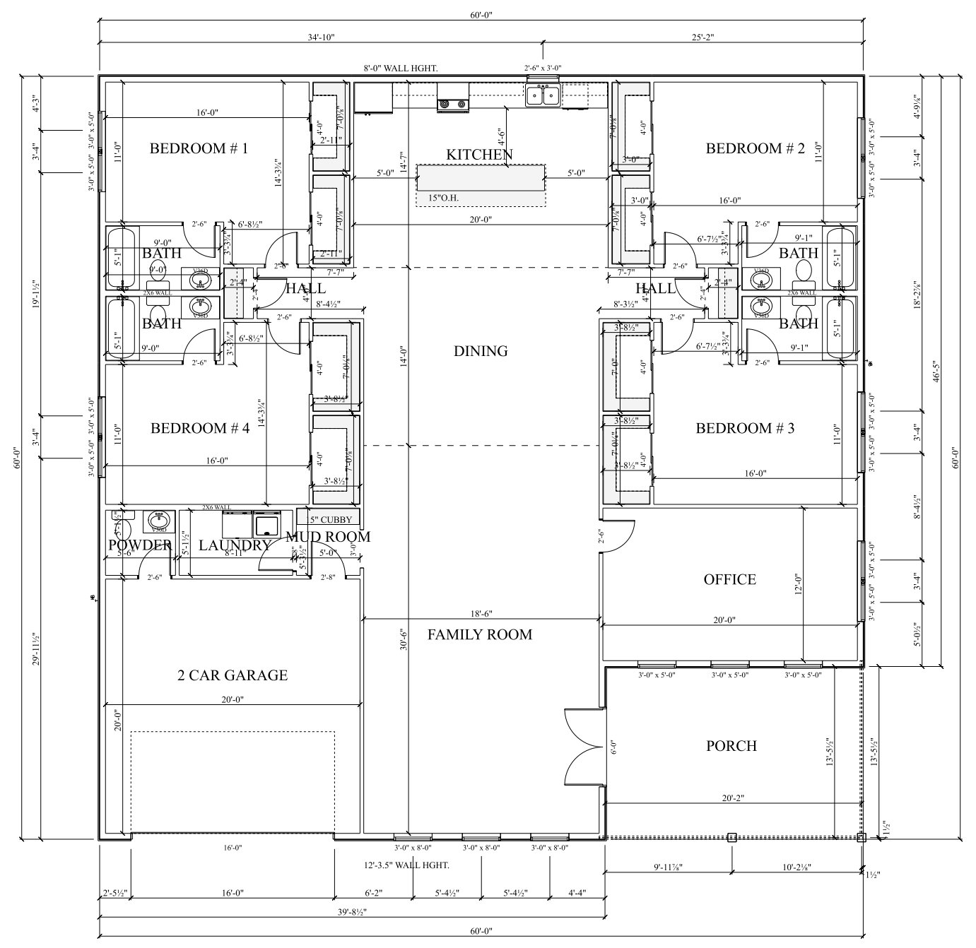
PL-60803 Penelope Barndominium House Plan
DETAILS
HEATED SQ FT
First Floor:
2927 SF
Second Floor:None
Total Heated Sq Ft:2927 SF
UNHEATED SQ FT
Porch: 276 SF Garage: 424 SF Total: 700 SF
Carport:None
4
4
1
424 SF
60'
60'
12'-11 1/8"
Concrete Slab
01:12
Stick Frame
CEILING HEIGHTS
8'
PL-60803 Penelope Barndominium House Plan
- 2926 Heated square feet
- 60x60 living space dimension
- 424 square feet attached garage
- 4 bedrooms
- 4.1 bathrooms
- 1 Story
- Mudroom
- Office
- Open Concept
- Porch
- The Penelope barndominium house plan is 2926 heated square feet and features 4 bedrooms, 4 full bathrooms, and 1 1/2 bathrooms. Attached to the home is a 424-square-foot garage.
- As you enter this spacious floor plan you immediately notice an abundance of space in the main living area of the home thanks to the open-concept design.
- The kitchen is spacious with a nice size island in the middle perfect for prep and serving.
- What is unique about this barndominium house plan is that there are four generously sized bedrooms, each accompanied by its own private bathroom, and two nice-sized closets.
- This home also has a nice office perfect for working from home, doing homework for the kids, or managing the household budget.
- Just off the garage you will find an attached half bathroom perfect for working outside or in the garage without having to come through the home to use the facilities.
What's included in PL-60803:
Cover Sheet
Detailed Floor Plan Dimensions
Four Elevations - Front, Back, Left Side, Right Side
Electrical Plan
Plumbing Plan
HVAC Plan
Roof Framing Plan
Foundation Plan
Wall Section
For more barndominium floor plans, check out our complete collection of 4 bedroom barndominium floor plans.
Need to make changes? Submit a modification request using the button that says Modify This Plan . We will get you a free price quote within 72 hours
What's Typically Included
What's Typically Included
THE SPECIFC DETAILS OF WHAT'S INCLUDED ON THESE PLANS IS CONTAINED IN THE PRODUCT DESCRIPTION. PLEASE SCROLL UP AND YOU WILL FIND IT UNDER "WHAT'S INCLUDED"
Our house plan sets typically have the following details:
4 Elevations – Front, Back, Both Sides
Detailed Floor Plan Drawing
Electrical Plans with placements for HVAC
Plumbing Plans with Placements
Flooring Plan
Roof Plan
Foundation Plan
For more information on what's included and examples of what your plans will look like, go here -> https://barndominiumplans.com/pages/whats-included
Please Note: We work with many different draftspeople who work in many different ways. It should be noted that their plans may contain different details. THE SPECIFC DETAILS OF WHAT'S INCLUDED ON THESE PLANS IS CONTAINED IN THE PRODUCT DESCRIPTION. PLEASE SCROLL UP AND YOU WILL FIND IT UNDER "WHAT'S INCLUDED"
What's Not Included
What's Not Included
The following items are NOT included:
Architectural or Engineering Stamp. Our plans are engineering-ready! Can take them to a local engineer in your state.
Site Plan - We can provide this if needed for $300 additional.
Materials List - handled locally when required
Energy calculations - handled locally when required
Snow load calculations - handled locally when required
Delivery
Delivery
This plan is available as a digital product or printed + shipped.
If you select digital, the plan will be delivered to you via email as a PDF file, no matter what time it is.
If you select printed + shipped, your order will ship in 24x36 format within 1 business day of your order.
We ship from the midwest in order to serve the entire country within 3-5 business days!
Return policy
Return policy
All barndominium house plan purchases are FINAL. There are no exchanges or refunds due to the digital nature of the product. Please make sure that the plan you have selected is going to fit your needs.
PDF (Single Build) $849.99
DETAILS
HEATED SQ FT
First Floor:
2927 SF
Second Floor:None
Total Heated Sq Ft:2927 SF
UNHEATED SQ FT
Porch: 276 SF Garage: 424 SF Total: 700 SF
Carport:None
4
4
1
424 SF
60'
60'
12'-11 1/8"
Concrete Slab
01:12
Stick Frame
CEILING HEIGHTS
8'
PL-60803 Penelope Barndominium House Plan
- 2926 Heated square feet
- 60x60 living space dimension
- 424 square feet attached garage
- 4 bedrooms
- 4.1 bathrooms
- 1 Story
- Mudroom
- Office
- Open Concept
- Porch
- The Penelope barndominium house plan is 2926 heated square feet and features 4 bedrooms, 4 full bathrooms, and 1 1/2 bathrooms. Attached to the home is a 424-square-foot garage.
- As you enter this spacious floor plan you immediately notice an abundance of space in the main living area of the home thanks to the open-concept design.
- The kitchen is spacious with a nice size island in the middle perfect for prep and serving.
- What is unique about this barndominium house plan is that there are four generously sized bedrooms, each accompanied by its own private bathroom, and two nice-sized closets.
- This home also has a nice office perfect for working from home, doing homework for the kids, or managing the household budget.
- Just off the garage you will find an attached half bathroom perfect for working outside or in the garage without having to come through the home to use the facilities.
What's included in PL-60803:
Cover Sheet
Detailed Floor Plan Dimensions
Four Elevations - Front, Back, Left Side, Right Side
Electrical Plan
Plumbing Plan
HVAC Plan
Roof Framing Plan
Foundation Plan
Wall Section
For more barndominium floor plans, check out our complete collection of 4 bedroom barndominium floor plans.
Need to make changes? Submit a modification request using the button that says Modify This Plan . We will get you a free price quote within 72 hours
What's Typically Included
What's Typically Included
THE SPECIFC DETAILS OF WHAT'S INCLUDED ON THESE PLANS IS CONTAINED IN THE PRODUCT DESCRIPTION. PLEASE SCROLL UP AND YOU WILL FIND IT UNDER "WHAT'S INCLUDED"
Our house plan sets typically have the following details:
4 Elevations – Front, Back, Both Sides
Detailed Floor Plan Drawing
Electrical Plans with placements for HVAC
Plumbing Plans with Placements
Flooring Plan
Roof Plan
Foundation Plan
For more information on what's included and examples of what your plans will look like, go here -> https://barndominiumplans.com/pages/whats-included
Please Note: We work with many different draftspeople who work in many different ways. It should be noted that their plans may contain different details. THE SPECIFC DETAILS OF WHAT'S INCLUDED ON THESE PLANS IS CONTAINED IN THE PRODUCT DESCRIPTION. PLEASE SCROLL UP AND YOU WILL FIND IT UNDER "WHAT'S INCLUDED"
What's Not Included
What's Not Included
The following items are NOT included:
Architectural or Engineering Stamp. Our plans are engineering-ready! Can take them to a local engineer in your state.
Site Plan - We can provide this if needed for $300 additional.
Materials List - handled locally when required
Energy calculations - handled locally when required
Snow load calculations - handled locally when required
Delivery
Delivery
This plan is available as a digital product or printed + shipped.
If you select digital, the plan will be delivered to you via email as a PDF file, no matter what time it is.
If you select printed + shipped, your order will ship in 24x36 format within 1 business day of your order.
We ship from the midwest in order to serve the entire country within 3-5 business days!
Return policy
Return policy
All barndominium house plan purchases are FINAL. There are no exchanges or refunds due to the digital nature of the product. Please make sure that the plan you have selected is going to fit your needs.

Real Reviews, Real Experiences
How to Build Your Own Barndominium & 120+ House Plans
Just getting started on your build? Get the Barndominiums Made Easy Program.
- Choosing a selection results in a full page refresh.



