Couldn't load pickup availability
Barndominium Plans
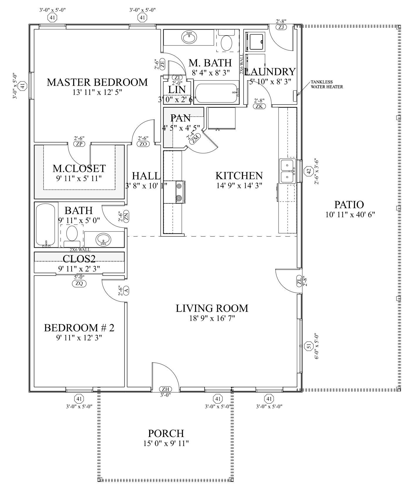
PL-60001-A Adair Barndominium House Plan
DETAILS
HEATED SQ FT
First Floor:
1,151 SF
Total Heated Sq Ft:
1,151 SF
UNHEATED SQ FT
Patio 445.5 SF, Porch 599 SF = TOTAL 1,044.5 SF
Carport:None
2
2
1
None
30'
37' 6"
10'
Concrete Slab
5/12
Stick-Frame
PL-60001-A Adair Barndominium House Plan
About this barndominium house plan:
- 1,232 Heated Sq Ft
- 2 Bedrooms
- 2 Bathrooms
- One Story
- Open concept
- Foyer
- Utility room
- Bonus room
- Mudroom
- Front porch & rear porch
-
This efficient and compact barndominium floor plan is designed for simple, comfortable living without sacrificing essential amenities.
-
The open-concept living room and kitchen create a spacious feel, ideal for a single person, a couple, or a small family.
-
The master bedroom features a large walk-in closet and an en-suite bathroom, providing a private and comfortable space.
-
A second bedroom and a guest bathroom are located on the opposite side of the home.
-
The laundry room is conveniently placed next to the kitchen, and a large patio extends the living space outdoors.
What's included in PL-60001-A:
Four Elevations - Front, Back, Left Side, Right Side
Detailed Floor Plan
Electrical Plan
Main Floor Flooring
Roof Framing Plan
Roof Plan
Plumbing Plan
Foundation Plan
For more barndominium floor plans, check out our complete collection of 3-bedroom barndominium floor plans.
Need to make changes? Submit a modification request using the button that says Modify This Plan (below the Add To Cart Button). We will get you a free price quote within 72 hours
Please note all square footage are estimates.
What's Typically Included
What's Typically Included
THE SPECIFC DETAILS OF WHAT'S INCLUDED ON THESE PLANS IS CONTAINED IN THE PRODUCT DESCRIPTION. PLEASE SCROLL UP AND YOU WILL FIND IT UNDER "WHAT'S INCLUDED"
Our house plan sets typically have the following details:
4 Elevations – Front, Back, Both Sides
Detailed Floor Plan Drawing
Electrical Plans with placements for HVAC
Plumbing Plans with Placements
Flooring Plan
Roof Plan
Foundation Plan
For more information on what's included and examples of what your plans will look like, go here -> https://barndominiumplans.com/pages/whats-included
Please Note: We work with many different draftspeople who work in many different ways. It should be noted that their plans may contain different details. THE SPECIFC DETAILS OF WHAT'S INCLUDED ON THESE PLANS IS CONTAINED IN THE PRODUCT DESCRIPTION. PLEASE SCROLL UP AND YOU WILL FIND IT UNDER "WHAT'S INCLUDED"
What's Not Included
What's Not Included
The following items are NOT included:
Architectural or Engineering Stamp. Our plans are engineering-ready! Can take them to a local engineer in your state.
Site Plan - We can provide this if needed for $300 additional.
Materials List - handled locally when required
Energy calculations - handled locally when required
Snow load calculations - handled locally when required
Delivery
Delivery
This plan is available as a digital product or printed + shipped.
If you select digital, the plan will be delivered to you via email as a PDF file, no matter what time it is.
If you select printed + shipped, your order will ship in 24x36 format within 1 business day of your order.
We ship from the midwest in order to serve the entire country within 3-5 business days!
Return policy
Return policy
All barndominium house plan purchases are FINAL. There are no exchanges or refunds due to the digital nature of the product. Please make sure that the plan you have selected is going to fit your needs.
PDF (Single Build) $849.99
DETAILS
HEATED SQ FT
First Floor:
1,151 SF
Total Heated Sq Ft:
1,151 SF
UNHEATED SQ FT
Patio 445.5 SF, Porch 599 SF = TOTAL 1,044.5 SF
Carport:None
2
2
1
None
30'
37' 6"
10'
Concrete Slab
5/12
Stick-Frame
PL-60001-A Adair Barndominium House Plan
About this barndominium house plan:
- 1,232 Heated Sq Ft
- 2 Bedrooms
- 2 Bathrooms
- One Story
- Open concept
- Foyer
- Utility room
- Bonus room
- Mudroom
- Front porch & rear porch
-
This efficient and compact barndominium floor plan is designed for simple, comfortable living without sacrificing essential amenities.
-
The open-concept living room and kitchen create a spacious feel, ideal for a single person, a couple, or a small family.
-
The master bedroom features a large walk-in closet and an en-suite bathroom, providing a private and comfortable space.
-
A second bedroom and a guest bathroom are located on the opposite side of the home.
-
The laundry room is conveniently placed next to the kitchen, and a large patio extends the living space outdoors.
What's included in PL-60001-A:
Four Elevations - Front, Back, Left Side, Right Side
Detailed Floor Plan
Electrical Plan
Main Floor Flooring
Roof Framing Plan
Roof Plan
Plumbing Plan
Foundation Plan
For more barndominium floor plans, check out our complete collection of 3-bedroom barndominium floor plans.
Need to make changes? Submit a modification request using the button that says Modify This Plan (below the Add To Cart Button). We will get you a free price quote within 72 hours
Please note all square footage are estimates.
What's Typically Included
What's Typically Included
THE SPECIFC DETAILS OF WHAT'S INCLUDED ON THESE PLANS IS CONTAINED IN THE PRODUCT DESCRIPTION. PLEASE SCROLL UP AND YOU WILL FIND IT UNDER "WHAT'S INCLUDED"
Our house plan sets typically have the following details:
4 Elevations – Front, Back, Both Sides
Detailed Floor Plan Drawing
Electrical Plans with placements for HVAC
Plumbing Plans with Placements
Flooring Plan
Roof Plan
Foundation Plan
For more information on what's included and examples of what your plans will look like, go here -> https://barndominiumplans.com/pages/whats-included
Please Note: We work with many different draftspeople who work in many different ways. It should be noted that their plans may contain different details. THE SPECIFC DETAILS OF WHAT'S INCLUDED ON THESE PLANS IS CONTAINED IN THE PRODUCT DESCRIPTION. PLEASE SCROLL UP AND YOU WILL FIND IT UNDER "WHAT'S INCLUDED"
What's Not Included
What's Not Included
The following items are NOT included:
Architectural or Engineering Stamp. Our plans are engineering-ready! Can take them to a local engineer in your state.
Site Plan - We can provide this if needed for $300 additional.
Materials List - handled locally when required
Energy calculations - handled locally when required
Snow load calculations - handled locally when required
Delivery
Delivery
This plan is available as a digital product or printed + shipped.
If you select digital, the plan will be delivered to you via email as a PDF file, no matter what time it is.
If you select printed + shipped, your order will ship in 24x36 format within 1 business day of your order.
We ship from the midwest in order to serve the entire country within 3-5 business days!
Return policy
Return policy
All barndominium house plan purchases are FINAL. There are no exchanges or refunds due to the digital nature of the product. Please make sure that the plan you have selected is going to fit your needs.









Real Reviews, Real Experiences
How to Build Your Own Barndominium & 120+ House Plans

Just getting started on your build? Get the Barndominiums Made Easy Program.
- Choosing a selection results in a full page refresh.