Couldn't load pickup availability
Barndominium Plans
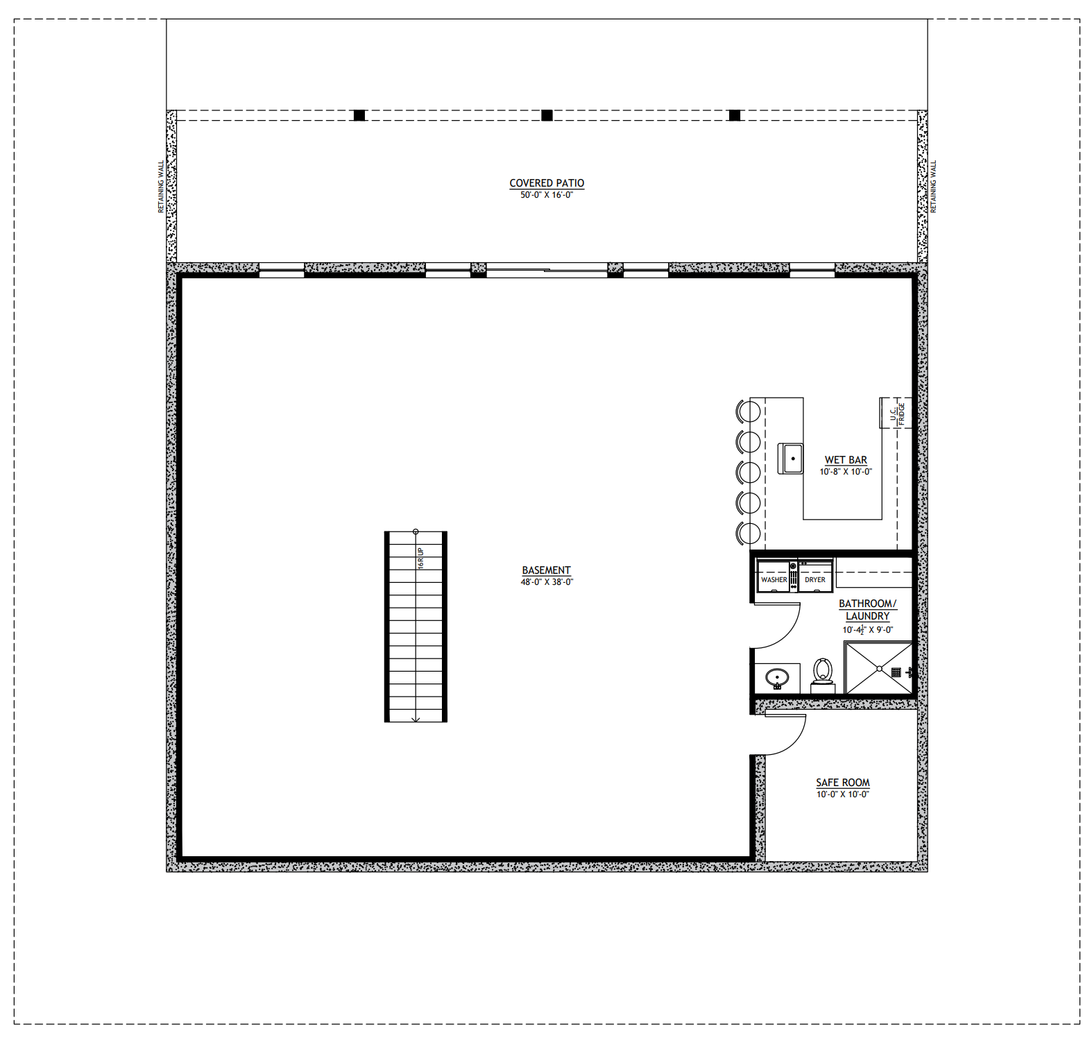
PL-2817 Randi Barndominium House Plan
DETAILS
HEATED SQ FT
First Floor:
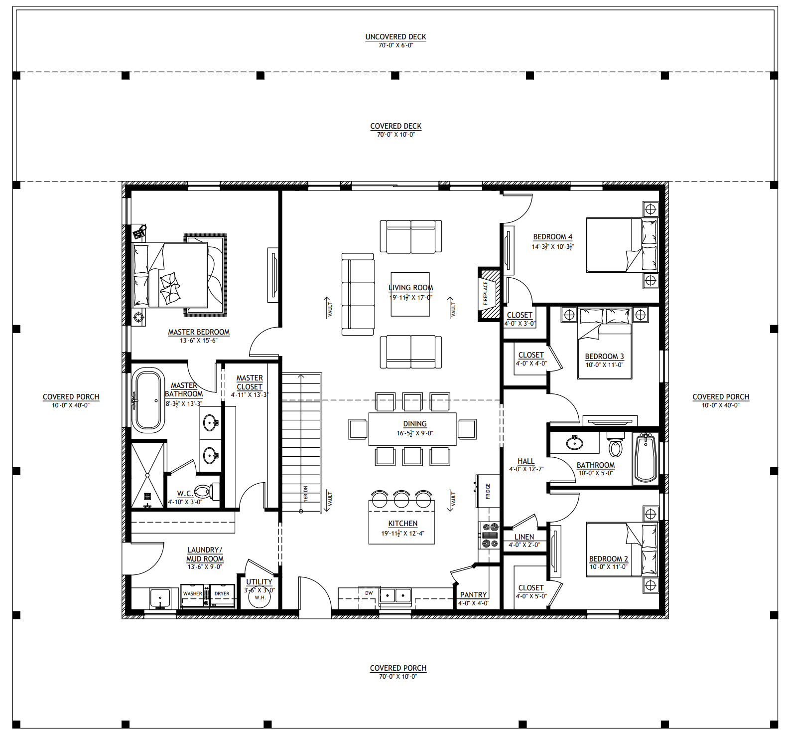
2000 SF
Second Floor:None
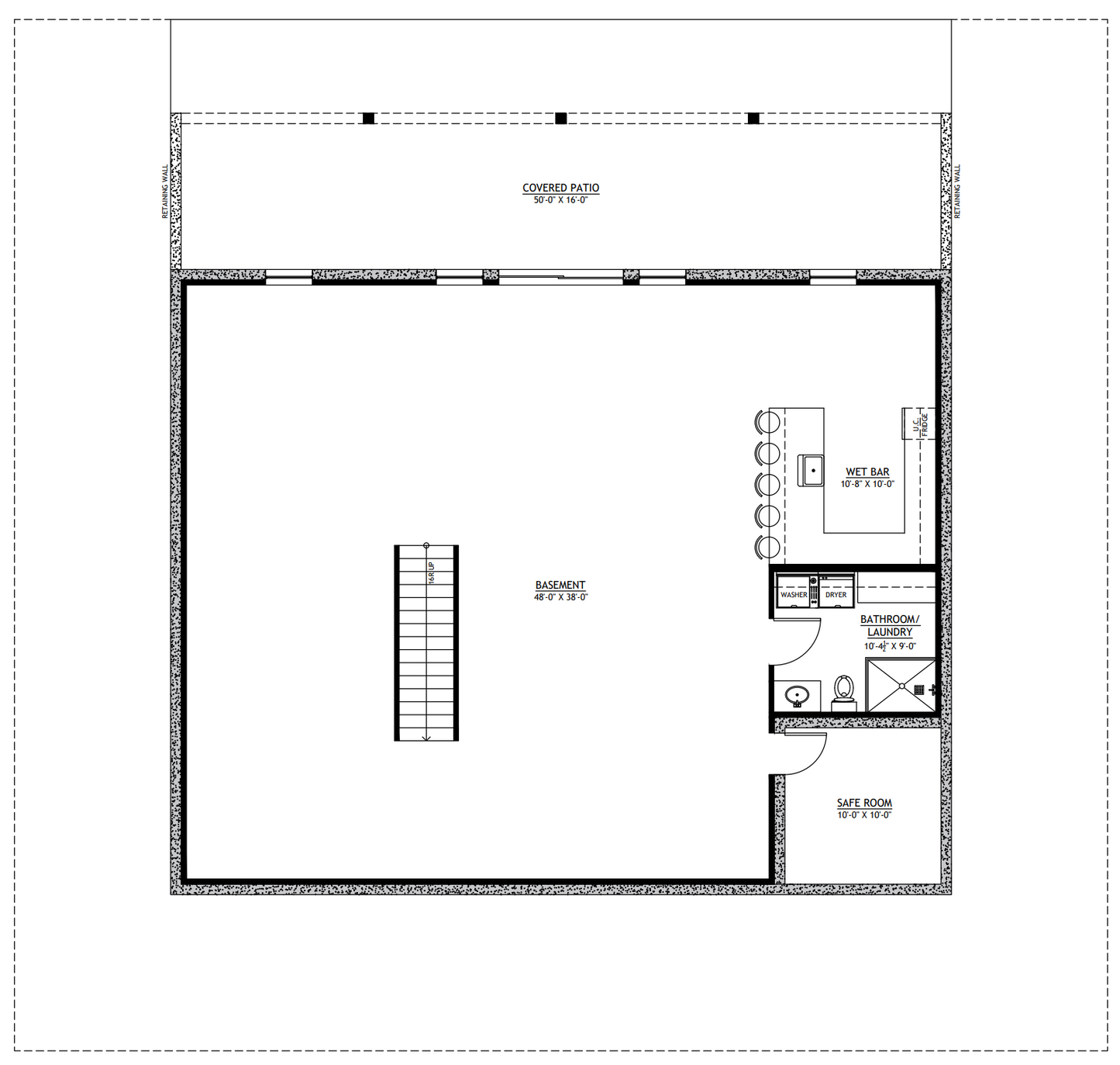
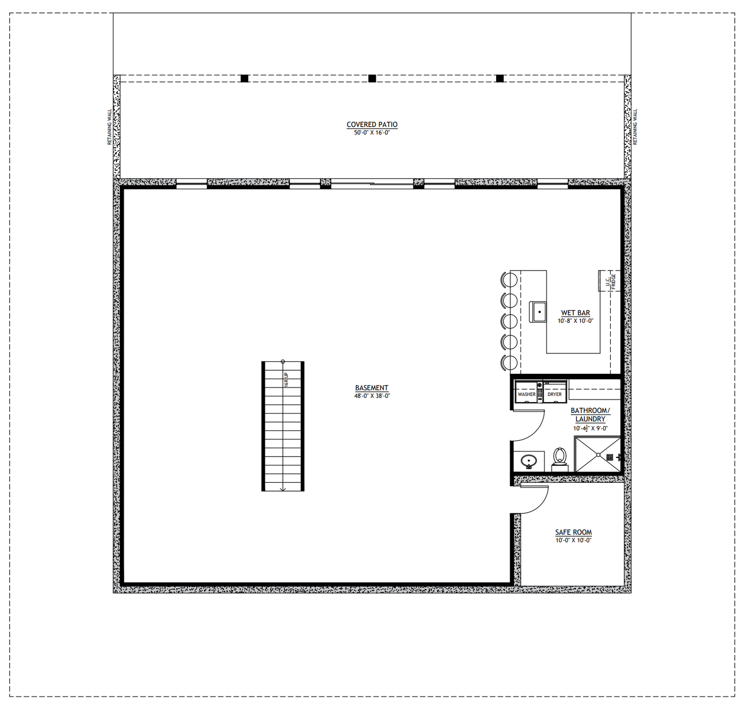
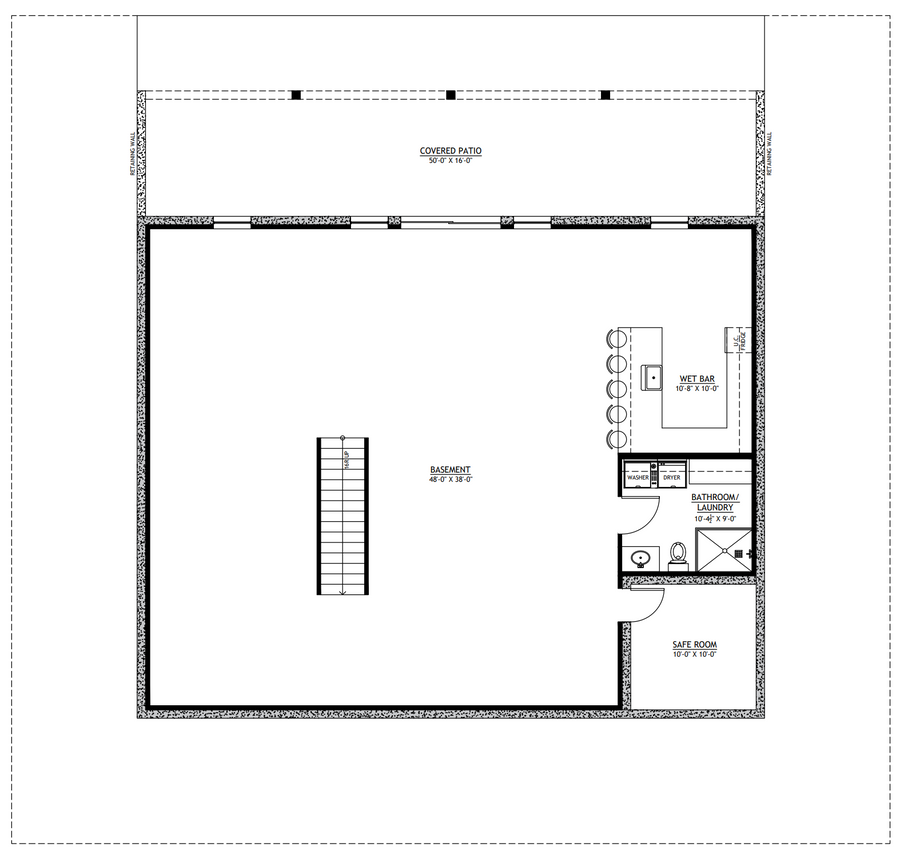
Total Heated Sq Ft:Main 2,000 SF, Basement 2,000 SF = TOTAL 4,000 SF
UNHEATED SQ FT
COVERED PATIO 800 SF, COVERED PORCH 1,500 SF, COVERED DECK 700 SF, UNCOVERED DECK 420 SF = TOTAL 3,420 SF
Carport:None
4
3
1
None
70'
66'
20'-9"
Basement
06:12
Stick-Frame
CEILING HEIGHTS
8'
PL-2817 Randi Barndominium House Plan
Â
About this barndominium house plan:
- 4000 Heated Sq Ft
- 40x50 living space dimensions
- 4 Bedrooms
- 3 Bathrooms
- Walkout Basement
- Open concept
- Single-story
- Wraparound porch
- Safe room
- Bar
Â
- Spacious and comfortable, this home offers 4,000 square feet of climate-controlled elegance—roomy enough to breathe, cozy enough to feel like home.
- Four versatile bedrooms provide restful retreats for the whole crew—whether it’s a peaceful primary suite or a vibrant kids’ corner.
- Three full baths ensure no morning traffic jams—because everyone deserves their own mirror time.
- A versatile lower level that goes beyond the ordinary—this basement houses a discreetly tucked safe room for added peace of mind, a convenient laundry area paired with a sleek half bathroom, and a stylish wet bar ready to host your next gathering.
- The open-concept design brings living, dining, and kitchen spaces together in a seamless flow—made for effortless entertaining and everyday ease.
- Everything you need on one sleek level—designed for smooth living and simplified routines, no stairs required.
- A charming wraparound porch invites breezy mornings, lazy afternoons, and golden-hour sunsets—your new favorite outdoor living room.
- Peace of mind comes built in with a fortified safe room—ready for whatever weather or worries the world may throw your way.
- Cheers to good times with a built-in bar that turns casual evenings into memorable moments—your social life just found its hotspot.
Â
What's included in PL-2817:
Cover Page
Main Floor Plan
Basement Floor Plan
Roof Plan
Elevations
Main Floor Electrical Plan
Basement Electrical Plan
Main Floor Plumbing Plan
Basement Plumbing Plan
Main Floor HVAC Plan
Basement HVAC Plan
Roof Framing Plan
Foundation Plan
Lally Column Detail
Deck Ledger Detail
Wall Section
Â
For more barndominium floor plans, check out our complete collection of 4 bedroom barndominium floor plans.
Â
Need to make changes? Submit a modification request using the button that says Modify This Plan. We will get you a free price quote within 72 hours.
Â
What's Typically Included
What's Typically Included
THE SPECIFC DETAILS OF WHAT'S INCLUDED ON THESE PLANS IS CONTAINED IN THE PRODUCT DESCRIPTION. PLEASE SCROLL UP AND YOU WILL FIND IT UNDER "WHAT'S INCLUDED"
Our house plan sets typically have the following details:
4 Elevations – Front, Back, Both Sides
Detailed Floor Plan Drawing
Electrical Plans with placements for HVAC
Plumbing Plans with Placements
Flooring Plan
Roof Plan
Foundation Plan
For more information on what's included and examples of what your plans will look like, go here -> https://barndominiumplans.com/pages/whats-included
Please Note: We work with many different draftspeople who work in many different ways. It should be noted that their plans may contain different details. THE SPECIFC DETAILS OF WHAT'S INCLUDED ON THESE PLANS IS CONTAINED IN THE PRODUCT DESCRIPTION. PLEASE SCROLL UP AND YOU WILL FIND IT UNDER "WHAT'S INCLUDED"
What's Not Included
What's Not Included
The following items are NOT included:
Architectural or Engineering Stamp. Our plans are engineering-ready! Can take them to a local engineer in your state.
Site Plan - We can provide this if needed for $300 additional.
Materials List - handled locally when required
Energy calculations - handled locally when required
Snow load calculations - handled locally when required
Delivery
Delivery
This plan is available as a digital product or printed + shipped.
If you select digital, the plan will be delivered to you via email as a PDF file, no matter what time it is.
If you select printed + shipped, your order will ship in 24x36 format within 1 business day of your order.
We ship from the midwest in order to serve the entire country within 3-5 business days!
Return policy
Return policy
All barndominium house plan purchases are FINAL. There are no exchanges or refunds due to the digital nature of the product. Please make sure that the plan you have selected is going to fit your needs.
PDF (Single Build) $1,349.00
DETAILS
HEATED SQ FT
First Floor:
2000 SF
Second Floor:None
Total Heated Sq Ft:Main 2,000 SF, Basement 2,000 SF = TOTAL 4,000 SF
UNHEATED SQ FT
COVERED PATIO 800 SF, COVERED PORCH 1,500 SF, COVERED DECK 700 SF, UNCOVERED DECK 420 SF = TOTAL 3,420 SF
Carport:None
4
3
1
None
70'
66'
20'-9"
Basement
06:12
Stick-Frame
CEILING HEIGHTS
8'
PL-2817 Randi Barndominium House Plan
Â
About this barndominium house plan:
- 4000 Heated Sq Ft
- 40x50 living space dimensions
- 4 Bedrooms
- 3 Bathrooms
- Walkout Basement
- Open concept
- Single-story
- Wraparound porch
- Safe room
- Bar
Â
- Spacious and comfortable, this home offers 4,000 square feet of climate-controlled elegance—roomy enough to breathe, cozy enough to feel like home.
- Four versatile bedrooms provide restful retreats for the whole crew—whether it’s a peaceful primary suite or a vibrant kids’ corner.
- Three full baths ensure no morning traffic jams—because everyone deserves their own mirror time.
- A versatile lower level that goes beyond the ordinary—this basement houses a discreetly tucked safe room for added peace of mind, a convenient laundry area paired with a sleek half bathroom, and a stylish wet bar ready to host your next gathering.
- The open-concept design brings living, dining, and kitchen spaces together in a seamless flow—made for effortless entertaining and everyday ease.
- Everything you need on one sleek level—designed for smooth living and simplified routines, no stairs required.
- A charming wraparound porch invites breezy mornings, lazy afternoons, and golden-hour sunsets—your new favorite outdoor living room.
- Peace of mind comes built in with a fortified safe room—ready for whatever weather or worries the world may throw your way.
- Cheers to good times with a built-in bar that turns casual evenings into memorable moments—your social life just found its hotspot.
Â
What's included in PL-2817:
Cover Page
Main Floor Plan
Basement Floor Plan
Roof Plan
Elevations
Main Floor Electrical Plan
Basement Electrical Plan
Main Floor Plumbing Plan
Basement Plumbing Plan
Main Floor HVAC Plan
Basement HVAC Plan
Roof Framing Plan
Foundation Plan
Lally Column Detail
Deck Ledger Detail
Wall Section
Â
For more barndominium floor plans, check out our complete collection of 4 bedroom barndominium floor plans.
Â
Need to make changes? Submit a modification request using the button that says Modify This Plan. We will get you a free price quote within 72 hours.
Â
What's Typically Included
What's Typically Included
THE SPECIFC DETAILS OF WHAT'S INCLUDED ON THESE PLANS IS CONTAINED IN THE PRODUCT DESCRIPTION. PLEASE SCROLL UP AND YOU WILL FIND IT UNDER "WHAT'S INCLUDED"
Our house plan sets typically have the following details:
4 Elevations – Front, Back, Both Sides
Detailed Floor Plan Drawing
Electrical Plans with placements for HVAC
Plumbing Plans with Placements
Flooring Plan
Roof Plan
Foundation Plan
For more information on what's included and examples of what your plans will look like, go here -> https://barndominiumplans.com/pages/whats-included
Please Note: We work with many different draftspeople who work in many different ways. It should be noted that their plans may contain different details. THE SPECIFC DETAILS OF WHAT'S INCLUDED ON THESE PLANS IS CONTAINED IN THE PRODUCT DESCRIPTION. PLEASE SCROLL UP AND YOU WILL FIND IT UNDER "WHAT'S INCLUDED"
What's Not Included
What's Not Included
The following items are NOT included:
Architectural or Engineering Stamp. Our plans are engineering-ready! Can take them to a local engineer in your state.
Site Plan - We can provide this if needed for $300 additional.
Materials List - handled locally when required
Energy calculations - handled locally when required
Snow load calculations - handled locally when required
Delivery
Delivery
This plan is available as a digital product or printed + shipped.
If you select digital, the plan will be delivered to you via email as a PDF file, no matter what time it is.
If you select printed + shipped, your order will ship in 24x36 format within 1 business day of your order.
We ship from the midwest in order to serve the entire country within 3-5 business days!
Return policy
Return policy
All barndominium house plan purchases are FINAL. There are no exchanges or refunds due to the digital nature of the product. Please make sure that the plan you have selected is going to fit your needs.

Real Reviews, Real Experiences
How to Build Your Own Barndominium & 120+ House Plans
Just getting started on your build? Get the Barndominiums Made Easy Program.
- Choosing a selection results in a full page refresh.



