Couldn't load pickup availability
Barndominium Plans
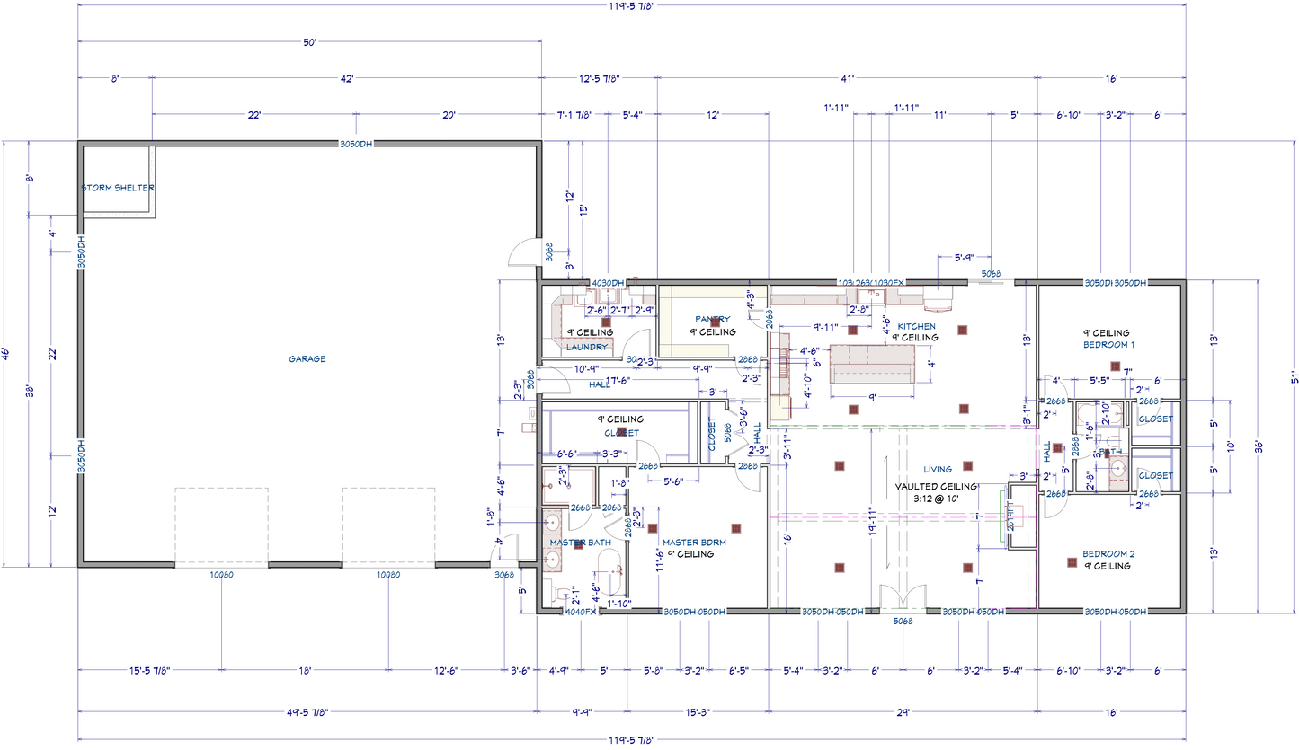
LP-3207 Grace Barndominium House Plan
DETAILS
HEATED SQ FT
First Floor:
2,520 SF
Total Heated Sq Ft:
2,520 SF
UNHEATED SQ FT
2,300 SF (garage) + 1,120 SF (porches/patio)
Carport:None
3
2
1
2,300 SF
70'
36'
9'
Concrete Slab
6:12
Metal Shell
CEILING HEIGHTS
9'
LP-3207 Grace Barndominium House Plan
About this barndominium house plan:
- 2520 Heated square feet
- 36x70 living space dimension
- 3 bedrooms
- 2 bathrooms
- Single Story
- Open Concept
- Laundry room
- Front and back porches
- 2-car garage
- Modern living with this single-story, open floor plan home. Spanning a generous 2520 heated square feet, this design is the perfect blend of style and functionality with a spacious layout.
- write a short blurb for a floor plan with 3 bedrooms and 2 bathrooms. The master bedroom on one side of the house has a master bathroom and closet connecting to a hallway with convenient access to the pantry and the laundry room. 2 bedrooms with a shared bathroom.
- This floor plan features a spacious 2-car garage, providing ample space for your vehicles or doubling as extra storage. The inclusion of both front and back porches offers a unique blend of indoor and outdoor living.
What's included in LP-3207:
Cover Page
Foundation Layout
Overall Dimensions
Dimensional Layout
Electrical Layout
Elevation
Details
For more barndominium floor plans, check out our complete collection of 3 bedroom barndominium floor plans.
Need to make changes? Submit a modification request using the button that says Modify This Plan (below the Add To Cart Button). We will get you a free price quote within 72 hours
Please note all square footage are estimates.
What's Typically Included
What's Typically Included
THE SPECIFC DETAILS OF WHAT'S INCLUDED ON THESE PLANS IS CONTAINED IN THE PRODUCT DESCRIPTION. PLEASE SCROLL UP AND YOU WILL FIND IT UNDER "WHAT'S INCLUDED"
Our house plan sets typically have the following details:
4 Elevations – Front, Back, Both Sides
Detailed Floor Plan Drawing
Electrical Plans with placements for HVAC
Plumbing Plans with Placements
Flooring Plan
Roof Plan
Foundation Plan
For more information on what's included and examples of what your plans will look like, go here -> https://barndominiumplans.com/pages/whats-included
Please Note: We work with many different draftspeople who work in many different ways. It should be noted that their plans may contain different details. THE SPECIFC DETAILS OF WHAT'S INCLUDED ON THESE PLANS IS CONTAINED IN THE PRODUCT DESCRIPTION. PLEASE SCROLL UP AND YOU WILL FIND IT UNDER "WHAT'S INCLUDED"
What's Not Included
What's Not Included
The following items are NOT included:
Architectural or Engineering Stamp. Our plans are engineering-ready! Can take them to a local engineer in your state.
Site Plan - We can provide this if needed for $300 additional.
Materials List - handled locally when required
Energy calculations - handled locally when required
Snow load calculations - handled locally when required
Delivery
Delivery
This plan is available as a digital product or printed + shipped.
If you select digital, the plan will be delivered to you via email as a PDF file, no matter what time it is.
If you select printed + shipped, your order will ship in 24x36 format within 1 business day of your order.
We ship from the midwest in order to serve the entire country within 3-5 business days!
Return policy
Return policy
All barndominium house plan purchases are FINAL. There are no exchanges or refunds due to the digital nature of the product. Please make sure that the plan you have selected is going to fit your needs.
PDF (Single Build) $849.99
DETAILS
HEATED SQ FT
First Floor:
2,520 SF
Total Heated Sq Ft:
2,520 SF
UNHEATED SQ FT
2,300 SF (garage) + 1,120 SF (porches/patio)
Carport:None
3
2
1
2,300 SF
70'
36'
9'
Concrete Slab
6:12
Metal Shell
CEILING HEIGHTS
9'
LP-3207 Grace Barndominium House Plan
About this barndominium house plan:
- 2520 Heated square feet
- 36x70 living space dimension
- 3 bedrooms
- 2 bathrooms
- Single Story
- Open Concept
- Laundry room
- Front and back porches
- 2-car garage
- Modern living with this single-story, open floor plan home. Spanning a generous 2520 heated square feet, this design is the perfect blend of style and functionality with a spacious layout.
- write a short blurb for a floor plan with 3 bedrooms and 2 bathrooms. The master bedroom on one side of the house has a master bathroom and closet connecting to a hallway with convenient access to the pantry and the laundry room. 2 bedrooms with a shared bathroom.
- This floor plan features a spacious 2-car garage, providing ample space for your vehicles or doubling as extra storage. The inclusion of both front and back porches offers a unique blend of indoor and outdoor living.
What's included in LP-3207:
Cover Page
Foundation Layout
Overall Dimensions
Dimensional Layout
Electrical Layout
Elevation
Details
For more barndominium floor plans, check out our complete collection of 3 bedroom barndominium floor plans.
Need to make changes? Submit a modification request using the button that says Modify This Plan (below the Add To Cart Button). We will get you a free price quote within 72 hours
Please note all square footage are estimates.
What's Typically Included
What's Typically Included
THE SPECIFC DETAILS OF WHAT'S INCLUDED ON THESE PLANS IS CONTAINED IN THE PRODUCT DESCRIPTION. PLEASE SCROLL UP AND YOU WILL FIND IT UNDER "WHAT'S INCLUDED"
Our house plan sets typically have the following details:
4 Elevations – Front, Back, Both Sides
Detailed Floor Plan Drawing
Electrical Plans with placements for HVAC
Plumbing Plans with Placements
Flooring Plan
Roof Plan
Foundation Plan
For more information on what's included and examples of what your plans will look like, go here -> https://barndominiumplans.com/pages/whats-included
Please Note: We work with many different draftspeople who work in many different ways. It should be noted that their plans may contain different details. THE SPECIFC DETAILS OF WHAT'S INCLUDED ON THESE PLANS IS CONTAINED IN THE PRODUCT DESCRIPTION. PLEASE SCROLL UP AND YOU WILL FIND IT UNDER "WHAT'S INCLUDED"
What's Not Included
What's Not Included
The following items are NOT included:
Architectural or Engineering Stamp. Our plans are engineering-ready! Can take them to a local engineer in your state.
Site Plan - We can provide this if needed for $300 additional.
Materials List - handled locally when required
Energy calculations - handled locally when required
Snow load calculations - handled locally when required
Delivery
Delivery
This plan is available as a digital product or printed + shipped.
If you select digital, the plan will be delivered to you via email as a PDF file, no matter what time it is.
If you select printed + shipped, your order will ship in 24x36 format within 1 business day of your order.
We ship from the midwest in order to serve the entire country within 3-5 business days!
Return policy
Return policy
All barndominium house plan purchases are FINAL. There are no exchanges or refunds due to the digital nature of the product. Please make sure that the plan you have selected is going to fit your needs.




Real Reviews, Real Experiences
How to Build Your Own Barndominium & 120+ House Plans

Just getting started on your build? Get the Barndominiums Made Easy Program.
- Choosing a selection results in a full page refresh.