Couldn't load pickup availability
Barndominium Plans
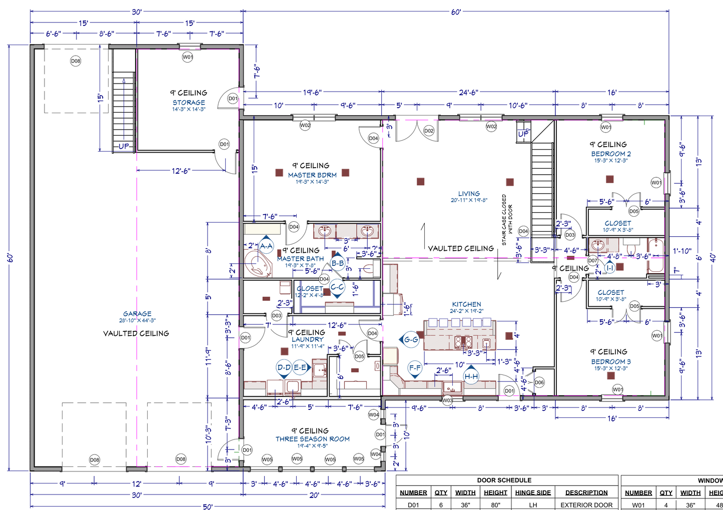
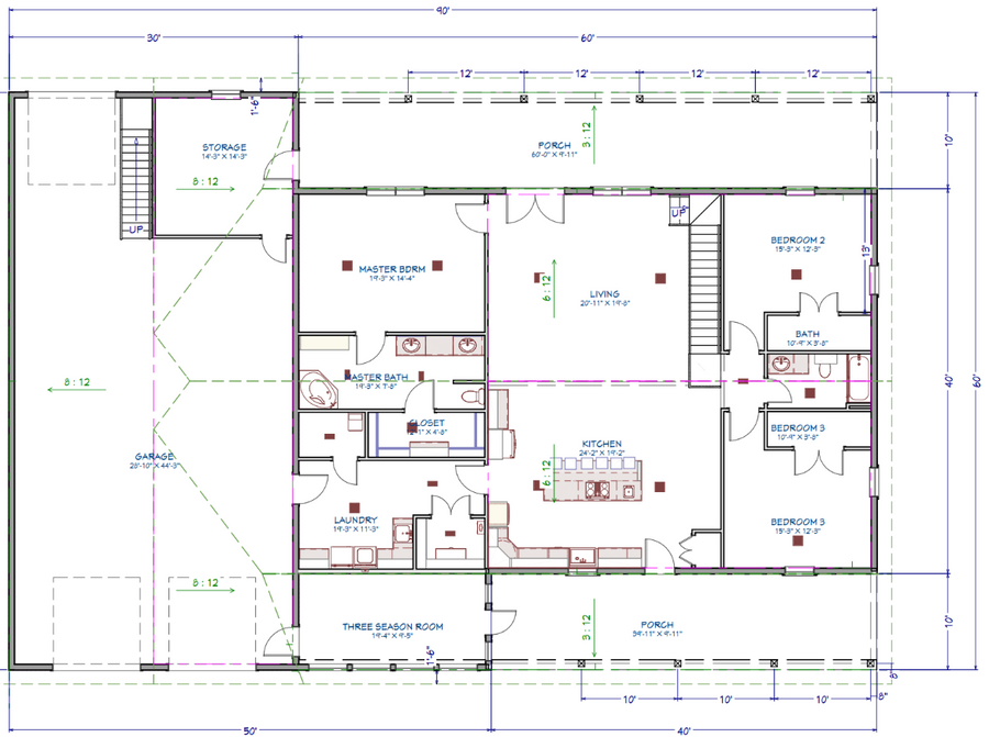
LP-3206 Condley Barndominium House Plan
DETAILS
HEATED SQ FT
First Floor:
2,600 SF
Total Heated Sq Ft:
2,600 SF
UNHEATED SQ FT
1,800 SF (garage) + 1,000 SF porch = Total 2,800 SF
Carport:Not included
3
2
2
1,800
90'
60'
9'
Concrete Slab
8:12
Stick Frame
CEILING HEIGHTS
9'
LP-3206 Condley Barndominium House Plan
About this barndominium house plan:
- 2600 Heated Square Feet
- 40x60 living space dimension
- 1800 Square Feet attached garage
- 3 Bedrooms
- 2 Bathrooms
- 2 Story
- Open Concept
- Three Season Room
- With ample room to accommodate various lifestyles, the 2600 heated square feet provide the canvas for your dream home.
- This 2600-square-foot haven seamlessly integrates modern living with practicality, offering ample room for both comfort and storage.
- Each bedroom is a private retreat, offering a sanctuary for relaxation. The two well-appointed bathrooms provide convenience and style, seamlessly integrating into the daily rhythm of your household.
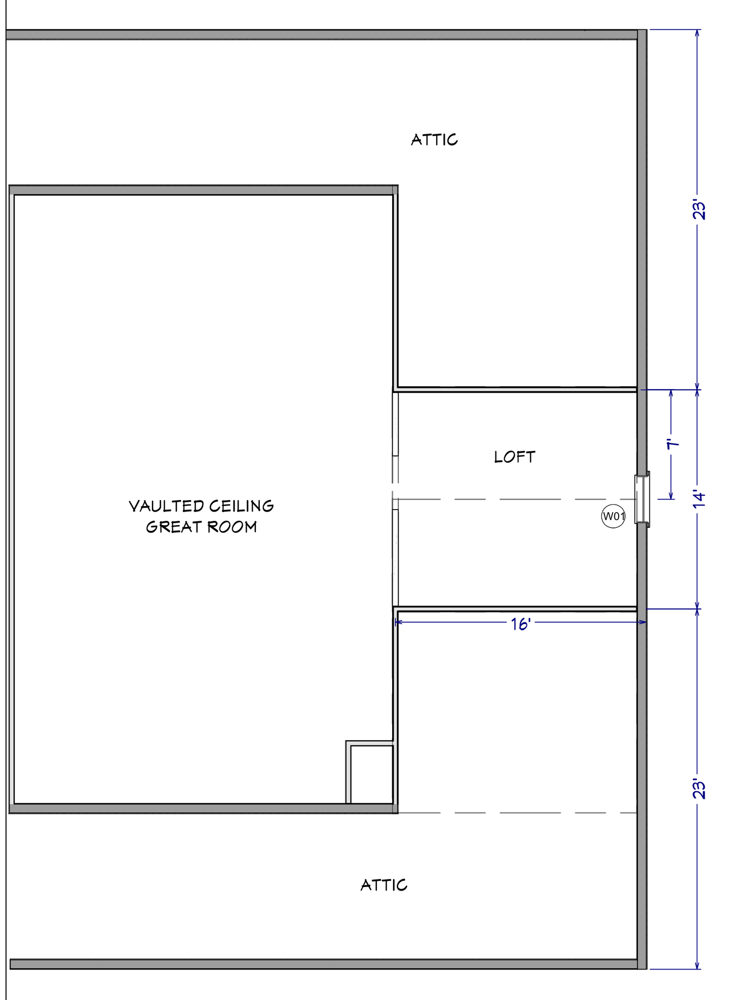
- Elevate your storage solutions with the inclusion of a versatile storage loft. This ingenious addition provides a practical and space-efficient way to organize and store your belongings.
- Escape into a haven of nature with a Three Season Room, where the boundary between indoors and outdoors becomes delightfully blurred. This versatile space invites you to bask in the beauty of spring, summer, and fall while remaining comfortably sheltered.
What's included in LP-3206:
Cover Page
Foundation Layout
Framing Layout
Overall Dimensions
1st Floor Dimensional Layout
2nd Floor Dimensional Layout
1st Floor Electrical Layout
2nd Floor Electrical Layout
Elevations
Detail Views
For more barndominium floor plans, check out our complete collection of 3 bedroom barndominium floor plans.
Need to make changes? Submit a modification request using the button that says Modify This Plan (below the Add To Cart Button). We will get you a free price quote within 72 hours
Please note all square footages are estimates.
What's Included
What's Included
Our house plan sets typically have the following details:
4 Elevations – Front, Back, Both Sides
Detailed Floor Plan Drawing
Electrical Plans with placements for HVAC
Plumbing Plans with Placements
Flooring Plan
Roof Plan
Foundation Plan
For more information on what's included and examples of what your plans will look like, go here -> https://barndominiumplans.com/pages/whats-included
Please Note: We work with many different draftspeople who work in many different ways. It should be noted that their plans may contain different details.Â
What's Not Included
What's Not Included
The following items are NOT included:
Architectural or Engineering Stamp. Our plans are engineering-ready! Can take them to a local engineer in your state.
Site Plan - We can provide this if needed for $300 additional.
Materials List - handled locally when required
Energy calculations - handled locally when required
Snow load calculations - handled locally when required
Delivery
Delivery
This plan is available as a digital product or printed + shipped.
If you select digital, the plan will be delivered to you via email as a PDF file, no matter what time it is.
If you select printed + shipped, your order will ship in 24x36 format within 1 business day of your order.
We ship from the midwest in order to serve the entire country within 3-5 business days!
Return policy
Return policy
All barndominium house plan purchases are FINAL. There are no exchanges or refunds due to the digital nature of the product. Please make sure that the plan you have selected is going to fit your needs.
PDF (Single Build) $849.99
DETAILS
HEATED SQ FT
First Floor:
2,600 SF
Total Heated Sq Ft:
2,600 SF
UNHEATED SQ FT
1,800 SF (garage) + 1,000 SF porch = Total 2,800 SF
Carport:Not included
3
2
2
1,800
90'
60'
9'
Concrete Slab
8:12
Stick Frame
CEILING HEIGHTS
9'
LP-3206 Condley Barndominium House Plan
About this barndominium house plan:
- 2600 Heated Square Feet
- 40x60 living space dimension
- 1800 Square Feet attached garage
- 3 Bedrooms
- 2 Bathrooms
- 2 Story
- Open Concept
- Three Season Room
- With ample room to accommodate various lifestyles, the 2600 heated square feet provide the canvas for your dream home.
- This 2600-square-foot haven seamlessly integrates modern living with practicality, offering ample room for both comfort and storage.
- Each bedroom is a private retreat, offering a sanctuary for relaxation. The two well-appointed bathrooms provide convenience and style, seamlessly integrating into the daily rhythm of your household.
- Elevate your storage solutions with the inclusion of a versatile storage loft. This ingenious addition provides a practical and space-efficient way to organize and store your belongings.
- Escape into a haven of nature with a Three Season Room, where the boundary between indoors and outdoors becomes delightfully blurred. This versatile space invites you to bask in the beauty of spring, summer, and fall while remaining comfortably sheltered.
What's included in LP-3206:
Cover Page
Foundation Layout
Framing Layout
Overall Dimensions
1st Floor Dimensional Layout
2nd Floor Dimensional Layout
1st Floor Electrical Layout
2nd Floor Electrical Layout
Elevations
Detail Views
For more barndominium floor plans, check out our complete collection of 3 bedroom barndominium floor plans.
Need to make changes? Submit a modification request using the button that says Modify This Plan (below the Add To Cart Button). We will get you a free price quote within 72 hours
Please note all square footages are estimates.
What's Included
What's Included
Our house plan sets typically have the following details:
4 Elevations – Front, Back, Both Sides
Detailed Floor Plan Drawing
Electrical Plans with placements for HVAC
Plumbing Plans with Placements
Flooring Plan
Roof Plan
Foundation Plan
For more information on what's included and examples of what your plans will look like, go here -> https://barndominiumplans.com/pages/whats-included
Please Note: We work with many different draftspeople who work in many different ways. It should be noted that their plans may contain different details.Â
What's Not Included
What's Not Included
The following items are NOT included:
Architectural or Engineering Stamp. Our plans are engineering-ready! Can take them to a local engineer in your state.
Site Plan - We can provide this if needed for $300 additional.
Materials List - handled locally when required
Energy calculations - handled locally when required
Snow load calculations - handled locally when required
Delivery
Delivery
This plan is available as a digital product or printed + shipped.
If you select digital, the plan will be delivered to you via email as a PDF file, no matter what time it is.
If you select printed + shipped, your order will ship in 24x36 format within 1 business day of your order.
We ship from the midwest in order to serve the entire country within 3-5 business days!
Return policy
Return policy
All barndominium house plan purchases are FINAL. There are no exchanges or refunds due to the digital nature of the product. Please make sure that the plan you have selected is going to fit your needs.




Real Reviews, Real Experiences
How to Build Your Own Barndominium & 120+ House Plans

Just getting started on your build? Get the Barndominiums Made Easy Program.
- Choosing a selection results in a full page refresh.