Couldn't load pickup availability
Barndominium Plans
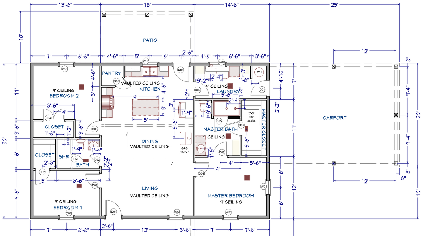
LP-3205 Starnes Barndominium House Plan
DETAILS
HEATED SQ FT
First Floor:
1,380 SF
Total Heated Sq Ft:
1,380 SF
UNHEATED SQ FT
860 SF
Carport:500 SF
3
2
1
Not included
46'
30'
10'
Concrete Slab
5:12
Stick Frame
CEILING HEIGHTS
9'
LP-3205 Starnes Barndominium House Plan
- 1380 Heated Square Feet
- 30x46 living space dimension
- Carport
- 3 Bedrooms
- 2 Bathrooms
- 1 Story
- Open Concept
- Ideal for those seeking a harmonious blend of intimacy and functionality, the 1380 heated square feet layout is a harmonious blend of intimacy and functionality.
- A stylish and practical alternative to a garage, the carport provides shelter for your vehicle while seamlessly integrating into your outdoor space.
- Whether creating a cosy haven for the family or transforming a spare room into a versatile space, the three-bedroom layout offers endless possibilities.
- Indulge in the epitome of comfort and convenience with two bathrooms, whether you prefer a leisurely soak in the tub or a quick, refreshing shower, these bathrooms cater to your every need.
- From the heart of the home to the private sanctuaries, relish the simplicity and comfort that a one-story, open-concept dwelling brings to your everyday living.
What's included in LP-3205:
Cover Page
Foundation Layout
Roof Layout
Dimensional Layout
Electrical Layout
Vaulted Ceiling Electrical Layout
Elevations
Detail Views
For more barndominium floor plans, check out our complete collection of 3 bedroom barndominium floor plans.
Need to make changes? Submit a modification request using the button that says Modify This Plan (below the Add To Cart Button). We will get you a free price quote within 72 hours
Please note all square footages are estimates.
What's Typically Included
What's Typically Included
THE SPECIFC DETAILS OF WHAT'S INCLUDED ON THESE PLANS IS CONTAINED IN THE PRODUCT DESCRIPTION. PLEASE SCROLL UP AND YOU WILL FIND IT UNDER "WHAT'S INCLUDED"
Our house plan sets typically have the following details:
4 Elevations – Front, Back, Both Sides
Detailed Floor Plan Drawing
Electrical Plans with placements for HVAC
Plumbing Plans with Placements
Flooring Plan
Roof Plan
Foundation Plan
For more information on what's included and examples of what your plans will look like, go here -> https://barndominiumplans.com/pages/whats-included
Please Note: We work with many different draftspeople who work in many different ways. It should be noted that their plans may contain different details. THE SPECIFC DETAILS OF WHAT'S INCLUDED ON THESE PLANS IS CONTAINED IN THE PRODUCT DESCRIPTION. PLEASE SCROLL UP AND YOU WILL FIND IT UNDER "WHAT'S INCLUDED"
What's Not Included
What's Not Included
The following items are NOT included:
Architectural or Engineering Stamp. Our plans are engineering-ready! Can take them to a local engineer in your state.
Site Plan - We can provide this if needed for $300 additional.
Materials List - handled locally when required
Energy calculations - handled locally when required
Snow load calculations - handled locally when required
Delivery
Delivery
This plan is available as a digital product or printed + shipped.
If you select digital, the plan will be delivered to you via email as a PDF file, no matter what time it is.
If you select printed + shipped, your order will ship in 24x36 format within 1 business day of your order.
We ship from the midwest in order to serve the entire country within 3-5 business days!
Return policy
Return policy
All barndominium house plan purchases are FINAL. There are no exchanges or refunds due to the digital nature of the product. Please make sure that the plan you have selected is going to fit your needs.
PDF (Single Build) $849.99
DETAILS
HEATED SQ FT
First Floor:
1,380 SF
Total Heated Sq Ft:
1,380 SF
UNHEATED SQ FT
860 SF
Carport:500 SF
3
2
1
Not included
46'
30'
10'
Concrete Slab
5:12
Stick Frame
CEILING HEIGHTS
9'
LP-3205 Starnes Barndominium House Plan
- 1380 Heated Square Feet
- 30x46 living space dimension
- Carport
- 3 Bedrooms
- 2 Bathrooms
- 1 Story
- Open Concept
- Ideal for those seeking a harmonious blend of intimacy and functionality, the 1380 heated square feet layout is a harmonious blend of intimacy and functionality.
- A stylish and practical alternative to a garage, the carport provides shelter for your vehicle while seamlessly integrating into your outdoor space.
- Whether creating a cosy haven for the family or transforming a spare room into a versatile space, the three-bedroom layout offers endless possibilities.
- Indulge in the epitome of comfort and convenience with two bathrooms, whether you prefer a leisurely soak in the tub or a quick, refreshing shower, these bathrooms cater to your every need.
- From the heart of the home to the private sanctuaries, relish the simplicity and comfort that a one-story, open-concept dwelling brings to your everyday living.
What's included in LP-3205:
Cover Page
Foundation Layout
Roof Layout
Dimensional Layout
Electrical Layout
Vaulted Ceiling Electrical Layout
Elevations
Detail Views
For more barndominium floor plans, check out our complete collection of 3 bedroom barndominium floor plans.
Need to make changes? Submit a modification request using the button that says Modify This Plan (below the Add To Cart Button). We will get you a free price quote within 72 hours
Please note all square footages are estimates.
What's Typically Included
What's Typically Included
THE SPECIFC DETAILS OF WHAT'S INCLUDED ON THESE PLANS IS CONTAINED IN THE PRODUCT DESCRIPTION. PLEASE SCROLL UP AND YOU WILL FIND IT UNDER "WHAT'S INCLUDED"
Our house plan sets typically have the following details:
4 Elevations – Front, Back, Both Sides
Detailed Floor Plan Drawing
Electrical Plans with placements for HVAC
Plumbing Plans with Placements
Flooring Plan
Roof Plan
Foundation Plan
For more information on what's included and examples of what your plans will look like, go here -> https://barndominiumplans.com/pages/whats-included
Please Note: We work with many different draftspeople who work in many different ways. It should be noted that their plans may contain different details. THE SPECIFC DETAILS OF WHAT'S INCLUDED ON THESE PLANS IS CONTAINED IN THE PRODUCT DESCRIPTION. PLEASE SCROLL UP AND YOU WILL FIND IT UNDER "WHAT'S INCLUDED"
What's Not Included
What's Not Included
The following items are NOT included:
Architectural or Engineering Stamp. Our plans are engineering-ready! Can take them to a local engineer in your state.
Site Plan - We can provide this if needed for $300 additional.
Materials List - handled locally when required
Energy calculations - handled locally when required
Snow load calculations - handled locally when required
Delivery
Delivery
This plan is available as a digital product or printed + shipped.
If you select digital, the plan will be delivered to you via email as a PDF file, no matter what time it is.
If you select printed + shipped, your order will ship in 24x36 format within 1 business day of your order.
We ship from the midwest in order to serve the entire country within 3-5 business days!
Return policy
Return policy
All barndominium house plan purchases are FINAL. There are no exchanges or refunds due to the digital nature of the product. Please make sure that the plan you have selected is going to fit your needs.





Real Reviews, Real Experiences
How to Build Your Own Barndominium & 120+ House Plans

Just getting started on your build? Get the Barndominiums Made Easy Program.
- Choosing a selection results in a full page refresh.