Couldn't load pickup availability
Barndominium Plans
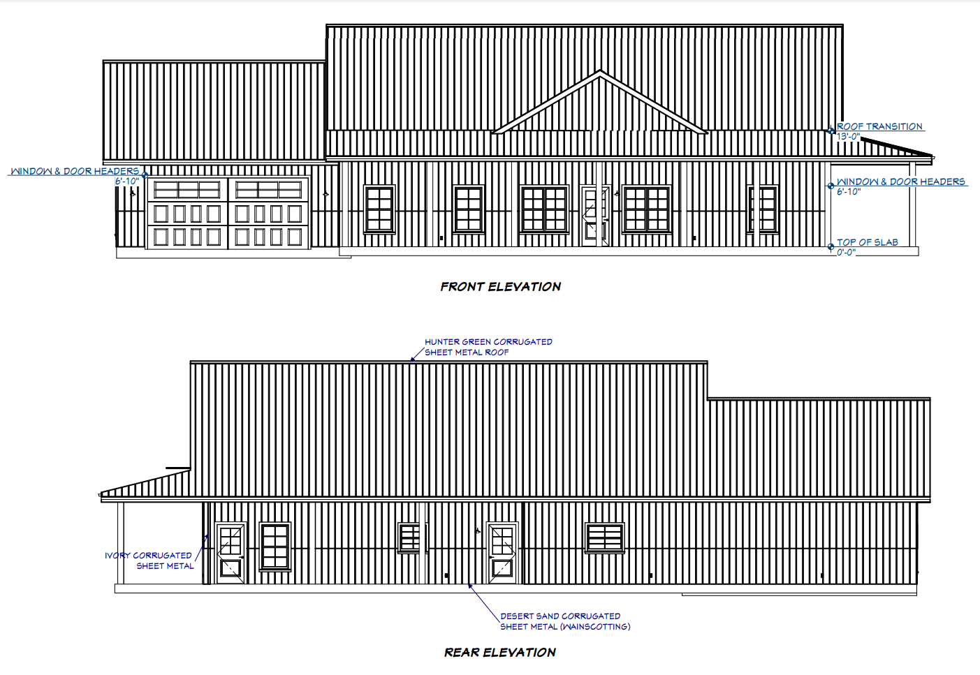
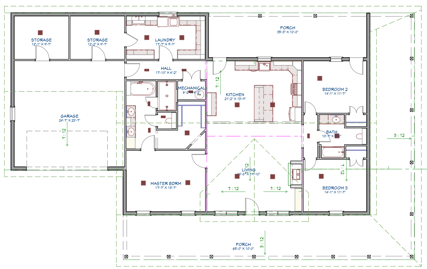
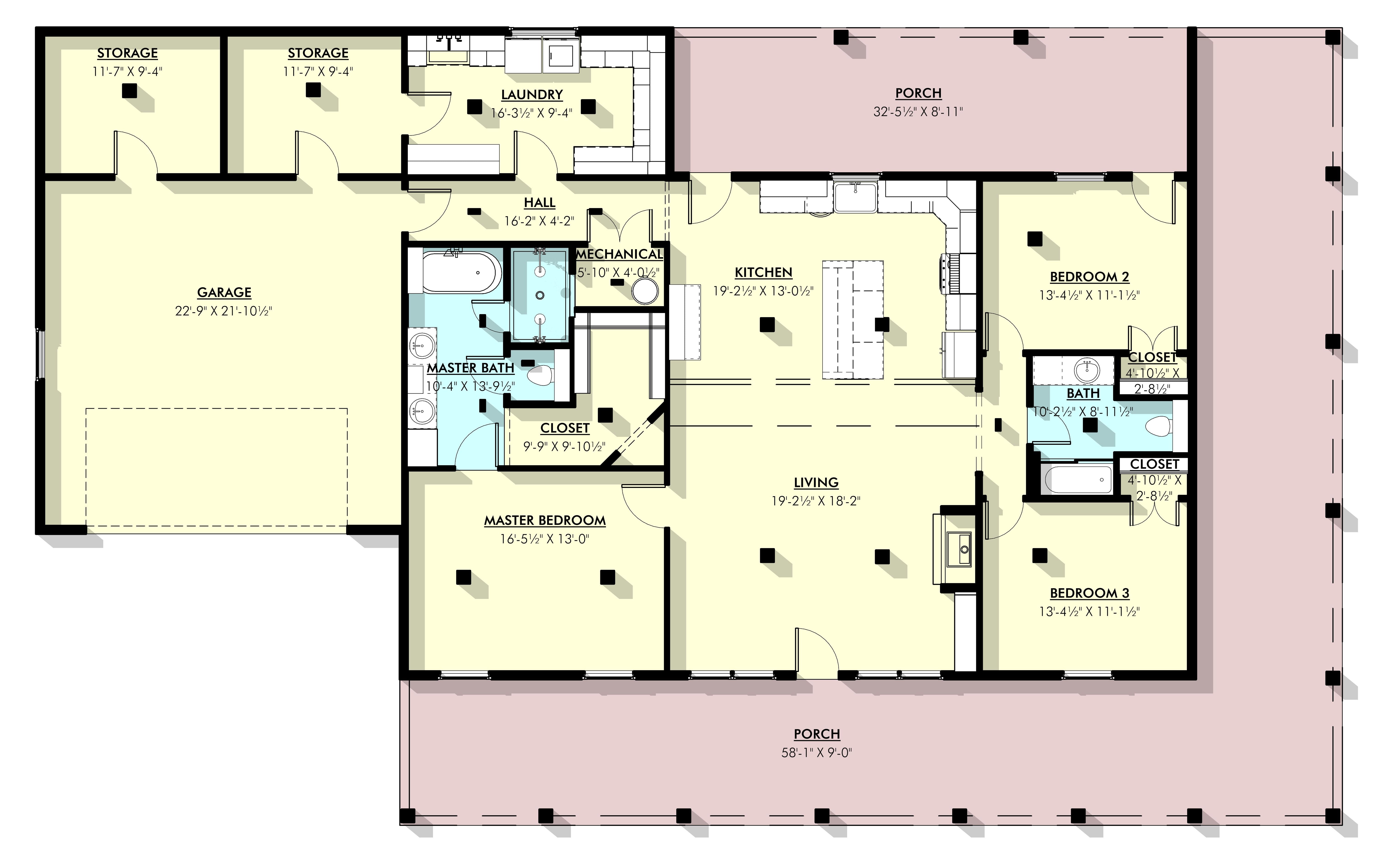
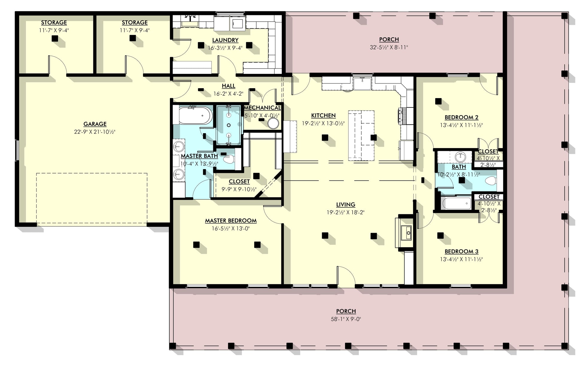
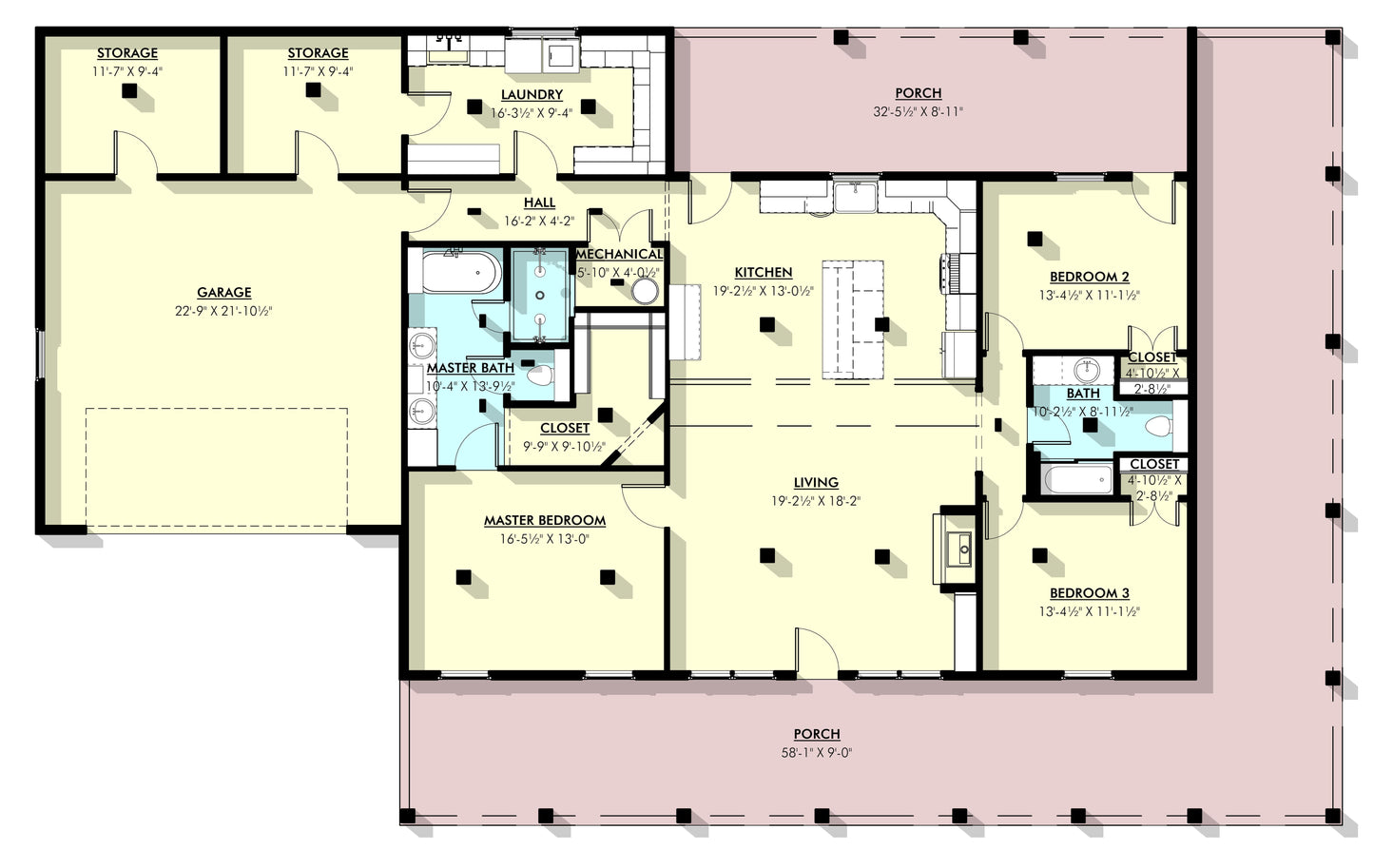
LP-3204 Gunther Barndominium House Plan
DETAILS
HEATED SQ FT
First Floor:
2,110 SF
Total Heated Sq Ft:
2,110 SF
UNHEATED SQ FT
875 SF
Carport:None included
3
2
1
875 SF
90'
55'
10'
Concrete Slab
7:12
Stick Frame
CEILING HEIGHTS
9'
LP-3204 Gunther Barndominium House Plan
About this barndominium house plan:
- 2110 Heated Square Feet
- 45x55 living space dimension
- 875 Square Feet attached garage
- 3 Bedrooms
- 2 Bathrooms
- 1 Story
- Open Concept
- Wraparound Porch
- This property boasts a generous 2110 heated square feet of living space, providing ample room for comfortable living and entertaining.
- The property features an expansive 875 square feet attached garage, offering convenient and secure parking, as well as additional storage space.
- This lovely home comprises three spacious bedrooms and two bathrooms, offering comfort and convenience for residents and guests alike.
- This charming property features a single-story layout, seamlessly integrating an open-concept design that enhances the flow and spaciousness of the living areas. Additionally, the home is adorned with a welcoming and picturesque wraparound porch, perfect for enjoying the outdoors and entertaining.
What's included in LP-3204:
Cover Page
Foundation Layout
Overall Dimensions
Dimensional Layout
Electrical Layout
Elevations
Detail Views
For more barndominium floor plans, check out our complete collection of 3 bedroom barndominium floor plans.
Need to make changes? Submit a modification request using the button that says Modify This Plan (below the Add To Cart Button). We will get you a free price quote within 72 hours
Please note all square footages are estimates.
What's Included
What's Included
Our house plan sets typically have the following details:
4 Elevations – Front, Back, Both Sides
Detailed Floor Plan Drawing
Electrical Plans with placements for HVAC
Plumbing Plans with Placements
Flooring Plan
Roof Plan
Foundation Plan
For more information on what's included and examples of what your plans will look like, go here -> https://barndominiumplans.com/pages/whats-included
Please Note: We work with many different draftspeople who work in many different ways. It should be noted that their plans may contain different details.Â
What's Not Included
What's Not Included
The following items are NOT included:
Architectural or Engineering Stamp. Our plans are engineering-ready! Can take them to a local engineer in your state.
Site Plan - We can provide this if needed for $300 additional.
Materials List - handled locally when required
Energy calculations - handled locally when required
Snow load calculations - handled locally when required
Delivery
Delivery
This plan is available as a digital product or printed + shipped.
If you select digital, the plan will be delivered to you via email as a PDF file, no matter what time it is.
If you select printed + shipped, your order will ship in 24x36 format within 1 business day of your order.
We ship from the midwest in order to serve the entire country within 3-5 business days!
Return policy
Return policy
All barndominium house plan purchases are FINAL. There are no exchanges or refunds due to the digital nature of the product. Please make sure that the plan you have selected is going to fit your needs.
PDF (Single Build) $849.99
DETAILS
HEATED SQ FT
First Floor:
2,110 SF
Total Heated Sq Ft:
2,110 SF
UNHEATED SQ FT
875 SF
Carport:None included
3
2
1
875 SF
90'
55'
10'
Concrete Slab
7:12
Stick Frame
CEILING HEIGHTS
9'
LP-3204 Gunther Barndominium House Plan
About this barndominium house plan:
- 2110 Heated Square Feet
- 45x55 living space dimension
- 875 Square Feet attached garage
- 3 Bedrooms
- 2 Bathrooms
- 1 Story
- Open Concept
- Wraparound Porch
- This property boasts a generous 2110 heated square feet of living space, providing ample room for comfortable living and entertaining.
- The property features an expansive 875 square feet attached garage, offering convenient and secure parking, as well as additional storage space.
- This lovely home comprises three spacious bedrooms and two bathrooms, offering comfort and convenience for residents and guests alike.
- This charming property features a single-story layout, seamlessly integrating an open-concept design that enhances the flow and spaciousness of the living areas. Additionally, the home is adorned with a welcoming and picturesque wraparound porch, perfect for enjoying the outdoors and entertaining.
What's included in LP-3204:
Cover Page
Foundation Layout
Overall Dimensions
Dimensional Layout
Electrical Layout
Elevations
Detail Views
For more barndominium floor plans, check out our complete collection of 3 bedroom barndominium floor plans.
Need to make changes? Submit a modification request using the button that says Modify This Plan (below the Add To Cart Button). We will get you a free price quote within 72 hours
Please note all square footages are estimates.
What's Included
What's Included
Our house plan sets typically have the following details:
4 Elevations – Front, Back, Both Sides
Detailed Floor Plan Drawing
Electrical Plans with placements for HVAC
Plumbing Plans with Placements
Flooring Plan
Roof Plan
Foundation Plan
For more information on what's included and examples of what your plans will look like, go here -> https://barndominiumplans.com/pages/whats-included
Please Note: We work with many different draftspeople who work in many different ways. It should be noted that their plans may contain different details.Â
What's Not Included
What's Not Included
The following items are NOT included:
Architectural or Engineering Stamp. Our plans are engineering-ready! Can take them to a local engineer in your state.
Site Plan - We can provide this if needed for $300 additional.
Materials List - handled locally when required
Energy calculations - handled locally when required
Snow load calculations - handled locally when required
Delivery
Delivery
This plan is available as a digital product or printed + shipped.
If you select digital, the plan will be delivered to you via email as a PDF file, no matter what time it is.
If you select printed + shipped, your order will ship in 24x36 format within 1 business day of your order.
We ship from the midwest in order to serve the entire country within 3-5 business days!
Return policy
Return policy
All barndominium house plan purchases are FINAL. There are no exchanges or refunds due to the digital nature of the product. Please make sure that the plan you have selected is going to fit your needs.



Real Reviews, Real Experiences
How to Build Your Own Barndominium & 120+ House Plans

Just getting started on your build? Get the Barndominiums Made Easy Program.
- Choosing a selection results in a full page refresh.