Couldn't load pickup availability
Barndominium Plans
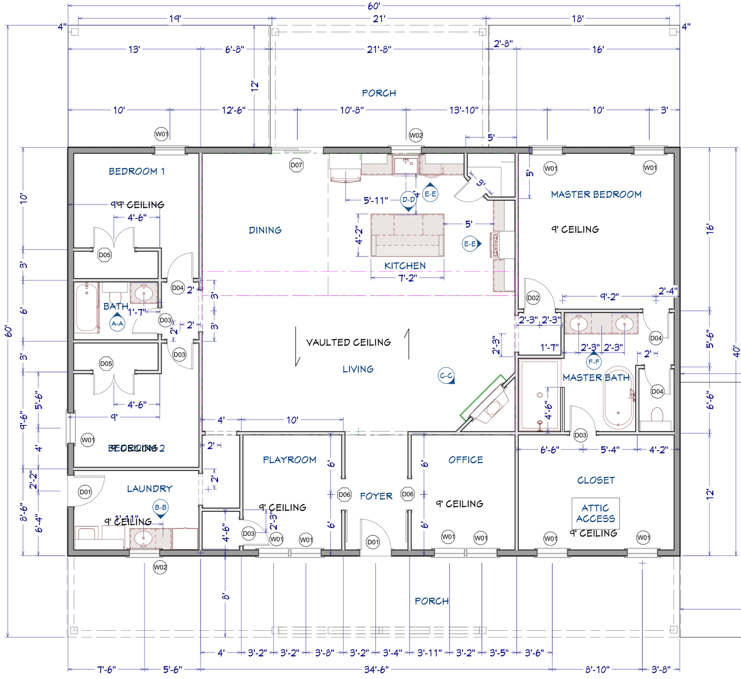
LP-3203 Aurora Barndominium House Plan
DETAILS
HEATED SQ FT
First Floor:
2,400 SF
Total Heated Sq Ft:
2,400 SF
UNHEATED SQ FT
Porch: 1,482 SF
Carport:None included
3
2
2 (Main floor + Second floor/loft area)
Non included
40'
60'
13'
Concrete Slab
06:12
Metal Shell
CEILING HEIGHTS
9'
LP-3203 Aurora Barndominium House Plan
- 2400 Heated square feet
- 40x60 living space dimension
- 3 bedrooms
- 2 bathrooms
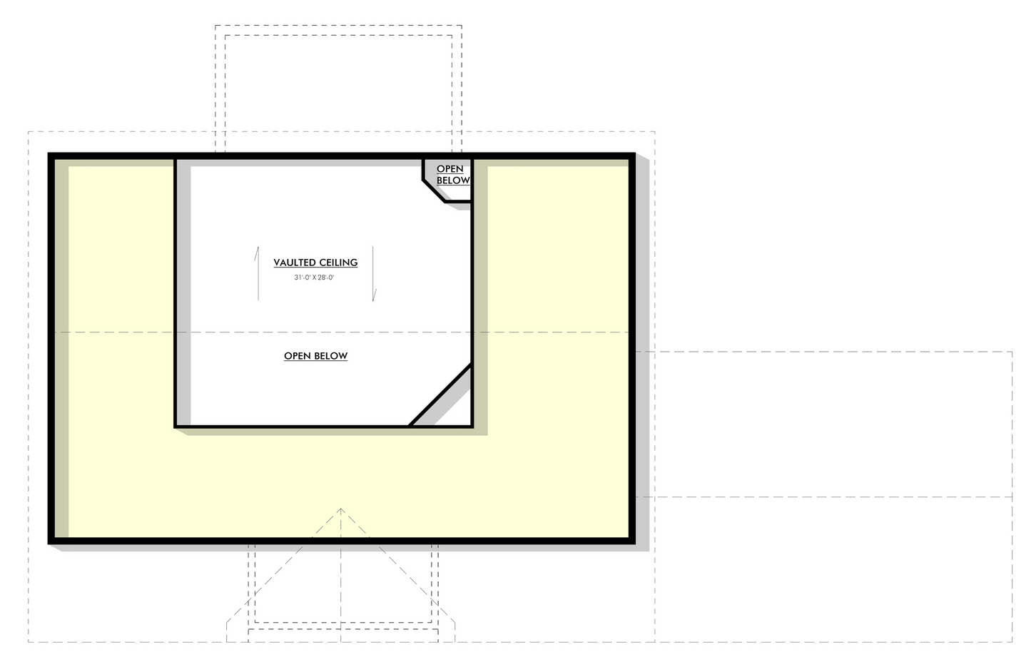
- 2 Story
- Loft
- Foyer
- Office
- Playroom
- Fireplace
- Open Concept
- The Aurora barndominium house plan is 2400 heated square feet and features 3 bedrooms and 2 bathrooms.
- This open concept creates a nice open space perfect for gathering and entertaining.
- As you enter the Aurora house plan you enter into a nice-sized foyer with an office on one side and a desirable playroom on the other, making this the perfect home for young children. The living room has vaulted ceilings and a corner fireplace to make the space feel cozy and warm.
- The kitchen is equipped with a big island and a corner pantry allowing for plenty of storage and food prep.
- The master bedroom is just off the living room and is large and spacious. The master bathroom comes with a shower, two vanity sinks, a stand-alone tub, and a water closet. The walk-in closet provides plenty of room for all your clothes and attic access making it super convenient for the homeowners.
- This home has two secondary bedrooms that are on the opposite side of the home, both with large closets. These bedrooms share the hall bathroom that is between both bedrooms.
- The Aurora barndominium house plan is designed with both a front and back porch so that you can take in the views from every direction.
What's included in LP-3203:
Cover Page
Dimensional Layout
Electrical Layout
Front and Rear Elevations
Right and Left Elevations
Detail Views
For more barndominium floor plans, check out our complete collection of 3 bedroom barndominium floor plans.
Need to make changes? Submit a modification request using the button that says Modify This Plan . We will get you a free price quote within 72 hours
What's Typically Included
What's Typically Included
THE SPECIFC DETAILS OF WHAT'S INCLUDED ON THESE PLANS IS CONTAINED IN THE PRODUCT DESCRIPTION. PLEASE SCROLL UP AND YOU WILL FIND IT UNDER "WHAT'S INCLUDED"
Our house plan sets typically have the following details:
4 Elevations – Front, Back, Both Sides
Detailed Floor Plan Drawing
Electrical Plans with placements for HVAC
Plumbing Plans with Placements
Flooring Plan
Roof Plan
Foundation Plan
For more information on what's included and examples of what your plans will look like, go here -> https://barndominiumplans.com/pages/whats-included
Please Note: We work with many different draftspeople who work in many different ways. It should be noted that their plans may contain different details. THE SPECIFC DETAILS OF WHAT'S INCLUDED ON THESE PLANS IS CONTAINED IN THE PRODUCT DESCRIPTION. PLEASE SCROLL UP AND YOU WILL FIND IT UNDER "WHAT'S INCLUDED"
What's Not Included
What's Not Included
The following items are NOT included:
Architectural or Engineering Stamp. Our plans are engineering-ready! Can take them to a local engineer in your state.
Site Plan - We can provide this if needed for $300 additional.
Materials List - handled locally when required
Energy calculations - handled locally when required
Snow load calculations - handled locally when required
Delivery
Delivery
This plan is available as a digital product or printed + shipped.
If you select digital, the plan will be delivered to you via email as a PDF file, no matter what time it is.
If you select printed + shipped, your order will ship in 24x36 format within 1 business day of your order.
We ship from the midwest in order to serve the entire country within 3-5 business days!
Return policy
Return policy
All barndominium house plan purchases are FINAL. There are no exchanges or refunds due to the digital nature of the product. Please make sure that the plan you have selected is going to fit your needs.
PDF (Single Build) $849.99
DETAILS
HEATED SQ FT
First Floor:
2,400 SF
Total Heated Sq Ft:
2,400 SF
UNHEATED SQ FT
Porch: 1,482 SF
Carport:None included
3
2
2 (Main floor + Second floor/loft area)
Non included
40'
60'
13'
Concrete Slab
06:12
Metal Shell
CEILING HEIGHTS
9'
LP-3203 Aurora Barndominium House Plan
- 2400 Heated square feet
- 40x60 living space dimension
- 3 bedrooms
- 2 bathrooms
- 2 Story
- Loft
- Foyer
- Office
- Playroom
- Fireplace
- Open Concept
- The Aurora barndominium house plan is 2400 heated square feet and features 3 bedrooms and 2 bathrooms.
- This open concept creates a nice open space perfect for gathering and entertaining.
- As you enter the Aurora house plan you enter into a nice-sized foyer with an office on one side and a desirable playroom on the other, making this the perfect home for young children. The living room has vaulted ceilings and a corner fireplace to make the space feel cozy and warm.
- The kitchen is equipped with a big island and a corner pantry allowing for plenty of storage and food prep.
- The master bedroom is just off the living room and is large and spacious. The master bathroom comes with a shower, two vanity sinks, a stand-alone tub, and a water closet. The walk-in closet provides plenty of room for all your clothes and attic access making it super convenient for the homeowners.
- This home has two secondary bedrooms that are on the opposite side of the home, both with large closets. These bedrooms share the hall bathroom that is between both bedrooms.
- The Aurora barndominium house plan is designed with both a front and back porch so that you can take in the views from every direction.
What's included in LP-3203:
Cover Page
Dimensional Layout
Electrical Layout
Front and Rear Elevations
Right and Left Elevations
Detail Views
For more barndominium floor plans, check out our complete collection of 3 bedroom barndominium floor plans.
Need to make changes? Submit a modification request using the button that says Modify This Plan . We will get you a free price quote within 72 hours
What's Typically Included
What's Typically Included
THE SPECIFC DETAILS OF WHAT'S INCLUDED ON THESE PLANS IS CONTAINED IN THE PRODUCT DESCRIPTION. PLEASE SCROLL UP AND YOU WILL FIND IT UNDER "WHAT'S INCLUDED"
Our house plan sets typically have the following details:
4 Elevations – Front, Back, Both Sides
Detailed Floor Plan Drawing
Electrical Plans with placements for HVAC
Plumbing Plans with Placements
Flooring Plan
Roof Plan
Foundation Plan
For more information on what's included and examples of what your plans will look like, go here -> https://barndominiumplans.com/pages/whats-included
Please Note: We work with many different draftspeople who work in many different ways. It should be noted that their plans may contain different details. THE SPECIFC DETAILS OF WHAT'S INCLUDED ON THESE PLANS IS CONTAINED IN THE PRODUCT DESCRIPTION. PLEASE SCROLL UP AND YOU WILL FIND IT UNDER "WHAT'S INCLUDED"
What's Not Included
What's Not Included
The following items are NOT included:
Architectural or Engineering Stamp. Our plans are engineering-ready! Can take them to a local engineer in your state.
Site Plan - We can provide this if needed for $300 additional.
Materials List - handled locally when required
Energy calculations - handled locally when required
Snow load calculations - handled locally when required
Delivery
Delivery
This plan is available as a digital product or printed + shipped.
If you select digital, the plan will be delivered to you via email as a PDF file, no matter what time it is.
If you select printed + shipped, your order will ship in 24x36 format within 1 business day of your order.
We ship from the midwest in order to serve the entire country within 3-5 business days!
Return policy
Return policy
All barndominium house plan purchases are FINAL. There are no exchanges or refunds due to the digital nature of the product. Please make sure that the plan you have selected is going to fit your needs.








Real Reviews, Real Experiences
How to Build Your Own Barndominium & 120+ House Plans

Just getting started on your build? Get the Barndominiums Made Easy Program.
- Choosing a selection results in a full page refresh.