Couldn't load pickup availability
Barndominium Plans
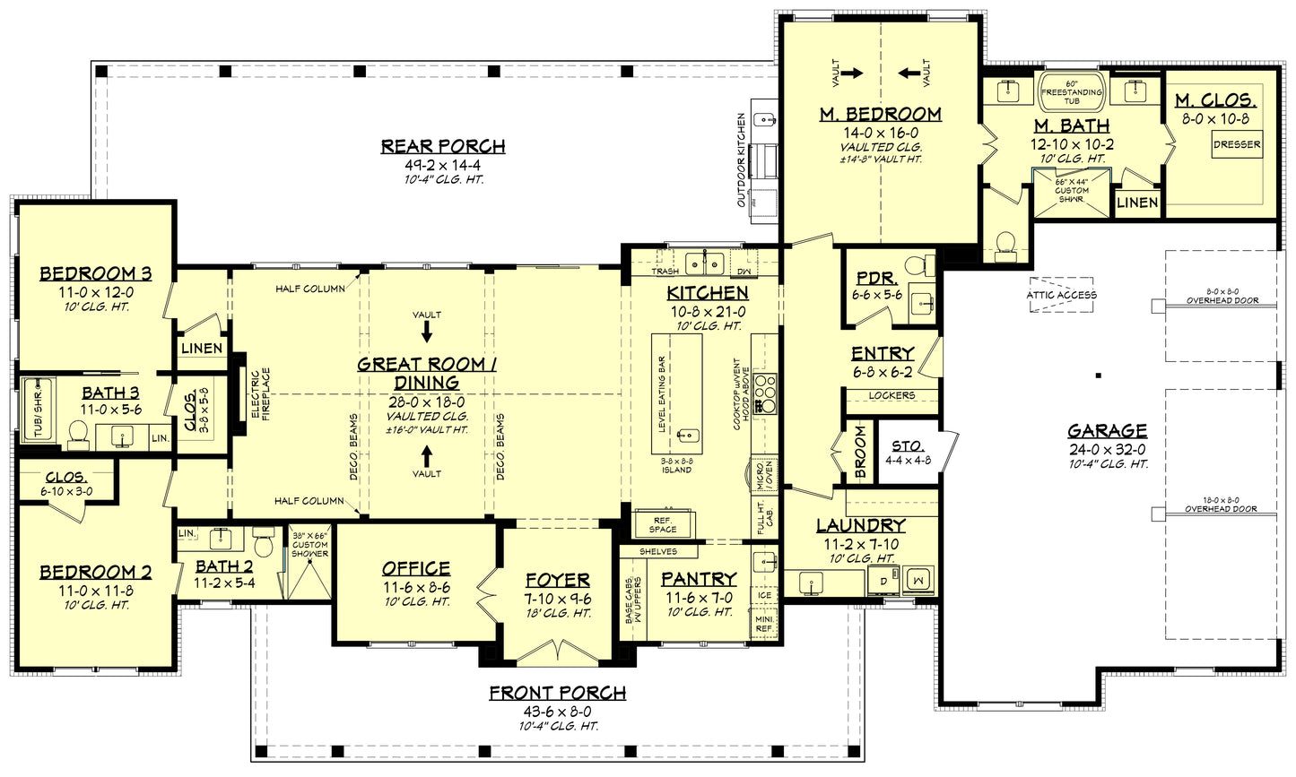
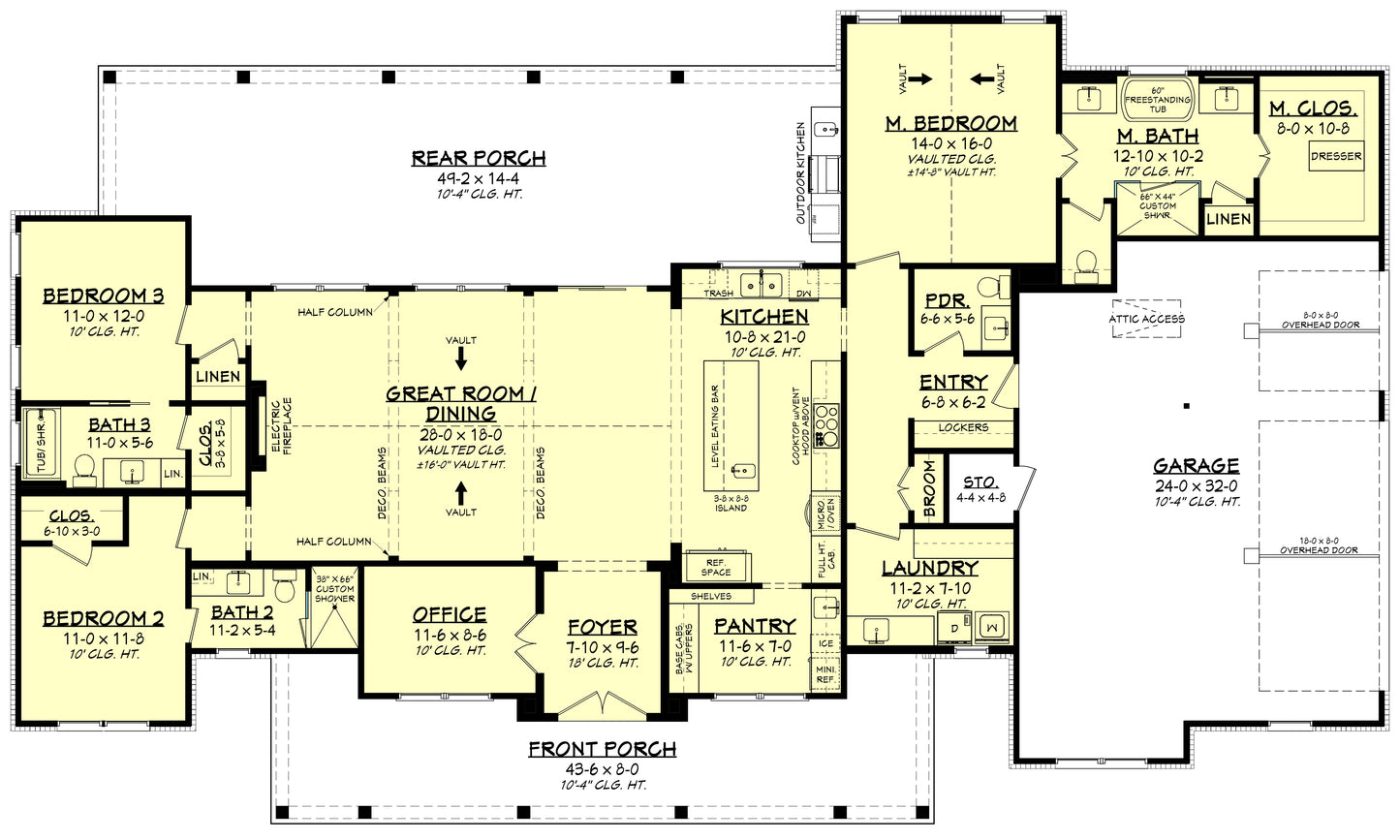
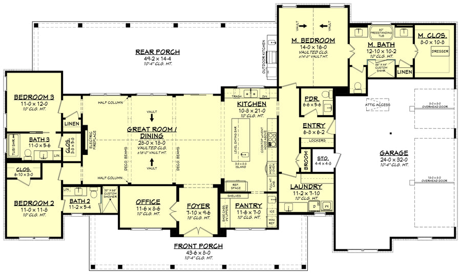
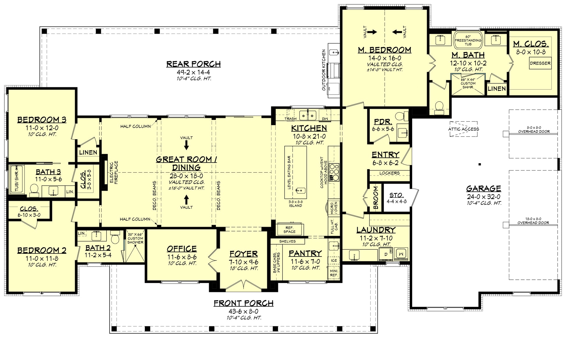
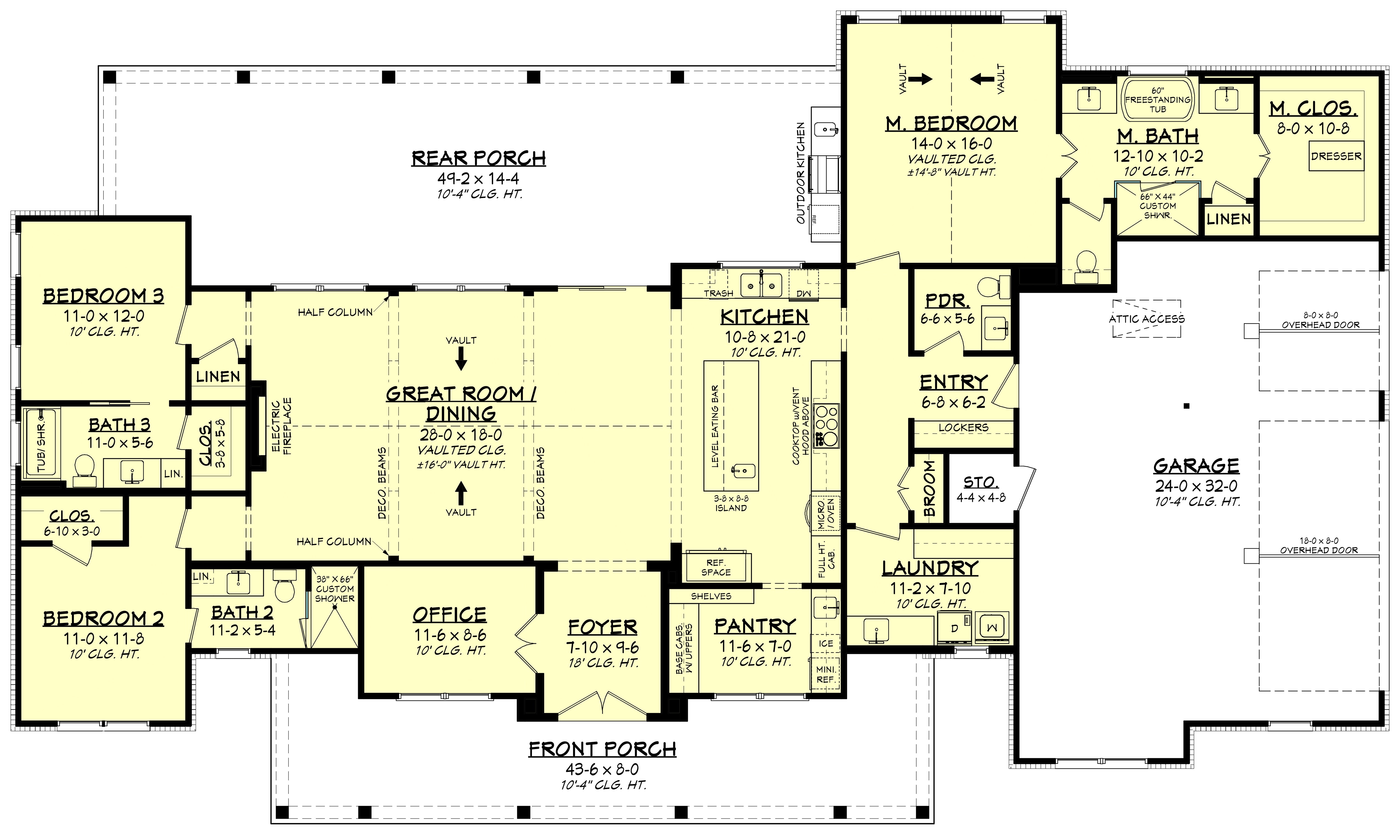
HPZ-26005 Leslie Farmhouse Plan
DETAILS
HEATED SQ FT
First Floor:
2,379 SF
Second Floor:None
Total Heated Sq Ft:2,379 SF
UNHEATED SQ FT
Garage 795 SF, Porches 1,025 SF, Storage 22 SF = TOTAL 1,842 SF
Carport:None
3
3
1
795 SF
91'-2"
53'-6"
27'
Concrete Slab, Crawlspace also available
8:12
Stick Frame
CEILING HEIGHTS
10'
HPZ-26005 Leslie Farmhouse Plan
About this barndominium house plan:
- 2379 Heated Square Feet
- 3 Bedrooms
- 3.5 Bathrooms
- Single Story
- Open concept
- Walk-in pantry
- Foyer
- Office
- Storage
- Outdoor kitchen
- Front and rear porch
- 795 Sq Ft Garage
- This stunning modern farmhouse offers 3 bedrooms, 3.5 baths, and a dedicated office, thoughtfully designed for comfort and functionality.
- The vaulted great room and dining area blend seamlessly with the open kitchen, creating an inviting setting for both daily living and entertaining.
- A spacious walk-in pantry provides added convenience and storage.
- The vaulted primary suite features a spa-inspired bathroom with separate vanities, a soaking tub, an oversized shower, and a generous walk-in closet.
- Expansive front and rear porches extend the living space outdoors, providing ideal areas to unwind and enjoy the surroundings.
What's included in HPZ-26005:
Page 1 Cover Sheet with abbreviations, rendering, sheet index
Page 2 Foundation plan and details
Page 3 Detailed floor plan (includes window sizes, ceiling joist directions, plumbing fixture locations, etc.)
Page 4 Exterior views with additional notes and details
Page 5 Exterior views with additional notes and details
Page 6 Cross section & kitchen cabinet views
Page 7 Roof plan and span charts with additional notes
Page 8 Electrical plan with notes and legend
Page N1 Code Information
Page N2 Code Information
Page N3 Code Information
Page N4 Energy Code Information
For more barndominium floor plans, check out our complete collection of 3 bedroom barndominium floor plans.
Need to make changes? Submit a modification request using the button that says Modify This Plan. We will get you a free price quote within 72 hours.
What's Typically Included
What's Typically Included
THE SPECIFC DETAILS OF WHAT'S INCLUDED ON THESE PLANS IS CONTAINED IN THE PRODUCT DESCRIPTION. PLEASE SCROLL UP AND YOU WILL FIND IT UNDER "WHAT'S INCLUDED"
Our house plan sets typically have the following details:
4 Elevations – Front, Back, Both Sides
Detailed Floor Plan Drawing
Electrical Plans with placements for HVAC
Plumbing Plans with Placements
Flooring Plan
Roof Plan
Foundation Plan
For more information on what's included and examples of what your plans will look like, go here -> https://barndominiumplans.com/pages/whats-included
Please Note: We work with many different draftspeople who work in many different ways. It should be noted that their plans may contain different details. THE SPECIFC DETAILS OF WHAT'S INCLUDED ON THESE PLANS IS CONTAINED IN THE PRODUCT DESCRIPTION. PLEASE SCROLL UP AND YOU WILL FIND IT UNDER "WHAT'S INCLUDED"
What's Not Included
What's Not Included
The following items are NOT included:
Architectural or Engineering Stamp. Our plans are engineering-ready! Can take to a local structural engineer, but we are not engineers ourselves.
Metal Truss Plans - These are provided by the truss manufacturer
Wind and Snow Loads - Handled locally!
Delivery
Delivery
This plan is available as a digital product or printed + shipped.
If you select digital, the plan will be delivered to you via email as a PDF file, no matter what time it is.
If you select printed + shipped, your order will ship in 24x36 format within 1 business day of your order.
We ship from the midwest in order to serve the entire country within 3-5 business days!
Return policy
Return policy
All barndominium house plan purchases are FINAL. There are no exchanges or refunds due to the digital nature of the product. Please make sure that the plan you have selected is going to fit your needs.
Wondering about modifications, and making sure you like the changes? While all plan sales featuring modifications are also FINAL, here's a bit about how the modification process works:
After your order is placed, our team gets started on your modifications.
First, we send over an initial floor plan draft to make sure the modifications are correct. Any "clarifying changes" are included at no additional cost. Things like "Oh I meant for the door to swing this way, not that way" or "kitchen appliances should be arranged in XYZ way". Any major changes to the plan like adding a bedroom, a second story, or a different foundation are an additional fee. 99% of our customers do not incur an additional fee.
After the floor plan is confirmed, we send over the floor plans + elevations. We do the same process, and once you're good with the elevations, we finish up your final plans.
Share
PDF (Single Build) $1,445.00
DETAILS
HEATED SQ FT
First Floor:
2,379 SF
Second Floor:None
Total Heated Sq Ft:2,379 SF
UNHEATED SQ FT
Garage 795 SF, Porches 1,025 SF, Storage 22 SF = TOTAL 1,842 SF
Carport:None
3
3
1
795 SF
91'-2"
53'-6"
27'
Concrete Slab, Crawlspace also available
8:12
Stick Frame
CEILING HEIGHTS
10'
HPZ-26005 Leslie Farmhouse Plan
About this barndominium house plan:
- 2379 Heated Square Feet
- 3 Bedrooms
- 3.5 Bathrooms
- Single Story
- Open concept
- Walk-in pantry
- Foyer
- Office
- Storage
- Outdoor kitchen
- Front and rear porch
- 795 Sq Ft Garage
- This stunning modern farmhouse offers 3 bedrooms, 3.5 baths, and a dedicated office, thoughtfully designed for comfort and functionality.
- The vaulted great room and dining area blend seamlessly with the open kitchen, creating an inviting setting for both daily living and entertaining.
- A spacious walk-in pantry provides added convenience and storage.
- The vaulted primary suite features a spa-inspired bathroom with separate vanities, a soaking tub, an oversized shower, and a generous walk-in closet.
- Expansive front and rear porches extend the living space outdoors, providing ideal areas to unwind and enjoy the surroundings.
What's included in HPZ-26005:
Page 1 Cover Sheet with abbreviations, rendering, sheet index
Page 2 Foundation plan and details
Page 3 Detailed floor plan (includes window sizes, ceiling joist directions, plumbing fixture locations, etc.)
Page 4 Exterior views with additional notes and details
Page 5 Exterior views with additional notes and details
Page 6 Cross section & kitchen cabinet views
Page 7 Roof plan and span charts with additional notes
Page 8 Electrical plan with notes and legend
Page N1 Code Information
Page N2 Code Information
Page N3 Code Information
Page N4 Energy Code Information
For more barndominium floor plans, check out our complete collection of 3 bedroom barndominium floor plans.
Need to make changes? Submit a modification request using the button that says Modify This Plan. We will get you a free price quote within 72 hours.
What's Typically Included
What's Typically Included
THE SPECIFC DETAILS OF WHAT'S INCLUDED ON THESE PLANS IS CONTAINED IN THE PRODUCT DESCRIPTION. PLEASE SCROLL UP AND YOU WILL FIND IT UNDER "WHAT'S INCLUDED"
Our house plan sets typically have the following details:
4 Elevations – Front, Back, Both Sides
Detailed Floor Plan Drawing
Electrical Plans with placements for HVAC
Plumbing Plans with Placements
Flooring Plan
Roof Plan
Foundation Plan
For more information on what's included and examples of what your plans will look like, go here -> https://barndominiumplans.com/pages/whats-included
Please Note: We work with many different draftspeople who work in many different ways. It should be noted that their plans may contain different details. THE SPECIFC DETAILS OF WHAT'S INCLUDED ON THESE PLANS IS CONTAINED IN THE PRODUCT DESCRIPTION. PLEASE SCROLL UP AND YOU WILL FIND IT UNDER "WHAT'S INCLUDED"
What's Not Included
What's Not Included
The following items are NOT included:
Architectural or Engineering Stamp. Our plans are engineering-ready! Can take to a local structural engineer, but we are not engineers ourselves.
Metal Truss Plans - These are provided by the truss manufacturer
Wind and Snow Loads - Handled locally!
Delivery
Delivery
This plan is available as a digital product or printed + shipped.
If you select digital, the plan will be delivered to you via email as a PDF file, no matter what time it is.
If you select printed + shipped, your order will ship in 24x36 format within 1 business day of your order.
We ship from the midwest in order to serve the entire country within 3-5 business days!
Return policy
Return policy
All barndominium house plan purchases are FINAL. There are no exchanges or refunds due to the digital nature of the product. Please make sure that the plan you have selected is going to fit your needs.
Wondering about modifications, and making sure you like the changes? While all plan sales featuring modifications are also FINAL, here's a bit about how the modification process works:
After your order is placed, our team gets started on your modifications.
First, we send over an initial floor plan draft to make sure the modifications are correct. Any "clarifying changes" are included at no additional cost. Things like "Oh I meant for the door to swing this way, not that way" or "kitchen appliances should be arranged in XYZ way". Any major changes to the plan like adding a bedroom, a second story, or a different foundation are an additional fee. 99% of our customers do not incur an additional fee.
After the floor plan is confirmed, we send over the floor plans + elevations. We do the same process, and once you're good with the elevations, we finish up your final plans.
Share

Modify Plan - HPZ-26005 Leslie Farmhouse Plan
Tell Us Your Changes
Use the form below to describe the changes you would like to make. You may also upload marked-up drawings along with your written request.
We Provide The Quote
We will review your modification request and provide a quote within 1-2 business days. The quote will have the modification price and the timeframe for making your changes.
Place Your Order
Once you place the order and submit payment, we will start the modification process.
Get Your Plans!
We deliver your modified plans! We're here to make sure that you get exactly what you ordered.
Example Of A GREAT Modification Request
- Extend the garage to create a three-car garage.
- Extend Bedroom 2 so it aligns with the rear of the home.
- Use extra space when widening bedroom 2 to jut into the laundry room
- Lengthen kitchen countertops from left side and move kitchen island 18"
Can also attach a screenshot of drawing or iPhone markup
Can I See The Modified Plans Before Paying?
Unfortunately, no. In order for our design team to open up the file and start making changes, we must have full payment made in advance.
Worried about getting back plans you don't like? No sweat. Many of our designers provide an initial floor plan for your review. We will provide the final plans in a timely fashion, and any "clarifying changes" or things that were lost in translation will get corrected ASAP.
Real Reviews, Real Experiences
How to Build Your Own Barndominium & 120+ House Plans
Just getting started on your build? Get the Barndominiums Made Easy Program.
Subscribe to our emails
Join our email list for exclusive offers and the latest news.
- Choosing a selection results in a full page refresh.
