Couldn't load pickup availability
Barndominium Plans
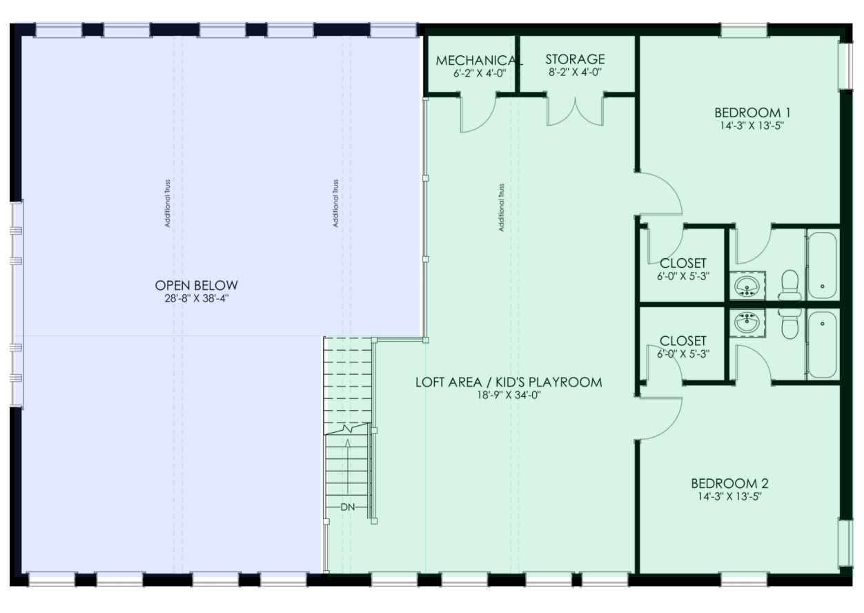
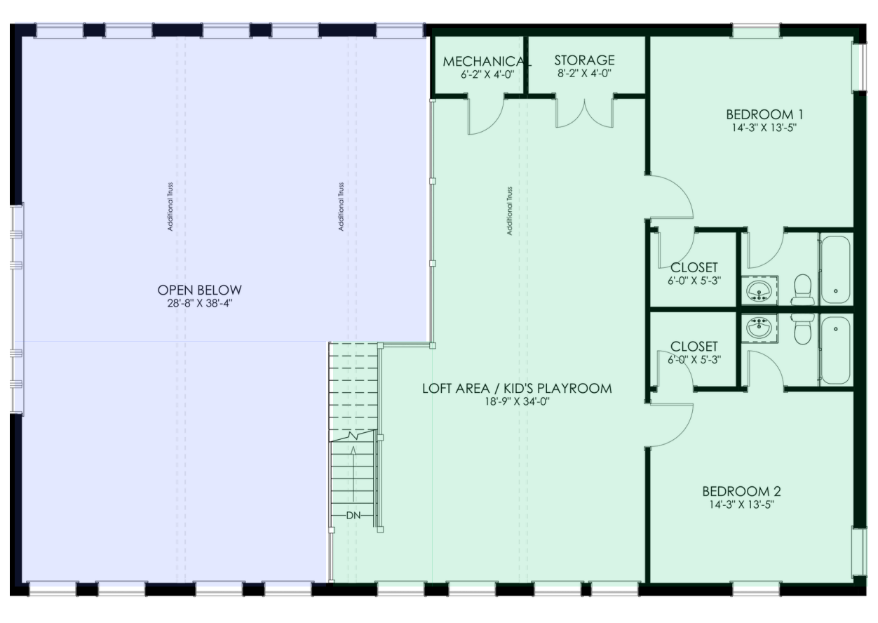
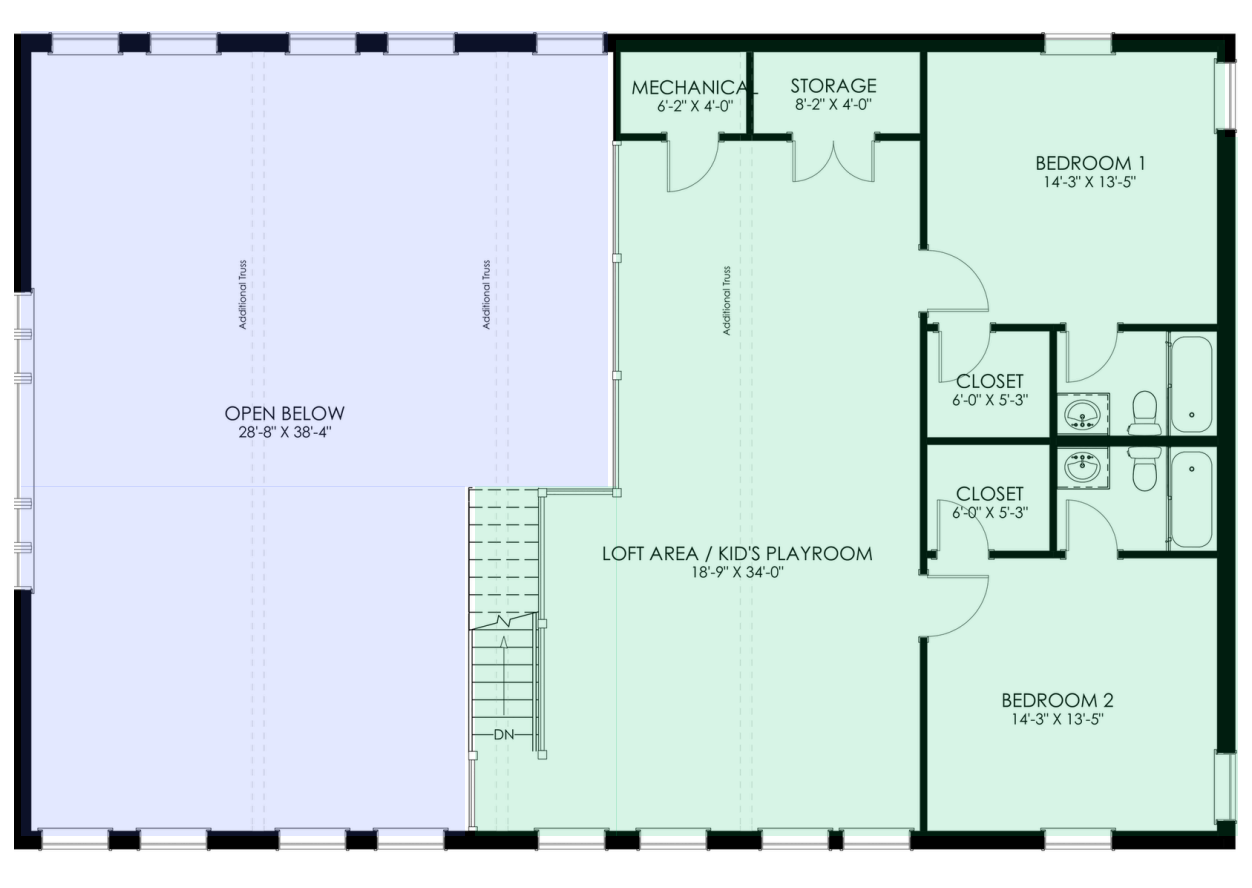
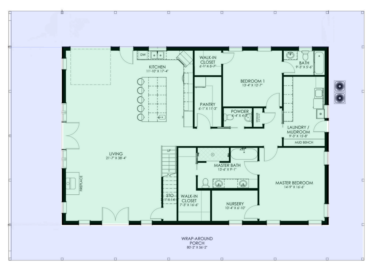
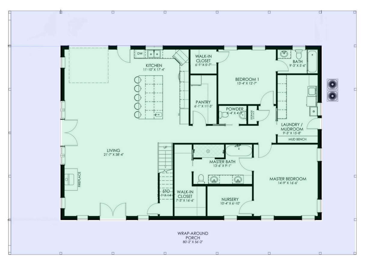
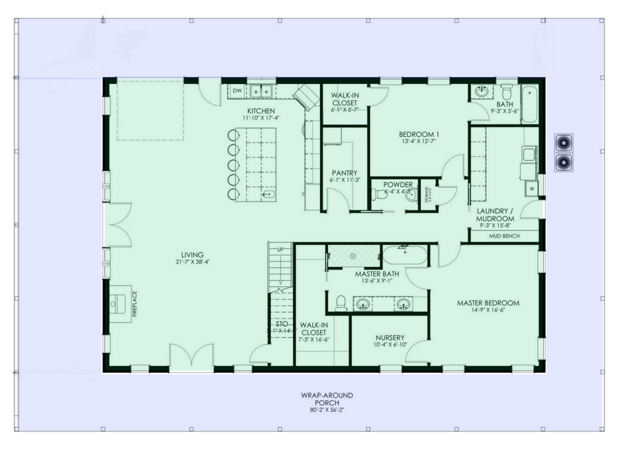
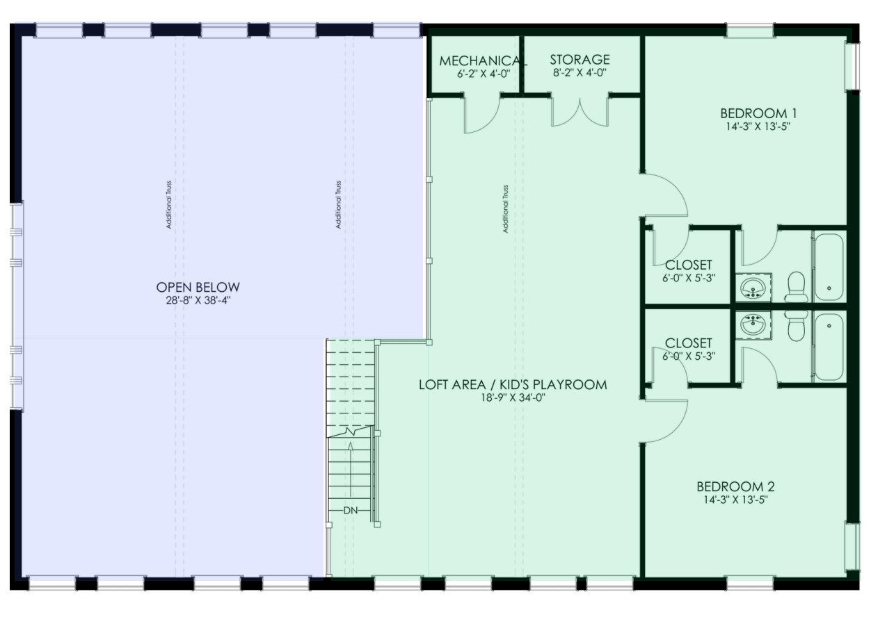
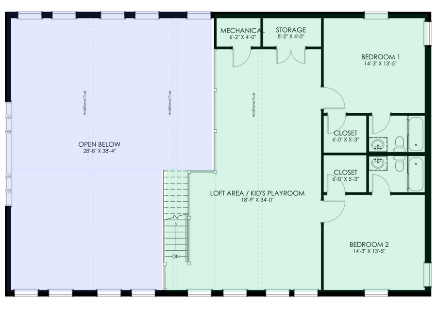
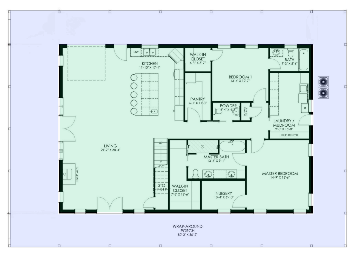
GJ-4403 Taylor Barndominium House Plan
DETAILS
HEATED SQ FT
First Floor:
2,400 SF
Second Floor:1,300 SF
Total Heated Sq Ft:3,700 SF
UNHEATED SQ FT
2,090 SF
Carport:None
4
4
2
None
60'
40'
25'-8"
Concrete Slab
4:12
Metal Shell
CEILING HEIGHTS
9'
GJ-4403 Taylor Barndominium House Plan
About this barndominium house plan:
- 3,700 Heated Sq Ft
- 4 bedrooms
- 4.1 bathrooms
- Two Story
- Open Concept
- Loft/Play area
- Nursery
- Laundry/Mudroom
- Mechanical room
- Storage room
- Wraparound porch
- This expansive two-level home offers 3,700 square feet of heated space with 4 bedrooms and 4.1 bathrooms.
- A generous loft doubles as a kid’s playroom, media zone, or creative retreat—anchoring the second floor with open sightlines and flexible use.
- The master bedroom includes a dedicated nursery nook—perfect for new parents or those seeking a quiet, connected space for little ones.
- A combined utility zone near the garage entry keeps things tidy and functional—ideal for sorting, stashing, and everyday transitions.
- Upstairs includes dedicated mechanical and storage rooms—streamlining home systems and seasonal organization.
- A full-perimeter porch wraps the main level—offering shaded outdoor zones for morning coffee, evening chats, or relaxed entertaining.
What's included in GJ-4403:
Cover Sheet
First Floor Plan
Second Floor Plan
Schedule of Windows
Exterior Elevations
Cabinet Details
Renders
Structure Layout - First Floor
Structure Layout - Second Floor
Wall Details
Building Structures
Roof Plan
Non-engineered Framing Plan
Stair Details
Electrical Plan - First Floor
Electrical Plan - Second Floor
Foundation Plan
For more barndominium floor plans, check out our complete collection of 4-bedroom barndominium floor plans.
Need to make changes? Submit a modification request using the button that says Modify This Plan. We will get you a free price quote within 72 hours.
What's Typically Included
What's Typically Included
THE SPECIFC DETAILS OF WHAT'S INCLUDED ON THESE PLANS IS CONTAINED IN THE PRODUCT DESCRIPTION. PLEASE SCROLL UP AND YOU WILL FIND IT UNDER "WHAT'S INCLUDED"
Our house plan sets typically have the following details:
4 Elevations – Front, Back, Both Sides
Detailed Floor Plan Drawing
Electrical Plans with placements for HVAC
Plumbing Plans with Placements
Flooring Plan
Roof Plan
Foundation Plan
For more information on what's included and examples of what your plans will look like, go here -> https://barndominiumplans.com/pages/whats-included
Please Note: We work with many different draftspeople who work in many different ways. It should be noted that their plans may contain different details. THE SPECIFC DETAILS OF WHAT'S INCLUDED ON THESE PLANS IS CONTAINED IN THE PRODUCT DESCRIPTION. PLEASE SCROLL UP AND YOU WILL FIND IT UNDER "WHAT'S INCLUDED"
What's Not Included
What's Not Included
The following items are NOT included:
Architectural or Engineering Stamp. Our plans are engineering-ready! Can take them to a local engineer in your state.
Site Plan - We can provide this if needed for $300 additional.
Materials List - handled locally when required
Energy calculations - handled locally when required
Snow load calculations - handled locally when required
Delivery
Delivery
This plan is available as a digital product or printed + shipped.
If you select digital, the plan will be delivered to you via email as a PDF file, no matter what time it is.
If you select printed + shipped, your order will ship in 24x36 format within 1 business day of your order.
We ship from the midwest in order to serve the entire country within 3-5 business days!
Return policy
Return policy
All barndominium house plan purchases are FINAL. There are no exchanges or refunds due to the digital nature of the product. Please make sure that the plan you have selected is going to fit your needs.
PDF (Single Build) $1,349.99
DETAILS
HEATED SQ FT
First Floor:
2,400 SF
Second Floor:1,300 SF
Total Heated Sq Ft:3,700 SF
UNHEATED SQ FT
2,090 SF
Carport:None
4
4
2
None
60'
40'
25'-8"
Concrete Slab
4:12
Metal Shell
CEILING HEIGHTS
9'
GJ-4403 Taylor Barndominium House Plan
About this barndominium house plan:
- 3,700 Heated Sq Ft
- 4 bedrooms
- 4.1 bathrooms
- Two Story
- Open Concept
- Loft/Play area
- Nursery
- Laundry/Mudroom
- Mechanical room
- Storage room
- Wraparound porch
- This expansive two-level home offers 3,700 square feet of heated space with 4 bedrooms and 4.1 bathrooms.
- A generous loft doubles as a kid’s playroom, media zone, or creative retreat—anchoring the second floor with open sightlines and flexible use.
- The master bedroom includes a dedicated nursery nook—perfect for new parents or those seeking a quiet, connected space for little ones.
- A combined utility zone near the garage entry keeps things tidy and functional—ideal for sorting, stashing, and everyday transitions.
- Upstairs includes dedicated mechanical and storage rooms—streamlining home systems and seasonal organization.
- A full-perimeter porch wraps the main level—offering shaded outdoor zones for morning coffee, evening chats, or relaxed entertaining.
What's included in GJ-4403:
Cover Sheet
First Floor Plan
Second Floor Plan
Schedule of Windows
Exterior Elevations
Cabinet Details
Renders
Structure Layout - First Floor
Structure Layout - Second Floor
Wall Details
Building Structures
Roof Plan
Non-engineered Framing Plan
Stair Details
Electrical Plan - First Floor
Electrical Plan - Second Floor
Foundation Plan
For more barndominium floor plans, check out our complete collection of 4-bedroom barndominium floor plans.
Need to make changes? Submit a modification request using the button that says Modify This Plan. We will get you a free price quote within 72 hours.
What's Typically Included
What's Typically Included
THE SPECIFC DETAILS OF WHAT'S INCLUDED ON THESE PLANS IS CONTAINED IN THE PRODUCT DESCRIPTION. PLEASE SCROLL UP AND YOU WILL FIND IT UNDER "WHAT'S INCLUDED"
Our house plan sets typically have the following details:
4 Elevations – Front, Back, Both Sides
Detailed Floor Plan Drawing
Electrical Plans with placements for HVAC
Plumbing Plans with Placements
Flooring Plan
Roof Plan
Foundation Plan
For more information on what's included and examples of what your plans will look like, go here -> https://barndominiumplans.com/pages/whats-included
Please Note: We work with many different draftspeople who work in many different ways. It should be noted that their plans may contain different details. THE SPECIFC DETAILS OF WHAT'S INCLUDED ON THESE PLANS IS CONTAINED IN THE PRODUCT DESCRIPTION. PLEASE SCROLL UP AND YOU WILL FIND IT UNDER "WHAT'S INCLUDED"
What's Not Included
What's Not Included
The following items are NOT included:
Architectural or Engineering Stamp. Our plans are engineering-ready! Can take them to a local engineer in your state.
Site Plan - We can provide this if needed for $300 additional.
Materials List - handled locally when required
Energy calculations - handled locally when required
Snow load calculations - handled locally when required
Delivery
Delivery
This plan is available as a digital product or printed + shipped.
If you select digital, the plan will be delivered to you via email as a PDF file, no matter what time it is.
If you select printed + shipped, your order will ship in 24x36 format within 1 business day of your order.
We ship from the midwest in order to serve the entire country within 3-5 business days!
Return policy
Return policy
All barndominium house plan purchases are FINAL. There are no exchanges or refunds due to the digital nature of the product. Please make sure that the plan you have selected is going to fit your needs.

Real Reviews, Real Experiences
How to Build Your Own Barndominium & 120+ House Plans
Just getting started on your build? Get the Barndominiums Made Easy Program.
- Choosing a selection results in a full page refresh.



