Couldn't load pickup availability
Barndominium Plans
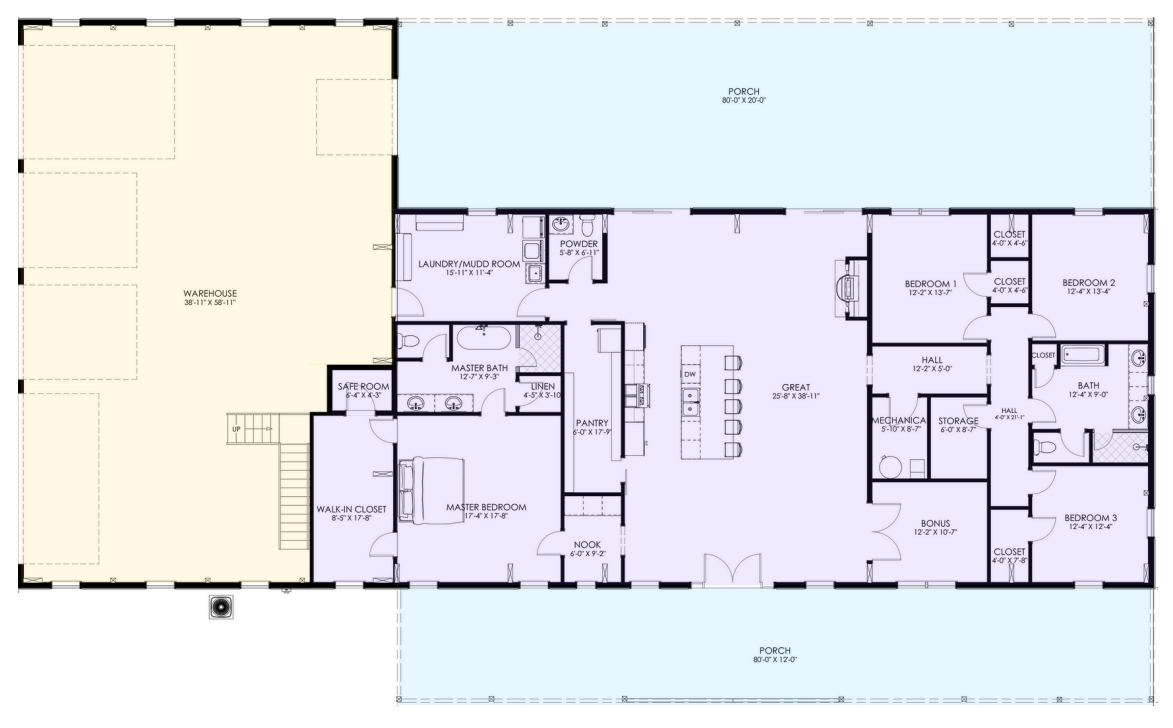
GJ-4401 Grant Barndominium House Plan
DETAILS
HEATED SQ FT
First Floor:
3,369 SF
Second Floor:None
Total Heated Sq Ft:3,369 SF
UNHEATED SQ FT
Garage 2,400 SF, Porch 2,560 SF = TOTAL 4,960 SF
Carport:None
4
2
1
2,203 SF
120'
60'
18'-7"
Concrete Slab
4:12
Metal Shell
CEILING HEIGHTS
10'
GJ-4401 Grant Barndominium House Plan
About this barndominium house plan:
- 3,369 Heated Sq Ft
- 4 bedrooms
- 2.1 bathrooms
- Single Story
- Open Concept
- Laundry/mudroom
- Mechanical room
- Safe room
- Private nook
- Bonus room
- Storage room
- Front & rear porch
- 2,400 Sq Ft Garage
- This expansive layout offers over 3,300 square feet of heated space, blending open-plan ease with tucked-away retreats across four bedrooms and two and a half baths.
- A combined utility zone near the garage entry keeps daily routines smooth—ideal for sorting, stashing, and stepping in from the outdoors.
- The master bedroom is more than a sleeping space—it includes a generous walk-in closet, a built-in safe room, and a cozy nook.
- The bonus room adds flexibility while a separate storage room keeps clutter out of sight and essentials within reach.
- Covered porches at both ends of the home offer shaded spots to unwind, greet guests, or enjoy the outdoors in any weather.
- This oversized garage accommodates four vehicles and includes attic access.
What's included in GJ-4401:
Cover Sheet
First Floor Plan
Second Floor Plan
Exterior Elevations
Cabinet Details
Renders
Building Structure Reference
Steel Structure Layout
Roof Plan
Structural Details
First Floor Electrical Plan
Second Floor Electrical Plan
Foundation Plan
For more barndominium floor plans, check out our complete collection of 4-bedroom barndominium floor plans.
Need to make changes? Submit a modification request using the button that says Modify This Plan. We will get you a free price quote within 72 hours.
What's Typically Included
What's Typically Included
THE SPECIFC DETAILS OF WHAT'S INCLUDED ON THESE PLANS IS CONTAINED IN THE PRODUCT DESCRIPTION. PLEASE SCROLL UP AND YOU WILL FIND IT UNDER "WHAT'S INCLUDED"
Our house plan sets typically have the following details:
4 Elevations – Front, Back, Both Sides
Detailed Floor Plan Drawing
Electrical Plans with placements for HVAC
Plumbing Plans with Placements
Flooring Plan
Roof Plan
Foundation Plan
For more information on what's included and examples of what your plans will look like, go here -> https://barndominiumplans.com/pages/whats-included
Please Note: We work with many different draftspeople who work in many different ways. It should be noted that their plans may contain different details. THE SPECIFC DETAILS OF WHAT'S INCLUDED ON THESE PLANS IS CONTAINED IN THE PRODUCT DESCRIPTION. PLEASE SCROLL UP AND YOU WILL FIND IT UNDER "WHAT'S INCLUDED"
What's Not Included
What's Not Included
The following items are NOT included:
Architectural or Engineering Stamp. Our plans are engineering-ready! Can take them to a local engineer in your state.
Site Plan - We can provide this if needed for $300 additional.
Materials List - handled locally when required
Energy calculations - handled locally when required
Snow load calculations - handled locally when required
Delivery
Delivery
This plan is available as a digital product or printed + shipped.
If you select digital, the plan will be delivered to you via email as a PDF file, no matter what time it is.
If you select printed + shipped, your order will ship in 24x36 format within 1 business day of your order.
We ship from the midwest in order to serve the entire country within 3-5 business days!
Return policy
Return policy
All barndominium house plan purchases are FINAL. There are no exchanges or refunds due to the digital nature of the product. Please make sure that the plan you have selected is going to fit your needs.
PDF (Single Build) $1,349.99
DETAILS
HEATED SQ FT
First Floor:
3,369 SF
Second Floor:None
Total Heated Sq Ft:3,369 SF
UNHEATED SQ FT
Garage 2,400 SF, Porch 2,560 SF = TOTAL 4,960 SF
Carport:None
4
2
1
2,203 SF
120'
60'
18'-7"
Concrete Slab
4:12
Metal Shell
CEILING HEIGHTS
10'
GJ-4401 Grant Barndominium House Plan
About this barndominium house plan:
- 3,369 Heated Sq Ft
- 4 bedrooms
- 2.1 bathrooms
- Single Story
- Open Concept
- Laundry/mudroom
- Mechanical room
- Safe room
- Private nook
- Bonus room
- Storage room
- Front & rear porch
- 2,400 Sq Ft Garage
- This expansive layout offers over 3,300 square feet of heated space, blending open-plan ease with tucked-away retreats across four bedrooms and two and a half baths.
- A combined utility zone near the garage entry keeps daily routines smooth—ideal for sorting, stashing, and stepping in from the outdoors.
- The master bedroom is more than a sleeping space—it includes a generous walk-in closet, a built-in safe room, and a cozy nook.
- The bonus room adds flexibility while a separate storage room keeps clutter out of sight and essentials within reach.
- Covered porches at both ends of the home offer shaded spots to unwind, greet guests, or enjoy the outdoors in any weather.
- This oversized garage accommodates four vehicles and includes attic access.
What's included in GJ-4401:
Cover Sheet
First Floor Plan
Second Floor Plan
Exterior Elevations
Cabinet Details
Renders
Building Structure Reference
Steel Structure Layout
Roof Plan
Structural Details
First Floor Electrical Plan
Second Floor Electrical Plan
Foundation Plan
For more barndominium floor plans, check out our complete collection of 4-bedroom barndominium floor plans.
Need to make changes? Submit a modification request using the button that says Modify This Plan. We will get you a free price quote within 72 hours.
What's Typically Included
What's Typically Included
THE SPECIFC DETAILS OF WHAT'S INCLUDED ON THESE PLANS IS CONTAINED IN THE PRODUCT DESCRIPTION. PLEASE SCROLL UP AND YOU WILL FIND IT UNDER "WHAT'S INCLUDED"
Our house plan sets typically have the following details:
4 Elevations – Front, Back, Both Sides
Detailed Floor Plan Drawing
Electrical Plans with placements for HVAC
Plumbing Plans with Placements
Flooring Plan
Roof Plan
Foundation Plan
For more information on what's included and examples of what your plans will look like, go here -> https://barndominiumplans.com/pages/whats-included
Please Note: We work with many different draftspeople who work in many different ways. It should be noted that their plans may contain different details. THE SPECIFC DETAILS OF WHAT'S INCLUDED ON THESE PLANS IS CONTAINED IN THE PRODUCT DESCRIPTION. PLEASE SCROLL UP AND YOU WILL FIND IT UNDER "WHAT'S INCLUDED"
What's Not Included
What's Not Included
The following items are NOT included:
Architectural or Engineering Stamp. Our plans are engineering-ready! Can take them to a local engineer in your state.
Site Plan - We can provide this if needed for $300 additional.
Materials List - handled locally when required
Energy calculations - handled locally when required
Snow load calculations - handled locally when required
Delivery
Delivery
This plan is available as a digital product or printed + shipped.
If you select digital, the plan will be delivered to you via email as a PDF file, no matter what time it is.
If you select printed + shipped, your order will ship in 24x36 format within 1 business day of your order.
We ship from the midwest in order to serve the entire country within 3-5 business days!
Return policy
Return policy
All barndominium house plan purchases are FINAL. There are no exchanges or refunds due to the digital nature of the product. Please make sure that the plan you have selected is going to fit your needs.

Real Reviews, Real Experiences
How to Build Your Own Barndominium & 120+ House Plans
Just getting started on your build? Get the Barndominiums Made Easy Program.
- Choosing a selection results in a full page refresh.



