Couldn't load pickup availability
Barndominium Plans
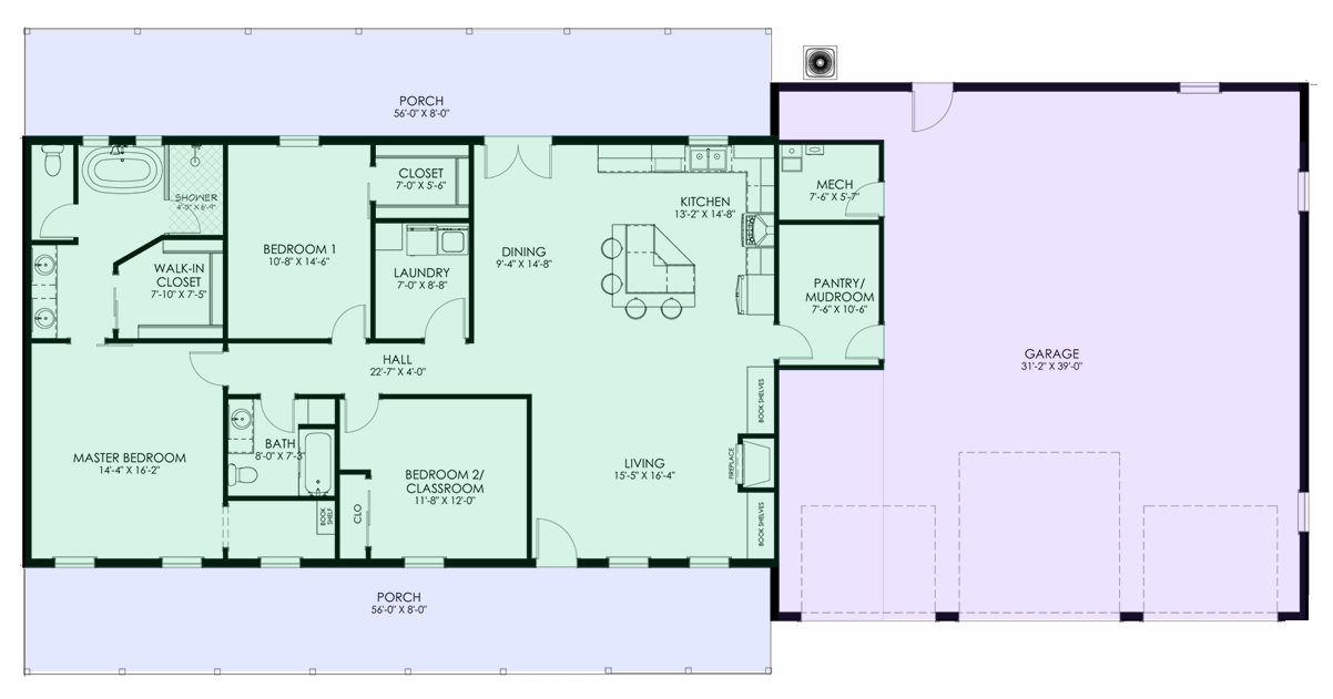
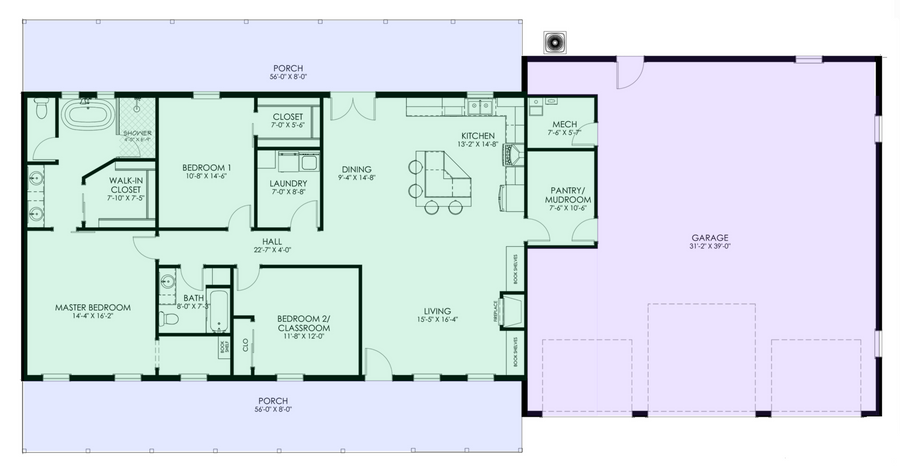
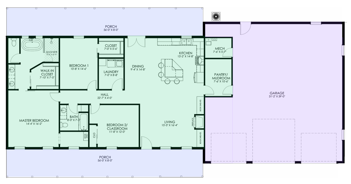
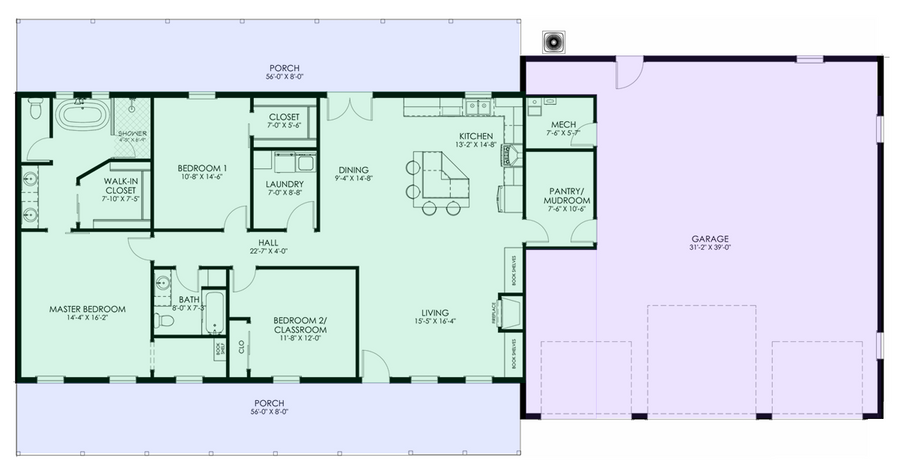
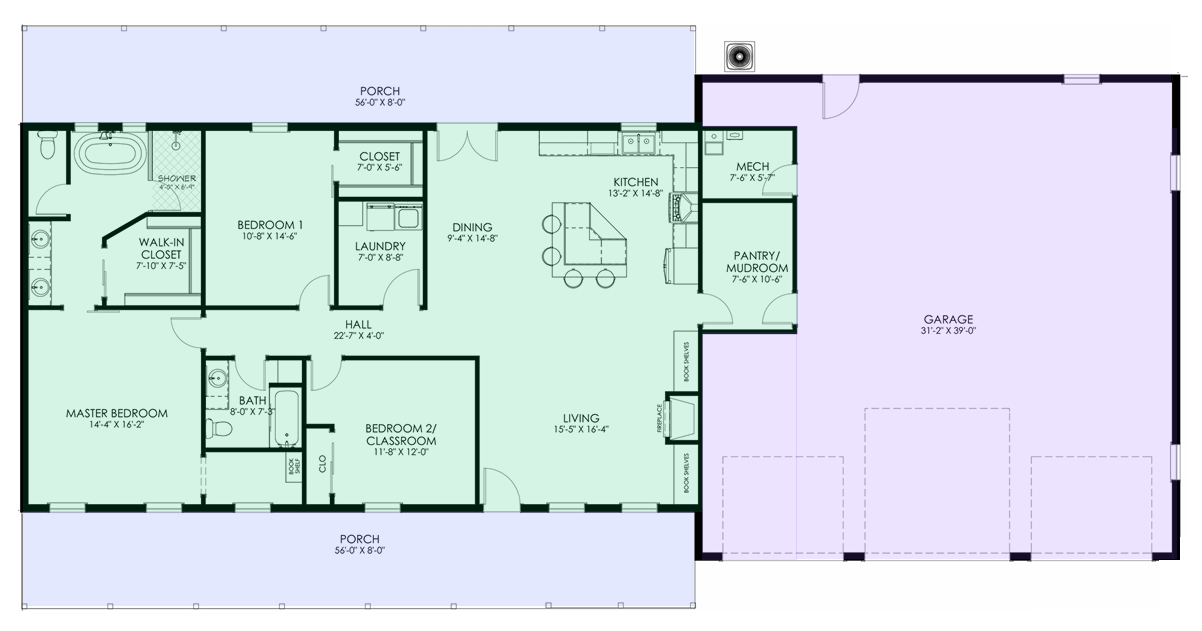
GJ-4400 August Barndominium House Plan
DETAILS
HEATED SQ FT
First Floor:
1,894
Second Floor:None
Total Heated Sq Ft:1,894 SF
UNHEATED SQ FT
Garage 1,498 SF, Porch 896 SF = TOTAL 2,394 SF
Carport:None
3
2
1
1,498 SF
96'
40'
18'-8"
Concrete Slab
6:12
Metal Shell
CEILING HEIGHTS
10'
GJ-4400 August Barndominium House Plan
About this barndominium house plan:
- 1,894 Heated Sq Ft
- 3 bedrooms
- 2 bathrooms
- Single Story
- Open Concept
- Pantry/mudroom
- Mechanical room
- Front & rear porch
- 1,911 Sq Ft Garage
- This single-level layout offers nearly 1,900 square feet of conditioned space with three bedrooms and 2 bathrooms.
- A combined pantry and mudroom connects the kitchen to the garage—streamlining storage, unloading, and household transitions.
- Covered porches span both the front and back of the home—creating shaded outdoor zones for relaxing, entertaining, or quiet moments.
- The garage includes space for three vehicles and a dedicated mechanical room—ideal for gearheads, hobbyists, or workshop use.
What's included in GJ-4400:
Cover Sheet
First Floor Plan
Exterior Elevations
Wall Elevations
Renders
Metal Building Reference
Structural Layout
Foundation Plan
First Floor Electrical Plan
For more barndominium floor plans, check out our complete collection of 3-bedroom barndominium floor plans.
Need to make changes? Submit a modification request using the button that says Modify This Plan. We will get you a free price quote within 72 hours.
What's Typically Included
What's Typically Included
THE SPECIFC DETAILS OF WHAT'S INCLUDED ON THESE PLANS IS CONTAINED IN THE PRODUCT DESCRIPTION. PLEASE SCROLL UP AND YOU WILL FIND IT UNDER "WHAT'S INCLUDED"
Our house plan sets typically have the following details:
4 Elevations – Front, Back, Both Sides
Detailed Floor Plan Drawing
Electrical Plans with placements for HVAC
Plumbing Plans with Placements
Flooring Plan
Roof Plan
Foundation Plan
For more information on what's included and examples of what your plans will look like, go here -> https://barndominiumplans.com/pages/whats-included
Please Note: We work with many different draftspeople who work in many different ways. It should be noted that their plans may contain different details. THE SPECIFC DETAILS OF WHAT'S INCLUDED ON THESE PLANS IS CONTAINED IN THE PRODUCT DESCRIPTION. PLEASE SCROLL UP AND YOU WILL FIND IT UNDER "WHAT'S INCLUDED"
What's Not Included
What's Not Included
The following items are NOT included:
Architectural or Engineering Stamp. Our plans are engineering-ready! Can take them to a local engineer in your state.
Site Plan - We can provide this if needed for $300 additional.
Materials List - handled locally when required
Energy calculations - handled locally when required
Snow load calculations - handled locally when required
Delivery
Delivery
This plan is available as a digital product or printed + shipped.
If you select digital, the plan will be delivered to you via email as a PDF file, no matter what time it is.
If you select printed + shipped, your order will ship in 24x36 format within 1 business day of your order.
We ship from the midwest in order to serve the entire country within 3-5 business days!
Return policy
Return policy
All barndominium house plan purchases are FINAL. There are no exchanges or refunds due to the digital nature of the product. Please make sure that the plan you have selected is going to fit your needs.
PDF (Single Build) $849.99
DETAILS
HEATED SQ FT
First Floor:
1,894
Second Floor:None
Total Heated Sq Ft:1,894 SF
UNHEATED SQ FT
Garage 1,498 SF, Porch 896 SF = TOTAL 2,394 SF
Carport:None
3
2
1
1,498 SF
96'
40'
18'-8"
Concrete Slab
6:12
Metal Shell
CEILING HEIGHTS
10'
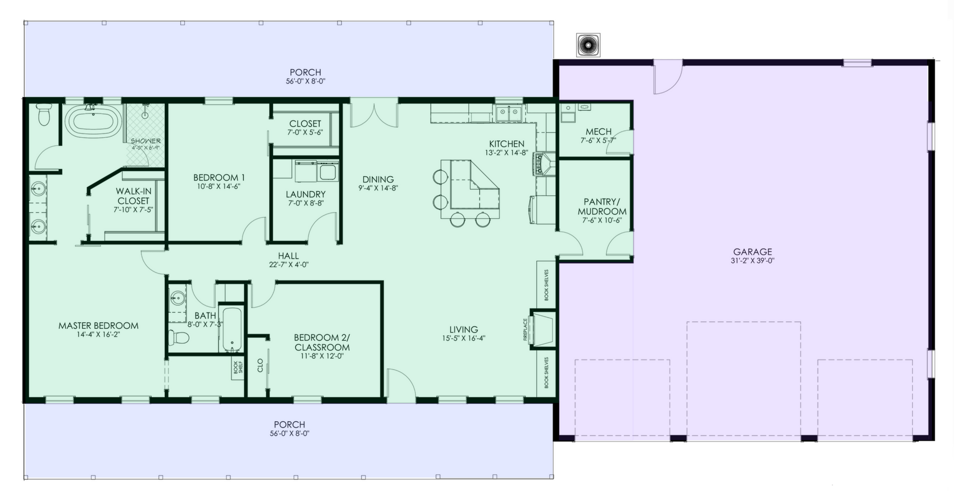
GJ-4400 August Barndominium House Plan
About this barndominium house plan:
- 1,894 Heated Sq Ft
- 3 bedrooms
- 2 bathrooms
- Single Story
- Open Concept
- Pantry/mudroom
- Mechanical room
- Front & rear porch
- 1,911 Sq Ft Garage
- This single-level layout offers nearly 1,900 square feet of conditioned space with three bedrooms and 2 bathrooms.
- A combined pantry and mudroom connects the kitchen to the garage—streamlining storage, unloading, and household transitions.
- Covered porches span both the front and back of the home—creating shaded outdoor zones for relaxing, entertaining, or quiet moments.
- The garage includes space for three vehicles and a dedicated mechanical room—ideal for gearheads, hobbyists, or workshop use.
What's included in GJ-4400:
Cover Sheet
First Floor Plan
Exterior Elevations
Wall Elevations
Renders
Metal Building Reference
Structural Layout
Foundation Plan
First Floor Electrical Plan
For more barndominium floor plans, check out our complete collection of 3-bedroom barndominium floor plans.
Need to make changes? Submit a modification request using the button that says Modify This Plan. We will get you a free price quote within 72 hours.
What's Typically Included
What's Typically Included
THE SPECIFC DETAILS OF WHAT'S INCLUDED ON THESE PLANS IS CONTAINED IN THE PRODUCT DESCRIPTION. PLEASE SCROLL UP AND YOU WILL FIND IT UNDER "WHAT'S INCLUDED"
Our house plan sets typically have the following details:
4 Elevations – Front, Back, Both Sides
Detailed Floor Plan Drawing
Electrical Plans with placements for HVAC
Plumbing Plans with Placements
Flooring Plan
Roof Plan
Foundation Plan
For more information on what's included and examples of what your plans will look like, go here -> https://barndominiumplans.com/pages/whats-included
Please Note: We work with many different draftspeople who work in many different ways. It should be noted that their plans may contain different details. THE SPECIFC DETAILS OF WHAT'S INCLUDED ON THESE PLANS IS CONTAINED IN THE PRODUCT DESCRIPTION. PLEASE SCROLL UP AND YOU WILL FIND IT UNDER "WHAT'S INCLUDED"
What's Not Included
What's Not Included
The following items are NOT included:
Architectural or Engineering Stamp. Our plans are engineering-ready! Can take them to a local engineer in your state.
Site Plan - We can provide this if needed for $300 additional.
Materials List - handled locally when required
Energy calculations - handled locally when required
Snow load calculations - handled locally when required
Delivery
Delivery
This plan is available as a digital product or printed + shipped.
If you select digital, the plan will be delivered to you via email as a PDF file, no matter what time it is.
If you select printed + shipped, your order will ship in 24x36 format within 1 business day of your order.
We ship from the midwest in order to serve the entire country within 3-5 business days!
Return policy
Return policy
All barndominium house plan purchases are FINAL. There are no exchanges or refunds due to the digital nature of the product. Please make sure that the plan you have selected is going to fit your needs.

Real Reviews, Real Experiences
How to Build Your Own Barndominium & 120+ House Plans
Just getting started on your build? Get the Barndominiums Made Easy Program.
- Choosing a selection results in a full page refresh.



