Couldn't load pickup availability
Barndominium Plans
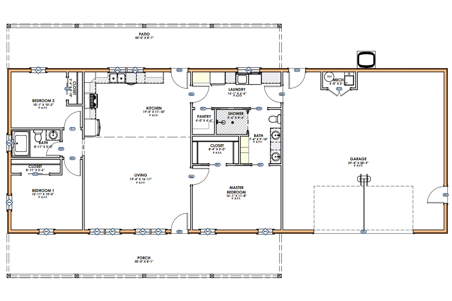
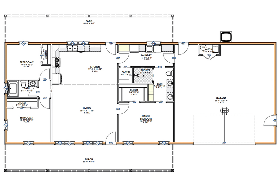
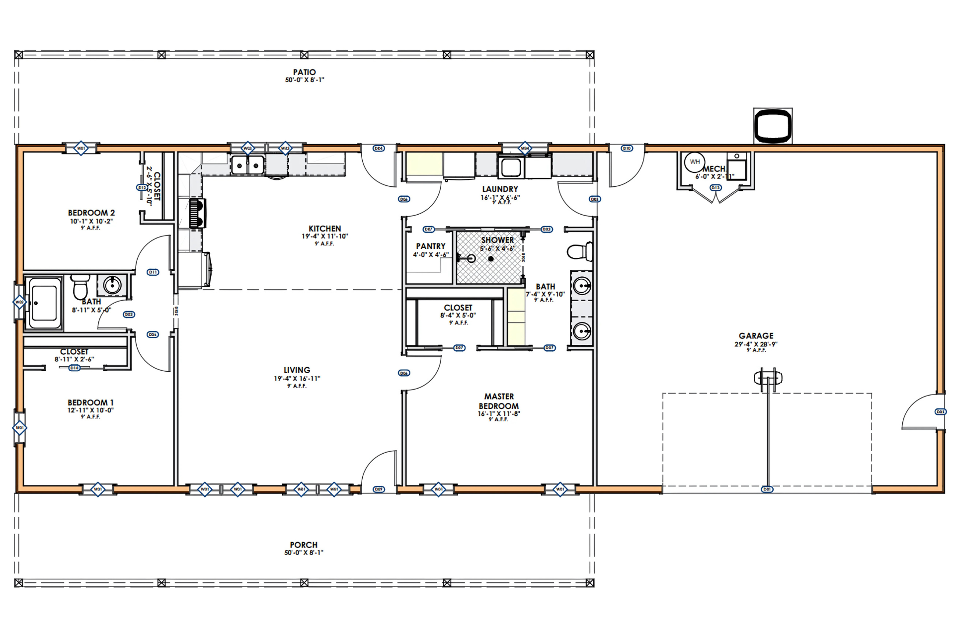
CDD-4103 Prairie Barndominium House Plan
DETAILS
HEATED SQ FT
First Floor:
1,500 SF
Total Heated Sq Ft:
1,500 SF
UNHEATED SQ FT
900 SF
Carport:None listed
3
2
1
900 SF
80'
30'
18'-3"
Concrete Slab
6:12
Post-Frame
CEILING HEIGHTS
9' A.F.F. (Above Finished Floor)
CDD-4103 Prairie Barndominium House Plan
- 1500 Heated Sq Ft
- 30x50 living space dimension
- 900 Sq Ft 2-car Garage
- 3 Bedrooms
- 2 Bathrooms
- Single story
- Open concept
- Mechanical room
- Front & rear porch
- 1500 spacious and cozy heated Sq Ft offering a perfect balance for living, relaxing, and entertaining.
- Generous space to park your cars and store everything from tools to outdoor gear in the 900 Sq ft 2-car garage.
- With 3 Bedrooms, enough room for family, guests, and a slice of privacy for everyone.
- The 2 bathrooms are designed for convenience, with extra space to keep morning routines hassle-free.
- Single Story for accessible and easy to navigate, and the open concept design seamlessly connects spaces where conversations and creativity flow.
- The mechanical room keeps things practical and organized, keeping your utilities in one neat spot.
- Front & rear porches are welcoming outdoor spaces to soak in sunrise, sunset, or a breath of fresh air.
What's included in CDD-4103
Cover Sheet
Detailed Floor Plan Dimensions
Four Elevations - Front, Back, Left Side, Right Side
Electrical Plan
Plumbing Plan
HVAC Plan
Roof Framing Plan
Foundation Plan
Wall Section
For more barndominium floor plans, check out our complete collection of 3-bedroom barndominium floor plans.
Need to make changes? Submit a modification request using the button that says Modify This Plan (below the Add To Cart Button). We will get you a free price quote within 72 hours
Please note all square footage are estimates.
What's Included
What's Included
Our house plan sets typically have the following details:
4 Elevations – Front, Back, Both Sides
Detailed Floor Plan Drawing
Electrical Plans with placements for HVAC
Plumbing Plans with Placements
Flooring Plan
Roof Plan
Foundation Plan
For more information on what's included and examples of what your plans will look like, go here -> https://barndominiumplans.com/pages/whats-included
Please Note: We work with many different draftspeople who work in many different ways. It should be noted that their plans may contain different details.Â
What's Not Included
What's Not Included
The following items are NOT included:
Architectural or Engineering Stamp. Our plans are engineering-ready! Can take them to a local engineer in your state.
Site Plan - We can provide this if needed for $300 additional.
Materials List - handled locally when required
Energy calculations - handled locally when required
Snow load calculations - handled locally when required
Delivery
Delivery
This plan is available as a digital product or printed + shipped.
If you select digital, the plan will be delivered to you via email as a PDF file, no matter what time it is.
If you select printed + shipped, your order will ship in 24x36 format within 1 business day of your order.
We ship from the midwest in order to serve the entire country within 3-5 business days!
Return policy
Return policy
All barndominium house plan purchases are FINAL. There are no exchanges or refunds due to the digital nature of the product. Please make sure that the plan you have selected is going to fit your needs.
PDF (Single Build) $849.99
DETAILS
HEATED SQ FT
First Floor:
1,500 SF
Total Heated Sq Ft:
1,500 SF
UNHEATED SQ FT
900 SF
Carport:None listed
3
2
1
900 SF
80'
30'
18'-3"
Concrete Slab
6:12
Post-Frame
CEILING HEIGHTS
9' A.F.F. (Above Finished Floor)
CDD-4103 Prairie Barndominium House Plan
- 1500 Heated Sq Ft
- 30x50 living space dimension
- 900 Sq Ft 2-car Garage
- 3 Bedrooms
- 2 Bathrooms
- Single story
- Open concept
- Mechanical room
- Front & rear porch
- 1500 spacious and cozy heated Sq Ft offering a perfect balance for living, relaxing, and entertaining.
- Generous space to park your cars and store everything from tools to outdoor gear in the 900 Sq ft 2-car garage.
- With 3 Bedrooms, enough room for family, guests, and a slice of privacy for everyone.
- The 2 bathrooms are designed for convenience, with extra space to keep morning routines hassle-free.
- Single Story for accessible and easy to navigate, and the open concept design seamlessly connects spaces where conversations and creativity flow.
- The mechanical room keeps things practical and organized, keeping your utilities in one neat spot.
- Front & rear porches are welcoming outdoor spaces to soak in sunrise, sunset, or a breath of fresh air.
What's included in CDD-4103
Cover Sheet
Detailed Floor Plan Dimensions
Four Elevations - Front, Back, Left Side, Right Side
Electrical Plan
Plumbing Plan
HVAC Plan
Roof Framing Plan
Foundation Plan
Wall Section
For more barndominium floor plans, check out our complete collection of 3-bedroom barndominium floor plans.
Need to make changes? Submit a modification request using the button that says Modify This Plan (below the Add To Cart Button). We will get you a free price quote within 72 hours
Please note all square footage are estimates.
What's Included
What's Included
Our house plan sets typically have the following details:
4 Elevations – Front, Back, Both Sides
Detailed Floor Plan Drawing
Electrical Plans with placements for HVAC
Plumbing Plans with Placements
Flooring Plan
Roof Plan
Foundation Plan
For more information on what's included and examples of what your plans will look like, go here -> https://barndominiumplans.com/pages/whats-included
Please Note: We work with many different draftspeople who work in many different ways. It should be noted that their plans may contain different details.Â
What's Not Included
What's Not Included
The following items are NOT included:
Architectural or Engineering Stamp. Our plans are engineering-ready! Can take them to a local engineer in your state.
Site Plan - We can provide this if needed for $300 additional.
Materials List - handled locally when required
Energy calculations - handled locally when required
Snow load calculations - handled locally when required
Delivery
Delivery
This plan is available as a digital product or printed + shipped.
If you select digital, the plan will be delivered to you via email as a PDF file, no matter what time it is.
If you select printed + shipped, your order will ship in 24x36 format within 1 business day of your order.
We ship from the midwest in order to serve the entire country within 3-5 business days!
Return policy
Return policy
All barndominium house plan purchases are FINAL. There are no exchanges or refunds due to the digital nature of the product. Please make sure that the plan you have selected is going to fit your needs.











Real Reviews, Real Experiences
How to Build Your Own Barndominium & 120+ House Plans

Just getting started on your build? Get the Barndominiums Made Easy Program.
- Choosing a selection results in a full page refresh.