Couldn't load pickup availability
Barndominium Plans
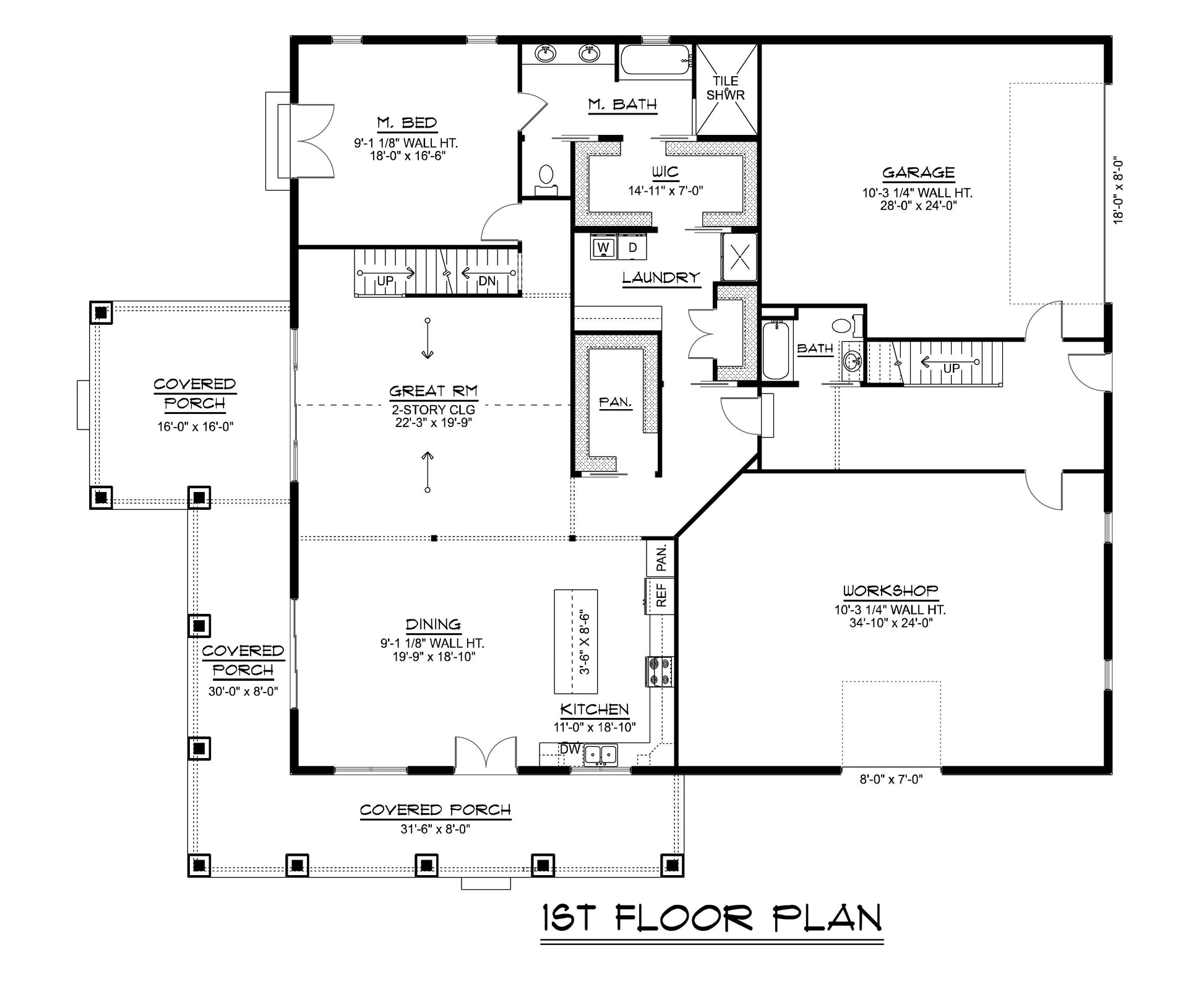
BG-20102 Jack Barndominium House Plan
DETAILS
HEATED SQ FT
First Floor:
2,144 SF
Second Floor:1,543 SF
Total Heated Sq Ft:3,687 SF
UNHEATED SQ FT
Second Floor 1,612 SF, Basement 2,150 SF, Garage 1,911 SF, Porch 851 SF = TOTAL 6,524 SF
Carport:None
3
3
2
1,911 SF
82'-10"
68'
30'-31"
Basement
4:12
Stick Frame
CEILING HEIGHTS
9'
BG-20102 Jack Barndominium House Plan
About this barndominium house plan:
- 3,687 Heated Sq Ft
- bedrooms
- 3 bathrooms
- Two Story
- Open Concept
- Loft
- Office
- Lounge
- Mechanical room
- Storage
- Front porch
- Covered porch
- 1,911 Sq Ft Garage
- This thoughtfully zoned residence spans 3,687 square feet of conditioned living space across two levels—balancing open flow with private retreat zones.
- Upstairs offers a flexible mix of private and semi-private spaces, including two bedrooms, a full bath, a loft for gathering, a dedicated office, a cozy lounge, and a walk-in storage room.
- The lower level includes a mechanical room and additional storage—ideal for systems access, seasonal gear, or future expansion.
- A shaded front porch anchors the entry sequence—welcoming guests while offering a transitional outdoor zone.
- This garage provides ample room for two vehicles plus workshop or storage space.
What's included in BG-20102:
Cover Sheet
Four Elevations (Front, Back, Left Side, Right Side)
Roof Plan
Dimensioned Floor Plan
Foundation Plan
Wall Sections
Electrical Plans
For more barndominium floor plans, check out our complete collection of 3-bedroom barndominium floor plans.
Need to make changes? Submit a modification request using the button that says Modify This Plan. We will get you a free price quote within 72 hours.
What's Typically Included
What's Typically Included
THE SPECIFC DETAILS OF WHAT'S INCLUDED ON THESE PLANS IS CONTAINED IN THE PRODUCT DESCRIPTION. PLEASE SCROLL UP AND YOU WILL FIND IT UNDER "WHAT'S INCLUDED"
Our house plan sets typically have the following details:
4 Elevations – Front, Back, Both Sides
Detailed Floor Plan Drawing
Electrical Plans with placements for HVAC
Plumbing Plans with Placements
Flooring Plan
Roof Plan
Foundation Plan
For more information on what's included and examples of what your plans will look like, go here -> https://barndominiumplans.com/pages/whats-included
Please Note: We work with many different draftspeople who work in many different ways. It should be noted that their plans may contain different details. THE SPECIFC DETAILS OF WHAT'S INCLUDED ON THESE PLANS IS CONTAINED IN THE PRODUCT DESCRIPTION. PLEASE SCROLL UP AND YOU WILL FIND IT UNDER "WHAT'S INCLUDED"
What's Not Included
What's Not Included
The following items are NOT included:
Architectural or Engineering Stamp. Our plans are engineering-ready! Can take them to a local engineer in your state.
Site Plan - We can provide this if needed for $300 additional.
Materials List - handled locally when required
Energy calculations - handled locally when required
Snow load calculations - handled locally when required
Delivery
Delivery
This plan is available as a digital product or printed + shipped.
If you select digital, the plan will be delivered to you via email as a PDF file, no matter what time it is.
If you select printed + shipped, your order will ship in 24x36 format within 1 business day of your order.
We ship from the midwest in order to serve the entire country within 3-5 business days!
Return policy
Return policy
All barndominium house plan purchases are FINAL. There are no exchanges or refunds due to the digital nature of the product. Please make sure that the plan you have selected is going to fit your needs.
PDF (Single Build) $1,450.00
DETAILS
HEATED SQ FT
First Floor:
2,144 SF
Second Floor:1,543 SF
Total Heated Sq Ft:3,687 SF
UNHEATED SQ FT
Second Floor 1,612 SF, Basement 2,150 SF, Garage 1,911 SF, Porch 851 SF = TOTAL 6,524 SF
Carport:None
3
3
2
1,911 SF
82'-10"
68'
30'-31"
Basement
4:12
Stick Frame
CEILING HEIGHTS
9'
BG-20102 Jack Barndominium House Plan
About this barndominium house plan:
- 3,687 Heated Sq Ft
- bedrooms
- 3 bathrooms
- Two Story
- Open Concept
- Loft
- Office
- Lounge
- Mechanical room
- Storage
- Front porch
- Covered porch
- 1,911 Sq Ft Garage
- This thoughtfully zoned residence spans 3,687 square feet of conditioned living space across two levels—balancing open flow with private retreat zones.
- Upstairs offers a flexible mix of private and semi-private spaces, including two bedrooms, a full bath, a loft for gathering, a dedicated office, a cozy lounge, and a walk-in storage room.
- The lower level includes a mechanical room and additional storage—ideal for systems access, seasonal gear, or future expansion.
- A shaded front porch anchors the entry sequence—welcoming guests while offering a transitional outdoor zone.
- This garage provides ample room for two vehicles plus workshop or storage space.
What's included in BG-20102:
Cover Sheet
Four Elevations (Front, Back, Left Side, Right Side)
Roof Plan
Dimensioned Floor Plan
Foundation Plan
Wall Sections
Electrical Plans
For more barndominium floor plans, check out our complete collection of 3-bedroom barndominium floor plans.
Need to make changes? Submit a modification request using the button that says Modify This Plan. We will get you a free price quote within 72 hours.
What's Typically Included
What's Typically Included
THE SPECIFC DETAILS OF WHAT'S INCLUDED ON THESE PLANS IS CONTAINED IN THE PRODUCT DESCRIPTION. PLEASE SCROLL UP AND YOU WILL FIND IT UNDER "WHAT'S INCLUDED"
Our house plan sets typically have the following details:
4 Elevations – Front, Back, Both Sides
Detailed Floor Plan Drawing
Electrical Plans with placements for HVAC
Plumbing Plans with Placements
Flooring Plan
Roof Plan
Foundation Plan
For more information on what's included and examples of what your plans will look like, go here -> https://barndominiumplans.com/pages/whats-included
Please Note: We work with many different draftspeople who work in many different ways. It should be noted that their plans may contain different details. THE SPECIFC DETAILS OF WHAT'S INCLUDED ON THESE PLANS IS CONTAINED IN THE PRODUCT DESCRIPTION. PLEASE SCROLL UP AND YOU WILL FIND IT UNDER "WHAT'S INCLUDED"
What's Not Included
What's Not Included
The following items are NOT included:
Architectural or Engineering Stamp. Our plans are engineering-ready! Can take them to a local engineer in your state.
Site Plan - We can provide this if needed for $300 additional.
Materials List - handled locally when required
Energy calculations - handled locally when required
Snow load calculations - handled locally when required
Delivery
Delivery
This plan is available as a digital product or printed + shipped.
If you select digital, the plan will be delivered to you via email as a PDF file, no matter what time it is.
If you select printed + shipped, your order will ship in 24x36 format within 1 business day of your order.
We ship from the midwest in order to serve the entire country within 3-5 business days!
Return policy
Return policy
All barndominium house plan purchases are FINAL. There are no exchanges or refunds due to the digital nature of the product. Please make sure that the plan you have selected is going to fit your needs.

Real Reviews, Real Experiences
How to Build Your Own Barndominium & 120+ House Plans
Just getting started on your build? Get the Barndominiums Made Easy Program.
- Choosing a selection results in a full page refresh.



