Couldn't load pickup availability
Barndominium Plans
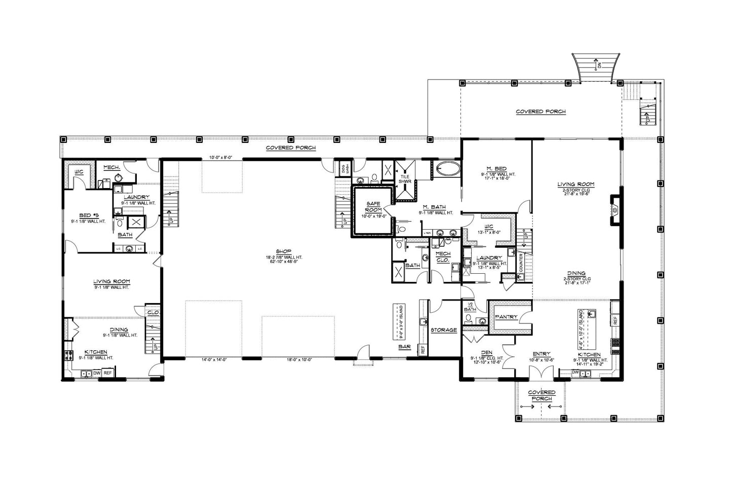
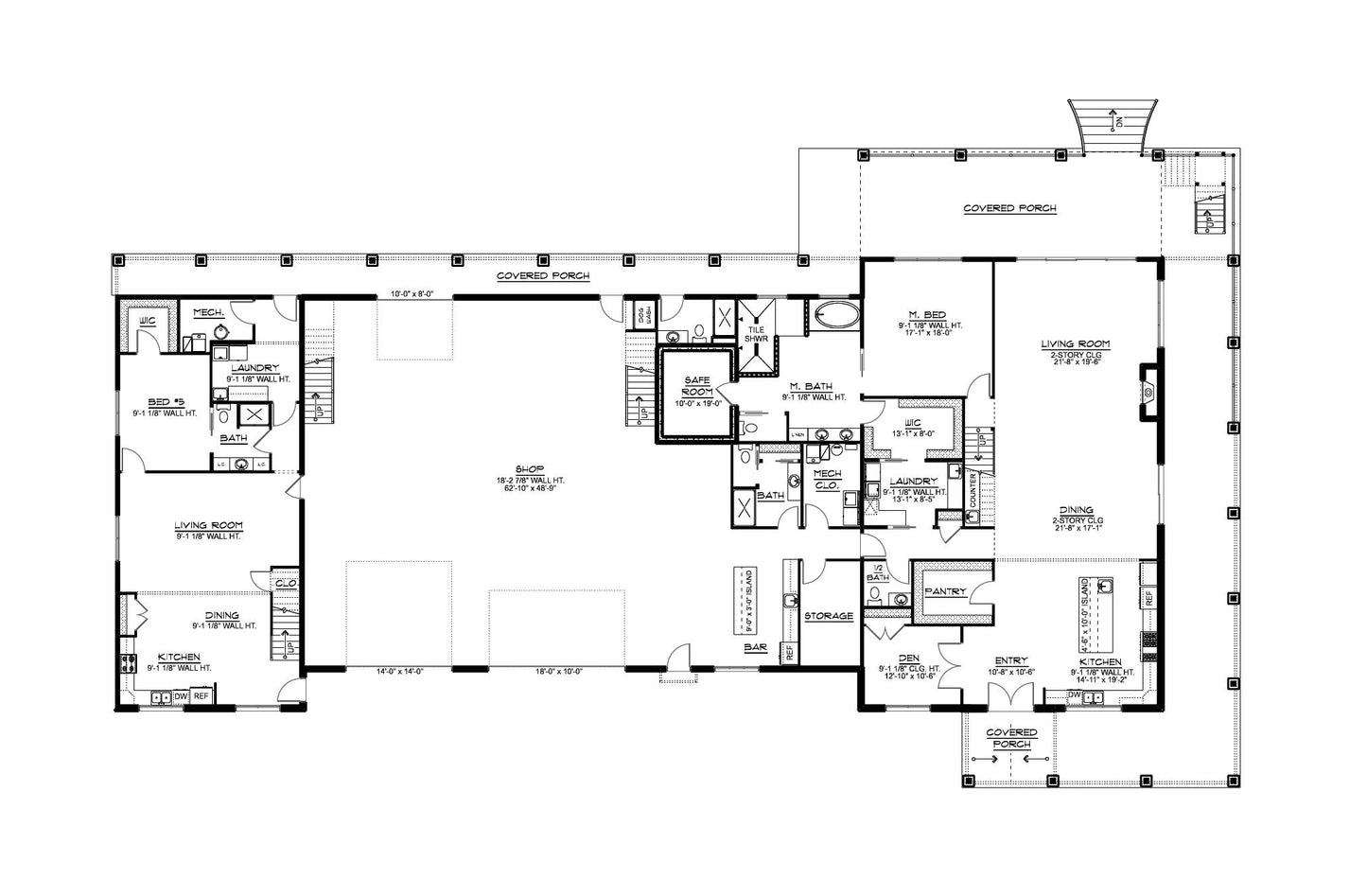
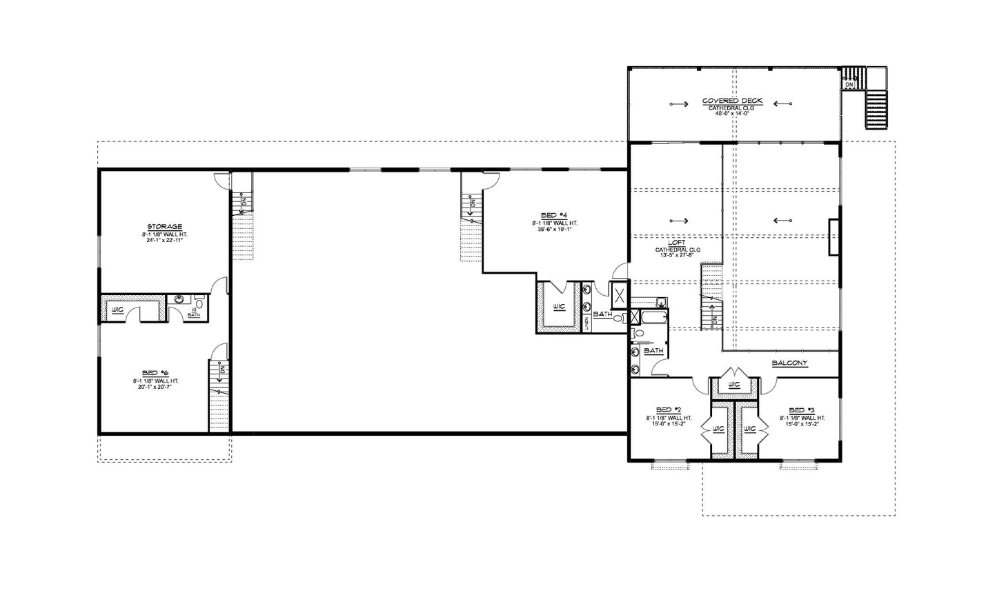
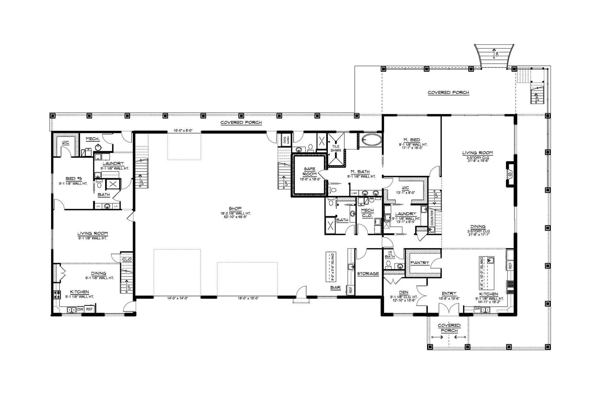
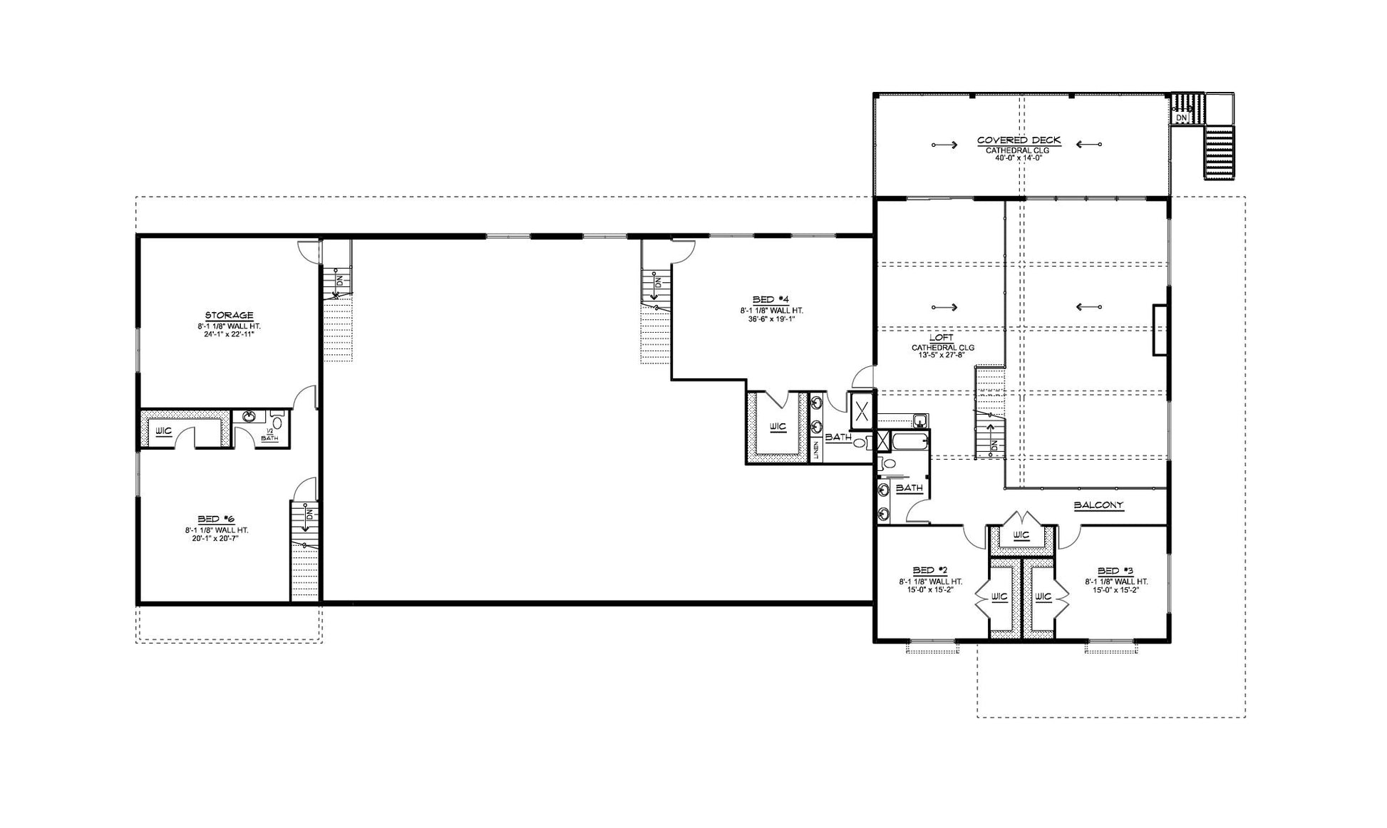
BG-20086 Albany Barndominium House Plan
DETAILS
HEATED SQ FT
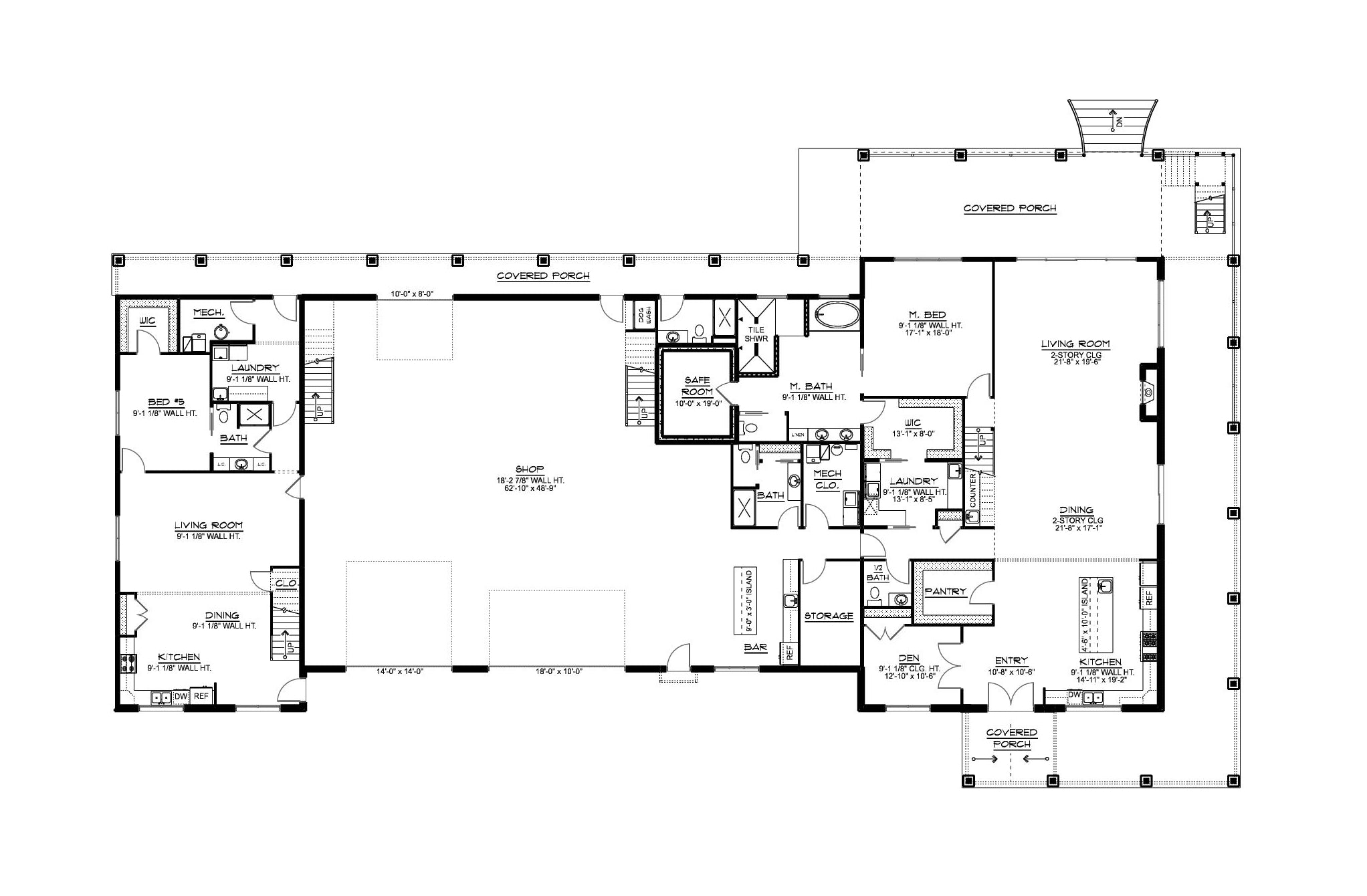
First Floor:
4,312 SF
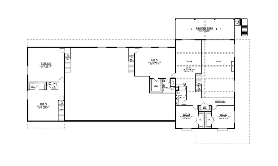
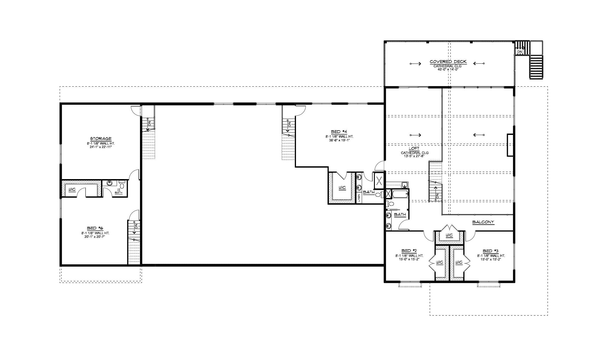
Second Floor:3,469 SF
Total Heated Sq Ft:7,781 SF
UNHEATED SQ FT
Garage 3,162 SF, Deck 560 SF, Porch 2,015 SF = TOTAL 5,737 SF
Carport:None
6
6
2
3,162 SF
149'
84'
30'-9"
Concrete Slab
05:12
Stick Frame
CEILING HEIGHTS
9'
BG-20086 Albany Barndominium House Plan
About this barndominium house plan:
- 7,781 Heated Sq Ft
- 6 bedrooms
- 6.2 bathrooms
- Two Story
- Loft
- Open Concept
- Safe room
- Den
- Storage rooms
- Two separate living areas
- Covered porch
- Deck
- 3,750 Sq Ft Garage
- Expansive and thoughtfully designed, this two-story residence spans 7,781 heated square feet, offering six bedrooms and six full baths plus two half baths. A true estate-style layout built for comfort, privacy, and flexibility.
- Two distinct living areas—each with its own kitchen, dining space, and bedrooms—are positioned on opposite sides of the garage, ideal for multi-generational living, guest accommodations, or private retreats.
- The master bedroom is a sanctuary unto itself, complete with a luxurious ensuite and discreet access to a built-in safe room—adding peace of mind without compromising elegance.
- Strategically placed storage rooms throughout the home offer practical solutions for seasonal items, household essentials, and lifestyle gear—keeping clutter out of sight and life beautifully organized.
- A covered porch begins at the front entry and gracefully wraps around the side and rear of the home, offering shaded outdoor living and seamless transitions between indoor and alfresco spaces.
- The rear deck extends your living space into the open air—perfect for entertaining, relaxing, or taking in the surrounding views.
- A substantial 3,750 sq ft garage accommodates three vehicles with ease, while leaving ample room for tools, gear, or workshop potential. A dream setup for car enthusiasts or active households.
What's included in BG-20086:
Cover Sheet
Four Elevations (Front, Back, Left Side, Right Side)
Roof Plan
Dimensioned Floor Plan
Foundation Plan
Wall Sections
Electrical Plans
For more barndominium floor plans, check out our complete collection of large barndominium floor plans.
Need to make changes? Submit a modification request using the button that says Modify This Plan (below the Add To Cart Button). We will get you a free price quote within 72 hours.
What's Typically Included
What's Typically Included
THE SPECIFC DETAILS OF WHAT'S INCLUDED ON THESE PLANS IS CONTAINED IN THE PRODUCT DESCRIPTION. PLEASE SCROLL UP AND YOU WILL FIND IT UNDER "WHAT'S INCLUDED"
Our house plan sets typically have the following details:
4 Elevations – Front, Back, Both Sides
Detailed Floor Plan Drawing
Electrical Plans with placements for HVAC
Plumbing Plans with Placements
Flooring Plan
Roof Plan
Foundation Plan
For more information on what's included and examples of what your plans will look like, go here -> https://barndominiumplans.com/pages/whats-included
Please Note: We work with many different draftspeople who work in many different ways. It should be noted that their plans may contain different details. THE SPECIFC DETAILS OF WHAT'S INCLUDED ON THESE PLANS IS CONTAINED IN THE PRODUCT DESCRIPTION. PLEASE SCROLL UP AND YOU WILL FIND IT UNDER "WHAT'S INCLUDED"
What's Not Included
What's Not Included
The following items are NOT included:
Architectural or Engineering Stamp. Our plans are engineering-ready! Can take them to a local engineer in your state.
Site Plan - We can provide this if needed for $300 additional.
Materials List - handled locally when required
Energy calculations - handled locally when required
Snow load calculations - handled locally when required
Delivery
Delivery
This plan is available as a digital product or printed + shipped.
If you select digital, the plan will be delivered to you via email as a PDF file, no matter what time it is.
If you select printed + shipped, your order will ship in 24x36 format within 1 business day of your order.
We ship from the midwest in order to serve the entire country within 3-5 business days!
Return policy
Return policy
All barndominium house plan purchases are FINAL. There are no exchanges or refunds due to the digital nature of the product. Please make sure that the plan you have selected is going to fit your needs.
PDF (Single Build) $1,750.00
DETAILS
HEATED SQ FT
First Floor:
4,312 SF
Second Floor:3,469 SF
Total Heated Sq Ft:7,781 SF
UNHEATED SQ FT
Garage 3,162 SF, Deck 560 SF, Porch 2,015 SF = TOTAL 5,737 SF
Carport:None
6
6
2
3,162 SF
149'
84'
30'-9"
Concrete Slab
05:12
Stick Frame
CEILING HEIGHTS
9'
BG-20086 Albany Barndominium House Plan
About this barndominium house plan:
- 7,781 Heated Sq Ft
- 6 bedrooms
- 6.2 bathrooms
- Two Story
- Loft
- Open Concept
- Safe room
- Den
- Storage rooms
- Two separate living areas
- Covered porch
- Deck
- 3,750 Sq Ft Garage
- Expansive and thoughtfully designed, this two-story residence spans 7,781 heated square feet, offering six bedrooms and six full baths plus two half baths. A true estate-style layout built for comfort, privacy, and flexibility.
- Two distinct living areas—each with its own kitchen, dining space, and bedrooms—are positioned on opposite sides of the garage, ideal for multi-generational living, guest accommodations, or private retreats.
- The master bedroom is a sanctuary unto itself, complete with a luxurious ensuite and discreet access to a built-in safe room—adding peace of mind without compromising elegance.
- Strategically placed storage rooms throughout the home offer practical solutions for seasonal items, household essentials, and lifestyle gear—keeping clutter out of sight and life beautifully organized.
- A covered porch begins at the front entry and gracefully wraps around the side and rear of the home, offering shaded outdoor living and seamless transitions between indoor and alfresco spaces.
- The rear deck extends your living space into the open air—perfect for entertaining, relaxing, or taking in the surrounding views.
- A substantial 3,750 sq ft garage accommodates three vehicles with ease, while leaving ample room for tools, gear, or workshop potential. A dream setup for car enthusiasts or active households.
What's included in BG-20086:
Cover Sheet
Four Elevations (Front, Back, Left Side, Right Side)
Roof Plan
Dimensioned Floor Plan
Foundation Plan
Wall Sections
Electrical Plans
For more barndominium floor plans, check out our complete collection of large barndominium floor plans.
Need to make changes? Submit a modification request using the button that says Modify This Plan (below the Add To Cart Button). We will get you a free price quote within 72 hours.
What's Typically Included
What's Typically Included
THE SPECIFC DETAILS OF WHAT'S INCLUDED ON THESE PLANS IS CONTAINED IN THE PRODUCT DESCRIPTION. PLEASE SCROLL UP AND YOU WILL FIND IT UNDER "WHAT'S INCLUDED"
Our house plan sets typically have the following details:
4 Elevations – Front, Back, Both Sides
Detailed Floor Plan Drawing
Electrical Plans with placements for HVAC
Plumbing Plans with Placements
Flooring Plan
Roof Plan
Foundation Plan
For more information on what's included and examples of what your plans will look like, go here -> https://barndominiumplans.com/pages/whats-included
Please Note: We work with many different draftspeople who work in many different ways. It should be noted that their plans may contain different details. THE SPECIFC DETAILS OF WHAT'S INCLUDED ON THESE PLANS IS CONTAINED IN THE PRODUCT DESCRIPTION. PLEASE SCROLL UP AND YOU WILL FIND IT UNDER "WHAT'S INCLUDED"
What's Not Included
What's Not Included
The following items are NOT included:
Architectural or Engineering Stamp. Our plans are engineering-ready! Can take them to a local engineer in your state.
Site Plan - We can provide this if needed for $300 additional.
Materials List - handled locally when required
Energy calculations - handled locally when required
Snow load calculations - handled locally when required
Delivery
Delivery
This plan is available as a digital product or printed + shipped.
If you select digital, the plan will be delivered to you via email as a PDF file, no matter what time it is.
If you select printed + shipped, your order will ship in 24x36 format within 1 business day of your order.
We ship from the midwest in order to serve the entire country within 3-5 business days!
Return policy
Return policy
All barndominium house plan purchases are FINAL. There are no exchanges or refunds due to the digital nature of the product. Please make sure that the plan you have selected is going to fit your needs.

































Real Reviews, Real Experiences
How to Build Your Own Barndominium & 120+ House Plans

Just getting started on your build? Get the Barndominiums Made Easy Program.
- Choosing a selection results in a full page refresh.