Couldn't load pickup availability
Barndominium Plans
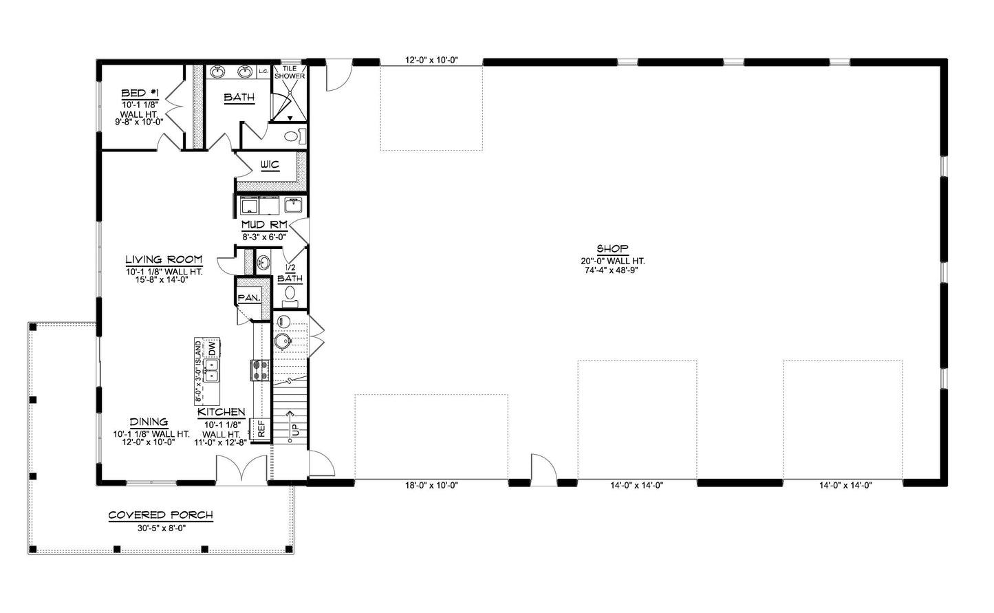
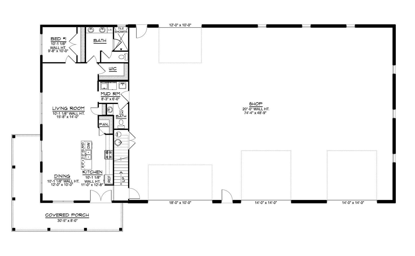
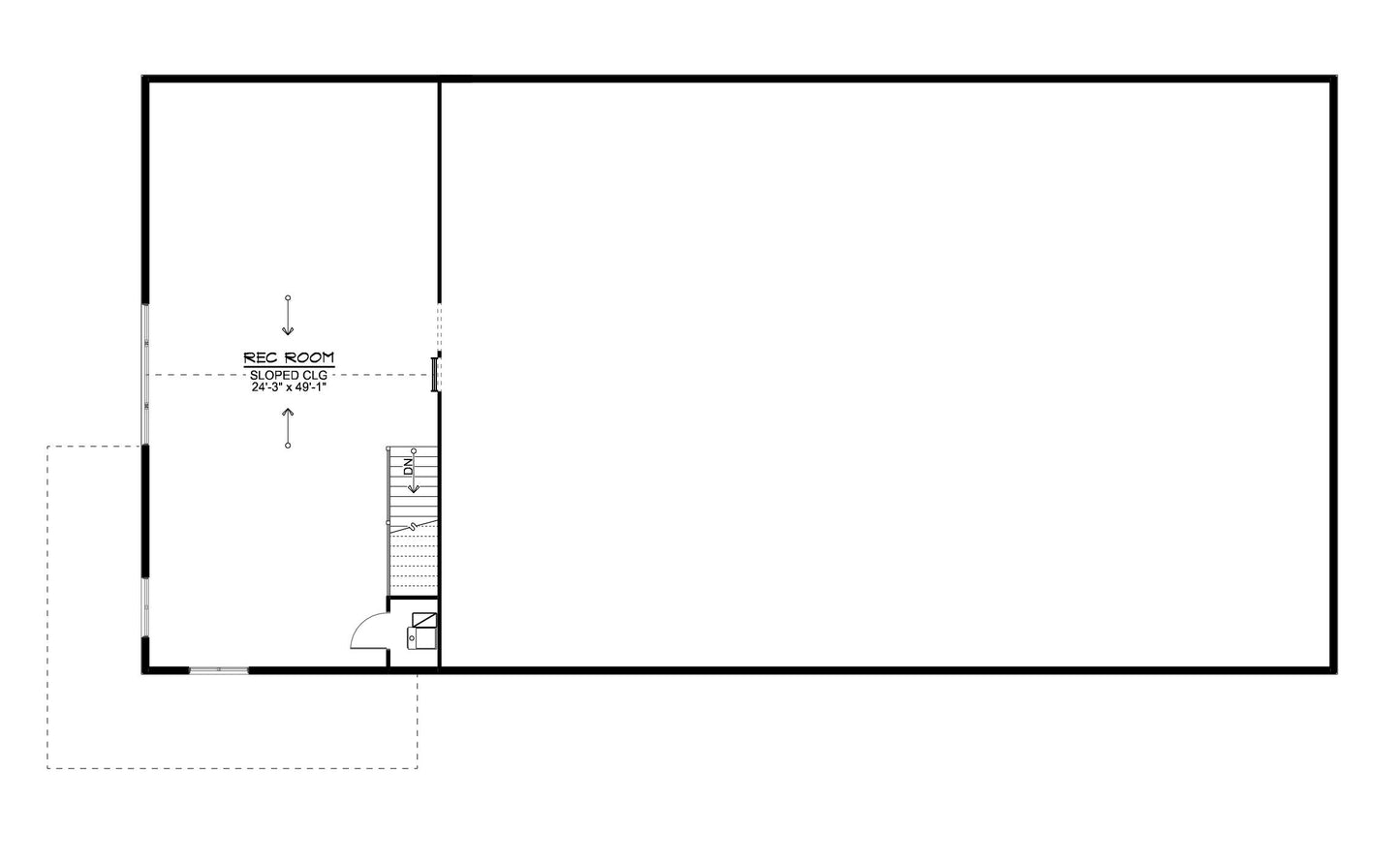
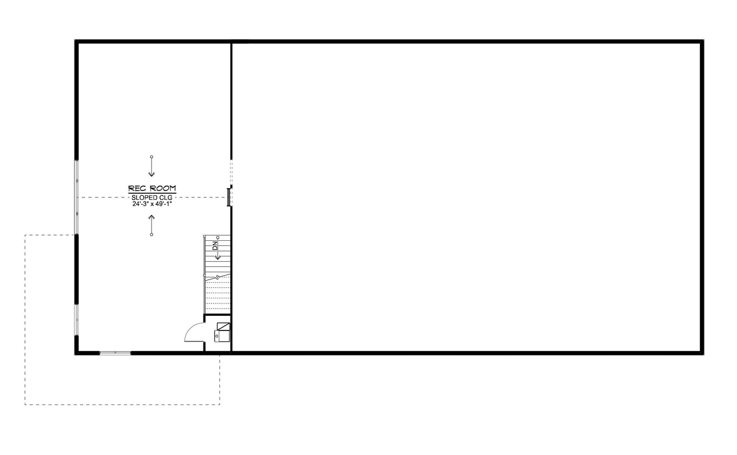
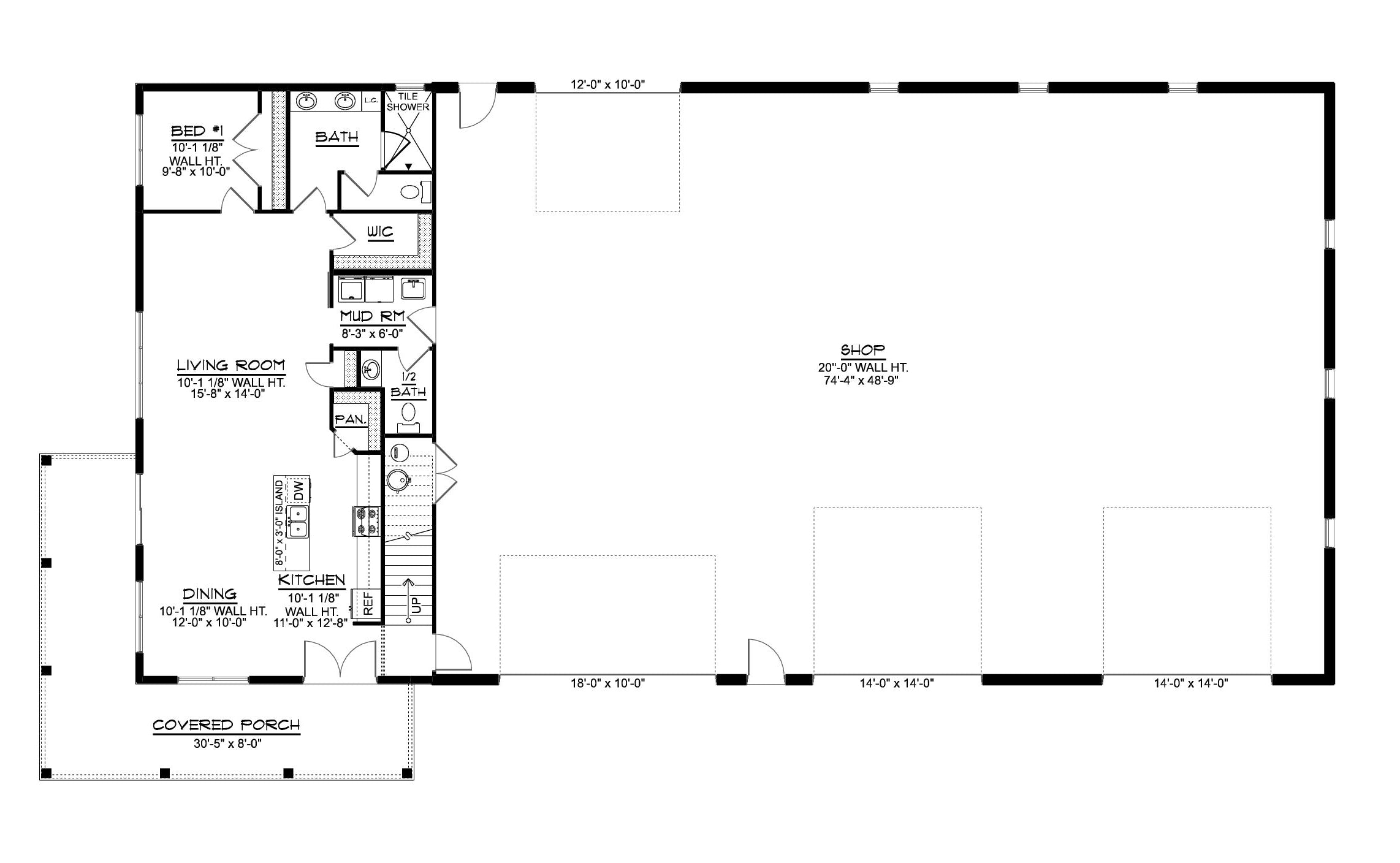
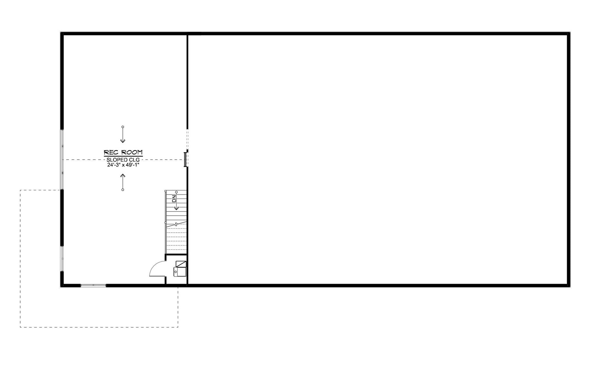
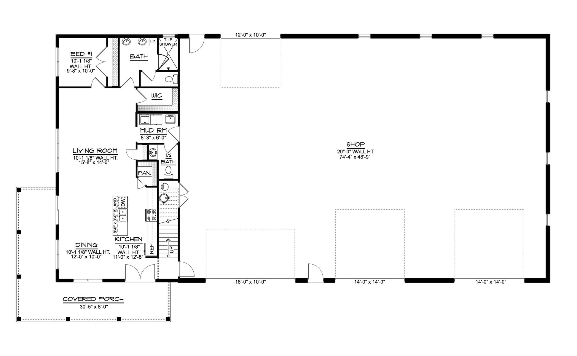
BG-20085 Kinsley Barndominium House Plan
DETAILS
HEATED SQ FT
First Floor:
1,250 SF
Second Floor:1,196 SF
Total Heated Sq Ft:2,446 SF
UNHEATED SQ FT
Garage 3,750 SF, Deck 400 SF, Patio 40 SF = TOTAL 4,550 SF
Carport:None
1
1
2
3,750 SF
108'
58'
28'-10"
Concrete Slab
04:12
Stick Frame
CEILING HEIGHTS
10'
BG-20085 Kinsley Barndominium House Plan
About this barndominium house plan:
- 2,446 Heated Sq Ft
- 1 bedrooms
- 1.1 bathrooms
- Two Story
- Open Concept
- Mud room
- Rec room
- Covered porch
- 3,750 Sq Ft Garage
- This two-story home offers 2,446 heated square feet of thoughtfully arranged space, with one bedroom and one and a half baths. Ideal for solo living, creative couples, or those seeking a flexible layout with room to entertain.
- The main level is dedicated to everyday comfort—an open living area that invites relaxation, conversation, and seamless flow between spaces. Upstairs, a spacious recreation room adds a playful twist.
- Tucked just off the entry, the mudroom offers practical storage and a clean transition from outdoors to in—perfect for keeping things tidy and organized.
- A standout feature: the massive 3,750 sq ft garage accommodates up to four vehicles with ease. Whether you're a car enthusiast, gear collector, or need space for a workshop, this garage delivers unmatched utility.
What's included in BG-20085:
Cover Sheet
Four Elevations (Front, Back, Left Side, Right Side)
Roof Plan
Dimensioned Floor Plan
Foundation Plan
Wall Sections
Electrical Plans
For more barndominium floor plans, check out our complete collection of 1 bedroom barndominum floor plans.
Need to make changes? Submit a modification request using the button that says Modify This Plan (below the Add To Cart Button). We will get you a free price quote within 72 hours.
What's Typically Included
What's Typically Included
THE SPECIFC DETAILS OF WHAT'S INCLUDED ON THESE PLANS IS CONTAINED IN THE PRODUCT DESCRIPTION. PLEASE SCROLL UP AND YOU WILL FIND IT UNDER "WHAT'S INCLUDED"
Our house plan sets typically have the following details:
4 Elevations – Front, Back, Both Sides
Detailed Floor Plan Drawing
Electrical Plans with placements for HVAC
Plumbing Plans with Placements
Flooring Plan
Roof Plan
Foundation Plan
For more information on what's included and examples of what your plans will look like, go here -> https://barndominiumplans.com/pages/whats-included
Please Note: We work with many different draftspeople who work in many different ways. It should be noted that their plans may contain different details. THE SPECIFC DETAILS OF WHAT'S INCLUDED ON THESE PLANS IS CONTAINED IN THE PRODUCT DESCRIPTION. PLEASE SCROLL UP AND YOU WILL FIND IT UNDER "WHAT'S INCLUDED"
What's Not Included
What's Not Included
The following items are NOT included:
Architectural or Engineering Stamp. Our plans are engineering-ready! Can take them to a local engineer in your state.
Site Plan - We can provide this if needed for $300 additional.
Materials List - handled locally when required
Energy calculations - handled locally when required
Snow load calculations - handled locally when required
Delivery
Delivery
This plan is available as a digital product or printed + shipped.
If you select digital, the plan will be delivered to you via email as a PDF file, no matter what time it is.
If you select printed + shipped, your order will ship in 24x36 format within 1 business day of your order.
We ship from the midwest in order to serve the entire country within 3-5 business days!
Return policy
Return policy
All barndominium house plan purchases are FINAL. There are no exchanges or refunds due to the digital nature of the product. Please make sure that the plan you have selected is going to fit your needs.
PDF (Single Build) $1,250.00
DETAILS
HEATED SQ FT
First Floor:
1,250 SF
Second Floor:1,196 SF
Total Heated Sq Ft:2,446 SF
UNHEATED SQ FT
Garage 3,750 SF, Deck 400 SF, Patio 40 SF = TOTAL 4,550 SF
Carport:None
1
1
2
3,750 SF
108'
58'
28'-10"
Concrete Slab
04:12
Stick Frame
CEILING HEIGHTS
10'
BG-20085 Kinsley Barndominium House Plan
About this barndominium house plan:
- 2,446 Heated Sq Ft
- 1 bedrooms
- 1.1 bathrooms
- Two Story
- Open Concept
- Mud room
- Rec room
- Covered porch
- 3,750 Sq Ft Garage
- This two-story home offers 2,446 heated square feet of thoughtfully arranged space, with one bedroom and one and a half baths. Ideal for solo living, creative couples, or those seeking a flexible layout with room to entertain.
- The main level is dedicated to everyday comfort—an open living area that invites relaxation, conversation, and seamless flow between spaces. Upstairs, a spacious recreation room adds a playful twist.
- Tucked just off the entry, the mudroom offers practical storage and a clean transition from outdoors to in—perfect for keeping things tidy and organized.
- A standout feature: the massive 3,750 sq ft garage accommodates up to four vehicles with ease. Whether you're a car enthusiast, gear collector, or need space for a workshop, this garage delivers unmatched utility.
What's included in BG-20085:
Cover Sheet
Four Elevations (Front, Back, Left Side, Right Side)
Roof Plan
Dimensioned Floor Plan
Foundation Plan
Wall Sections
Electrical Plans
For more barndominium floor plans, check out our complete collection of 1 bedroom barndominum floor plans.
Need to make changes? Submit a modification request using the button that says Modify This Plan (below the Add To Cart Button). We will get you a free price quote within 72 hours.
What's Typically Included
What's Typically Included
THE SPECIFC DETAILS OF WHAT'S INCLUDED ON THESE PLANS IS CONTAINED IN THE PRODUCT DESCRIPTION. PLEASE SCROLL UP AND YOU WILL FIND IT UNDER "WHAT'S INCLUDED"
Our house plan sets typically have the following details:
4 Elevations – Front, Back, Both Sides
Detailed Floor Plan Drawing
Electrical Plans with placements for HVAC
Plumbing Plans with Placements
Flooring Plan
Roof Plan
Foundation Plan
For more information on what's included and examples of what your plans will look like, go here -> https://barndominiumplans.com/pages/whats-included
Please Note: We work with many different draftspeople who work in many different ways. It should be noted that their plans may contain different details. THE SPECIFC DETAILS OF WHAT'S INCLUDED ON THESE PLANS IS CONTAINED IN THE PRODUCT DESCRIPTION. PLEASE SCROLL UP AND YOU WILL FIND IT UNDER "WHAT'S INCLUDED"
What's Not Included
What's Not Included
The following items are NOT included:
Architectural or Engineering Stamp. Our plans are engineering-ready! Can take them to a local engineer in your state.
Site Plan - We can provide this if needed for $300 additional.
Materials List - handled locally when required
Energy calculations - handled locally when required
Snow load calculations - handled locally when required
Delivery
Delivery
This plan is available as a digital product or printed + shipped.
If you select digital, the plan will be delivered to you via email as a PDF file, no matter what time it is.
If you select printed + shipped, your order will ship in 24x36 format within 1 business day of your order.
We ship from the midwest in order to serve the entire country within 3-5 business days!
Return policy
Return policy
All barndominium house plan purchases are FINAL. There are no exchanges or refunds due to the digital nature of the product. Please make sure that the plan you have selected is going to fit your needs.












Real Reviews, Real Experiences
How to Build Your Own Barndominium & 120+ House Plans

Just getting started on your build? Get the Barndominiums Made Easy Program.
- Choosing a selection results in a full page refresh.