Couldn't load pickup availability
Barndominium Plans
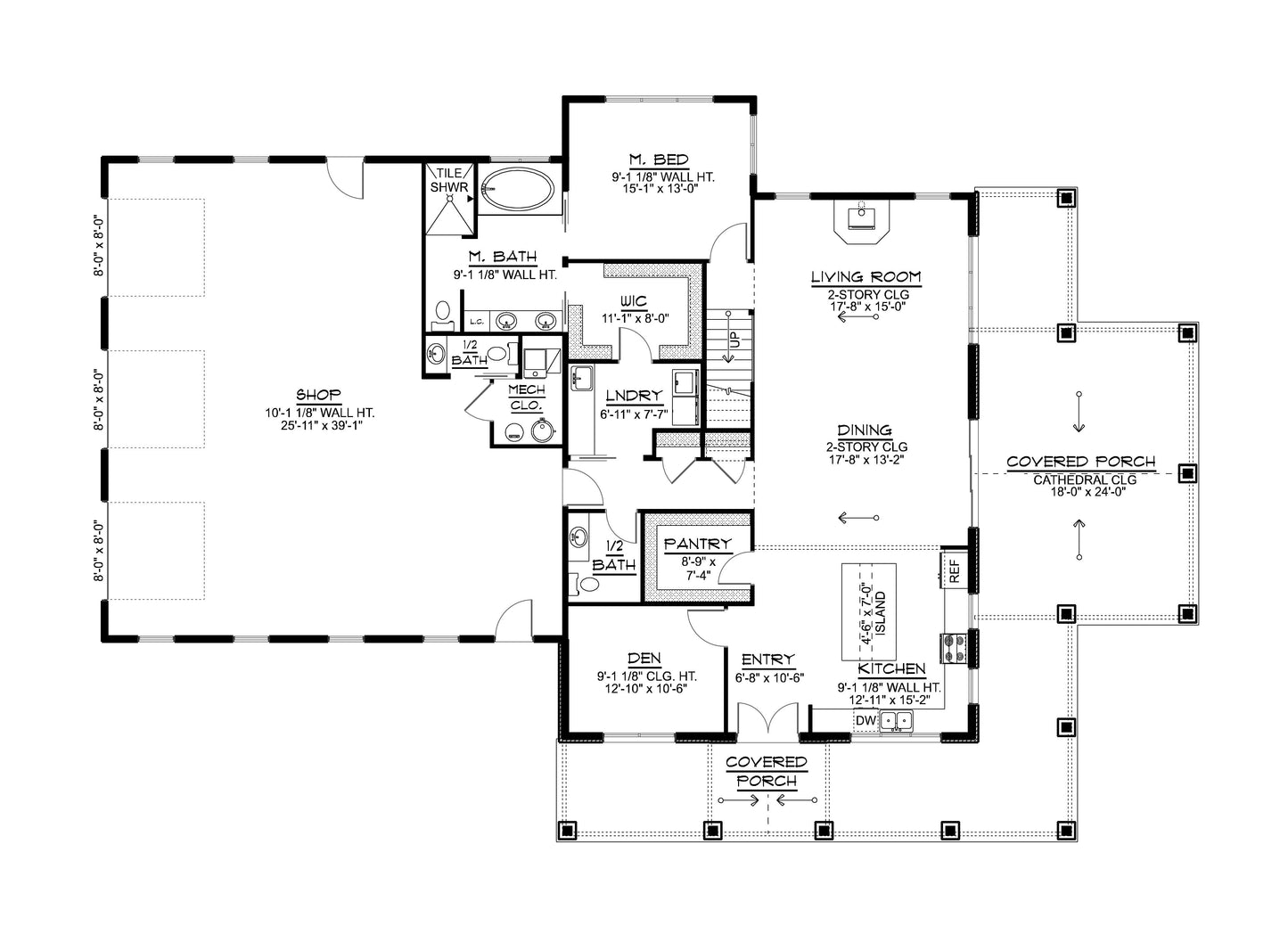
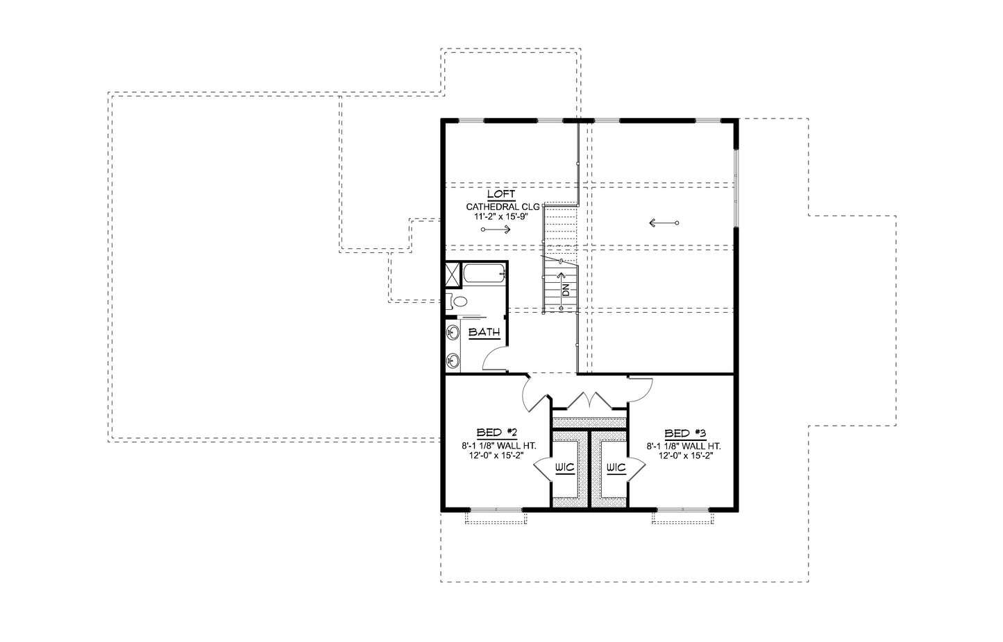
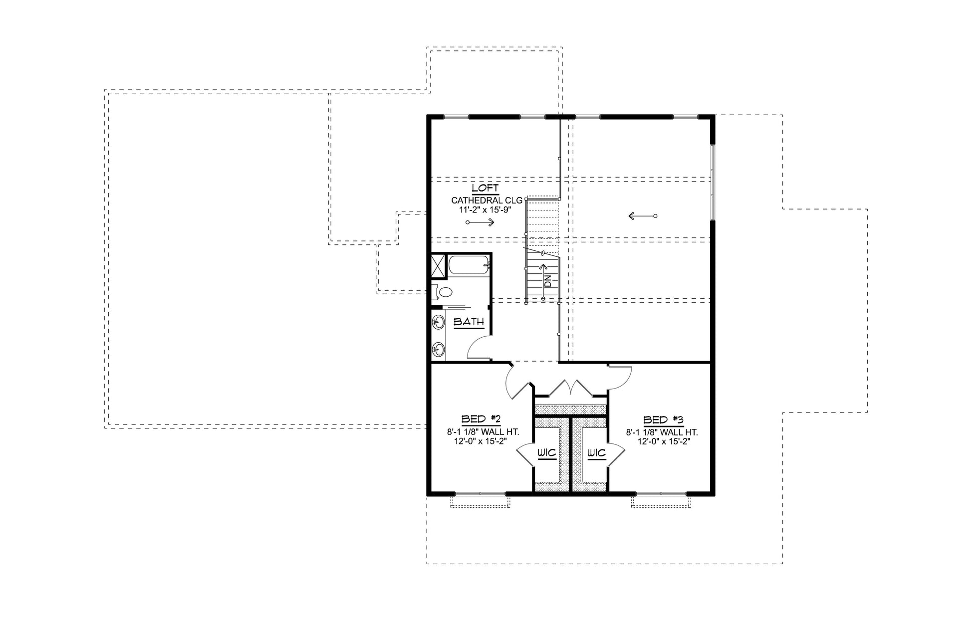
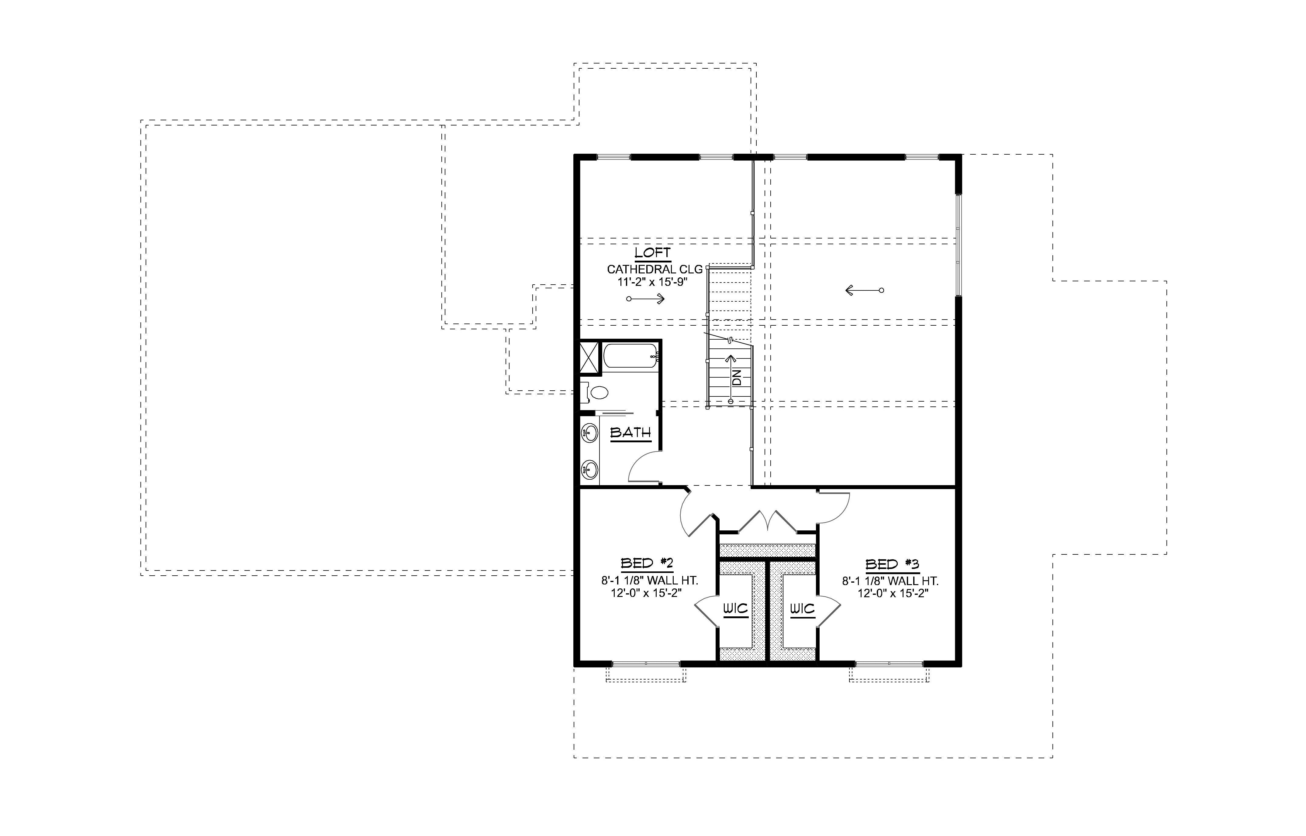
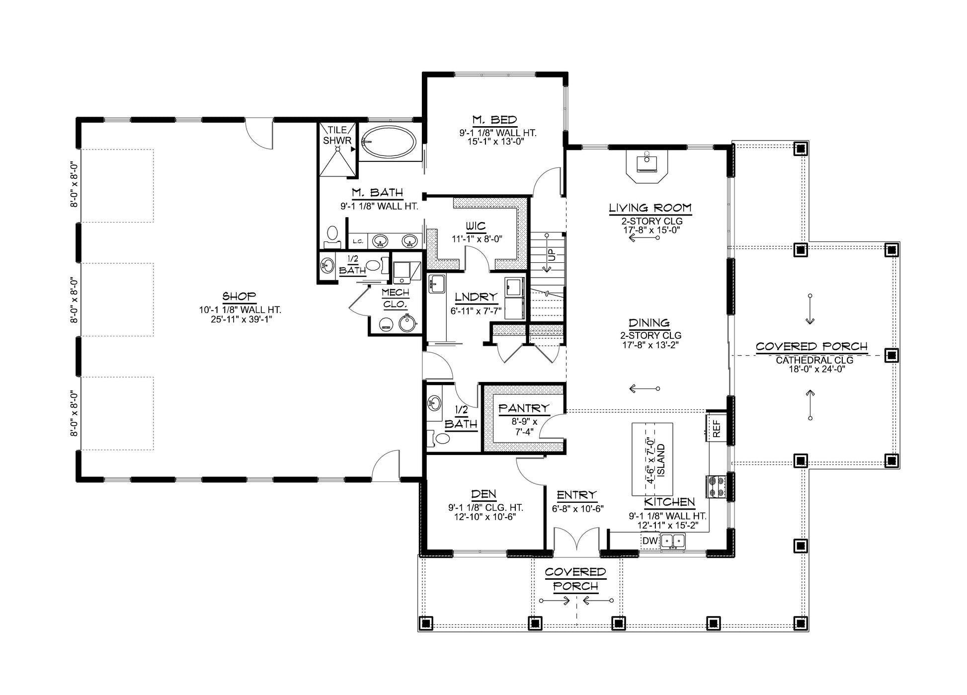
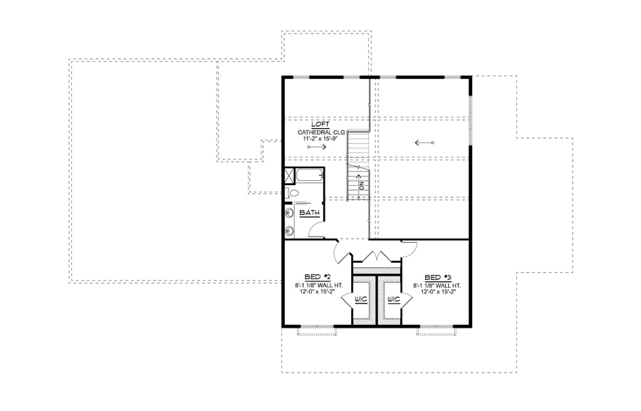
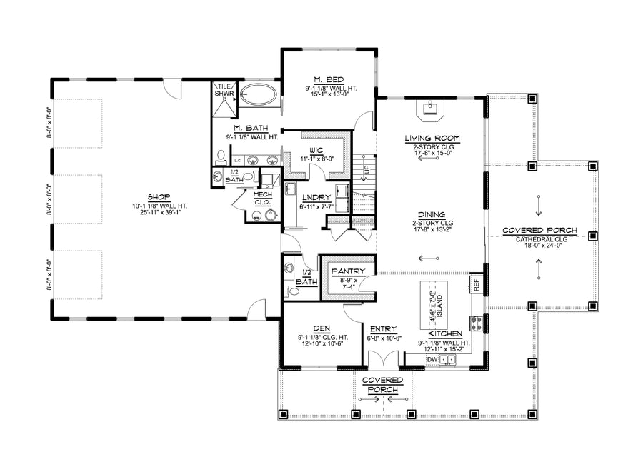
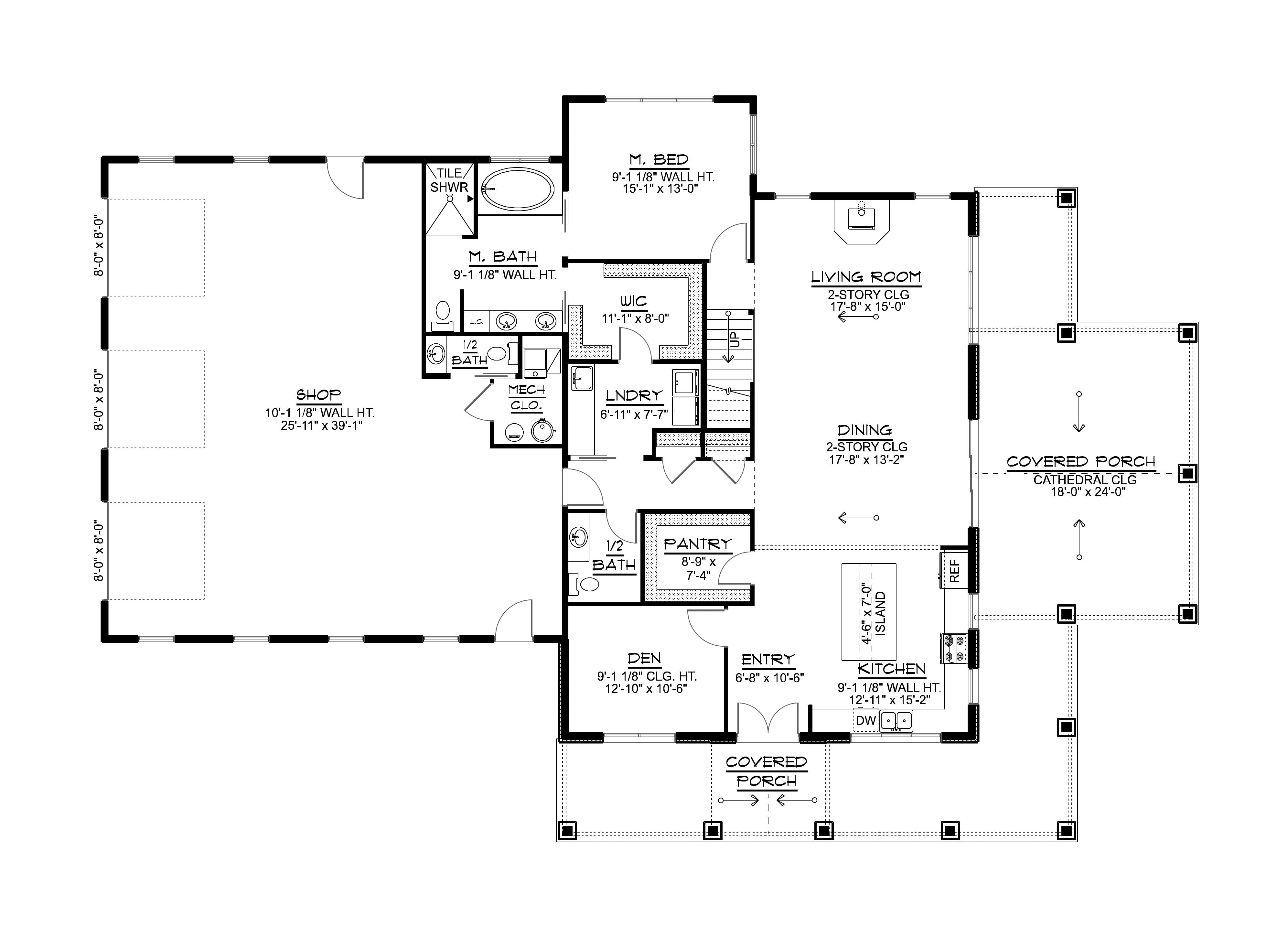
BG-20083 Devon Barndominium House Plan
DETAILS
HEATED SQ FT
First Floor:
1,829 SF
Second Floor:954 SF
Total Heated Sq Ft:2,783 SF
UNHEATED SQ FT
Garage 1,363 SF, Porch 927 SF = TOTAL 2,290 SF
Carport:None
3
2
2
1,363 SF
90'
61'
28'-8"
Concrete Slab
07:12
Stick Frame
CEILING HEIGHTS
9'
BG-20083 Devon Barndominium House Plan
About this barndominium house plan:
- 2,783 Heated Sq Ft
- 3 bedroom
- 2.2 bathrooms
- Two Story
- Open Concept
- Loft
- Den
- Covered porch
- 1,361 Sq Ft Garage
- This two-story layout spans 2,783 square feet of conditioned space—offering three bedrooms, two full baths, and two half baths, designed for comfort, flexibility, and everyday ease.
- A dedicated den provides a quiet space near the main living areas—ideal for work or reading—while the upstairs loft adds a flexible zone for play, media, or creative use.
- A covered porch wraps from the front to the side of the home—creating a welcoming entry and generous outdoor space for relaxing or entertaining in any season.
- This spacious three-car garage includes a convenient half bath and mechanical closet—perfect for workshop needs, gear storage, or seamless transitions from work to home.
What's included in BG-20083:
Cover Sheet
Four Elevations (Front, Back, Left Side, Right Side)
Roof Plan
Dimensioned Floor Plan
Foundation Plan
Wall Sections
Electrical Plans
For more barndominium floor plans, check out our complete collection of 3-bedroom barndominium floor plans.
Need to make changes? Submit a modification request using the button that says Modify This Plan (below the Add To Cart Button). We will get you a free price quote within 72 hours.
What's Typically Included
What's Typically Included
THE SPECIFC DETAILS OF WHAT'S INCLUDED ON THESE PLANS IS CONTAINED IN THE PRODUCT DESCRIPTION. PLEASE SCROLL UP AND YOU WILL FIND IT UNDER "WHAT'S INCLUDED"
Our house plan sets typically have the following details:
4 Elevations – Front, Back, Both Sides
Detailed Floor Plan Drawing
Electrical Plans with placements for HVAC
Plumbing Plans with Placements
Flooring Plan
Roof Plan
Foundation Plan
For more information on what's included and examples of what your plans will look like, go here -> https://barndominiumplans.com/pages/whats-included
Please Note: We work with many different draftspeople who work in many different ways. It should be noted that their plans may contain different details. THE SPECIFC DETAILS OF WHAT'S INCLUDED ON THESE PLANS IS CONTAINED IN THE PRODUCT DESCRIPTION. PLEASE SCROLL UP AND YOU WILL FIND IT UNDER "WHAT'S INCLUDED"
What's Not Included
What's Not Included
The following items are NOT included:
Architectural or Engineering Stamp. Our plans are engineering-ready! Can take them to a local engineer in your state.
Site Plan - We can provide this if needed for $300 additional.
Materials List - handled locally when required
Energy calculations - handled locally when required
Snow load calculations - handled locally when required
Delivery
Delivery
This plan is available as a digital product or printed + shipped.
If you select digital, the plan will be delivered to you via email as a PDF file, no matter what time it is.
If you select printed + shipped, your order will ship in 24x36 format within 1 business day of your order.
We ship from the midwest in order to serve the entire country within 3-5 business days!
Return policy
Return policy
All barndominium house plan purchases are FINAL. There are no exchanges or refunds due to the digital nature of the product. Please make sure that the plan you have selected is going to fit your needs.
PDF (Single Build) $1,450.00
DETAILS
HEATED SQ FT
First Floor:
1,829 SF
Second Floor:954 SF
Total Heated Sq Ft:2,783 SF
UNHEATED SQ FT
Garage 1,363 SF, Porch 927 SF = TOTAL 2,290 SF
Carport:None
3
2
2
1,363 SF
90'
61'
28'-8"
Concrete Slab
07:12
Stick Frame
CEILING HEIGHTS
9'
BG-20083 Devon Barndominium House Plan
About this barndominium house plan:
- 2,783 Heated Sq Ft
- 3 bedroom
- 2.2 bathrooms
- Two Story
- Open Concept
- Loft
- Den
- Covered porch
- 1,361 Sq Ft Garage
- This two-story layout spans 2,783 square feet of conditioned space—offering three bedrooms, two full baths, and two half baths, designed for comfort, flexibility, and everyday ease.
- A dedicated den provides a quiet space near the main living areas—ideal for work or reading—while the upstairs loft adds a flexible zone for play, media, or creative use.
- A covered porch wraps from the front to the side of the home—creating a welcoming entry and generous outdoor space for relaxing or entertaining in any season.
- This spacious three-car garage includes a convenient half bath and mechanical closet—perfect for workshop needs, gear storage, or seamless transitions from work to home.
What's included in BG-20083:
Cover Sheet
Four Elevations (Front, Back, Left Side, Right Side)
Roof Plan
Dimensioned Floor Plan
Foundation Plan
Wall Sections
Electrical Plans
For more barndominium floor plans, check out our complete collection of 3-bedroom barndominium floor plans.
Need to make changes? Submit a modification request using the button that says Modify This Plan (below the Add To Cart Button). We will get you a free price quote within 72 hours.
What's Typically Included
What's Typically Included
THE SPECIFC DETAILS OF WHAT'S INCLUDED ON THESE PLANS IS CONTAINED IN THE PRODUCT DESCRIPTION. PLEASE SCROLL UP AND YOU WILL FIND IT UNDER "WHAT'S INCLUDED"
Our house plan sets typically have the following details:
4 Elevations – Front, Back, Both Sides
Detailed Floor Plan Drawing
Electrical Plans with placements for HVAC
Plumbing Plans with Placements
Flooring Plan
Roof Plan
Foundation Plan
For more information on what's included and examples of what your plans will look like, go here -> https://barndominiumplans.com/pages/whats-included
Please Note: We work with many different draftspeople who work in many different ways. It should be noted that their plans may contain different details. THE SPECIFC DETAILS OF WHAT'S INCLUDED ON THESE PLANS IS CONTAINED IN THE PRODUCT DESCRIPTION. PLEASE SCROLL UP AND YOU WILL FIND IT UNDER "WHAT'S INCLUDED"
What's Not Included
What's Not Included
The following items are NOT included:
Architectural or Engineering Stamp. Our plans are engineering-ready! Can take them to a local engineer in your state.
Site Plan - We can provide this if needed for $300 additional.
Materials List - handled locally when required
Energy calculations - handled locally when required
Snow load calculations - handled locally when required
Delivery
Delivery
This plan is available as a digital product or printed + shipped.
If you select digital, the plan will be delivered to you via email as a PDF file, no matter what time it is.
If you select printed + shipped, your order will ship in 24x36 format within 1 business day of your order.
We ship from the midwest in order to serve the entire country within 3-5 business days!
Return policy
Return policy
All barndominium house plan purchases are FINAL. There are no exchanges or refunds due to the digital nature of the product. Please make sure that the plan you have selected is going to fit your needs.










Real Reviews, Real Experiences
How to Build Your Own Barndominium & 120+ House Plans

Just getting started on your build? Get the Barndominiums Made Easy Program.
- Choosing a selection results in a full page refresh.