Couldn't load pickup availability
Barndominium Plans
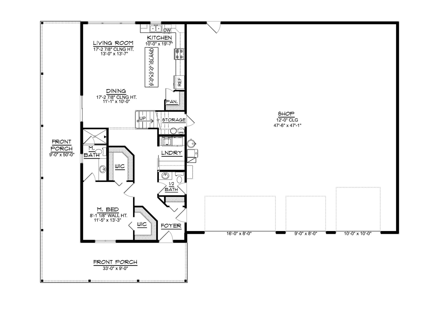
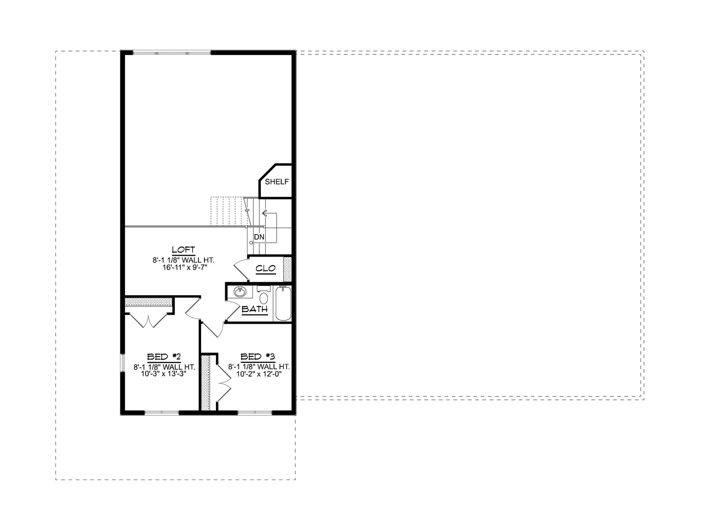
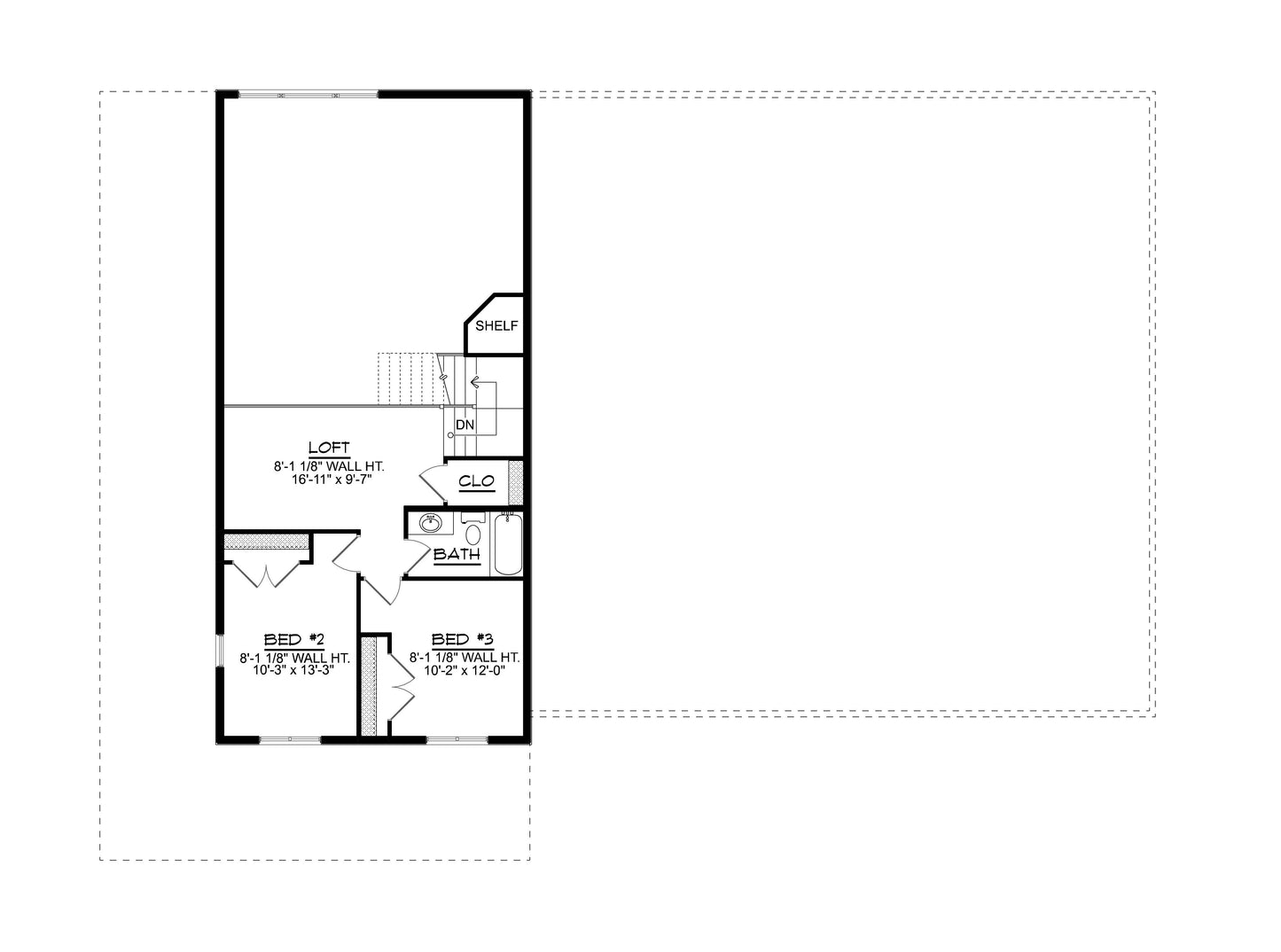
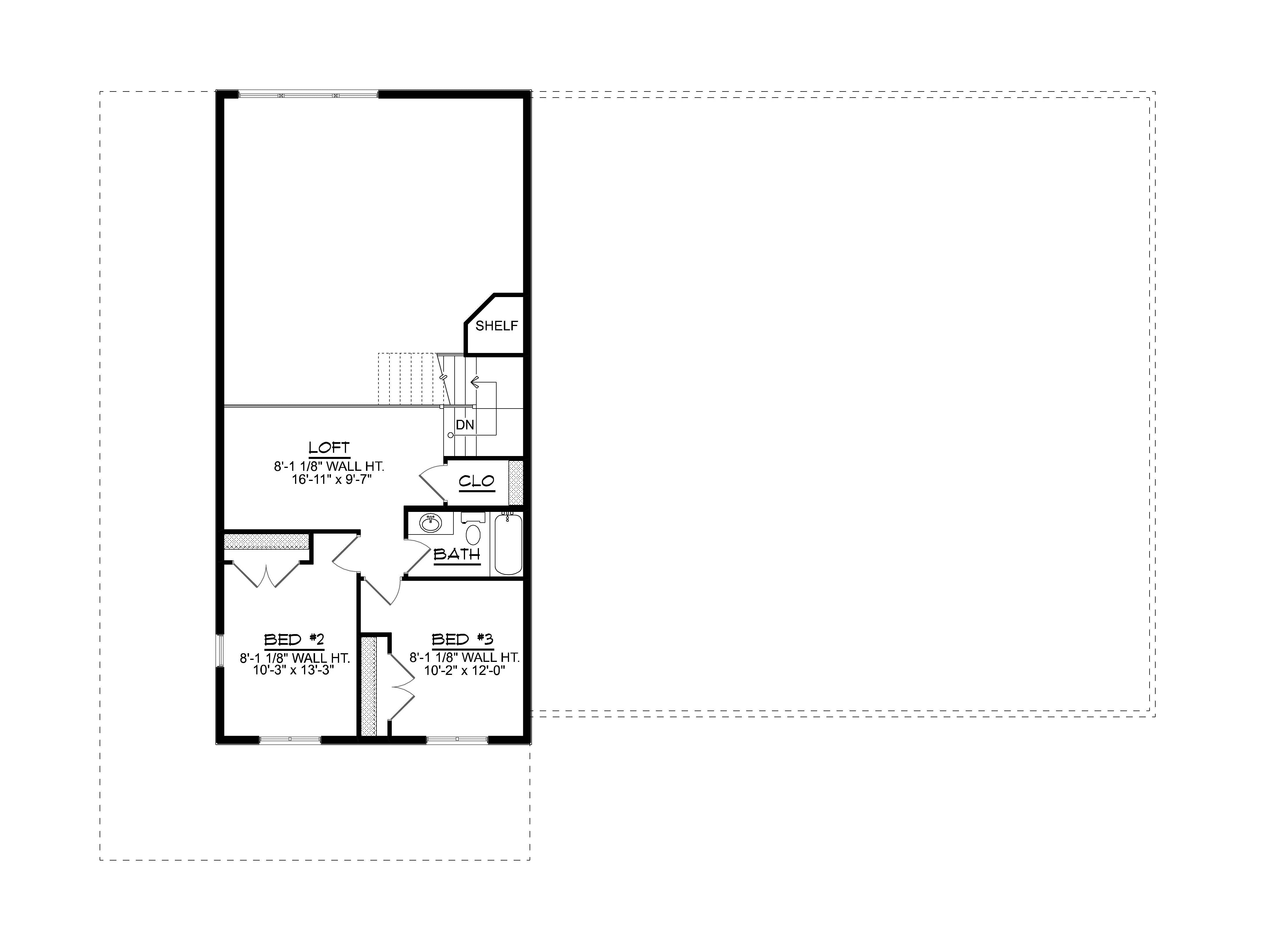
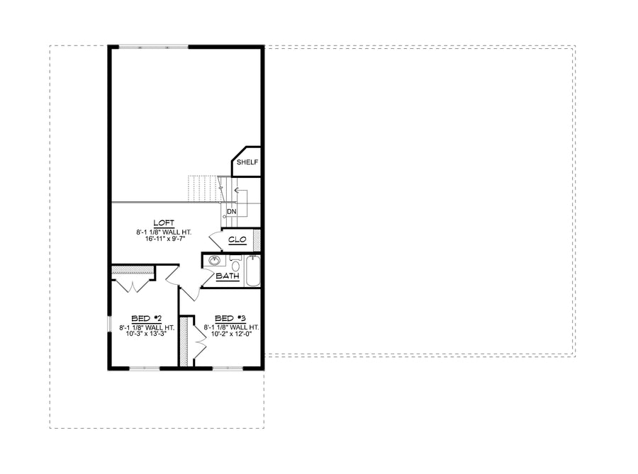
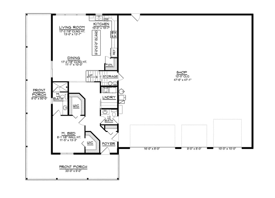
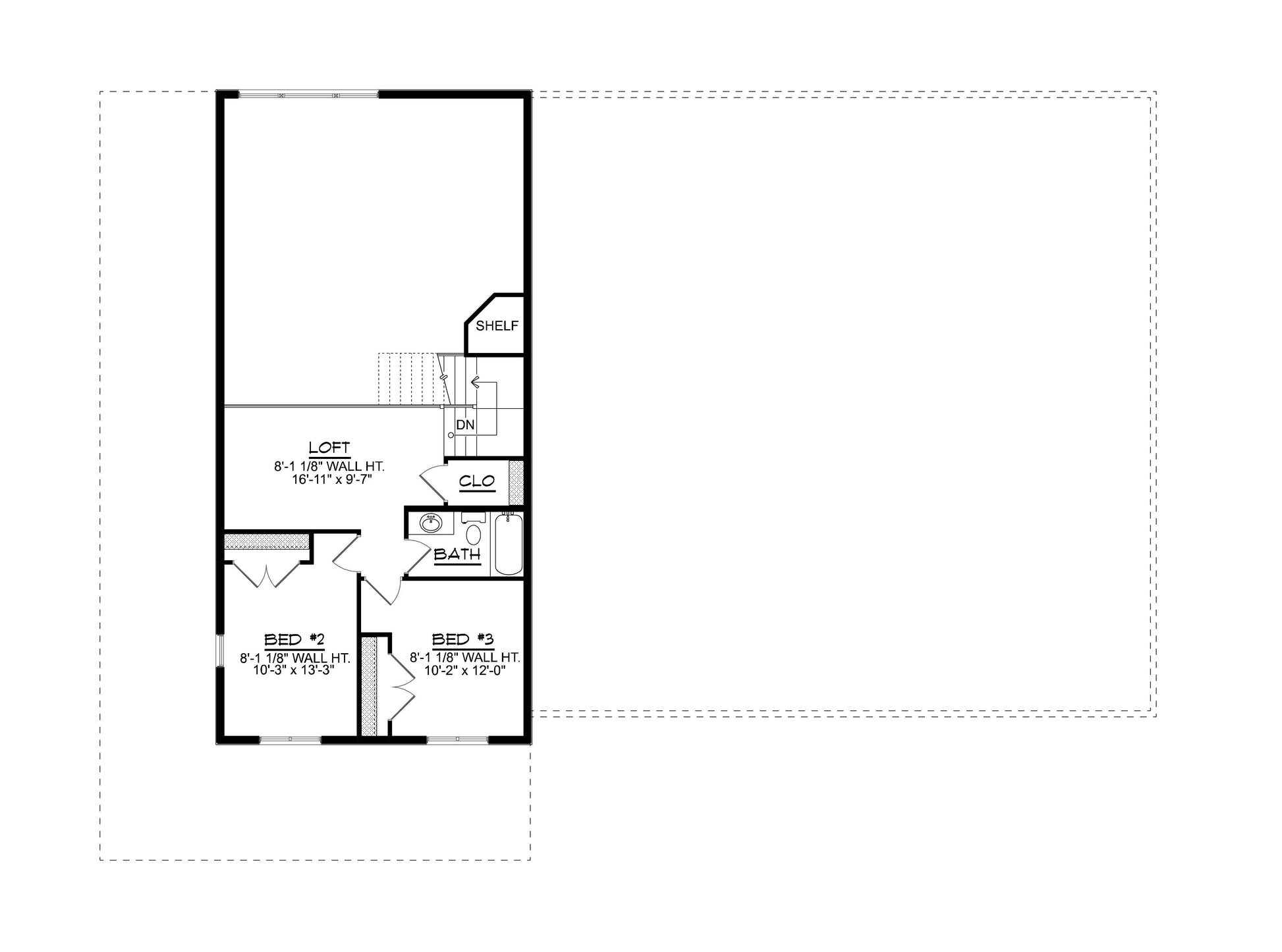
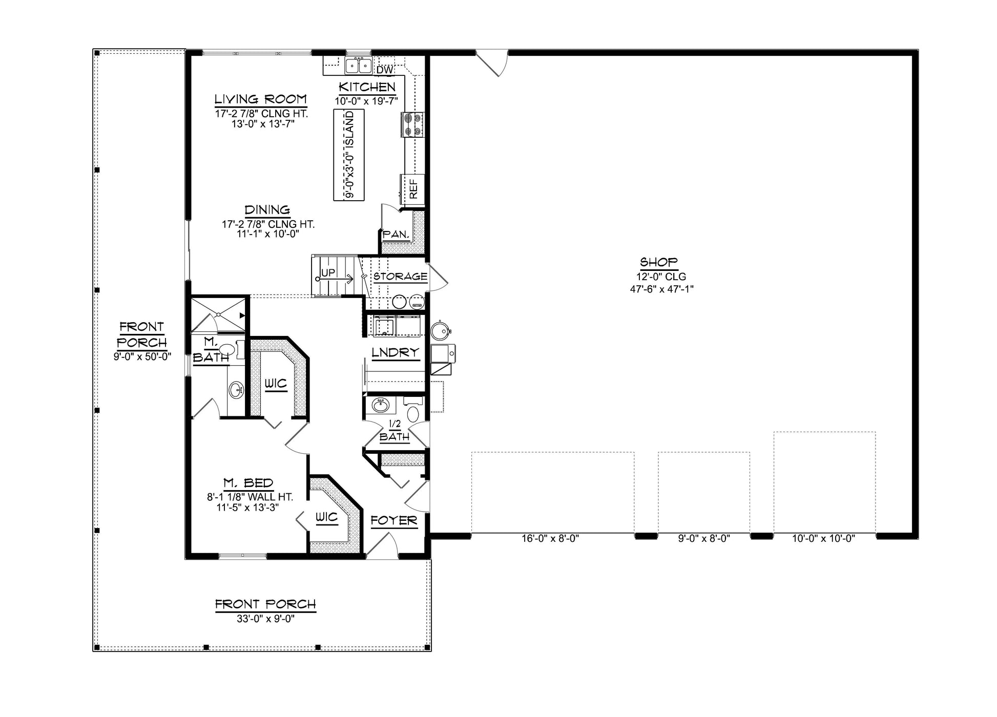
BG-20081 Vail Barndominium House Plan
DETAILS
HEATED SQ FT
First Floor:
1,223 SF
Second Floor:597 SF
Total Heated Sq Ft:1,820 SF
UNHEATED SQ FT
Garage 2,334 SF, Porch 732 SF = TOTAL 3,066 SF
Carport:None
3
2
2
2,334 SF
81'
59'
23'-8"
Concrete Slab
5:12
Stick Frame
CEILING HEIGHTS
8'
BG-20081 Vail Barndominium House Plan
About this barndominium house plan:
- 1,820 Heated Sq Ft
- 50x24 living space dimension
- 3 bedroom
- 2.1 bathrooms
- Two Story
- Open Concept
- Loft
- Foyer
- Master bedroom with 2 WIC
- Front porch
- 2,334 Sq Ft Garage
- This two-story layout offers 1,820 square feet of conditioned space—crafted for balanced living with three bedrooms, intuitive flow, and everyday comfort.
- A welcoming foyer leads into a hallway that gently opens into the dining, kitchen, and living areas—creating a sense of arrival and spatial rhythm.
- The master suite includes two walk-in closets—offering generous storage and personal space with a touch of luxury.
- A covered front porch extends along the side of the home—perfect for shaded lounging, curbside charm, and relaxed outdoor living.
- A 2,334-square-foot garage/shop provides space for four vehicles with room to spare—ideal for gearheads, hobbyists, or anyone who values storage and workspace.
What's included in BG-20081:
Cover Sheet
Four Elevations (Front, Back, Left Side, Right Side)
Roof Plan
Dimensioned Floor Plan
Foundation Plan
Wall Sections
Electrical Plans
For more barndominium floor plans, check out our complete collection of 3-bedroom barndominium floor plans.
Need to make changes? Submit a modification request using the button that says Modify This Plan (below the Add To Cart Button). We will get you a free price quote within 72 hours.
Please note all square footage are estimates.
What's Typically Included
What's Typically Included
THE SPECIFC DETAILS OF WHAT'S INCLUDED ON THESE PLANS IS CONTAINED IN THE PRODUCT DESCRIPTION. PLEASE SCROLL UP AND YOU WILL FIND IT UNDER "WHAT'S INCLUDED"
Our house plan sets typically have the following details:
4 Elevations – Front, Back, Both Sides
Detailed Floor Plan Drawing
Electrical Plans with placements for HVAC
Plumbing Plans with Placements
Flooring Plan
Roof Plan
Foundation Plan
For more information on what's included and examples of what your plans will look like, go here -> https://barndominiumplans.com/pages/whats-included
Please Note: We work with many different draftspeople who work in many different ways. It should be noted that their plans may contain different details. THE SPECIFC DETAILS OF WHAT'S INCLUDED ON THESE PLANS IS CONTAINED IN THE PRODUCT DESCRIPTION. PLEASE SCROLL UP AND YOU WILL FIND IT UNDER "WHAT'S INCLUDED"
What's Not Included
What's Not Included
The following items are NOT included:
Architectural or Engineering Stamp. Our plans are engineering-ready! Can take them to a local engineer in your state.
Site Plan - We can provide this if needed for $300 additional.
Materials List - handled locally when required
Energy calculations - handled locally when required
Snow load calculations - handled locally when required
Delivery
Delivery
This plan is available as a digital product or printed + shipped.
If you select digital, the plan will be delivered to you via email as a PDF file, no matter what time it is.
If you select printed + shipped, your order will ship in 24x36 format within 1 business day of your order.
We ship from the midwest in order to serve the entire country within 3-5 business days!
Return policy
Return policy
All barndominium house plan purchases are FINAL. There are no exchanges or refunds due to the digital nature of the product. Please make sure that the plan you have selected is going to fit your needs.
PDF (Single Build) $1,250.00
DETAILS
HEATED SQ FT
First Floor:
1,223 SF
Second Floor:597 SF
Total Heated Sq Ft:1,820 SF
UNHEATED SQ FT
Garage 2,334 SF, Porch 732 SF = TOTAL 3,066 SF
Carport:None
3
2
2
2,334 SF
81'
59'
23'-8"
Concrete Slab
5:12
Stick Frame
CEILING HEIGHTS
8'
BG-20081 Vail Barndominium House Plan
About this barndominium house plan:
- 1,820 Heated Sq Ft
- 50x24 living space dimension
- 3 bedroom
- 2.1 bathrooms
- Two Story
- Open Concept
- Loft
- Foyer
- Master bedroom with 2 WIC
- Front porch
- 2,334 Sq Ft Garage
- This two-story layout offers 1,820 square feet of conditioned space—crafted for balanced living with three bedrooms, intuitive flow, and everyday comfort.
- A welcoming foyer leads into a hallway that gently opens into the dining, kitchen, and living areas—creating a sense of arrival and spatial rhythm.
- The master suite includes two walk-in closets—offering generous storage and personal space with a touch of luxury.
- A covered front porch extends along the side of the home—perfect for shaded lounging, curbside charm, and relaxed outdoor living.
- A 2,334-square-foot garage/shop provides space for four vehicles with room to spare—ideal for gearheads, hobbyists, or anyone who values storage and workspace.
What's included in BG-20081:
Cover Sheet
Four Elevations (Front, Back, Left Side, Right Side)
Roof Plan
Dimensioned Floor Plan
Foundation Plan
Wall Sections
Electrical Plans
For more barndominium floor plans, check out our complete collection of 3-bedroom barndominium floor plans.
Need to make changes? Submit a modification request using the button that says Modify This Plan (below the Add To Cart Button). We will get you a free price quote within 72 hours.
Please note all square footage are estimates.
What's Typically Included
What's Typically Included
THE SPECIFC DETAILS OF WHAT'S INCLUDED ON THESE PLANS IS CONTAINED IN THE PRODUCT DESCRIPTION. PLEASE SCROLL UP AND YOU WILL FIND IT UNDER "WHAT'S INCLUDED"
Our house plan sets typically have the following details:
4 Elevations – Front, Back, Both Sides
Detailed Floor Plan Drawing
Electrical Plans with placements for HVAC
Plumbing Plans with Placements
Flooring Plan
Roof Plan
Foundation Plan
For more information on what's included and examples of what your plans will look like, go here -> https://barndominiumplans.com/pages/whats-included
Please Note: We work with many different draftspeople who work in many different ways. It should be noted that their plans may contain different details. THE SPECIFC DETAILS OF WHAT'S INCLUDED ON THESE PLANS IS CONTAINED IN THE PRODUCT DESCRIPTION. PLEASE SCROLL UP AND YOU WILL FIND IT UNDER "WHAT'S INCLUDED"
What's Not Included
What's Not Included
The following items are NOT included:
Architectural or Engineering Stamp. Our plans are engineering-ready! Can take them to a local engineer in your state.
Site Plan - We can provide this if needed for $300 additional.
Materials List - handled locally when required
Energy calculations - handled locally when required
Snow load calculations - handled locally when required
Delivery
Delivery
This plan is available as a digital product or printed + shipped.
If you select digital, the plan will be delivered to you via email as a PDF file, no matter what time it is.
If you select printed + shipped, your order will ship in 24x36 format within 1 business day of your order.
We ship from the midwest in order to serve the entire country within 3-5 business days!
Return policy
Return policy
All barndominium house plan purchases are FINAL. There are no exchanges or refunds due to the digital nature of the product. Please make sure that the plan you have selected is going to fit your needs.





























Real Reviews, Real Experiences
How to Build Your Own Barndominium & 120+ House Plans

Just getting started on your build? Get the Barndominiums Made Easy Program.
- Choosing a selection results in a full page refresh.