Couldn't load pickup availability
Barndominium Plans
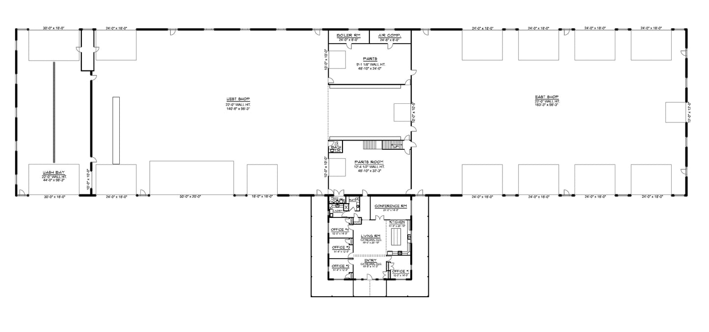
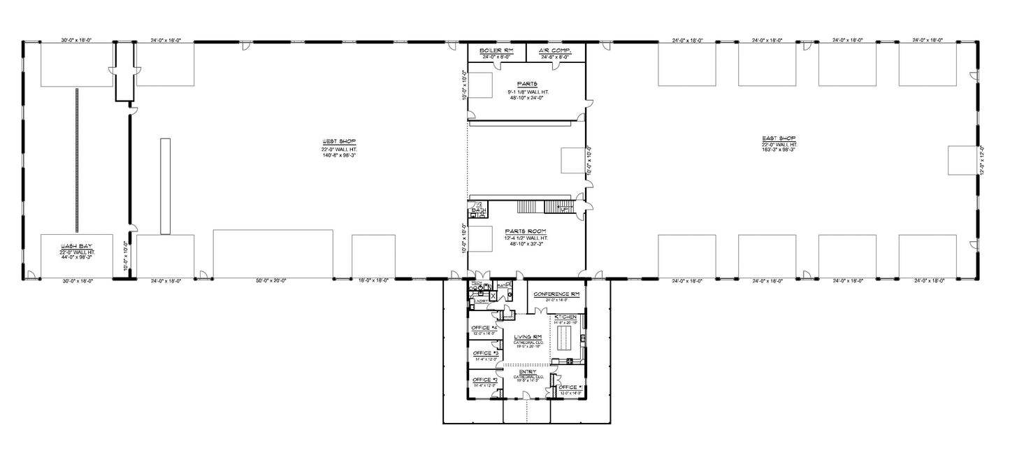
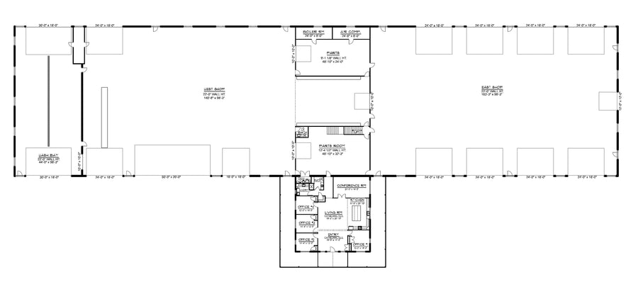
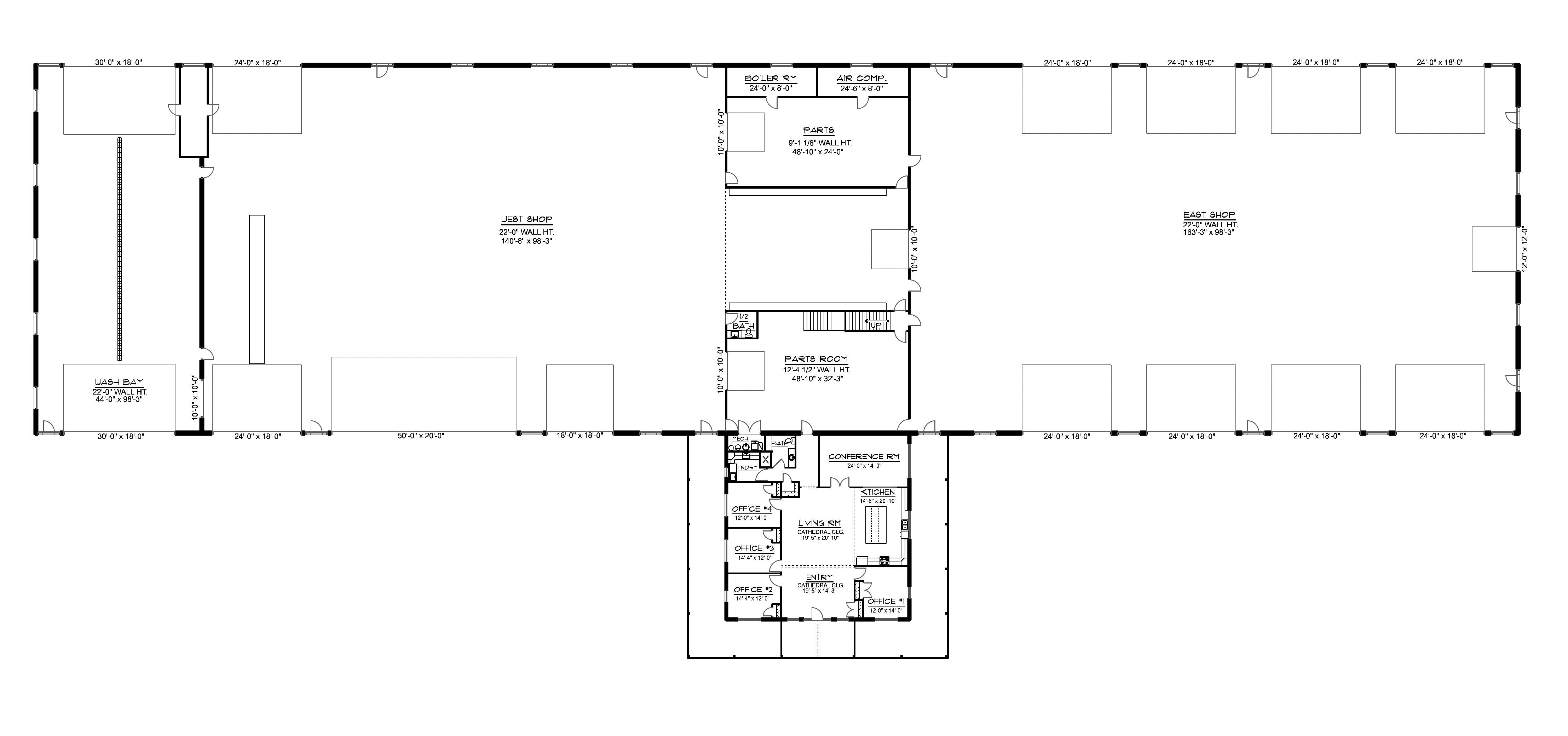
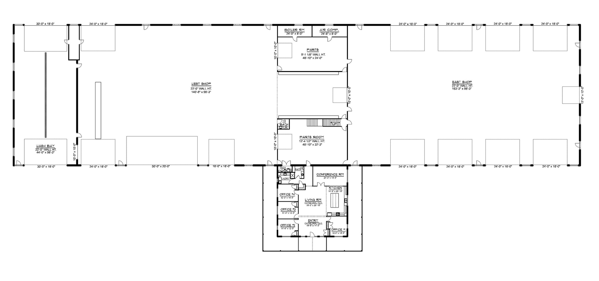
BG-20076 Campbell Barndominium House Plan
DETAILS
HEATED SQ FT
First Floor:
2,413 SF
Second Floor:None
Total Heated Sq Ft:2,413 SF
UNHEATED SQ FT
Shop 39,875 SF, Porch 1,750 SF = TOTAL 41,625 SF
Carport:None
None
1
1
39,875 SF
400'
160'
35'-11"
Post Frame
03:12
Post Frame
CEILING HEIGHTS
22'
BG-20076 Campbell Barndominium House Plan
About this barndominium house plan:
- 2,413 Heated Sq Ft
- 1.1 bathrooms
- Single Story
- Wash Bay
- East & West Shop
- Parts room
- Boiler Room
- Air Comp.
- 4 Offices
- Conference room
- Front porch
- 39,875 Sq Ft Shop
- The heated portion includes all offices, conference room, living space, and service rooms—clustered in the lower central section for operational efficiency.
- The wash bay is separated from the East Shop—perfect for cleaning equipment before entry or post-use maintenance.
- The combined shop area spans both wings—offering nearly 40,000 square feet of industrial-grade workspace with high ceilings and multiple access points.
Need to make changes? Submit a modification request using the button that says Modify This Plan (below the Add To Cart Button). We will get you a free price quote within 72 hours
What's Typically Included
What's Typically Included
THE SPECIFC DETAILS OF WHAT'S INCLUDED ON THESE PLANS IS CONTAINED IN THE PRODUCT DESCRIPTION. PLEASE SCROLL UP AND YOU WILL FIND IT UNDER "WHAT'S INCLUDED"
Our house plan sets typically have the following details:
4 Elevations – Front, Back, Both Sides
Detailed Floor Plan Drawing
Electrical Plans with placements for HVAC
Plumbing Plans with Placements
Flooring Plan
Roof Plan
Foundation Plan
For more information on what's included and examples of what your plans will look like, go here -> https://barndominiumplans.com/pages/whats-included
Please Note: We work with many different draftspeople who work in many different ways. It should be noted that their plans may contain different details. THE SPECIFC DETAILS OF WHAT'S INCLUDED ON THESE PLANS IS CONTAINED IN THE PRODUCT DESCRIPTION. PLEASE SCROLL UP AND YOU WILL FIND IT UNDER "WHAT'S INCLUDED"
What's Not Included
What's Not Included
The following items are NOT included:
Architectural or Engineering Stamp. Our plans are engineering-ready! Can take them to a local engineer in your state.
Site Plan - We can provide this if needed for $300 additional.
Materials List - handled locally when required
Energy calculations - handled locally when required
Snow load calculations - handled locally when required
Delivery
Delivery
This plan is available as a digital product or printed + shipped.
If you select digital, the plan will be delivered to you via email as a PDF file, no matter what time it is.
If you select printed + shipped, your order will ship in 24x36 format within 1 business day of your order.
We ship from the midwest in order to serve the entire country within 3-5 business days!
Return policy
Return policy
All barndominium house plan purchases are FINAL. There are no exchanges or refunds due to the digital nature of the product. Please make sure that the plan you have selected is going to fit your needs.
PDF (Single Build) $1,250.00
DETAILS
HEATED SQ FT
First Floor:
2,413 SF
Second Floor:None
Total Heated Sq Ft:2,413 SF
UNHEATED SQ FT
Shop 39,875 SF, Porch 1,750 SF = TOTAL 41,625 SF
Carport:None
None
1
1
39,875 SF
400'
160'
35'-11"
Post Frame
03:12
Post Frame
CEILING HEIGHTS
22'
BG-20076 Campbell Barndominium House Plan
About this barndominium house plan:
- 2,413 Heated Sq Ft
- 1.1 bathrooms
- Single Story
- Wash Bay
- East & West Shop
- Parts room
- Boiler Room
- Air Comp.
- 4 Offices
- Conference room
- Front porch
- 39,875 Sq Ft Shop
- The heated portion includes all offices, conference room, living space, and service rooms—clustered in the lower central section for operational efficiency.
- The wash bay is separated from the East Shop—perfect for cleaning equipment before entry or post-use maintenance.
- The combined shop area spans both wings—offering nearly 40,000 square feet of industrial-grade workspace with high ceilings and multiple access points.
Need to make changes? Submit a modification request using the button that says Modify This Plan (below the Add To Cart Button). We will get you a free price quote within 72 hours
What's Typically Included
What's Typically Included
THE SPECIFC DETAILS OF WHAT'S INCLUDED ON THESE PLANS IS CONTAINED IN THE PRODUCT DESCRIPTION. PLEASE SCROLL UP AND YOU WILL FIND IT UNDER "WHAT'S INCLUDED"
Our house plan sets typically have the following details:
4 Elevations – Front, Back, Both Sides
Detailed Floor Plan Drawing
Electrical Plans with placements for HVAC
Plumbing Plans with Placements
Flooring Plan
Roof Plan
Foundation Plan
For more information on what's included and examples of what your plans will look like, go here -> https://barndominiumplans.com/pages/whats-included
Please Note: We work with many different draftspeople who work in many different ways. It should be noted that their plans may contain different details. THE SPECIFC DETAILS OF WHAT'S INCLUDED ON THESE PLANS IS CONTAINED IN THE PRODUCT DESCRIPTION. PLEASE SCROLL UP AND YOU WILL FIND IT UNDER "WHAT'S INCLUDED"
What's Not Included
What's Not Included
The following items are NOT included:
Architectural or Engineering Stamp. Our plans are engineering-ready! Can take them to a local engineer in your state.
Site Plan - We can provide this if needed for $300 additional.
Materials List - handled locally when required
Energy calculations - handled locally when required
Snow load calculations - handled locally when required
Delivery
Delivery
This plan is available as a digital product or printed + shipped.
If you select digital, the plan will be delivered to you via email as a PDF file, no matter what time it is.
If you select printed + shipped, your order will ship in 24x36 format within 1 business day of your order.
We ship from the midwest in order to serve the entire country within 3-5 business days!
Return policy
Return policy
All barndominium house plan purchases are FINAL. There are no exchanges or refunds due to the digital nature of the product. Please make sure that the plan you have selected is going to fit your needs.

















Real Reviews, Real Experiences
How to Build Your Own Barndominium & 120+ House Plans

Just getting started on your build? Get the Barndominiums Made Easy Program.
- Choosing a selection results in a full page refresh.