Couldn't load pickup availability
Barndominium Plans
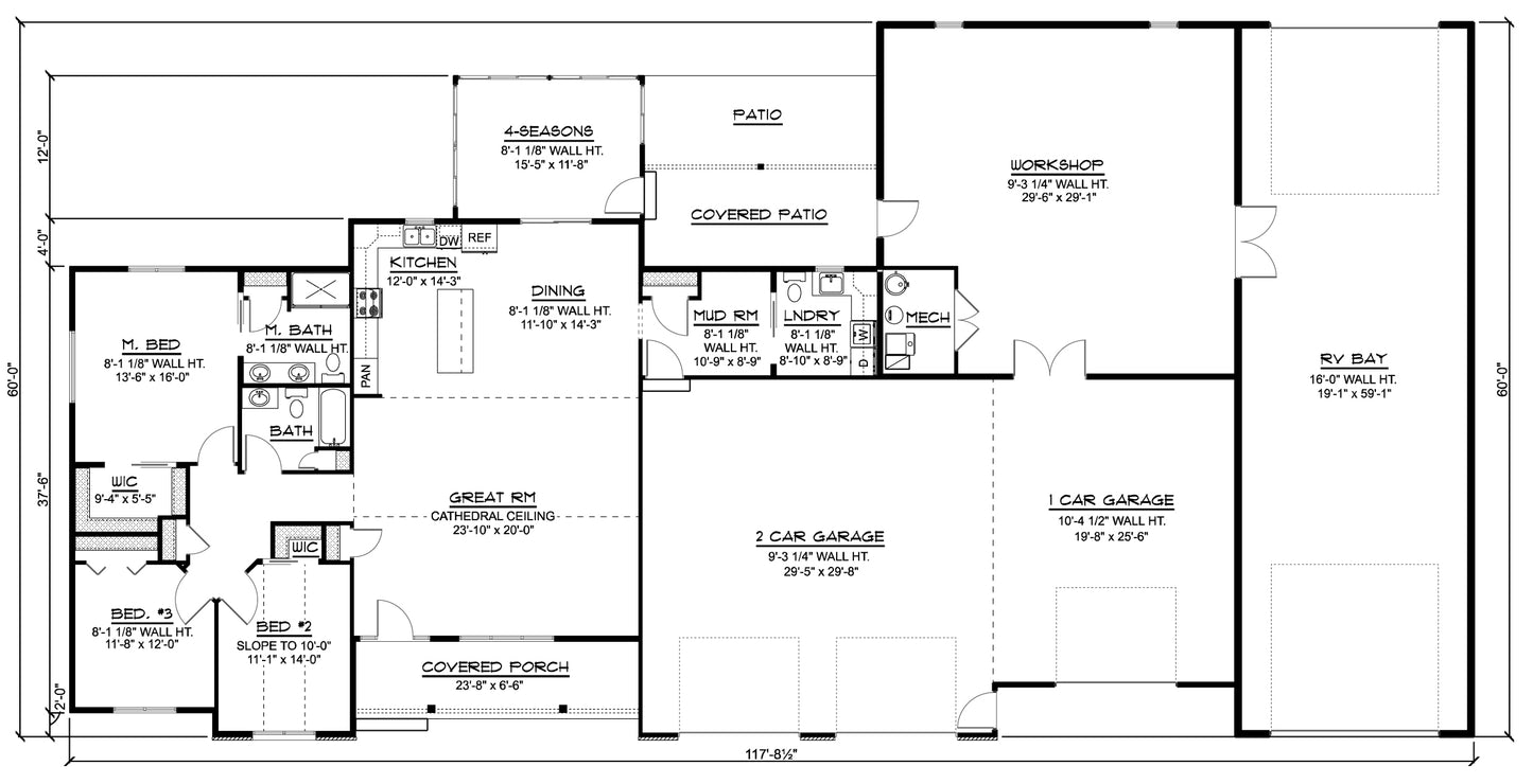
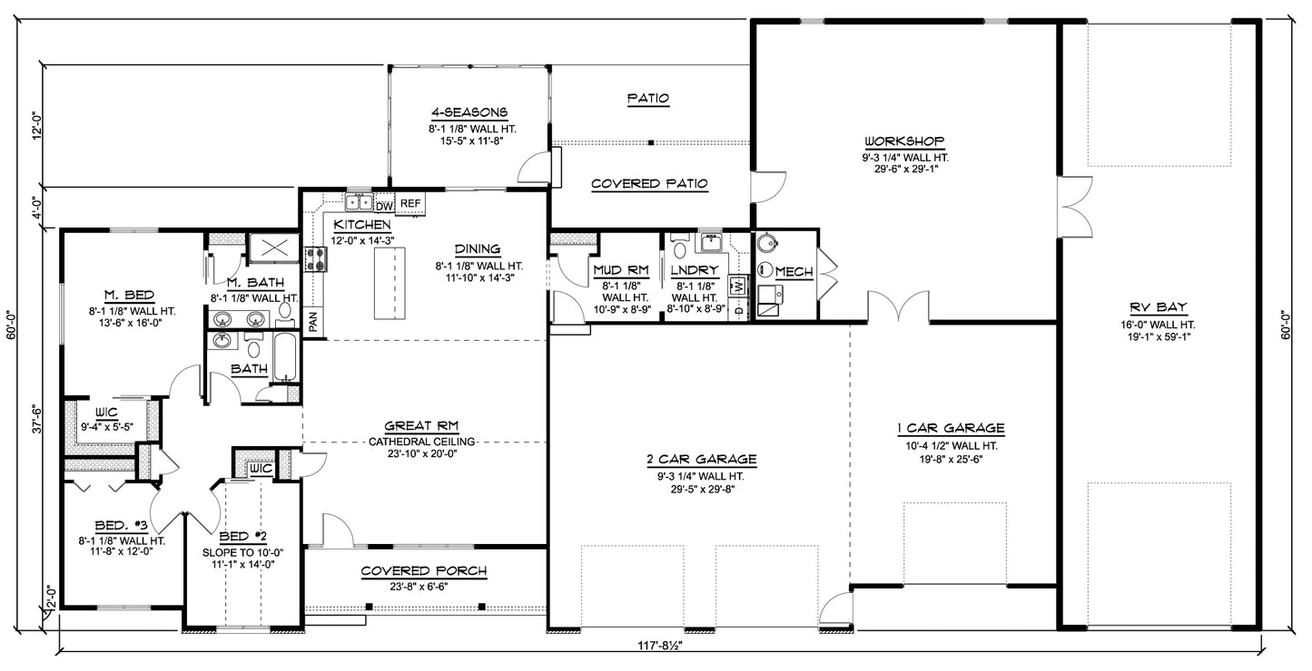
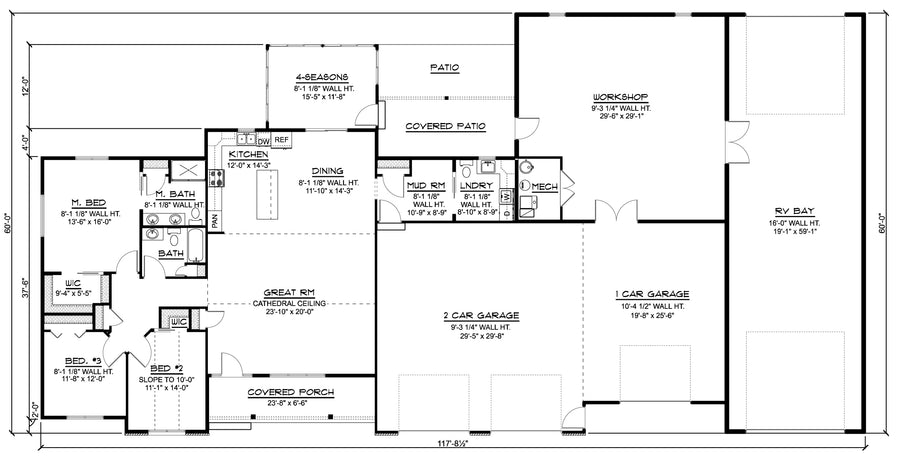
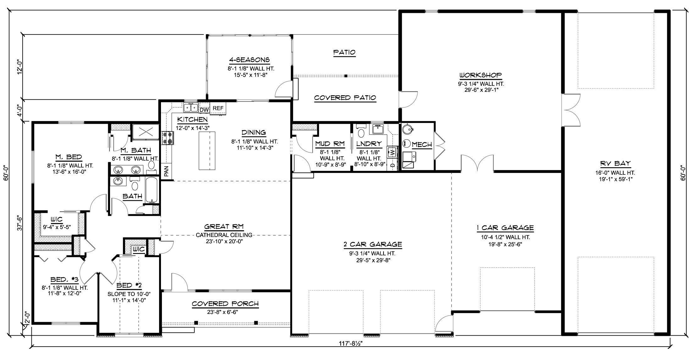
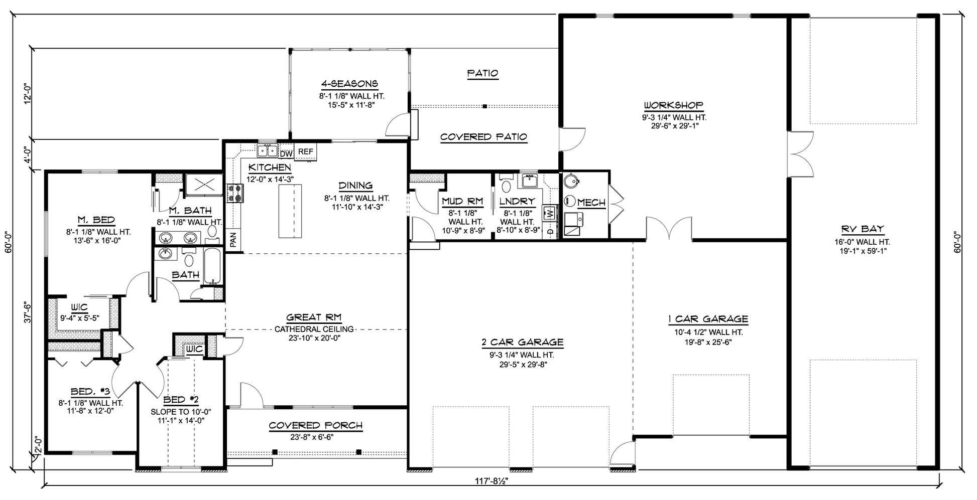
BG-20072 Hudson Barndominium House Plan
DETAILS
HEATED SQ FT
First Floor:
1,971 SF
Second Floor:None
Total Heated Sq Ft:1,971 SF
UNHEATED SQ FT
Garage 3,524 SF, 4 Seasons room 192 SF, Porch/Patio 448 SF = TOTAL 4,164 SF
Carport:None
3
2
1
3,524 SF
117'-8"
60'
20'-4"
Crawl Space
6:12
Stick Frame
CEILING HEIGHTS
8'
BG-20072 Hudson Barndominium House Plan
About this barndominium house plan:
- 1,971 Heated Sq Ft
- 3 bedroom
- 2.1 bathrooms
- Single Story
- Open Concept
- Mudroom
- 4 seasons room
- Front porch
- Rear patio
- 3,524 Sq Ft Garage
- This single-level layout offers 1,971 square feet of conditioned space—crafted for simple living with a spacious feel, balanced privacy, and intuitive flow.
- Positioned at the back of the house, the four seasons room invites year-round enjoyment—ideal for morning light, cozy winter lounging, or garden-view relaxation.
- Beside the four seasons room, a rear patio blends shaded and open-air spaces—perfect for entertaining, quiet afternoons, or soaking in seasonal transitions.
- A sprawling 3,524-square-foot garage offers layered utility: a one-car bay, a two-car bay, a dedicated RV space, and a workshop zone—designed for gear, hobbies, travel prep, and everyday function.
What's included in BG-20072:
Cover Sheet
Four Elevations (Front, Back, Left Side, Right Side)
Roof Plan
Dimensioned Floor Plan
Foundation Plan
Wall Sections
Electrical Plans
For more barndominium floor plans, check out our complete collection of 3-bedroom barndominium floor plans.
Need to make changes? Submit a modification request using the button that says Modify This Plan (below the Add To Cart Button). We will get you a free price quote within 72 hours.
Please note all square footage are estimates.
What's Typically Included
What's Typically Included
THE SPECIFC DETAILS OF WHAT'S INCLUDED ON THESE PLANS IS CONTAINED IN THE PRODUCT DESCRIPTION. PLEASE SCROLL UP AND YOU WILL FIND IT UNDER "WHAT'S INCLUDED"
Our house plan sets typically have the following details:
4 Elevations – Front, Back, Both Sides
Detailed Floor Plan Drawing
Electrical Plans with placements for HVAC
Plumbing Plans with Placements
Flooring Plan
Roof Plan
Foundation Plan
For more information on what's included and examples of what your plans will look like, go here -> https://barndominiumplans.com/pages/whats-included
Please Note: We work with many different draftspeople who work in many different ways. It should be noted that their plans may contain different details. THE SPECIFC DETAILS OF WHAT'S INCLUDED ON THESE PLANS IS CONTAINED IN THE PRODUCT DESCRIPTION. PLEASE SCROLL UP AND YOU WILL FIND IT UNDER "WHAT'S INCLUDED"
What's Not Included
What's Not Included
The following items are NOT included:
Architectural or Engineering Stamp. Our plans are engineering-ready! Can take them to a local engineer in your state.
Site Plan - We can provide this if needed for $300 additional.
Materials List - handled locally when required
Energy calculations - handled locally when required
Snow load calculations - handled locally when required
Delivery
Delivery
This plan is available as a digital product or printed + shipped.
If you select digital, the plan will be delivered to you via email as a PDF file, no matter what time it is.
If you select printed + shipped, your order will ship in 24x36 format within 1 business day of your order.
We ship from the midwest in order to serve the entire country within 3-5 business days!
Return policy
Return policy
All barndominium house plan purchases are FINAL. There are no exchanges or refunds due to the digital nature of the product. Please make sure that the plan you have selected is going to fit your needs.
PDF (Single Build) $1,250.00
DETAILS
HEATED SQ FT
First Floor:
1,971 SF
Second Floor:None
Total Heated Sq Ft:1,971 SF
UNHEATED SQ FT
Garage 3,524 SF, 4 Seasons room 192 SF, Porch/Patio 448 SF = TOTAL 4,164 SF
Carport:None
3
2
1
3,524 SF
117'-8"
60'
20'-4"
Crawl Space
6:12
Stick Frame
CEILING HEIGHTS
8'
BG-20072 Hudson Barndominium House Plan
About this barndominium house plan:
- 1,971 Heated Sq Ft
- 3 bedroom
- 2.1 bathrooms
- Single Story
- Open Concept
- Mudroom
- 4 seasons room
- Front porch
- Rear patio
- 3,524 Sq Ft Garage
- This single-level layout offers 1,971 square feet of conditioned space—crafted for simple living with a spacious feel, balanced privacy, and intuitive flow.
- Positioned at the back of the house, the four seasons room invites year-round enjoyment—ideal for morning light, cozy winter lounging, or garden-view relaxation.
- Beside the four seasons room, a rear patio blends shaded and open-air spaces—perfect for entertaining, quiet afternoons, or soaking in seasonal transitions.
- A sprawling 3,524-square-foot garage offers layered utility: a one-car bay, a two-car bay, a dedicated RV space, and a workshop zone—designed for gear, hobbies, travel prep, and everyday function.
What's included in BG-20072:
Cover Sheet
Four Elevations (Front, Back, Left Side, Right Side)
Roof Plan
Dimensioned Floor Plan
Foundation Plan
Wall Sections
Electrical Plans
For more barndominium floor plans, check out our complete collection of 3-bedroom barndominium floor plans.
Need to make changes? Submit a modification request using the button that says Modify This Plan (below the Add To Cart Button). We will get you a free price quote within 72 hours.
Please note all square footage are estimates.
What's Typically Included
What's Typically Included
THE SPECIFC DETAILS OF WHAT'S INCLUDED ON THESE PLANS IS CONTAINED IN THE PRODUCT DESCRIPTION. PLEASE SCROLL UP AND YOU WILL FIND IT UNDER "WHAT'S INCLUDED"
Our house plan sets typically have the following details:
4 Elevations – Front, Back, Both Sides
Detailed Floor Plan Drawing
Electrical Plans with placements for HVAC
Plumbing Plans with Placements
Flooring Plan
Roof Plan
Foundation Plan
For more information on what's included and examples of what your plans will look like, go here -> https://barndominiumplans.com/pages/whats-included
Please Note: We work with many different draftspeople who work in many different ways. It should be noted that their plans may contain different details. THE SPECIFC DETAILS OF WHAT'S INCLUDED ON THESE PLANS IS CONTAINED IN THE PRODUCT DESCRIPTION. PLEASE SCROLL UP AND YOU WILL FIND IT UNDER "WHAT'S INCLUDED"
What's Not Included
What's Not Included
The following items are NOT included:
Architectural or Engineering Stamp. Our plans are engineering-ready! Can take them to a local engineer in your state.
Site Plan - We can provide this if needed for $300 additional.
Materials List - handled locally when required
Energy calculations - handled locally when required
Snow load calculations - handled locally when required
Delivery
Delivery
This plan is available as a digital product or printed + shipped.
If you select digital, the plan will be delivered to you via email as a PDF file, no matter what time it is.
If you select printed + shipped, your order will ship in 24x36 format within 1 business day of your order.
We ship from the midwest in order to serve the entire country within 3-5 business days!
Return policy
Return policy
All barndominium house plan purchases are FINAL. There are no exchanges or refunds due to the digital nature of the product. Please make sure that the plan you have selected is going to fit your needs.









Real Reviews, Real Experiences
How to Build Your Own Barndominium & 120+ House Plans

Just getting started on your build? Get the Barndominiums Made Easy Program.
- Choosing a selection results in a full page refresh.